HP90IHCB3 Built In Integrated Cooker Hood
User Guide
IMPORTANT!
SAVE THESE INSTRUCTIONS
The models shown in this user guide may not be available in all markets and are subject to change at any time.
For current details about model and specification availability in your country, go to our website fisherpaykel.com or contact your local Fisher & Paykel dealer.
Registration
Register your product with us so we can provide you with the best service possible.
To register your product visit our website: fisherpaykel.com
INTRODUCTION
Thank you for purchasing a Fisher & Paykel product.
Thousands of hours go into the design, engineering, testing, and perfecting of each Fisher & Paykel appliance. The care and attention given to creating these beautiful products don’t stop once it has found their home with you.
This use and care manual will answer most of your questions about the set-up, use, and ongoing maintenance of your Fisher & Paykel product; however, if you require further information about your product and its use please consult our website for solutions and further contact information to discuss with a service representative.
To ensure you receive all relevant product updates and the best service possible, please register your Fisher & Paykel products through our website.

SAFETY AND WARNINGS
![]() | Weight Hazard The cooker hood is heavy. Please ensure adequate care is taken when installing the cooker hood to prevent personal injury. The cooker hood must be installed onto a solid wall, stud, beam, or truss. Weight of the product is 10kg (HP60) / 11.5kg (HP90) |
![]() | Weight Hazard The cooker hood is heavy. Please ensure adequate care is taken when installing the cooker hood to prevent personal injury. The cooker hood must be installed onto a solid wall, stud, beam, or truss. Weight of the product is 10kg (HP60) / 11.5kg (HP90) |
IMPORTANT SAFETY INSTRUCTIONS
WARNING!
When using this appliance always exercise basic safety precautions including the following:
- Please read the entire set of instructions before installing the cooker hood.
- This appliance can be used by children aged from 8 years or above and persons with reduced physical, sensory, or mental capabilities or lack of experience or knowledge if they have been given supervision or instruction concerning the use of the appliance in a safe way and understand the hazards involved. Children shall not play with the appliance.
Cleaning and user maintenance shall not be made by children without supervision. - The installation of Fisher & Paykel cooker hoods must comply with the information in this guide. Failure to install the cooker hood in accordance with these installation instructions may result in electrical hazards, injury, damage to your appliance, and loss of warranty. Failure by the installer to install the screws or fixing devices in accordance with these installation instructions may result in electrical hazards. Please install the appliance as detailed in these instructions.
- There shall be adequate ventilation in the room when the cooker hood is used at the same time as appliances burning gas or other fuels.
- You must read the details concerning the method and frequency of cleaning.
- There is a fire risk if cleaning is not carried out in accordance with the instructions.
- Do not flambé under the cooker hood.
- Exhaust air must not be discharged into an existing flue that is used for exhausting fumes from appliances burning gas or other fuels.
- The minimum distance between the supporting surface for cooking vessels on the hob and the lowest part of the cooker hood shall be 600mm, or 650mm if installed over a gas hob.
- Attention should be given to ensure that any applicable regulations concerning the discharge of exhaust air are fulfilled.
- If the supply cord of this equipment is damaged it must only be replaced by the manufacturer, its service agent, or a similarly qualified person in order to avoid a hazard.
- Always switch the power off prior to installation, servicing, or cleaning the cooker hood. Never use the cooker hood without the filters in place.
- Stainless steel or powder coat is very easily damaged during installation if abraded or knocked by tools. It is recommended to protect the top of the cooker hood with cardboard or plastic bag during the installation to minimize the risk of damage occurring.
- To reduce the risk of damage occurring to the hob, it is recommended that the surface of the hob is protected with cardboard or a similar object during the installation of the cooker hood.
- A power outlet should be within 750mm of the motor assembly and can be either on the wall, behind the chimney, or in the ceiling.
- To comply with electrical safety regulations, this cooker hood must be plugged into a socket near the appliance. The socket must be accessible, or have an accessible isolating switch, to enable the end user to isolate the cooker hood from the power for the purpose of internal cleaning or maintenance.
- Ducting accessories are not supplied. All ducting must comply with local requirements and building codes.
- CAUTION: Accessible parts may become hot when used with cooking appliances.
INSTALLATION INSTRUCTIONS
Contents of packaging

Product and cabinetry cutout dimensions

| HP60 | HP90 | |
| PRODUCT DIMENSIONS | mm | |
| An Overall height of the product (with ducting adapter) | 350 (395) | 315 (360) |
| B Overall width of the product | 530 | 830 |
| C Overall depth of product | 280 | 280 |
| D Thickness of flange | 2 | 2 |
| E Width of chassis | 492 | 792 |
| F Depth of chassis | 255 | 255 |
| G Height of the side of the chassis | 120 | 120 |
| H Width of the top surface of the chassis | 220 | 220 |
| I Length of the angled surface of the chassis | 260 | 335 |
| J Distance from the center of ducting outlet to the back of the chassis | 145 | 145 |
| K Distance from the center of the ducting outlet to the side of the chassis | 245 | 395 |
| L Diameter of ducting outlet | 150 | 150 |
| M Distance between the center of lights | 80 | 285 |
| N Distance from the center of light to the back of the product | 70 | 115 |
| Length of the power cord | 750 | 750 |
| CABINETRY CUTOUT DIMENSIONS | ||
| Overall width of the cutout | 500 | 800 |
| Overall depth of the cutout | 260 | 260 |
| O Base of brackets/clips to the bottom of chassis | min. 15 – max. 40 | min. 15 – max. 40 |
IMPORTANT!
Actual product dimensions may vary by ± 2mm.
Please read the entire instructions before installing the cooker hood.
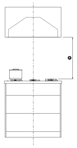
Height of cooker hood
| MINIMUM CLEARANCES | mm |
| P Height top of the hob to the base of the product * Electric hob (for induction hob see note below) Gas hob | min. 600 – max. 750 min. 650 – max. 750 |
* Induction cooking considerations

- Induction hobs use energy-efficient technology that only heats the contents of a cooking pot.
- Unlike gas or traditional electric hobs, the surrounding air does not get heated when using an induction hob. As a result, cooker hood filters, splashback, and surrounding cabinetry do not get warmed up, increasing the likelihood of condensation on these cooler surfaces.
- Other factors like ambient temperature, humidity, natural ventilation of the room, size of the cookware, and how the induction hob is being used also influence condensation. For example, aggressive boiling on high-hob heat settings like PowerBoost increases the rate at which water is evaporated, increasing the likelihood of condensation.
- It is important to understand that neither the cooker hood nor the induction hob is faulty as a result of this phenomenon.
Condensation can be minimized by:
- Installing the cooker hood at the maximum height above the hob as specified in this user guide.
- Use the cooker hood on a lower speed setting when boiling.
- Use the induction hob on a lower heat setting when boiling.
- Switching the cooker hood on 5 minutes before cooking and letting it run for at least 5 minutes after cooking.
Refer to the ‘Operating instructions’ section on how to use the timer function.
Venting requirements
IMPORTANT!
To reduce risk of fire and to properly exhaust air, be sure to duct air outside —
Do not vent exhaust air into spaces within walls or ceilings or into attics, crawl spaces, or garages.
The range hood can be installed to operate with the exhaust air ducted externally from the kitchen or with the exhaust air recirculating within the kitchen.
External venting
For best results:

- Use the shortest and straightest duct route possible. Elbows and transitions increase noise and reduce airflow efficiency.
- Use rigid or semi-rigid ducting 150mm diameter with a 160mm (minimum) round hole in the wall or ceiling.
Note: In difficult installations where flexible ducting is required ensure that it is pulled tight.
Recirculating

This range hood can be installed to recirculate within the kitchen where ducting externally is not practical.
The carbon filters fit on the blowers within the cavity of the range hood and absorb odors as they pass over the filters.
The exhaust air then passes through the blower unit and the diverter before recirculating back into the kitchen from the side vents at the top of the chimney.
Note: A ducting hole is not required in the wall or ceiling when installing a range hood to be recirculated.
To operate this range hood with the air recirculating the following is required:
- Carbon filters (refer to ‘Parts and Accessories).
- 150mm ducting. The ducting diameter must match the diameter of the blower outlet.
- 150mm louvered vent.
IMPORTANT!
Venting directly into the cabinet with no ducting and louvered vent is not permitted.
To recirculate your perimeter insert the range hood:
- Determine the desired location of the 150mm louvered vent on your cabinetry.
The louvered vent can be placed on the side or front of your cabinet provided there is sufficient clearance from the surrounding cabinetry to enable ventilated air to recirculate back into your kitchen.
Note: Placement of the louvered vent on the top of your cabinetry is not recommended.
This should only be done if objects can be prevented from falling through the louvers into the blower. - Create a cutout in your cabinet to fit the 150mm louvered vent. Place the louvered vent on the hole created and secure (A).
- Connect the blower outlet to the louvered vent with a length of 150mm rigid ducting and secure the joints with aluminum tape. Ensure there is no slack in the ducting.
Recirculation venting options A

Installation
WARNING!
This product is heavy and requires two persons for installation.
WARNING!
Failure to install the screws or fix the device in accordance with these instructions may result in electrical hazards.
The manufacturer is not liable for any damage caused by not following these instructions.
- Prepare for installation.
Before installing your cooker hood:
● Please read the instructions carefully.
● Unpack the cooker hood and check that all functions are working.
● Ensure that the voltage (V) and the frequency (Hz) indicated on the serial plate match the voltage and frequency at the installation site.
● The stainless steel and glass surfaces of the cooker hood are very easily damaged during installation if grazed or knocked by tools. Take care to protect the surfaces during installation.
● Protect the hob surface below with cardboard, or the like, to prevent damage from occurring whilst the cooker hood is being installed above. - Fit the 150mm ducting adapter with a nonreturn flap to the cooker hood using the screws supplied.
- Provide an opening on the underside of the cupboard (see product and cabinetry cutout dimensions).
- Remove the filters and face plate of the cooker hood.

- Lift the cooker hood and fit through the opening of the cupboard till the spring-loaded brackets/clips hold the product in place.

- Secure the cooker hood while tightening the 4 brackets/clips.

- Connect duct and plug cooker hood in.

OPERATING INSTRUCTIONS
Touch control panel

CONTROL PANEL FEATURES
| Power on/off | Turn the cooker hood on or off. The fan automatically turns on to operate at level 1. | |
| Fan speed 1 – 4 | Adjust the fan speed levels from 1 – 4 with 1 being the lowest level and 4 being the highest. The fan speed level icon illuminates red when selected. | |
| Boost | Boost | Turn the fan onto boost speed. The icon flashes red when it is on. The cooker hood will operate on boost speed for 5 minutes and will then revert to speed 4. |
| Timer | Turn the timer on. The fan operates for 5 minutes at the current speed and each descending speed before turning off. The timer icon flashes red when the filters need cleaning. To reset the timer press the button and it will stop flashing and begin counting again. | |
| Lights on/off | Turn the lights on or off. The lights turn on to the last level selected. | |
![]() | Reduce lighting level | Press once to adjust the light to the lowest level. The icon illuminates red when on the lowest level. Press and hold to progressively dim the light level. |
![]() | Increase lighting level | Press once to adjust the light to the highest level. The icon illuminates red when on the highest level. Press and hold to progressively increase the light level. |
CLEANING AND MAINTENANCE
IMPORTANT!
Never use abrasive or oil-based cleaners
General maintenance
Before performing any cleaning or maintenance on your cooker hood, ensure that the power supply is switched off to the hood.
The cooker hood should be cleaned regularly using a mild, liquid detergent to avoid a build-up of grease occurring. Grease deposits are corrosive which can cause damage to your cooker hood.
Note: in areas of high humidity or coastal environments, cleaning should be carried out more frequently.
Aluminum filters

- Depending on use, and at least once a month, the aluminium grease filters should be removed and cleaned with hot soapy water or in a dishwasher.
- If washed in a dishwasher, the filters should be placed in an upright position to prevent food from falling on them.
- After rinsing and drying, replace the filters.
Note: some discoloration of the frames may occur.
Removing the aluminum filters:
- Open the glass panel.
- Pull the relative filter catch, tilting it downwards until it disengages from the supports.
- Reverse these instructions when refitting the filters.
Carbon filters – for use in recirculation mode
Active carbon filters are disposable items designed to remove grease and odors from cooking vapors before the air is channeled back into the kitchen. The active carbon filters must be replaced periodically to work properly, at least once every three months, depending on the frequency with which the cooker hood is used.

Note: fully saturated carbon filters can become a barrier to air movement, therefore, limiting cooker hood performance. In the event of a fire, grease-laden filters could be flammable and therefore regular replacement is recommended.
Light bulb replacement
Note: replacement bulbs are not covered by warranty.
- Open the glass panel.
- Remove the aluminium filters.
- Unscrew the light bulb.
- Insert the replacement bulb into the lamp socket.
- Replace the aluminum filters.
- Replace the glass panel.
PARTS AND ACCESSORIES
| ITEM | REFERENCE NUMBER |
| LED bulb x2 | 792556 |
| Aluminum filter | 792429 |
| Recirculation carbon filter x2 | 792481 |
MANUFACTURER’S WARRANTY
You automatically receive a 2-year Manufacturer’s Warranty with the purchase of this Built-in integrated cooker hood covering parts and labor for servicing within the United Kingdom and Ireland.
Fisher & Paykel undertakes to:
Repair or, at its option, replace without cost to the owner either for material or labor any part of the product, the serial number of which appears on the product, which is found to be defective within TWO YEARS of the date of purchase.
Note: this Manufacturer’s Warranty is an extra benefit and does not affect your legal rights.
This Manufacturer’s Warranty DOES NOT cover
A Service call that is not related to any defect in the product. The cost of a service call will be charged if the problem is not found to be a product fault. For example:
- Correcting the installation of the product.
- Instructing you how to use the product.
- Replacing house fuses or correcting house wiring or plumbing.
- Correct fault(s) caused by the user.
- Noise or vibration that is considered normal, eg drain/fan sounds, refrigeration noises, or user warning beeps.
- Correcting damage caused by pests, eg rats, cockroaches, etc.
- Replacement light bulbs.
B Defects caused by factors other than:
- Normal domestic use; or
- Use in accordance with the product’s user guide.
C Defects to the product caused by accident, neglect, misuse, or ‘act of God.
D The cost of repairs carried out other than by a Fisher & Paykel trained and supported service technician or the cost of correcting such repairs.
E Normal recommended maintenance as set out in the product’s user guide.
F Repairs when the appliance has been dismantled, repaired, or serviced by other than a Fisher & Paykel trained and supported service technician or the selling dealer.
G Pick-up and delivery.
H Transportation or traveling costs involved in the repair when the product is installed outside the Fisher & Paykel trained and supported service technician’s normal service area.
Nothing in this Manufacturer’s Warranty is intended to, or does limit, any rights you may have under law to recover the costs of inspecting or returning the goods to us.
This product has been designed for use in a normal domestic (residential) environment.
This product is not designed for any commercial use (whatsoever). Any commercial use by a customer will affect this product’s Manufacturer’s Warranty.
Service under this Manufacturer’s Warranty must be provided by a Fisher & Paykel trained and supported service technician (refer to the ‘Customer Care’ section at the back of this book). Such service shall be provided during normal business hours.
This Manufacturer’s Warranty certificate should be shown when making any claim.
Please keep this user guide in a safe place.
CUSTOMER CARE
Before you call for service or assistance…
Check the things you can do yourself. Refer to your user guide and check that:
- Your product is correctly installed.
- You are familiar with its normal operation.
If after checking these points you still need assistance or parts, please refer to your nearest Fisher & Paykel trained and supported service technician, Customer Care, or contact us through our website fisherpaykel.com.
In the United Kingdom if you need assistance…*
Call the Fisher & Paykel Customer Care Centre and talk to one of our Customer Care Consultants.
Phone: 08000 886 605
Fax: 08000 886 606
Website: fisherpaykel.com
Postal address: Fisher & Paykel Appliances Ltd, Maidstone Road, Kingston,
Milton Keynes, Buckinghamshire, MK10 0BD
*If you call, write or contact us via our website please provide:
your name and address, model number, serial number, date of purchase, and a complete description of the problem.
This information is needed in order to better respond to your request for assistance.
Product details can be found on the inside of the chassis.
The filter needs to be removed to be able to see them.
Registration
Register your product with us so we can provide you with the best service possible.
To register your product visit our website: fisherpaykel.com
CUSTOMER CARE
Complete and keep for safe reference:
Model ____________________________________
Serial No.__________________________________
Purchase Date_______________________________
Purchaser___________________________________
Dealer______________________________________
Suburb______________________________________
Town_______________________________________
Country_____________________________________
© Fisher & Paykel Appliances 2022. All rights reserved.
The models shown in this guide may not be available in all markets and are subject to change at any time.
The product specifications in this guide apply to the specific products and models described at the date of issue. Under our policy of continuous product improvement, these specifications may change at any time.
For current details about model and specification availability in your country, please go to our website or contact your local Fisher & Paykel dealer.
GB IE
104040E 06.22


























