TOYOTOMI OM-180 Instantaneous Oil-Fired Water Heater

IMPORTANT
THIS APPLIANCE SHOULD BE INSTALLED BY A LICENSED, AUTHORIZED PERSON(S) DUE TO THE NECESSITY OF MAKING ELECTRICAL, WATER AND FUEL CONNECTIONS. RETAIN THIS MANUAL FOR FUTURE REFERENCE. CHECK LOCAL CODES AND ORDINANCES FOR PERMITTED USE.
CAUTION
THIS WATER HEATER SHALL NOT BE USED FOR COMMERCIAL USE OR FOR ANY PURPOSES OTHER THAN HOT WATER SUPPLY USES. OTHER USAGE MAY CAUSE A MALFUNCTION OR SHORTEN ITS SERVICE LIFE. DO NOT REMOVE THE RATING PLATE AND LABELS FROM THE WATER HEATER UNIT.
SAFETY TIPS FOR INSTALLATION
BE SURE TO FOLLOW THE FOLLOWING INSTRUCTIONS.
The instructions which are contained in this manual are classified into the following two types, which are “WARNING” and “CAUTION”. These instructions are intended to provide important information for safe operation.
“WARNING” indicates the possibility of causing the user a fatal accident or serious injury if the water heater
is incorrectly operated.
“CAUTION” indicates the possibility of causing the user injuries or material damages if the water heater is incorrectly operated.
WARNING
- Never use any fuel other than ASTM (AMERICAN SOCIETY FOR TESTING AND MATERIAL) D3699 1-K Kerosene, D396 Low Sulfur No. 1 or No. 2 Fuel Oil, or ASTM D975 Ultra Low Sulfur Diesel (ULSD). You are recommended to use the low sulfur fuel.
NEVER USE GASOLINE! Use of such fuels can result in an explosion and/or fire and cause injury. - Improper installation, adjustment, modification, or service and maintenance by an unauthorized person may cause SERIOUS UNIT DAMAGE, BODILY INJURY, HAZARD OR PROPERTY DAMAGE. This unit should be installed by a licensed, authorized person(s) due to the necessity of making electrical, water and fuel connections. Refer to the installation manual and the operation and maintenance instructions for assistance, or consult your dealer for further information.
- HAZARD OF ELECTRICAL SHOCK! Before removing any access panels of water heater for service, make sure the electrical supply to the water heater is shut off. Failure to do this may result in HAZARD, SERI-OUS BODILY INJURY, OR PROPERTY DAMAGE.
- Check and comply with all state, local codes and ANSI Z21.22 that may apply to water heater(s) before beginning the installation.
- This water heater is designed to be used no more than 4,922 FT. (1,500 m) above sea level. When the water heater is installed with the flue pipe at altitude of higher than 1,640 FT. (500 m) ~ 4,922 FT. (1,500
m) above sea level or is installed with the chimney adapter at altitude of higher than 3,280 FT. (1,000 m) ~ 4,922 FT. (1,500 m), adjustments are needed.
Ask your local dealer.
The water heater may have a failure of combustion at a high altitude. - RISK OF INDOOR AIR POLLUTION AND FIRE. Be sure the exhaust pipe is properly installed and connect-ed. Aluminum tape provided may be used for sealing exhaust pipe connections.
CAUTION
- Keep the area around the unit clean and free of flammable materials.
- RISK OF FIRE AND ELECTRIC SHOCK. Do not apply any excessive force or pressure to the power supply cord. Make sure the plug is free of dust. Be sure plug fits the receptacle securely.
- Install a temperature and pressure relief valve on the water heater in accordance with local codes and ANSI Z21.22. See the page 6 for more details.
- When No. 2 fuel oil is used in an area where the temperature becomes less than 25˚F (-4˚C), it is recom-mended the use of an additive with the fuel to prevent congealing. Check with a fuel supply company for the proper additive and mix.
UNPACKING
- Unpack the unit carefully.
- Check to see if there are any loose screws that may have occurred in transit.
- Take accessories and the instruction manual out of the carton.
STANDARD INSTALLATION PARTS
The following standard installation kits are available:
- Direct or Force Flue venting
Use Flue Pipe Installation Kit (Part# 20476440) - Chimney Venting;
Use Chimney Installation Adapter Kit (Part# 20476430-Dia.5” / #20476415-Dia.4”)
For alternate installation methods, you may need to purchase additional accessories.
FLUE PIPE INSTALLATION KIT
(Part#20476440)

EXTENSION PIPE KIT
(Part#20476496)
CAUTION: Total length of the extension pipe between the water heater and the flue pipe must be no greater than 10ft. with a total of three bends.
NOTE
When using exhaust pipes always cover the exhaust pipe with the insulating cloth cover.
ACCESSORY PARTS (OPTION)


CHIMNEY INSTALLATION ADAPTER KIT
(Part#20476430 – Dia. 5″)
(Part#20476415 – Dia. 4″)
EXHAUST PIPE
ADAPTER
INTAKE PIPE TOP
EXTENSION FLUE PIPE
(Part#20476486)
9-1/2”(240mm)

NOTE:
This extension flue pipe is for wall thick-ness from 10-5/8 in.(270mm) to 18-1/8 in. (460mm).
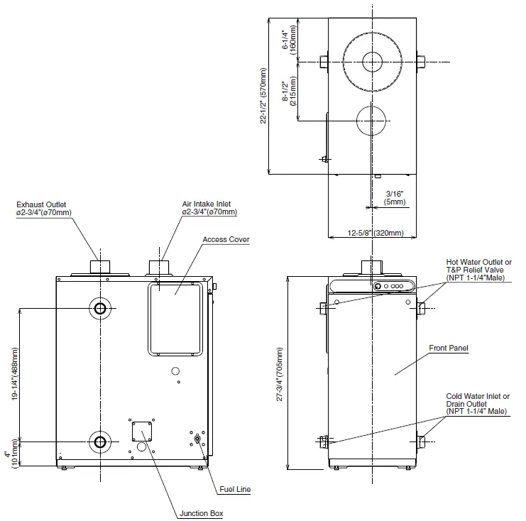
DIMENSIONAL OUTLINE

INSTALLATION
WARNING: This unit must be installed in accordance with these instructions, local codes, ordinances and/or in the absence of local codes, the latest edition of the national fire protection association (NFPA31) code.
Check and comply with all state, local codes and ANSI (AMERICAN NATIONAL STANDARD INSTITUTE) Z21.22 that may apply to water heater(s) before beginning the installation.
This unit should be installed by a licensed, authorized person(s) due to the necessity of making electrical, water and fuel connections.
SELECTING A LOCATION
CAUTION: When No. 2 fuel oil is used in an area where the temperature becomes less than 25˚F (-4˚C), it is recommended the use of an additive with the fuel to prevent congealing. Check with a fuel supply company for the proper additive and mix.
Select a place to install the water heater where water and electric supply are easily available.
- Select a place which is free of moisture, water spills, pools or snow.
- Select a place which draining can be done easily.
- Select a place which the fuel tank can be installed safely.
- Select a place which is free of combustible substances.
- The surrounding walls should be finished with noncombustible materials (concrete block, mortar, or plaster are acceptable).
- The floor on which the water heater is installed must prevent intensive vibrations or shock and must be strong enough to bear the weight of the water heater.
- Select a place where proper maintenance and repair can be provided for the unit after installation.
- Select a place sheltered from weather.
- Install the unit on a noncombustible surface in a stable position. If installing on combustible floor, the unit should be raised off the floor to prevent contact with combustible materials.
- Select a place with a suitable environment, which is non-corrosion and non-toxic.
- Locate the flue pipe termination where it is protected from snow, icing, grass, leaves, loose debrie and strong wind.
- Before making a hole in your wall for the flue pipe, make sure the area is free of electrical wires, gas pipes, water pipes, and other obstacles.
TOOLS NEEDED FOR INSTALLATION.
Tool
Phillips Head Screwdriver Electric Drill
Hole Saw, 4-3/4″ diameter Pipe Wrench
Use
Installation of flue pipe, etc. Drilling hole in wall for flue pipe Making hole in wall for flue pipe Connecting fuel pipe
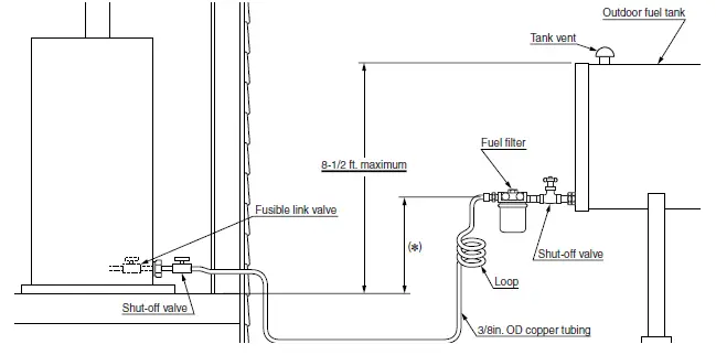
FUEL TANK INSTALLATION
The fuel tank must be purchased separately and installed by a qualified fuel supply technician.
NOTE: Fuel tank installation must comply with National Fire Protection Association Code NFPA 31 or locally applicable codes. Check with local building officials.
The following instructions should be followed for installation of a large capacity, gravity-fed fuel tank.
- Installation height of tank’s fuel outlet should be at least 16 in. above floor surface upon which the water heater rests.
- To avoid excess fuel pressure to water heater, the top of fuel tank should be no more than 8-1/2 ft. above the bottom of the unit.
- The inlet fuel pressure must not exceed 2.5 PSI. If the inlet pressure exceeds 2.5 PSI, a pressure reducer (Part #10005099) must be used.
- Fuel tank should be located at least 6 ft. away from all heat sources.
- 3/8″ OD copper tubing should be used for the fuel line.
- To prevent air locks in the fuel line, the fuel line should be smooth with no inverted U-shaped line or sharp bends.
- Install a UL listed fuel filter at the fuel tank outlet. Shut-off valves should also be installed on the fuel line and connected to the tank as shown below. Unit should have a separate fuel line from fuel tank.
NOTE: An additional shut-off valve installed next to the exterior wall will minimize the amount of fuel to be drained should the water heater need to be disconnected. If the valve is inside the building, a fusible link type (Part #10005597) is recommended.
- All external tank must be vented.
- Install a UL listed fuel filter at the fuel tank outlet.
Specifications required of this fuel filter are as follows:
Type of Fuel: ASTM D3699 1-K kerosene, ASTM D396 Low Sulfre No. 1 or No. 2 Fuel Oil, or ASTM D975 Ultra Low Sulfur Diesel (ULSD)
Rated Filtering Capacity: 2 GPH (Minimum) - The fuel supply tank must be positioned as to allow gravity feed to the unit and high enough to reduce trapped air in the fuel line. Please refer to Section “D”, page 8 in the Operation and Maintenance Instructions for the procedure to remove trapped air. (✽)
NOTE: If the maximum height is exceeded, a fuel pressure limiting valve is required. Part No. 10005099 has 3/8 in. (N.P.T.) inlet and outlet female openings to accept the fuel line fittings.
NOTE: Fusible Link Valve (#10005597)- It is most important that the valve, depending on its use, be fully opened or fully closed.
- The top nut on the valve (below the turn handle) is sealed and should never be tightened or removed.
- When installing fuel lines to the valve, be sure to check for fuel leakage.
- A LEAKING VALVE SHOULD ALWAYS BE REPLACED.

REMOVING AIR TRAP
When operating for the first time or when refueling an empty tank, air may be trapped in the fuel line, mak-ing ignition difficult. In this situation, after removing the trapped air thoroughly from the fuel filter at the fuel tank outlet, follow the procedures below:
- Press “POWER SWITCH” to “OFF” position. Disconnect the power supply cord.
- Place a small container under the fuel strainer located inside the water heater.
- Loosen the screw on top of the strainer. Immediately wipe off any spilled fuel.
- Remove the trapped air thoroughly. Failure to remove all the air will cause a noisy fuel pump, improper ignition and flame failure.
- Tighten the screw after removing trapped air.
- Plug into the receptacle. Press “POWER SWITCH” to “ON” position.

NOTE: In the event of an ignition failure, press “POWER SWITCH” to “OFF” position and after 10 seconds press “POWER SWITCH” to “ON” position once again.
TEMPERATURE AND PRESSURE RELIEF VALVE INSTALLATION
At the time of installation, a temperature and pressure relief valve complying with the standard for Relief valve for Hot Water Supply System, ANSI, shall be installed in the threaded fitting on the water heater. Local codes should govern the installation of the relief devices.
Specifications required of this temperature and pressure relief valve are as follows:
- Inlet (male): 3/4 in.
- Temperature relief: 210°F
- Pressure relief setting: 150PSI
- Rated capacity: Min. 148,000 BTU/H
(a) No other valve should be placed between the relief valve and the water heater.
(b) Discharge from the relief device is routed to a suitable place for disposal when relief occurs.
(c) No reducing coupling or other restrictions should be installed in discharge line.
(d) Discharge line should be installed to allow complete drainage of the water heater.
Note: Manual operation of pressure relief valves should be done at least once a year.
PLUMBING
WARNING: Plumbing should conform to proper plumbing methods, and in conformance with local codes or regulations.
A licensed plumber familiar with local codes and ordinances should install the OM-180.
CAUTION: An ANSI (AMERICAN NATIONAL STANDARD INSTITUTE) listed temperature and pressure relief valve should be installed at the hot water outlet connection of the heater at the time of installation. Local codes should govern the installation of relief devices.
If a check valve or one-way valve is required on the cold water supply line, it is recommended that an expansion tank (100 psi, 8 gal. Min.) should be installed on the hot water supply line. When the unit is to be installed as a replacement water heater, it is important to determine whether a check valve has been installed or not.
Remove the check valve before installation of the unit unless a check valve is required by local code.

In order to prevent the water heater from being damaged or developing a leak, regardless of being used in a cold, warm or hot region, the cold water supply piping, hot water supply piping, drain pipe, check valve, valves, expansion tank, and temperature and pressure relief valve should be protected with sufficient insulation materials to prevent freezing (by wrapping with heat insulation or by equipping with a freeze prevention heater).
Do not use a smaller pipe for connection at the hot water outlet. Using a smaller pipe for connection will cause a greater air layer in the top of the heat exchanger not allowing water to cover the temperature sensor. Install a pipe as shown in the diagram when using a smaller pipe.
HEATING SYSTEM PLUMBING
NOTE: Select a place where the heating piping for the water heater and end convector can shortened as much as possible.
- Make sure the piping for the convector is laid-out properly, and also check for leakage with a pressure test.
- Circulation pump capacity should be selected in accordance with the water head loss caused by the required maximum flow and the longest piping.
- Install heat insulation material on the hot water piping to prevent heat loss.
- In closed systems we recommend the use of an antifreege solution to prevent freezing and corrosion. Check with the plumbing installer for the proper mix.
- Copper or stainless steel or cross-linked polyethylene pipe should be used for the main and branch pipes.
- Be sure to connect a hot water pipe with the Expansion Tank, and install at the inlet side of the Circulation Pump.
- Install an Air Separator and Air Release Valve in the hot water pipe to release air inside of the pipe.
- Be sure to install a bypass circuit. (Closing the hot water pipe with a thermal valve or temperature con-trol valve may cause problems in the Circulation Pump.)
- Be sure to install unions in the inlet and outlet sides for easy connections and/or removal.
- Be sure to install a pressure relief valve on the intake side of the circulation pump used for the heating piping. Set the pressure relief valve pressure to correspond to the capacity of the expansion tank. See the items related to setting the pressure relief valve pressure and selection of the expansion tank con-cerning the capacity of the closed expansion tank.
- Use the following water quality when filling the system.
| Description | pH | Chloride | Hardness | Residual Chlorine |
| Maximum Levels | 6.5 to 8.5 | 0.0067 Oz/gal. (50 mg/L) | 0.0208 Oz/gal. (150 mg/L) | 0.00027 Oz/gal. (2 mg/L) |
Selecting an Expansion Tank
Select an expansion tank by referring to the following calculation formula and the calculation formulas pro-vided by the manufacturers of tanks sold commercially.
Expansion Tank Calculation Formula

Vo (gal)= Water heater’s heat exchanger volume + convector capacity + piping holding capacity (See the table below).
| Water holding capacity per foot of copper pipe. | Nominal diameter (in.) | 1/4 | 3/8 | 1/2 | 3/4 | 1 | 1-1/4 | 1-1/2 |
| Holding capacity (gal/ft) | 0.0040 | 0.0083 | 0.0133 | 0.0269 | 0.0455 | 0.0680 | 0.0953 |
| Water holding capacity per foot of tap water line. | Nominal diameter (in.) | 1/2 | 3/4 | 1 | 1-1/4 | 1-1/2 |
| Holding capacity (gal/ft) | 0.0161 | 0.0298 | 0.0483 | 0.0886 | 0.1095 |
| Expansion coefficient of Water | Temperature | 176˚F (80˚C) |
| Coefficient of Expansion | 0.0291 |
Supplying water to and releasing air from the heating piping.
- When supplying water to the heating piping, close the valve 1, then open the heating piping’s drain valve and supply valve and fill the piping with water.
Let the supply water pressure be lower than the set pressure on the pressure relief valve. - Close the drain valve when circulating water starts to come out of the drain outlet, then open the air release valve in the heating piping and release the air out of the piping.

- Open the valve 1 and run the circulation pumps, circulating water through the piping while releasing the air out. The air will be efficiently released from the pipes if the air is released from the heating piping once with each circuit of the water in the piping.
- After circulating water through the piping for approximately 10 minutes, close the supply water valve, then close the air release valve.
Plumbing Example (For Heating)

Plumbing Example (For both Hot water supply and Heating)

CAUTION: Always install the mixing valve on the hot water circuit piping.
PERMANENT WIRING INSTALLATION
WARNING: TO AVOID ANY RISK OF FIRE AND ELECTRIC SHOCK. Make sure the main circuit breaker and power supply cord is disconnected before servicing. Electric shock may cause serious injury. It is recommended that installation should be conducted by a Licensed Electrician.
PROCEDURE FOR PERMANENT WIRING
POWER SOURCE: 120V AC, 60Hz single phase
- Turn off the main circuit breaker. Disconnect power supply cord from the power source.
- Remove the four (4) screws and junction box cover on the left side of unit.
- Disconnect the ground wire (green) from the power supply cord bracket.
- Disconnect the two power supply wires from upper side of the terminal.
- Squeeze the strain relief with an adjustable pliers to remove the plastic bushing from the unit. Remove the power supply cord.
- Replace the strain relief bushing to the power supply cable and insert the cable into the hole of the left side of unit. Connect the ground wire to the power supply cord bracket and power wires to the terminal.

- Affix the junction box cover to the unit and insert screws.
DIFFERENTIAL SWITCH AND DIP SWITCH
NOTE: Make sure that the power supply cord is disconnected when changing the position of DIP Switch is selected.
The differential switch on the main circuit board controls does not change the heat exchanger water temper-ature. The switch can be set at a delta (on/off) of 3.6˚F (2˚C), 18˚F(10˚C), or 36˚F (20˚C). A higher delta reduces burner short cycling.
NOTE: The position of DIP Switch is set to 18˚F differential from factory.
- Select the position Differential Switch by the DIP Switch (SW1).
- Select the differential range by the DIP Switch, No.2 or No.3.
- Make sure that the DIP Switch No.1 is “ON” position.

| No. DIFF | 3.6˚F (2˚C) | 18˚F (10˚C) | 36˚F (20˚C) |
| 3 | OFF | OFF | ON |
| 2 | OFF | ON | ON |
| 1 | ON | ||
WIRING FOR A CIRCULATION PUMP
(AVAILABLE FROM A PLUMBING SUPPLY COMPANY)
This water heater is equipped with a power terminal for a circulation pump. You can operate the circulation pump in conjunction with the power switch of the water heater by connecting the pump to the “K” terminal of the circuit board.
When the power switch is “ON”, the power terminal for the circulation pump “K” constantly outputs AC120V. Any circulation pump that operates in AC120V and consumes 300W or less can be connected to the power terminal “K”. Use the attached lead wire for circulation pump for wiring according to the instruction of diagram below.
- Connect to the “K” terminal of the circuit board.

- Connect to the circulation pump using the attached coupler.
See the wiring diagram below for wiring to the circuit board.
How to use the coupler

WIRING FOR A TIMER
(AVAILABLE FROM AN ELECTRICAL SUPPLY COMPANY)
This water heater is equipped with the connection terminal for the timer. This terminal has no-voltage (also known as dry contacts) contact. You can operate the unit with the timer by connecting the timer (option) to the terminal for timer connection “L” on the circuit board.
When the power switch of the water heater is “ON” and the signal from no-voltage contact on the timer con-nection terminal “L” is “OFF”, the water heater stops operation and the operation lamp blinks to indicate stand-by mode.

Remove the short-circuit piece connected to the “L” terminal and connect the cord of the timer (option). Other available timers can be connected to the unit only through a relay. Use a relay with gold contact.

WARNING: Do not energize the connection terminal of the timer with voltage, as it may damage the circuit
INSTALLATION OF THE UNIT AND FLUE PIPE
SAFETY TIPS
WARNING:
- The flue pipe opening must be fully exposed to outside air. Do not vent into a garage, basement, under the floor, or into any enclosed area.
- Do not install the flue pipe in close proximity to other objects or materials.
- Before making a hole in your wall for the flue pipe, make sure the area is free of electrical wires, gas pipes and other obstacles.
- Do not install the flue pipe where it will be exposed to heavy snow, collected leaves, or strong winds. IMPORTANT: In areas of heavy snow fall, ground surface clearance must be increased according to average snow falls.
In open areas with strong wind, a wind breaker may be necessary. - Do not install the flue pipe below the water heater.
- The exhaust pipe should be properly installed and connected. Aluminum tape may be used for sealing exhaust pipe connections.
- Always cover the exhaust pipe with the insulating cloth cover.
- If installed in building without an eave, a non-combustion eave should be installed directly above the flue pipe.
CAUTION:
Total length of the extension pipe between the water heater and the flue pipe must be no greater than 10 ft. with a total of three bends.
NOTE: When using extension pipes always cover the exhaust pipe with the insulating cloth cover.

INSTALLATION OF UNIT
- Install the unit on a noncombustible surface in a stable position. If installing on a combustible floor, the unit should be raised up off the floor to prevent contact with combustible materials by using brick, con-crete block or similar non-combustible material.
If minimum clearances between the unit and combustible construction are maintained, no ventilation openings are needed in the closet door when installed in a closet.- UNIT (INDOOR CLEARANCE)
Left side 6 in. (150 mm)
Right side 6 in. (150 mm)
Rear side 6 in. (150 mm)
Front 2 ft. (600 mm)
From front door to closet 6 in. (150 mm)
Top 2 ft. (600 mm)
- If the combustible material is protected with non-combustible material such as 0.024 (24- gage) sheet metal with ventilated air space, the following clearance is applied.
Left side 2 in. (50 mm)
Right side 2 in. (50 mm)
Rear side 2 in. (50 mm)
NOTE: It is important to keep enough clearance for the purpose of maintenance, repair and possible servicing.
We recommend the following clearance for servicing.
Left side 2 ft. (600 mm)
Front 5 ft. (1.5 m) - FLUE PIPE (OUTSIDE CLEARANCE)
From flue pipe top to combustible surface: Vertical 24 in. (600 mm)
From flue pipe top to combustible surface: Horizontal 24 in. (600 mm) - EXTENSION EXHAUST PIPE (WITH INSULATING CLOTH)
From extension exhaust pipe to combustible surface: Vertical 3 in. (76 mm)
From extension exhaust pipe to combustible surface: Horizontal 3 in. (76 mm)
- UNIT (INDOOR CLEARANCE)
- Check local codes regarding installation of the water heater, water piping and fuel tank.
INSTALLATION OF FLUE PIPE
IMPORTANT: Check and comply with all state and local codes that may apply to water heater before beginning installation.
- Select unit location. Allow clearances as indicated above between the unit and all other materials
- Make sure that the outside area to where the flue pipe will reach is clear of any objects.
NOTE: Make sure wall thickness is not greater than 10-1/2 inches. For walls between 10″ and 18″ use Flue Pipe Extension Part #20476486. Flue pipe can be installed through any standard building materials. - For standard installation, position the hole for the flue pipe. (See diagram on page 16)
NOTE: The water heater should be installed on a sturdy floor that is level and flat. - Cut the hole for the flue pipe from inside the room. Use a 4-3/4″ diameter hole saw attached to an electric drill. The opening on the inside wall should be slightly higher than the outside opening (approximately 1/4″) so that the flue pipe will slope slightly downward (approximately 3 degrees) after it is installed. This will enable condensed moisture to drain from the flue pipe to the outside and prevent rain or snow from entering from outside after installation.

- Install the inner flange and the flange gasket to the inner flue pipe and insert the inner flue pipe through the wall hole from inside the room. Make sure the arrow on the inner flange is pointing up and secure the securing band with a screw and a nut through two holes of the fixing band. Secure the inner flue pipe to the wall with the four screws provided with the unit.

- Install the flange gasket to the outer flue pipe. Secure the outer flue pipe to the wall by turning it clockwise.
Continue turning the outer flue pipe until the inner and outer flanges fit tightly against the inner and outer walls.
- Insert the flexible exhaust pipe to the flexible bent joint until it locks. Insert the flexible bent joint to the exhaust opening of the inner flue pipe until it locks.
NOTE: The flexible exhaust pipe and flexible bent joint have claws to prevent them from being separated.
When connecting them, raise the claws a little.
These claws may be raised already depending on production lots. If this is the case, insert them as they are. Do not attempt to draw a pipe off in any event while the claw is raised. Otherwise, it could cause a leak of exhaust gas.
- Slide the insulating cloth cover over the flexible exhaust pipe and the flexible bent joint.

NOTE: When disconnecting the extension pipe (such as flexible pipe and flexible bent joint), turn clockwise and pull apart.
- Remove the screw from the exhaust opening of the unit. Insert the flexible exhaust pipe to the exhaust opening and secure them with the screw.
NOTE: Seal all connections of the pipes with the aluminum tape.
CAUTION:- Do not attempt to insert the exhaust pipe forcibly.
- If O-ring is damaged, it could cause a leak of exhaust gas.
- If the exhaust pipe is inserted after raising the claw, the pipe is locked in position with the claw so that the pipe will become unable to remove.
- If it is attempted to remove forcibly, the exhaust pipe may be broken.
- Connect rubber joints to the both ends of the inlet hose.

- 11. Place the hose bands on the rubber joints and attach the hose as shown below. Tighten the bands.

TEST RUN

PREPARATION
- Make sure the flue pipe is installed properly.
- Make sure the fuel tank is installed properly. Make sure there is no fuel leakage.
- Make sure there is no water leaking from piping. (Plumbing)
- Make sure electrical connections and grounding are wired properly.
- Make sure the floor is stable and can withstand strong vibration and the weight of a full water heater.
- Make sure the area is free of flammable materials.
- Check for air trapped in fuel lines.
OPERATION
- Open the fuel supply valve.
- Press “POWER SWITCH” to “ON”. “OPERATION” lamp will come on. Automatic operation is based upon the temperature of water inside the heat exchanger. “BURNER” lamp is lit when the burner is in its oper-ation mode.
NOTE: When operating for the first time or after running out of fuel, ignition may not occur because of air in the fuel line. In that case, remove air as described in the previous section.
CHIMNEY INSTALLATION
This unit is a sealed combustion system and as an installation option it may be connected directly to a chimney. Using this option, room air is used for combustion and the exhaust gases are vented into the chimney to the outside.
IMPORTANT:
- This appliance should be installed by a licensed, authorized person(s) due to necessity of making electrical, water and fuel connections. Check local codes and ordinances and/or the latest edition of the National Fire Protection Association Standard for the Installation of Oil-Burning Equipment. NFPA-31.
- A Barometric Draft Regulator must be used in the exhaust pipe to stabilize flue draft. It is required that a UL-listed (Underwriters Laboratories) damper be used. The Barometric Draft Regulator must be installed in accordance with NFPA-31.
- Installation in an unconfined space in buildings of conventional frame, brick or stone construction, infiltration normally is adequate to provide air for combustion and ventilation.
For confined spaces, openings for air intake and venting must be provided. (See Fig.1.) Or connect Air Intake Inlet port directly to outside air with 3 or 4 inch aluminum pipe.
Check local codes and ordinances and/or NFPA-31 Code for specific details. - It is recommended that the OM-180 hot water heater be connected to an independent chimney flue.
- Select a place that can draw in sufficient air for combustion. The air intake hole should be placed in a spot that can draw in outside air near the floor.
Required opening area (confined space) = 155 in2 × 2 places
CAUTION:
- In case another appliance is connected to the same chimney flue (2 or more units), it may be necessary to comply with state and local codes.
- Connecting the OM-180 hot water heater with two or more appliances using the same chimney flue may affect the performance of the hot water heater.
- Total length of the exhaust pipe and the chimney liner must be no greater than 25 ft. Maintain the shortest piping possible by selecting a location as close as posssible to the chimney.
NOTE:
- To prevent against exhaust leaks, make sure all connections are properly fitted and seal connection with aluminum tape or heat resistant sealing material.
- Chimney liner should be the same size as the exhaust pipe. Exposed exhaust pipe should be protected with appropriate insulation.
- For a chimney installation, use accessory (option) parts.
Chimney Installation Adapter kit
(Part #20476430-Dia.5“ or Part #20476415-Dia.4”)
Installation of Chimney Example (confined space)

INSTALLATION OF EXHAUST PIPE ADAPTER
Remove the screw from the exhaust outlet of the unit. Insert the exhaust pipe adapter to the exhaust outlet and secure with the screw.

INSTALLATION OF INTAKE PIPE TOP
Insert the intake pipe top to the intake opening of the unit.

TOYOTOMI U.S.A., INC.
604 Federal Road, Brookfield, CT 06804
www.toyotomiusa.com
This manual supersedes earlier editions.




























