GuideLed SL 13051.1/13052.1 CG-S Emergency Evacuation Safety Light

![]() | Target group: Skilled electricians |
![]() | Intended Application: Emergency Lighting, not suitable for private use |
SAFETY INSTRUCTIONS
- The device shall only be used for its intended purpose and in undamaged and flawless condition
- Only genuine Eaton spare parts may be used for replacement and repair
- When working on the emergency luminaire the system must first be blocked, battery operation must be interrupted and mains must be switched off. The picture below shows the indication label on the emergency luminaire.
- Prior to its initial operation, the luminaire will have to be checked in line with the instructions (see installation sector)
- Carry out the marking of the emergency luminaire: Assign the circuit and the luminaire No. and enter them.
- Recording in the minutes shall be performed in compliance with the national regulations (is deleted in case of automatic recording).
- Any foreign object shall be removedfrom the luminaire prior to its initial operation!
- Observe the national safety rules and regulations to prevent accidents as well as the safety instructions included in these operating instruction marked with


Conformity with standards
Luminaire for emergency lighting acc. to EN 60 598-2-22 for connection to safety luminaire systems acc. to EN 50172, DIN VDE 0100-560 and DIN VDE V 0108-100-1.
Designed, manufactured and tested according to DIN EN ISO 9001.
Installation / Operation
For the mounting and operation of electrical apparatus, the respective national safety regulations as well as the general rules of engineering will have to be observed!


The luminaire should be positioned so that prolonged staring into the luminaire at a distance closer than 1,15m is not expected.
Technical Data
| Power input | 220 – 240 V AC, 50/60 Hz, 176 – 275 V DC | |
| Housing material | PC, Aluminium | |
| Housing colour | white RAL 9016 | |
| Luminous flux phiE/phiNom at the end of rated operating time | 100% | |
| Light source | HighPower LED 1 x 2,2 W | |
| Insulation class | SL 13051.1 SL 13052.1 | II I |
| Protection category acc. to EN 60529 | SL 13051.1 | Nach dem Einbau in die Decke hat die Vorderseite der Leuchte die Schutzart IP41 / Modulgehäuse: |
| IP 20 Once installed in the ceiling, the luminaire face is rated IP41 / module enclosure: IP 20 | ||
| IP 41 | ||
| Permissable ambient temperature | -20 °C .. +40 °C | |
| Terminals | SL 13051.1 | plug-in terminal 3 x 2 x 2.5 mm² (max. 6 A) plug-in terminal 2 x 2.5 mm² for L + N (max. 6 A) screw terminal 2 x 2.5 mm² for PE |
| Gewicht Weight | 0,43 kg | |
| Current consumption battery operation | 20 mA | |
| Connection power mains operation | 8,0 VA / 3,9 W | |
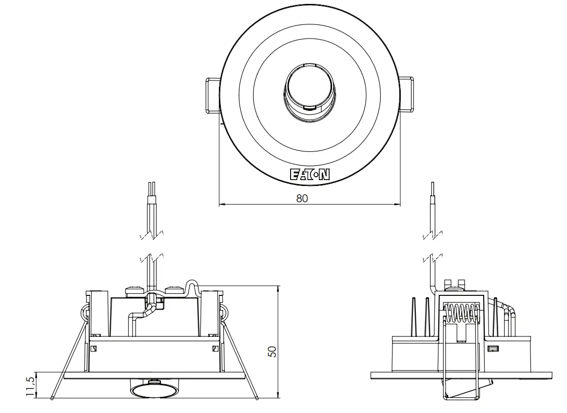
Construction of the luminaire / Dimensional Drawings
GuideLed SL 13051.1 CG-S Recessed ceiling mounting



Luminaire for 5 lx vertical illumination of point of emphasis

Module enclosure
Needed height for introducing into the intermediate ceiling: approx. 100 mm

GuideLed SL 13052.1 CG-S Ceiling mounting

![]() | LEDs are ESD-sensitive |
![]() | Do not stare at the light source |

GuideLed SL additional enclosure
Optional: For more space for wiring and cable entry fix the optional available enclosure to the ceiling and connect it electrically. Introduce wiring into the luminaire and connect it. Fix the luminaire to the additional enclosure with the included screws.
Now push the luminaire cover on the bottom part by attending to the right positioning (additional cable entries, 2).
Addressing
Special LED-Converter with integrated monitoring module for individual monitoring of luminaries (monitoring of the supply and automatic detection of faulty supply of the LED-module) with 20 addresses.
The advanced switching and monitoring mode is only available in combination with CEAG CGS-technology

| address switch 1 | address switch 2 | Luminaire address |
| 0 0 0 ….. 1 1 1 ….. 2 2 2 ….. 2 | 0 1 2 ….. 0 1 2 ….. 0 1 2 ….. 9 | Monitoring off 1 2 ….. 10 11 12 ….. 20 not permissable not permissable ….. not permissable |
Servicing / Maintenance
Observe the relevant national regulations applying to the maintenance, servicing and checking of electrical apparatus.
In case of returns you need a RMA – number from us. For further information see www.eaton.com
The light source of this luminaire is not replaceable; when the light source reaches its end of life the whole luminaire shall be replaced
Disposal / Recycling
When disposing of defective devices, comply with valid regulations for recycling and waste disposal. Plastic parts are marked with corresponding symbols.


At Eaton, we’re energized by the challenge of powering a world that demands more. With over 100 years experience in electrical power management, we have the expertise to see beyond today. From groundbreaking products to turnkey design and engineering services, critical industries around the globe count on Eaton.
We power businesses with reliable, efficient and safe electrical power management solutions. Combined with our personal service, support and bold thinking, we are answering tomorrow’s needs today. Follow the charge with Eaton. Visit eaton.com.
You will find your contact partner at www.eaton.com.
Eaton
EMEA Headquarters
Route de la Longeraie 7
1110 Morges, Switzerland
Eaton.eu
CEAG Notlichtsysteme GmbH
Senator-Schwartz-Ring 26
59494 Soest, Germany
Tel.: +49 (0) 2921 69-870
Fax: +49 (0) 2921 69-617
E-mail: [email protected]
Web: www.eaton.com
© 2021 Eaton
Alle Rechte vorbehalten
Publikations-Nr. MN451039ML
Bestell-Nr. 40071860326_C
September 2021
























