
SAMSUNG NX60T8111SS Front Control Slide-in Gas Range

Signature Features
Ready2Fit™ Guarantee
- If your Samsung Front Control Slide-In Range doesn’t fi t your 30″ Freestanding Range cutout, enjoy $100* on us to cover any countertop modifi cation costs. Visit samsungpromotions.com/SlideInReady2Fit for details.
Fingerprint Resistant Finish
- Fingerprint resistant, for an everyday beautiful finish.
Flexible Cooktop
- Get to high heat quickly for searing meat or boiling water, or turn down to a simmer to make your favorite sauces. Easily slide your pots and pans across the seamless, edge-to-edge grates covering a 5 burner cooktop.
Available Colors
- Fingerprint Resistant Stainless Steel (shown)
- Fingerprint Resistant Black Stainless Steel

Features
- Ready2Fit™ Guarantee
- Fingerprint Resistant Finish
- Flexible Cooktop
- Large Oven Capacity – 6.0 cu. ft.
- Glass Touch Controls
- Edge-to-Edge Grates
- Storage Drawer
- Flexible Cooktop:
- Five Burner Cooktop
- Right Front: 17K BTU
- Left Front: 16K BTU
- Right Rear: 5K BTU
- Left Rear: 9.5K BTU
- Center (Round): 9.5K BTU
Convenience
- Wi-Fi Connectivity
- Voice-Enabled
- Self Clean
- Child Safety Lock
- Delay Start
- Auto Oven Light
- Kitchen Timer
- Sabbath Mode
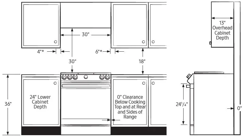
Installing Your Range
A: Cabinet opening 30″
IMPORTANT: If your cabinets are over 37″ high, you must install this range on a hard, heat-resistant support that raises the surface of the range so that it is about even with the countertop.
IMPORTANT: Consult with Installation Manual for detailed instructions before installing. All ranges must be installed with the Anti-Tip device that is included.
Recommended Locations for Gas Piping and Electrical Outlets
Power Source
120V/60Hz/20A
Total Power (BTU)
57,000 BTU
Black Enamel 5-Burner Cooktop
- Right Front: 17K BTU
- Left Front: 16K BTU
- Right Rear: 5K BTU
- Left Rear: 9.5K BTU
- Center (Round): 9.5K BTU Oven
- Capacity: 6.0 cu. ft.
- Bake
- Variable Broil: Low/High
- Bread Proof
Warranty
One (1) Year Parts and Labor
Product Dimensions & Weight (WxHxD)
Oven Interior Dimensions: 2413/16″ x 215/8″ x 195/8″
Outside Dimensions: 2915/16″ x 361/4-37″ (Adjustable) x 2811/16″
Weight: 200 lbs
Shipping Dimensions & Weight (WxHxD)
Dimensions: 331/16″ x 413/4″ x 305/16″
Weight: 225 lbs
Color
Fingerprint Resistant
Stainless Steel
Fingerprint Resistant
Black Stainless Steel
Model #
NX60T8111SS
NX60T8111SG
UPC Code
887276409184
887276409191
Actual color may vary. Design, specifications, and color availability are subject to change without notice. Non-metric weights and measurements are approximate.
©2020 Samsung Electronics America, Inc. 85 Challenger Road, Ridgefield Park, NJ 07660. Tel: 800-SAMSUNG. samsung.com. Samsung is a registered trademark of Samsung Electronics Co. Ltd.
















![Samsung Front Control Slide-in Electric Range With Air Fry [ne63t8511ss] User Manual Samsung Front Control Slide-in Electric Range With Air Fry [ne63t8511ss] User Manual](https://static-data1.manualsee.com/1/img/335/18027/2020/12/00-96.jpg)
![Samsung Front Control Slide-in Electric Range With Convectio [ne63t8311ss] User Manual Samsung Front Control Slide-in Electric Range With Convectio [ne63t8311ss] User Manual](https://static-data1.manualsee.com/1/img/338/18032/2020/12/Samsung-Front-Control-Slide-in-Electric-Range-with-Convectio-NE63T8311SS-featured.png)

