
Aqua Prime P50 Toilet Bowl
Instruction Manual
cersanit.ru
AQUA PRIME P50/AQUA PRIME P50 Z
Aqua Prime P50 Toilet Bowl



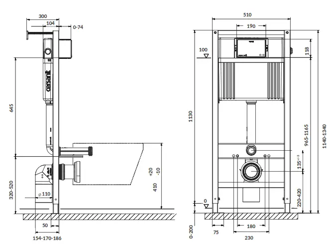
Determine the wall-hung toilet system location relative to the drain. To do this, place the wall-hung toilet system at the intended location and install the drain elbow in the required position. Drain elbow design allows you to perform the installation in three possible depth positions.
After the installation in the required position, secure the drain elbow with a clamp until it clicks.

- Determine the floor height after laying the finish coat.
Make a mark on the wall next to the wall upright at the installation location. - Lay off 1 meter vertically from the first mark and make a second mark.
- Determine the attachment points for the legs.
Their position can be changed in 4 directions. You can change the attachment points by changing the position of the leg supporting part inside the frame upright. - Put the frame to the required height. The frame is adjustable in height up to 20 cm. To do this:
– Loosen the leg fastening bolts;
– Holding the top of the frame, step on the supporting plates of the legs and pull the top part until the two marks are aligned: on the frame upright and on the wall;
– The frame is fixed in the selected position with the help of a locking device inside the legs.

- The frame is attached to the wall using two types of mountings:
– wall bracket of the «stud» type, which is in the scope of this wall-hung toilet system;
– multipurpose mounting of «Quick-fix» type. - Quick-fix allows you to mount the wall-hung toilet system on a straight and curved section of the wall at an angle of 45° – in the corner of the room;
- The «stud» type wall brackets allow you to install the wall-hung toilet system only on the straight section of the wall with a distance of up to 30 cm. Thus, the wall-hung toilet system can be mounted at a distance from the wall, for example, before the utility systems.
Procedure to prepare for the wall mounting installation:
- Screw the mountings to the frame; adjust the installation depth by screwing in or out the stud.
- Check that the frame is horizontal and vertical.
Mark the wall and floor to drill holes at these points.
They will hold the wall and floor support plates.

- Mark the base where the wall and floor mountings are attached;
- Disconnect the drain elbow;
- Pull back the wall-hung toilet system.

- Drill the holes and use the supplied plastic dowels for fixing.

- Place the frame in its previous position and, aligning it with the prepared holes, check that it is horizontal and vertical. You can change the position of the mounting base in the range of 360 ° relative to the wall plane;
- Adjust the tilt angle of the frame if required by rotating the wall mount stud and changing the height of the support leg extension;
- Fasten the support leg plates to the wall and floor;
- Fasten the support leg lock bolts;
- Install the drain elbow and secure it with a bracket;
- Install the plug on the drain pipe.
Before installing the water supply to the tank, you should remove the frame and pull the filling valve out of the tank.
To remove the frame, twist the plastic fasteners on the frame, pull the bottom edge of the frame towards you and then remove the upper edge.

- Unscrew the nut on the filling valve;
- Pull the valve out through the tank hole.
There are 4 points on the tank walls for water supply.
Choose an appropriate point and remove the plug from the mounting hole. If a fresh basket is installed on the side of your choice, remove it and install it on the opposite side. Fasten the sleeve to the outside of the tank.
To install the water supply section inside the tank, connect the angle shut-off valve, the side-port hose, the sleeve, and the landing ring;- When connecting the components, please use the tread seal tape;
- Tighten the supply pipe components by hand using no plumbing fixtures;
- Correctly connected supply piping is shown in Fig. 3;
- Screw in the top of the angle shut-off valve until it is installed in the tank.
Install the assembled supply piping inside the tank;- From the outside, screw the counterpart onto the sleeve by tightening it to the tank with a washer.

- Connect the water supply from the water source to the outside of the angle shut-off valve;
- Open the water supply;
- Check the tightness of the assembled supply piping.

- Put the filling valve back into the tank;
- Connect the flexible hose to the filling valve;
- Tighten it by hand.

- Put the fresh basket into the tank;
- The fresh basket is to be installed on the side opposite the filling valve, under the angle shut-off valve.

Place the frame on the tank. Insert the top first, then the bottom. Cover the screws on the plastic studs.

- Install the inspection hatch on the frame;
- Install the plug on the drain pipe;
- Install the studs for the wall-hung toilet;
- Mark the locations of the studs to prepare the holes in the cladding material.

- Cover the structure with sheet material and then complete the fine finishing;
- Make holes in the fine finish where the toilet studs are located;
- Secure the stud with a locknut and slide the corrugation on the stud;
- It is recommended that an inspection hatch be provided in the fine finishing. The hatch should be sized to allow maintenance and replacement of the system tank if required.

- The length of the stud for securing the toilet bowl should not be less than the sum of the thickness of the sealing nuts, locknut, and the end wall of the toilet bowl;
- Check the length of the stud before fixing the toilet bowl.

- To install the drain and filling pipes, install both pipes in the counterpart on the system drain elbow and on the filling pipe from the system tank. Mark the counterpart cuff
as shown in Figure 1; - Repeat the procedure by installing pipes in the counterparts on the toilet bowl. Make a mark flush with the plane of the outer walls of the toilet bowl as shown in Figure 2;
- Measure the distance between the marks as shown in Figure 3;
- Lay off the obtained distance with a tolerance of + 3 mm from the pipe edge and cut with a hacksaw as shown in Figure 4;
- File the pipe edge at the cut as shown in Figure 5;
- Install the pipes in the counterpart on the system drain elbow and on the filling pipe from the system tank.

- Install a soundproofing pad between the toilet bowl and the wall;
- Cut the pad edges flush with the walls of the toilet bowl;
- Please apply plumbing sealant to the wall joint.

To increase the service life of the drain valve and the filling valve, it is recommended to wash the rubber membranes in a soapy solution. The disassembly of the drain valve is shown in Figures 1-3. Disassembly of the shutoff valve is shown in Figures 4-6. Reassembly is in reverse order.
- The drain valve allows flushing in two modes: large and small water volume;
- Flushing is done by pressing a key on the button.
To drain a large volume of water – use a large key; to drain a small volume – use a small key; - By design, the drain valve is adjusted to a volume of 5 l and 3 l, respectively;
- To change the flush volume, it is necessary to change the position of the drain valve parts relative to each other by moving the slider along the vertical scale, rotating the lower part of the valve relative to the upper one, and setting the distance from the shut-off valve to the float on the drain valve to values according to the Table;
- For more questions on the valve adjustment, you can ask the service center specialists.
AQUA
8 800 555 29 91
cersanit.ru
http://cersanit.ru/qrservice

Before installing the water supply to the tank, you should remove the frame and pull the filling valve out of the tank.
To install the water supply section inside the tank, connect the angle shut-off valve, the side-port hose, the sleeve, and the landing ring;
Install the assembled supply piping inside the tank;





















