
Control Agencies
AWECv SERIES EC FAN AUTO/MANUAL MODULES

COMPLETE WITH ONBOARD 10vDC
MANUAL POTENTIOMETER
SUPPLY & SELECTION OF
N/O or N/C FAN ENABLE.
Awec-1 Auto/Manual Ec Fan Speed Control
- Made in Australia to Australian Standards.
- Multiple I/O versions : single, 3 way, 5 way.
- Auto / Manual inputs can be looped to other 24vAC relays etc.
- Manual potentiometer can adjust output from 0-10vDC.
- Potential Free (24v 1Amp max.) SPST Fan Enable Relay Output
…selectable by jumper as N/O or N/C potential free contacts. - Optional use Onboard 10vdc power supply for manual potentiometer signal source to save 3rd wire (10v source) from EC fan.
- 2 or 3 wire signal to EC fan (+ 2 wires if relay enable O/P required)
- Din rail mount low profile.
APPLICATION
The AWECv modules are intended for use as a low cost alternative to traditional plug in relays & potentiometers for Auto/Off/Manual EC fan speed interlocks & control.
The device is available in 3 versions – a Single output module AWECv-1, AWECv-3 or a 5 way version AWECv-5. The output signal to the EC fan is derived either from the
onboard potentiometer/s (in manual mode) or to pass out the 0-10vdc signal/s from an external control device ie BMS EC fan speed control outputs. The AWECv version comes with an optional use 10vDC power supply that can be used to power the onboard manual speed potentiometer saving the need to bring a 3rd wire (the 10v source) from the EC fan which reduces the typical connection from 3 wires to 2. The potentiometer shaft/knob can be removed exposing only a hexagonal hole to decrease the ability of tampering post commissioning manual fan speed settings if desired.
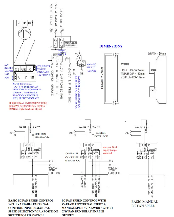
TERMINAL LEGEND
GO 24v NEUTRAL
D1 24v ACTIVE to energise relay 1 (Manual)
D2 24v ACTIVE to energise relay 2 (Auto)
Q1 & Q2 Auxiliary SPST N/O or N/C contacts
X External (AUTO) 0-10vdc signal input
0 EC Fan & potentiometer DC ground interlock
Y EC Fan 0-10Vdc output control interlock
10 10vDC Supply from EC Fan (If onboard supply not used)

HEVAC CONTROL AGENCIES PTY.LTD
www.hevac.com.au
613 95627888



















