AEM LSC22-002N Loudspeaker Controller

LSC22-002N Loudspeaker Controller
LSC22-002N Loudspeaker Controller ASM-LSC22 Installation and Operation Manual Supplement
This supplement contains installation and operation information that is unique to the LSC22-002N Loudspeaker Controller. Installation and operation information common to the LSC22-001 base unit can be found in the ASM-LSC22 Installation and Operation Manual.
Description
The LSC22-002N Loudspeaker Controller is identical to the LSC22-001 with the following exceptions:
- Changes to the faceplate text can be found by comparing Figure 1 to Figure 2.

- The LSC22-002N has NVIS Green A compliant backlighting.
- The INT PA speaker level output is replaced by a mic level CABIN PA MIC output.
- A new discrete output EXT/INT outputs a ground when front panel EXT PA is selected.
- Power switch function on the front panel is removed. When power is applied to the LSC22-002N, the unit is powered on without any other action.
Installation
For installation information and drawings, see ASM-LSC22 Section 2.0. Select the appropriate revision of the drawing for the serial number of the unit. The drawings specific to this derivative are listed below and can be found at the end of this supplement.
Installation Drawings
| DOCUMENT | REV. | DESCRIPTION | TYPE | SERIAL NO. |
| Part No. | ||||
| LSC22-002N-403-0 | 1.10 | Loudspeaker Controller | Interconnect | 70939+ |
| LSC22-002N-403-0 | 1.00 | Loudspeaker Controller | Interconnect | 70938-70938 |
| LSC22-002N-405-0 | 1.00 | Loudspeaker Controller | Connector Map | 70938 and up |
| LSC22-002N-922-0 | 1.00 | Loudspeaker Controller | Mechanical Installation | 70938 and up |
Section 3.0 Operation
- Ignore any reference/functions to AUX audio input from the rear dmin connector.
- The CHIME input is only and always available on the INT PA audio output. It is not dependant on the front panel EXT PA/INT PA switch position or VOL control. It is summed with the appropriate inputs when the EXT PA/INT PA Switch is set to INT PA:

- When the EXT PA/INT PA switch is set to the EXT PA position, a ground is output on EXT/INT.
- There is no front panel On/Off control in the detent position, unit is always on with power applied. However, the physical detent position on the control still exists.
Audio output remains at a minimum whether the volume knob is set ccw to the detent or fully ccw into the detent position.
Message 3 and Siren audio programming now require the power input to the LSC22 be removed and is not dependent on the VOL knob position.- The CHIME input is not affected by the -3dB Select discrete input..
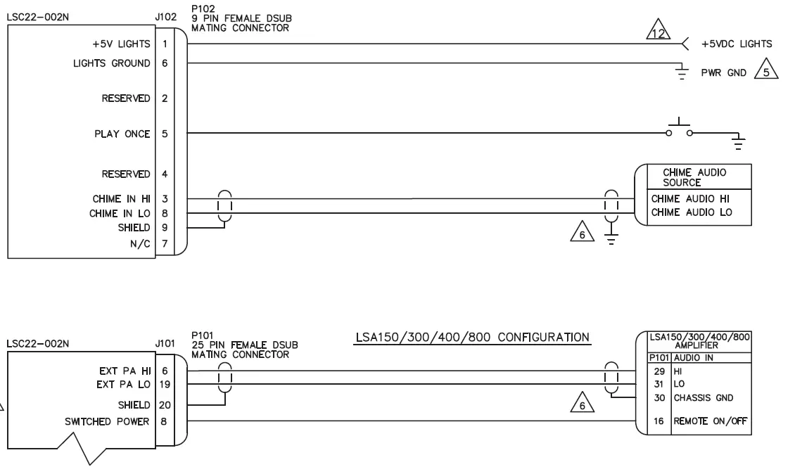
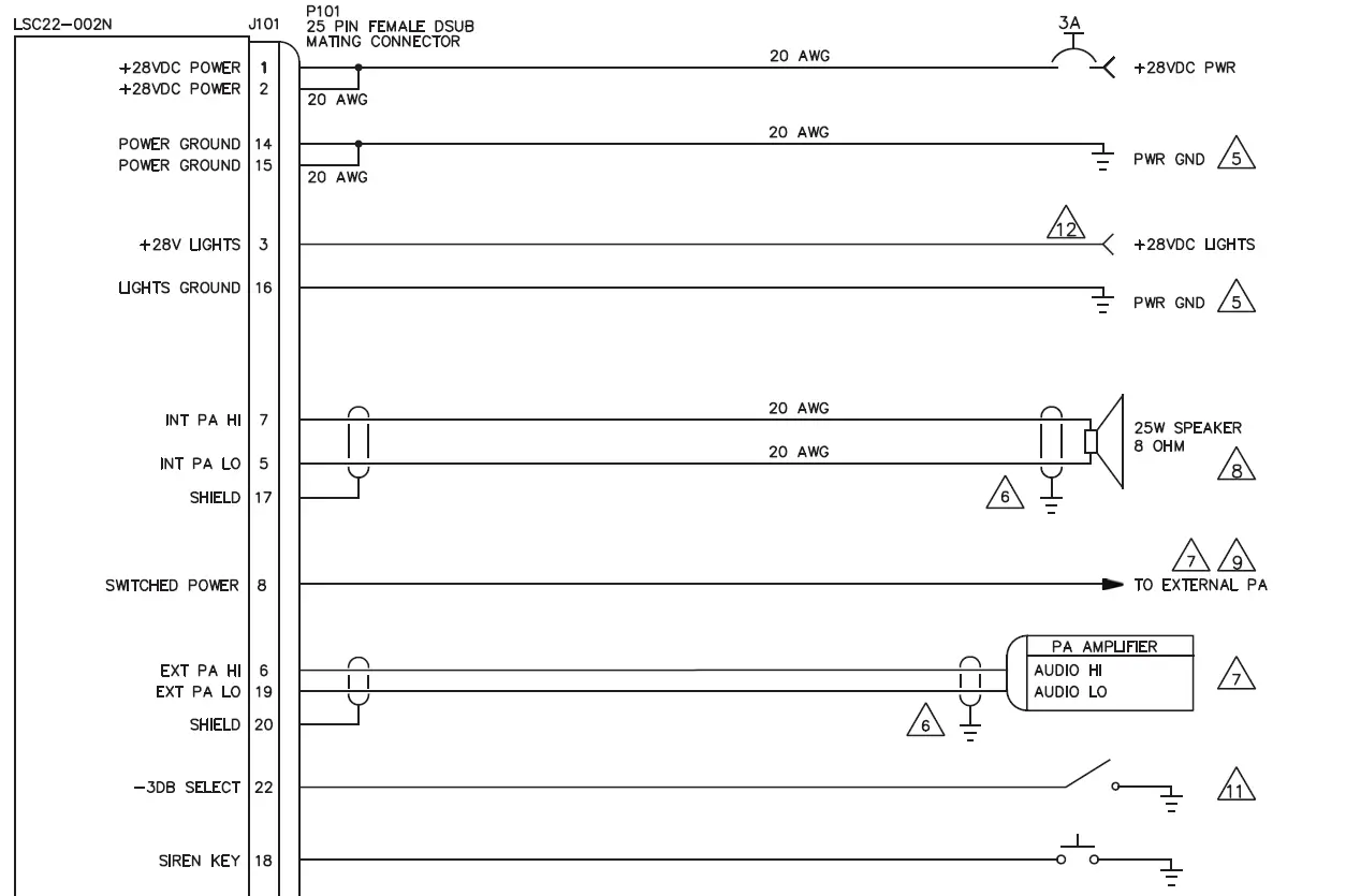
INSTALLATION NOTES
NOTES:
- ALL WIRES SHOULD BE 22 AWG UNLESS OTHERWISE SPECIFIED. ALL UNSHIELDED WIRE SHALL BE SELECTED IN ACCORDANCE WITH AC43.13-1B CHANGE 1, PARAGRAPHS 11-76 THROUGH 11-78. WIRE TYPES SHOULD BE TO MIL-W-22759 AS SPECIFIED IN AC43.13-1B CHANGE 1, PARAGRAPHS 11-85, 11-86 AND LISTED IN TABLE 11-11. ALL SHIELDED WIRE/CABLE SHOULD BE IN ACCORDANCE WITH MIL-C-27500.
- CABLE LENGTH NOT TO EXCEED 30 FT [9.14 1.1], UNLESS OTHERWISE SPECIFIED.
- CABLE LENGTH NOT TO EXCEED 1 FT [0.3 M].
- SYSTEM CROSSTALK MAY BE AFFECTED BY STYLE OF THE HEADSET AND JACK. CHECK SPECIFICATIONS AND SYSTEM REQUIREMENTS BEFORE SELECTING AND INSTALUNG.
- CABLE LENGTH NOT TO EXCEED 3.3 FT [1.0 MI
- SHIELDS SHOULD BE GROUNDED TO LOCAL AIRFRAME GROUND, UNLESS OTHERWISE SPECIFIED. SHIELD TERMINATION LENGTH NOT TO EXCEED 1 FT [0.3 M].
- REFERENCE SHEET 3 FOR AMPLIFIER WIRING CONFIGURATIONS.
- +26.5VDC SUPPUED AT 0.4 AMPS MAX.
- REFER TO LSC22 INSTALLATION & OPERATION MANUAL FOR OUTPUT LEVEL CONFIG SWITCH SETTING.
- APPLY GROUND TO REDUCE SPEAKER & EXT PA OUTPUTS BY 3DB.
- ONLY +28VDC LIGHTS OR +5VDC UGHTS MAY BE USED AT ONE TIME.
- PROVIDES GROUND IN EXT PA FRONT PANEL SWITCH POSITION.
DEFINTIONS
- N/C: NO CONNECTION. THE PIN IS tat CONNECTED TO ANYTHING INTERNALLY, AND THEREFORE SHALL HAVE NO CONNECTION EXTERNALLY.
- N/C SPARE: NO CONNECTION INTERNALLY, BUT A SPARE WIRE SHALL BE INSTALLED IN THE WIRE HARNESS.
- RESERVED: MAY BE CONNECTED AND USED IN THE FUTURE. THE CIRCUITRY MAY BE PRESENT OR ADDED TO ACTIVATE THE FUNCTION. THE PIN MAY BE USED FOR TEST PURPOSES. THFRF IS NO FXTFRNAI CONNECTION
- RESERVED SPARE: RESERVED, BUT INSTRUCTIONS SHALL BE FOLLOWED TO ACTIVATE (RSV SP) THE CIRCUITRY. A SPARE WIRE 5HAI I BE INSTALLED IN THE WIRE HARNESS.







NOTES:
- ALL WIRES SHOULD BE 22 AWG UNLESS OTHERWISE SPECIFIED. ALL UNSHIELDED WIRE SHALL BE SELECTED IN ACCORDANCE WITH AC43.13-1B CHANGE 1, PARAGRAPHS 11-76 THROUGH 11-78. WIRE TYPES SHOULD BE TO MIL-W-22759 AS SPECIFIED IN AC43.13-1B CHANGE 1, PARAGRAPHS 11-85, 11-86 AND LISTED IN TABLE 11-11. ALL SHIELDED WIRE/CABLE SHOULD BE IN ACCORDANCE WITH MIL-C-27500.
- CABLE LENGTH NOT TO EXCEED 30 FT [9.14 1.1], UNLESS OTHERWISE SPECIFIED.
- CABLE LENGTH NOT TO EXCEED 1 FT [0.3 M].
- SYSTEM CROSSTALK MAY BE EFFECTED BY STYLE OF HEADSET AND JACK. CHECK SPECIFICATIONS AND SYSTEM REQUIREMENTS BEFORE SELECTING AND INSTALUNG.
- CABLE LENGTH NOT TO EXCEED 3.3 FT [1.0 MI
- SHIELDS SHOULD BE GROUNDED TO LOCAL AIRFRAME GROUND, UNLESS OTHERWISE SPECIFIED. SHIELD TERMINATION LENGTH NOT TO EXCEED 1 FT [0.3 M].
- REFERENCE SHEET 3 FOR AMPLIFIER WIRING CONFIGURATIONS.
- +26.5VDC SUPPUED AT 0.4 AMPS MAX.
- REFER TO LSC22 INSTALLATION & OPERATION MANUAL FOR OUTPUT LEVEL CONFIG SWITCH SETTING.
- APPLY GROUND TO REDUCE SPEAKER & EXT PA OUTPUTS BY 3DB.
- ONLY +28VDC LIGHTS OR +5VDC UGHTS MAY BE USED AT ONE TIME.
- PROVIDES GROUND IN EXT PA FRONT PANEL SWITCH POSITION.
DEFINTIONS
- N/C: NO CONNECTION. THE PIN IS tat CONNECTED TO ANYTHING INTERNALLY, AND THEREFORE SHALL HAVE NO CONNECTION EXTERNALLY.
- N/C SPARE: NO CONNECTION INTERNALLY, BUT A SPARE WIRE SHALL BE INSTALLED IN THE WIRE HARNESS.
- RESERVED: MAY BE CONNECTED AND USED IN THE FUTURE. THE CIRCUITRY MAY BE PRESENT OR ADDED TO ACTIVATE THE FUNCTION. THE PIN MAY BE USED FOR TEST PURPOSES. THFRF IS NO FXTFRNAI CONNECTION
- RESERVED SPARE: RESERVED, BUT INSTRUCTIONS SHALL BE FOLLOWED TO ACTIVATE (RSV SP) THE CIRCUITRY. A SPARE WIRE 5HAI I BE INSTALLED IN THE WIRE HARNESS.








VIEW IS FROM REAR OF AIRFRAME CONNECTOR

VIEW IS FROM REAR OF AIRFRAME CONNECTOR 
DIMENSION





Message 3 and Siren audio programming now require the power input to the LSC22 be removed and is not dependent on the VOL knob position.

















