mspa F-MO061 Mono Frame Series Owner’s
SAFETY PRECAUTIONS
For your own safety and that of your product, please make sure to follow the safety precautions below. Failure to follow the instructions may result in serious injury, property damage or death. Improper installation or operation will void the warranty.
PLEASE ENSURE THAT YOU READ, UNDERSTAND AND FOLLOW ALL INSTRUCTIONS KEEP THIS MANUAL FOR FUTURE REFERENCE
DANGER
- Risk of Accidental Drowning. Extreme caution must be exercised to prevent unauthorized access by children. Risk of drowning. Inspect the spa cover regularly for leaks, premature wear and tear, damage or signs of deterioration. Never use a worn or damaged cover as it will not provide the level of
- protection required to prevent unsupervised access to the spa by a child.
- Risk of drowning. Always lock the spa cover after each use.
- Risk of injury. The suction fittings in this spa are sized to match the specific water flow created by the pump. Never operate the spa if the suction fittings are
- broken or missing. Never replace a suction fitting with an incompatible one.
- Risk of injury. If the supply cord is damaged, it must be replaced by the manufacturer, a service agent or a similarly qualified person in order to avoid hazards.
- Risk of Electric Shock. Do not permit any electrical appliances, such as lights, telephones, radios or televisions, within 1.5m (5 feet) of a spa tub.
- Risk of Electric Shock. Do not use the spa when it is raining, thundering or lightning.
WARNING
- To reduce the risk of electric shock, do not use an extension cord, timers, plug adaptors or converter plugs to connect the unit to the electrical supply; provide a properly located outlet.
- This appliance with its incorporated heating elements must be connected to a grounded mains supply socket with a supply cord fitted with a plug and a
- PRCD (portable residual current device) with a tripping current of 10mA. This appliance with earthing must only be plugged directly into an earthed socket-outlet for fixed wiring.
- Parts containing live components, except those parts supplied with safety extra-low voltage not exceeding 12V, must be inaccessible to anyone using the spa.
- Parts incorporating electrical components, except remote control devices, must be located or fixed so that they cannot fall into the spa.
- Electrical installation should fulfill the local requirement or standards.
- The wired controller must be properly stored in the side pocket when not in use,, to protect it from falling or other hazards.
- This appliance can be used by children aged 8 years and above and by persons with reduced physical, sensory or mental capabilities or a lack of experience and knowledge, provided that they are supervised or have been instructed on the safe use of the appliance and understand the hazards involved. Children must not play with the appliance or perform any cleaning or user maintenance operations without supervision.
- To reduce risk or injury, keep children away from this product unless they are closely supervised at all times. To reduce the risk of child drowning, supervise children all times. Attach and lock the spa cover after each use. Make sure that the floor is able to support the expected load, which can be found on the specifications sheet. You will need to calculate the expected water capacity load plus the total weight.
- An adequate draining system must be provided around the spa to deal with overflow water.
- To reduce the risk of injury:
- Lower water temperatures are recommended for young children and when spa use exceeds 10 minutes. In o rder to avoid the possibility of hyperthermia (heat stress) occurring, it is recommended that the average spa-pool water temperature does not exceed 40°C (104°F).
- Since excessive water temperatures have a high potential for causing fetal damage during the early months of pregnancy, pregnant or possibly pregnant women should limit the spa water temperature to 38°C (100°F).
- Before entering the spa or hot tub, the user should measure the water temperature with an accurate thermometer since the tolerance of water temperature regulating devices may vary.
- The use of alcohol, drugs or medication before or during spa use may lead to unconsciousness with the possibility of drowning.
- The use of alcohol, drugs or medication can greatly increase the risk of fatal hyperthermia in spas.
- The causes and symptoms of hyperthermia may be described as follows: Hyperthermia occurs when the internal body temperature reaches a level several degrees above the normal body temperature of 37°C (98.6°F). The symptoms of hyperthermia include an increase in the body’s internal temperature, dizziness, lethargy, drowsiness, and fainting. The effects of hyperthemia include a failure to perceive heat; a failure to recognize the need to exit the spa; an unawareness of impending hazards; fetal damage in pregnant women; a physical inability to exit the spa; and unconsciousness resulting in the danger of drowning.
- Obese persons or persons with a history of heart disease, low or high blood pressure, circulatory system prob lems, or diabetes should consult a physician before using a spa.
- Persons using medication should consult a physician before using a spa since some medication may induce drowsiness or affect the heart rate, blood pressure, or circulation.
Check with a doctor before use if pregnant, diabetic, in poor health, or under medical care.
- People with an infectious disease should not use a spa or hot tub.
- To avoid injury, exercise care when entering or exiting the spa or hot tub.
- Water temperatures in excess of 40°C (104°F) may be injurious to your health.
- Never use a spa or hot tub alone or allow others to use the spa alone.
- Do not use a spa or hot tub immediately following strenuous exercise.
- Spa heat in conjunction with alcohol, drugs, or medication can cause unconsciousness.
- Exit immediately if uncomfortable, dizzy, or sleepy. Spa heat can cause hyperthermia and unconsciousness.
- To prevent freezing, the spa must not be exposed to temperatures below 0°C (32°F) if there is still water in the pool. It is helpful to place a temperature barrier mat between the spa pool and the ground. A similar mat made of foam or any other material with a heat barrier function can also be used. Do not turn on the spa when the water is frozen. Never pour water with a temperature higher than 40°C (104°F) into the spa directly.
- Always unplug the product from the electrical outlet before removing, cleaning, servicing or making any adjustments. Never jump or dive into a spa or any shallow body of water.
- No part of the electric appliance is to be located above the bath during use.
- Do not bury the electrical cord. Locate the cord where it will not be damaged by lawn mowers, hedge trimmers or any other equipment.
- Do not attempt to plug in or unplug the product while standing in water or when your hands are wet.
- Do not use the spa if it is damaged on delivery and/or if it malfunctions in any way.
- Contact the MSpa service center for further instructions.
- Keep all pets away from the spa to avoid any damage.
- Do not add bath oil or bath salt to the spa water.
- Avoid putting your head under the water at all times.
- Avoid swallowing the spa water.
- The spa contains a UVC emitter. To replace or repair the UVC emitter, contact a professional operator.
- Unintended use of the appliance or damage to the housing may result in the escape of dangerous UVC radiation. UVC radiation, even in small doses, may cause harm to the eyes and skin.
- WARNING: Do not operate the UVC emitter when it is removed from the appliance enclosure.
CAUTION
- Always add chemicals to water, never add water to chemicals. Adding water to chemicals may cause strong fumes or violent reactions and hazardous chemical spray.
- For water that has already been used, dispose of it promptly or use water chemicals for cleaning.
- Usually, it is recommended to drain and refill a spa with clean water every 3-5 days.
- Use the chemical kit for disinfection in accordance with manufacturer’s instructions.
- Do not leave or set up the spa with a temperature lower than 4°C (39°F) if the heater is not operating.
- Always enter and exit the spa or hot tub slowly and cautiously. Take extra care if the floor is wet.
- To avoid damage to the pump, never turn on the spa or hot tub if it is not filled to the minimum water line.
- The spa or hot tub must only be placed on a properly prepared site that meets the floor loading requirement. Do not leave the spa empty for an extended
- period of time. Drain the spa completely if it is not going to be used for a long period of time. Do not expose the spa to direct sunlight. Check regularly
- before each use. When the spa is not in use, store it away immediately or keep it in an enclosed area.
- Open the spa top lid when the Bubble function is on.
- In order to avoid a hazard due to the inadvertent resetting of the thermal cut-out, this appliance must not be supplied through an external switching device,
- such as a timer, or connected to a circuit that is regularly switched on and off by the utility.
- Once the spa is installed, refer to the relevant chapters for details concerning cleaning, periodic checks and other maintenance.

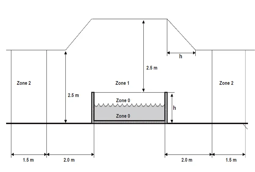
SPA LINER WARNING EXPLANATION
Warning: The appliance’s water protection levels vary across different product zones, as shown in the following diagram. (The installation regulations comply with IEC 60364-7-702.)
NOTE – The measured zone dimensions are limited by walls and fixed partitions.
| Zones | Description of the zones |
| Zone 0 | Zone 0 is the interior of the basin including any recesses in the walls or floor. |
|
Zone 1 | Zone 1 is limited by • Zone 0 • A vertical plane 2m from the rim of the basin. • The floor or the surface expected to be occupied by the users. • The horizontal plane 2.5m above the floor or the surface. |
| Zone 2 | Zone 2 is limited by • A vertical plane external to zone 1 and a parallel plane 1.5m from the former. • The floor or surface intended to be occupied by the users. |
SPECIFICATIONS
| BUBBLE SPA | |||||||
| Model No. / Code | Shape | Seating Capacity | Water Capacity | Outside Dimensions | Inside Dimensions | Height | Weight |
| F-MO061 Mono | Round | 6 | 930 L (245 Gal.) | Ø1.73 m (68”) | Ø1.63 m (64”) | 0.65m (26”) | 38 kg (83.7 lbs) |
| F-TU061 Tuscany | Octagon | 6 | 1100 L (291 Gal.) | Ø1.93 m (76”) | Ø1.73 m (68”) | 0.73m (29”) | 72 kg (158.6 lbs) |
| F-MO061 / F-TU061 | |
| Control System | AC 220-240V~ 50Hz |
| Rating Power | 2300W |
| Heater | 1500W |
| Massage Air Blower | 3 Levels (Level 1: 300W, Level 2: 500W, Level 3: 720W) |
| Filter Pump | 1800L/hr |
| Integrated Ozone Generator | 5.5W, 30-50mg/hr |
| UVC Radiant flux | 2000uW |
| Top Lid | Rhino-Tech™ reinforced PVC |
| Liner Material | Drop-stitch material (MONO) / Plastic wood (TUSCANY) |
PRODUCT OVERVIEW
Packaging content – MONO
NOTE:
The drawings are for reference only. Actual products may vary. Not to scale. Use accessories exclusively provided by MSpa for safety reasons.
When ordering parts, be sure to quote the MSpa model number and description.
Packaging content – TUSCANY
| REF. NO. | PARTS DESCRIPTION |
| A | SPA cover with buckle and inflatable bladder |
| B | Spa tub |
| C | All-in-one control box + U-shape cover |
| D | Filter cartridge with mesh cover * 2 + Filter cartridge base * 1 |
| E | 23.5” high-pressure pump, inflation hose, pressure gauge, seal ring |
| F | Heat-preservation foam mat |
| G | Garden hose adaptor |
| H | Wrench for inlet and outlet |
| I | Wrench for inflation valve |
| J | Repair kit |
NOTE:
The drawings are for reference only. Actual products may vary. Not to scale. Use accessories exclusively provided by MSpa for safety reasons.
When ordering parts, be sure to quote the MSpa model number and description.
FIRST USE AND SETUP PREPARATION
Site preparation and requirements
- The spa can be installed indoors or outdoors in around 10 minutes by one or more persons. For household use only.
- The spa must be set up on a flat, smooth and supporting surface that is able to bear the maximum load of the filled spa with the listed maximum number of occupants. Check with a qualified contractor or structural engineer to verify the requirement.
- Make sure the area is free of sharp objects under or around the spa. Uneven or unsound surface can damage the spa and void your warranty. Level the surface before filling the spa with water.
- Provide an adequate drainage system around the spa to deal with overflow water and splashes.
- Make sure there is enough clearance around the spa for full access to the equipment for maintenance and/or servicing.
- Consider positioning the spa to minimize noise disturbance as much as possible.
Additional requirements for indoor installation
- Humidity is a natural side effect of indoor spa installation. The room must be properly ventilated to allow moisture to escape. Install a ventilating system to prevent excess condensation moisture in the room.
- Ensure the spa can be removed from the building without destroying any part of the built structure.
- Consider any local regulations on these topics.
Additional requirements for outdoor installation
- Do not set up the spa on grass or dirt, as this will increase the amount of debris entering the spa and will damage the floor.
- To ensure a longer lifespan, do not leave the spa tub exposed to direct sunlight.
- Always lower the spa air pressure than 10psi when using it at a temperature higher than 20°C (68°F) or when exposing it to sunlight for a short time. Do not install or use the spa outdoors at a temperature lower than 4°C (39°F). Do not use the spa when the water inside the circulation system, pump, or pipework is frozen. Put a heat preservation mat (optional accessories) between the base of the spa and the ground to prevent heat loss from the bottom of the spa and to provide better heat retention.
PRCD Testing
WARNING
Risk of electric shock: This product is provided with a PRCD located at the end of the power cord. The PRCD must be tested before each use. Do not use the spa if the PRCD does not function properly. Disconnect the power cord until the fault has been identified and corrected. Contact a licensed electrician to correct the fault. There are no serviceable parts inside the PRCD. Opening the PRCD will void the warranty.
- Plug the machine into the mains.
- Press the RESET button on the PRCD. The indicator turns red.
- Press the TEST button on the PRCD. The red color shown on the indicator should disappear. Otherwise the PRCD is faulty. Do not use the spa if the spa is faulty. Contact a qualified electrician to correct the fault.
- Press the RESET button on the PRCD again. The indicator should turn red. When it does, the spa is ready for use.

Spa Control Unit Connected External Equipotential Bonding Conductors A qualified electrician should wire the spa control unit to the household equipotential terminal using a minimum 1.5mm² solid copper conductor.
NOTE: Move the entire package to the selected site. Do not drag the spa tub across the ground as this can cause damage and leakage. Open the carton
carefully as this can be used to store the spa over long periods or when not in use.
NOTE: Lay out all the parts on the ground and make sure they are all accounted for. For missing or damaged parts contact the appropriate MSpa after-sales service center.
SPA SETUP: MONO
ASSEMBLY – MONO
Spa Control Unit Assembly

- Take out the foam mat and spread it over the cleared area. Then spread out the spa tub over the ground mat and point the connection tubes towards the corner where you intend to set up your external control box.
- Ensure all the rubber sealing rings are in place.
- Connect the control box to the spa by lining up the numbers (1 to 1, 2 to 2 and 3 to 3). Securely hand-tighten the connectors.
NOTE: Do not use tools to tighten.
Inflating the Spa Tub Wall
- Attach the pressure gauge and the pump hose to the hand pump and tighten it securely.
- Open the valve cap by twisting it counter-clockwise. Ensure the valve is clear from debris, sand, or dirt before releasing.
- Push the valve button in and turn it counter-clockwise 90 degrees so it pops up and is in the “OUT” position.
- Connect the pump nozzle to the valve receptacle on the spa body, and tighten it clockwise.
- Start pumping air into the SPA tub by sliding the pump piston up and down, inflate the spa to 12 PSI (only the spa tub, not the bladder).
- Attach the U-shape cover to the spa control box.
NOTE: The U-shape cover must be installed before using the spa. CAUTION: Do not sit on, lean on, cover or place any objects over the spa control unit.
Inflating the Spa Air Bladder
- Open the inflation valve and insert the inflation hose into the valve.
- Slide the pump piston up and down to inflate until it is firm to the touch but not hard.
- Disconnect the inflation hose from the valve, then close and push in the inflation valve.
NOTE: If you need to add some air to the spa tub wall or air bladder after they have been set up, please see the “Inflating the spa tub wall” section above or refer to this “Inflating the spa air bladder” section again. The air bladder is preinstalled inside the spa cover in MONO models. If it needs to be reinstalled, place the uninflated air bladder inside the spa cover lip before inflating the bladder.
Installing the Filter Cartridge
- Attach the filter cartridge base to the spa tub inlet grid (upper position) and turn it slightly to secure. NOTE: The filter cartridge base is designed to be screwed on and off. Never exert force as this could cause damage.
- Put the mesh cover on the filter cartridge then attach the filter cartridge to the base.
NOTE: Inflate the spa tub first before installing the filter cartridge.
NOTE: Always use a filter cartridge when the spa is in use and filled with water.
Filling the Spa with Water
- Before filling with water ensure the bottom drain valve cap is securely closed.
- Fill the spa tub with fresh water to a level between MIN and MAX marked on the inside of the spa wall.
WARNING:
- Do not overfill the spa.
- Do not operate the spa until the water reaches the MIN mark.
- Never move the spa tub when there is water inside it and/or when the control box is attached, as this may damage the spa or control box.
- Never pour water with a temperature higher than 40°C(104°F) into the spa directly. We recommend that you fill the spa tub with lukewarm water to heat it more quickly and save energy.
Heating the Water
- Place the spa air bladder and spa cover over the spa tub, and make sure the spa cover buckles are locked.
- Ensure the spa is plugged into an electrical socket and see the “ALL-IN-ONE CONTROL PANEL ” section for further details on operation. NOTE: Always keep the spa cover on to minimize heat loss when heating the water.
SPA SETUP: TUSCANY
ASSEMBLY – TUSCANY
Spa Tub Assembly
- Take out the foam mat and spread it over the cleared area.
- Place the ‘open-end panel’ towards the corner where you intend to install your external control box.
- Connect two panel pieces together by sliding a corner beam between them and then do the same with the remaining panels.
- Place the sponge rails on top of the wooden panels with the shorter side of the rail on the inside of the spa tub.
- Spread out the spa liner inside the spa wall frame and make sure the pipes go through the holes on the panel.
- Stretch the top trim of the spa liner over the sponge rails. Lock the silver buckle on the trim onto the metal twist lock on the corner beams.
- Ensure all the rubber sealing rings are in place.
- Connect the control box to the spa by lining up the numbers (1 to 1, 2 to 2 and 3 to 3). Securely hand-tighten the connectors.
NOTE: Do not use tools to tighten. - Attach the U-shape cover to the spa control box.
NOTE: The U-shape cover must be installed before using the spa.
CAUTION: Do not sit on, lean on, cover or place any objects over the spa control unit.
Inflating the Spa Air Bladder
- Open the inflation valve and insert the inflation hose into the valve.
NOTE: Ensure that you use the correct nozzle. - Use the foot pump to inflate until it is firm to the touch but not hard.
- Disconnect the inflation hose from the valve, then close and push in the inflation valve.
NOTE: If you need to add some air to the air bladder after it has been set up, please refer back to this “Inflating the spa air bladder” section.
Installing the Filter Cartridge
- Attach the filter cartridge base to the spa tub inlet grid (upper position) and turn it slightly to secure. NOTE: The filter cartridge base is designed to be screwed on and off. Never exert force as this could cause damage.
- Put the mesh cover on the filter cartridge then attach the filter cartridge to the base.
NOTE: Inflate the spa tub first before installing the filter cartridge.
NOTE: Always use a filter cartridge when the spa is in use and filled with water.
Filling the Spa with Water
- Before filling with water ensure the bottom drain valve cap is securely closed.
- Fill the spa tub with fresh water to a level between MIN and MAX marked on the inside of the spa wall.
WARNING
Do not overfill the spa.
Do not operate the spa until the water reaches the MIN mark.
Never move the spa tub when there is water inside it and/or when the control box is attached, as this may damage the spa or control box.
Never pour water with a temperature higher than 40°C (104°F) into the spa directly. We recommend that you fill the spa tub with lukewarm water to heat it more quickly and save energy.
Heating the Water
- Place the air bladder and spa cover over the spa tub, and make sure the spa cover buckles are locked using the key provided after pulling the buckled straps tight.
- Ensure the spa is plugged into an electrical socket and see the “ALL-IN-ONE CONTROL PANEL” section for further details on operation.
NOTE: Always keep the spa cover on to minimize heat loss when heating the water.
ALL-IN-ONE CONTROL PANEL
LED display
Once powered up, press the RESET on the PRCD. The LED displays the current water temperature automatically.
NOTE: The actual water temperature may vary from the temperature displayed on the LED screen by as much as approximately 1°C.
HEATING
- Press the HEATER button to turn the heating system on/off. The HEATER icon shown on the LED display means the heating system is activated. The flashing HEATER icon means the spa is at the set temperature and the heating system is at rest.
- Pressing the UP or DOWN button to adjust the water to the desired temperature setting (from 20°C to 40°C ). The new and desired temperature setting will remain on the LED display for 3 seconds to confirm the new value.
NOTE: The default temperature is 38°C.
NOTE: If the heating system is turned on, the filtration system will automatically start.
NOTE: When the water temperature is below 1°C (33.8°F), the anti-icing system will be activated automatically to heat the water to 3°C (37.4°F).
IMPORTANT: The following conditions will lead to slow water heating
- An ambient temperature lower than 10°C (50°F).
- An outdoor wind speed above 3.5-5.4m/s (8-12mph).
- If the air bubble function is activated when the heater is on.
- If the spa cover is not properly in place when the heater is on.
FILTRATION
Press the FILTER button to turn the function on/off. The FILTER icon shown on the LED display means the function is activated.
NOTE: The filtration system will automatically start when the heating, Ozone or UVC sanitizing system is activated.
NOTE: After turning off the heating system, the filtration system will automatically stop in 30 seconds.
Filter Cartridge Cleaning Reminder: When the FILTER icon flashes continuously, the filter cartridge must be cleaned or replaced. Once this has been done, press the FILTER button for 3 seconds to reset the reminder.
BUBBLE MASSAGE
Press the BUBBLE button to turn the function on; hold down the BUBBLE button for 3 seconds to turn the function off.
The bubble setting can be adjusted to three different levels. The default setting is at level 2 (500W). Press the BUBBLE button to switch the setting to level 3 (720W). Press it again to switch to level 1
IMPORTANT: Do not turn on the massage system when the cover is attached. Air can accumulate inside the spa and cause irreparable damage and bodily harm.
NOTE: The bubbling massage function will shut down automatically after every 20 minutes of operation as a safety precaution. This can be reactivated after 10 minutes by pressing the BUBBLE button again.
HEATING TIMER
To set the number of hours FROM NOW when the heater will activate:
- Press the TIMER button to enter pre-setting mode. The TIMER icon shown on the LED display.
- Pressing the UP or DOWN button will cause the LED to flash. While it is flashing, you can adjust the number of hours before heater activation (from 1 to 99 hours). The desired timer setting will remain on the LED display for 3 seconds to confirm the value. To modify the timer setting: Press the Timer button again and use the UP or the DOWN button to adjust. Cancel the setting: Press the TIMER button for 3 seconds.
NOTE: Activating the heating system or rebooting the spa will cancel the timer setting.
UVC SANITIZER
Press the UVC button to turn the UVC sanitizing system on/off. The UVC icon shown on the LED display means the UVC sanitizing system is activated.
OZONE
Press the OZONE button to turn the function on / off. The Ozone icon shown on the LED display means the function is activated. The Ozonator will shut down automatically after operating for 2 hours.
NOTE: For bathers’ safety concern, please do not soak in the spa when the Ozone is on. The Ozone function cannot be turned on when JET or BUBBLE function is on.
SAFETY LOCK
Press the UP and DOWN buttons at the same time for 3 seconds to lock/unlock the controller. In safety lock mode, the controller is disabled and the spa retains all previous settings.
Celsius/Fahrenheit Toggle Button
The temperature can be displayed in either Celsius or Fahrenheit. the DOWN button for 3 seconds to toggle between the two Press the options.
WATER MAINTENANCE AND CHEMICALS
CAUTION: ALWAYS ENSURE THE SPA IS UNPLUGGED BEFORE BEGINNING ANY MAINTENANCE WORK TO AVOID THE RISK OF INJURY OR DEATH.
FILTER CARTRIDGE MAINTENANCE
- Inspect and clean the filter cartridge gently after each use. Follow the steps below:
NOTE: Change the filter cartridge every 3-5 days, or if the filter cartridge remains soiled and discolored. The mesh cover can be reused depending on its condition.
NOTE: When the spa is filled with water, there should always be a filter cartridge installed on the base.
NOTE: Turn off all the functions before changing or cleaning the filter cartridge.
- If the spa’s inlet or outlet becomes clogged with dirt, use the wrench to unscrew the cap and then clean as necessary.
NOTE: Before unscrewing the part, make sure the spa is empty. Never unscrew it when the spa is filled with water!
SPA WATER
- Change the spa water every 3-5 days depending on use. If dirt is visible in the water or if the water becomes cloudy and the correct water chemistry does not clear it up, change the water and clean the spa tub. See the “Cleaning, draining and storage” section for instructions.
- We recommend taking a shower before using the spa, as cosmetic products, lotions and other residues on the skin can quickly degrade the water quality.
- When the spa is not in use, cover it with the buckle cover to prevent pollution.
- Use spa chemicals to maintain the proper water conditions. Spa damage resulting from the misuse of chemicals or the mismanagement of spa water is not covered by the warranty. Consult with your local spa or pool retailer for more information on chemical use.
Water Sanitation
The spa owner must regularly check and keep the spa water sanitized with scheduled maintenance (daily, if necessary). Adding sanitizer or other chemicals will control bacteria and the reproduction of viruses in the spa water. Maintaining the correct water balance through the appropriate use of sanitizers is the most important factor in maximizing the life and appearance of the spa and ensuring clean, healthy and safe water.
Adopting the proper technique is important for testing and treating the spa water. Contact your spa professional if you have any questions on chemicals, sanitizers, test kits or test procedures.
Water Balance
Follow the instructions below to maintain your spa water.
| PARAMETER | TEST FREQUENCY | CORRECT LEVEL |
| pH | Daily | 7.2-7.6 when using Chlorine; 7.2-7.8 when using Bromine |
| Free Chlorine | Daily | 3-5 ppm |
| Bromine residual | Daily | 2-4 ppm |
| Total Alkalinity (TA) | Weekly | 80-120 ppm |
| Total Hardness (TH) | Weekly | 200-500 ppm |
NOTE
- A low pH will damage the spa tub and pump. Any damage resulting from a chemical imbalance will void the warranty.
- A high pH (hard water) will result in white coagulations inside the filter pump, which may lead to pump damage.
Water Treatment:
- It is good practice with an existing spa to keep all air jets open and valves closed to allow chemically treated water to flush through all pipework. Always follow the chemical manufacturer’s directions, and the health and hazard warning.
- Never mix chemicals together. Add the chemicals to the spa water separately. Thoroughly dissolve each chemical before adding it to the water. Please note that chlorine and bromine products should never be mixed. This is extremely dangerous. If you usually use chlorine-based products and you want to switch to bromine-based products, or vice versa, it is essential that you change the spa water first.
- Do not add chemicals if the spa is occupied. This can cause skin or eye irritation.
- Do not overuse chemicals or use concentrated chlorine. This can damage the spa tub and cause potential hazard to your skin. Improper chemical use will void the warranty.
DRAINAGE, CLEANING, AND STORAGE
Spa Drainage
- Turn off all the functions.
- Connect the drain valve adaptor to a garden hose and point the other end of the garden hose to a suitable draining area.
- Remove the drain valve cap from the outside of the spa tub and attach the drain valve adaptor to the drain valve.
- On the inside of the spa tub, open the drain valve cap. Water will start flowing out from the garden hose.
- When the water stops draining, lift the spa tub wall from the side opposite the drain, directing any remaining water to the drain and emptying the spa completely.
- Press the BUBBLE button to dry the spa pool.
- Disassemble the control box. Pour out any water from the piping system.
- Use a clean towel to wipe up any remaining water and moisture on the spa tub and spa control unit. Ensure the spa tub and spa control unit are thoroughly dried.
Cleaning The Spa Tub
If dirt is visible in the water or if the water becomes cloudy and the correct water chemistry does not clear it up, change the water and clean the spa tub. See the “Spa tub drainage” section on how to drain the spa. While empty, clean and/or replace the filter cartridge. Use a sponge and mild soap solution to wipe away any soil or stains on the inside of the spa wall. Rinse thoroughly before refilling with clean water.
IMPORTANT: Do not use steel wool, hard brushes or abrasive cleaners.
- Open the valve cap by twisting it counter-clockwise. Ensure the valve is clear from debris, sand, or dirt before releasing.
- Push the valve button in and turn it clockwise to lock it in the DOWN position.
- Once deflation is completed, replace the cap.
Spa Bladder Deflation
- Open the valve cap to deflate the bladder. For quick deflation, insert the straw (included in the repair kit) into the valve.
- Once the deflation is completed, re-place the cap back.
Spa Tub and Air Bladder Repair
Use the enclosed repair patch to repair any puncture:
- Clean and dry the area to be repaired thoroughly
- Apply the glue to the PVC patch and quickly attach it onto the damaged surface. (Glue is not included)
- Smooth the surface to remove any air bubbles and allow it dry for 5-10 minutes
NOTE: Glue is not included.
How to fix a leaking valve (MONO)
Storage and Preparation for Future Use
- Drain and clean the spa by following the “Drainage” and “Spa Cleaning” sections.
- Reserve the set up instructions to deflate and disassemble the spa tub, spa control unit and air bladder.
- Make sure all the spa components and accessories are thoroughly clean and dry before storage. Air-dry the spa tub in the mild sun for an hour before folding.
- Fold the spa tub loosely and avoid any sharp corners to prevent damage or leakage to the spa liner.
- Prepare new additional cartridge for next time use.
- Store the spa and accessories in a dry, temperature-controlled environment, between 0°C and 40°C (32°F – 104°F). We recommend storing the spa with desiccant.
- The original packaging is recommended for storage.
- After long-term storage, fill the spa with clean water and sanitizer, and turn on the FILTER for at least 1 hour before use.
DISPOSAL AND ENVIRONMENTAL PROTECTION
This marking indicates that the product should not be disposed of with other household waste. To prevent possible harm to the environment or human health from uncontrolled waste disposal, recycle the product responsibly to promote the sustainable reuse of material resources. Information on disposal can be obtained from your local authorities.
To return your used device, please use the return and collection systems or contact the retailer where the product was purchased for environmentally safe recycling.
TROUBLESHOOTING
ERROR CODE CHART
| LED READING | CAUSE | SOLUTION |
| – – – | Signal wire is loose | Contact the MSpa Service Center |
| Communication failed | Contact the MSpa Service Center | |
| F0 | Water temperature is below 0°C (32°F) or exceeds 50°C (122°F) | Change the water |
| Temperature sensor failure | Contact the MSpa Service Center | |
| F1 | F1 immediately shows after pressing FILTER , HEATING or UVC | Clean the parts and tubes that the water goes through |
| F1 shows 15s after pressing FILTER, HEATING or UVC | 1. Add more water to the minimum line 2. Clean the parts and tubes that water goes through 3. Contact the MSpa Service Center |
| PROBLEM | CAUSE | SOLUTION |
|
NO DISPLAY ON THE CONTROL PANEL | Power socket failure | Change a socket or repair the socket before use |
| PRCD is off | Reset the PRCD by following the PRCD Testing section | |
| Press the Reset button, controller is not displayed | Contact the MSpa Service Center | |
| PRCD broken | Contact the MSpa Service Center | |
|
SPA LEAKING | Spa in&outlet connection not securely tight | Tighten the in&outlet connection |
| Drainage valve is not closed completely | Close the drainage valve. Contact the MSpa Service Center, if spa is still leaking | |
| Water leaks from the spa pool body | Repair the leaking hole/split with the repair kit material |
| PROBLEM | CAUSE | SOLUTION |
|
NOT HEATING PROPERLY | Temperature set too low | Set a higher temperature |
| Dirty filter cartridge | Clean or replace the filter cartridge | |
| Water level is not at the minimum water line | Add more water to the minimum line | |
| Heater failure | Contact the MSpa Service Center | |
| Filter pump DOES NOT WORK | Refer to the “FILTER PUMP DOES NOT WORK” section | |
|
SPA LOSES AIR (MONO) | Air valve is loose | Make sure the valve is screwed tightly. Replace the valve if necessary. Inflate the spa to 12 PSI. |
| Hole or split on the spa tub | Fill a squirt bottle with soapy water and spray on the seams. If there is a leak, small bubbles will come out. When you have located the leak, clean and dry the leaking area, then use the repair patch supplied with your spa. Check the repair section on P18. | |
|
WATER NOT CLEAN | Water has been used for long period of time | Change the water |
| Insufficient filteration time | Extend the filtration time | |
| Dirty filter cartridge | Clean or replace the filter cartridge in time | |
| Improper water maintenance | Refer to the chemical manufacturer’s instructions | |
| SPA TUB IN AN ABNORMAL SHAPE (MONO) | Extra air pressure due to strong sunlight | Check the air pressure and release air if necessary During hot weather, it is advisable to check whether some air should be released to avoid any possible damage to the spa pool. |
| BUBBLE AIR BLOWER DOES NOT WORK | Auto-off 10 minutes | Wait for 10 minutes and turn on the Bubble button again |
| Internal parts damaged | Contact the MSpa Service Center | |
| FILTER PUMP DOES NOT WORK | Filter cartridge clogged by dirt or other objects | Clean or replace the filter cartridge |
| Filter system failure | Contact the MSpa Service Center | |
|
OZONATOR FAILURE | Water level is below the minimum water line | Add water above the minimum line |
| Internal parts damaged | Contact the MSpa Service Center | |
| Filter pump does not work | Refer to “FILTER PUMP DOES NOT WORK“ section |
Where can I find the serial number?
At the back of control box. Or at the foot of the control box.
How can I find my service contact?
Scan the QR code below or visit https://www.the-mspa.com/after-sales.
- Input the serial number of your spa.
- The corresponding service provider will be displayed.
MSPA LIMITED WARRANTY
MSpa® has been manufactured with reliability and simplicity in mind. All products have been inspected and found free of defects prior to leaving the factory.
MSpa guarantees this product against any defects identified in the material or workmanship for a period of:
Spa pool liner – twelve (12) months from the original date of purchase.
Electrical parts (control box) – twelve (12) months from the original date of purchase.
Spa rigid wall frames – twenty-four (24) months from the original date of purchase.
The warranty period begins on the date of purchase and MSpa requires presentation of the original proof of purchase to ascertain the date. During the warranty period, MSpa will either repair or replace, at its discretion, any defective products. Replacement products or repaired parts will be warranted for only the unexpired portion of the original warranty.
Shipping Policy
Consumers are responsible for the shipping/freight when return the defect parts to MSpa authorized service center or ORPC-Oriental Recreational Products (Shanghai) Co., Ltd.
Warranty Policy
- This limited warranty does not apply to any defect resulting from negligence, accident, misuse, or any other reason beyond MSpa’s reasonable control, included but not limited to: normal wear and tear, negligence or failure to follow the product instructions, improper or inadequate maintenance; connection to an improper power supply; chemical water damage, loss of pool water, unauthorized product modification or repair; use for commercial purposes; fire, lightning, flood or other external causes.
- This warranty is valid only in the country of purchase in such countries where MSpa sells and services the same model with identical technical specifications.Warranty service outside the country of purchase is limited to the terms and conditions of the corresponding warranty in the country of service. Where the cost of repairs or replacement is not covered by this warranty, MSpa will advise the owners and the cost shall be charged to the owner.
- This warranty only applies to the original purchaser and terminates upon any transfer of ownership.
- All repairs for which warranty claims are made must be pre-authorized by ORPC through an accredited distributor or agent provided that the defective part be returned to the distributor or agent Transportation Prepaid, if requested.
- The authorized selling dealer is responsible for all in-field service work carried out on your MSpa product. ORPC will not be liable for the cost of any workmanship carried out by an unauthorized service person.
- Products marked with both MSpa and importer are governed exclusively by the warranty provided by the importer.
Warranty Registration
Please Always keep the purchase receipt and warranty card in case of a future warranty inquiry. All claims must be submitted to an MSpa authorized dealer or service partner. Warranty contact information is provided on the back of the warranty card. It is essential that all submitted claims provide all the necessary information, including Customer name, Purchase receipt, Serial No., Product No., Problem, and Parts requested.
mspa F-MO061 Mono Frame Series Owner’s



























