metos MG105 Ice Storage Bin Installation Guide
Introduction
The ICEMATIC ice containers are constructed according to the same rigorous technical specifications as adopted for the ice makers.
By combining perfectly with the respective modular units, they provide a wide range of combinations for meeting the most varied requirements.
The basic concepts that inspired Frimont in the design and production of the current range of ice containers were: compact dimensions, in terms of both height and footprint, easy pickup of the ice, possibility of increasing the effective volume, duration and variety of storage capacity.
CONSIDERATIONS REGARDING THE INSTALLATION AND LOCATION OF THE CONTAINER
Place of installation
On the modular ice makers the ice container also serves as a support base for the production unit. When selecting the place of installation, it is therefore necessary to follow the instructions and advice given in the user instruction handbook.
Installation of the container
Check the outer packing to make certain that it has not been damaged in transit. After removing the box, inspect the container thoroughly both inside and out to make sure it has not been damaged during transport, loading or unloading.
Lie the container on its back, easing it onto the box it was packed in, in order to fit the four feet into their seats.
Stand the container up again, then position it in the installation site, making sure that the floor is even and capable of supporting the weight of the unit.
Level the ice container in both directions, from right to left and from front to back.
Check that the foam-rubber seal round the top edge of the container is in perfect condition; replace if necessary with food-grade sealant.
Water drainage connection
IThe drainage fitting, with an external diameter of 18 mm, is always located at the bottom or bottom back of the container, and must be connected, by means of a ventilated pipeline at a constant gradient, to an open-trap waste outlet.
Important
Before positioning the ice maker on the container, wash the inside of it with soap and water or with a handful of sodium bicarbonate diluted in two litres of warm water; then rinse and dry thoroughly.
DAILY PRECAUTIONS
- DO NOT stow bottles or other items such as milk, butter,fruit juice, etc. in the ice container.
- NEVER leave the door open.
- DO NOT leave the ice shovel in the container
- Open and close the door gently, taking care not to slam it.
CLEANING AND MAINTENANCE
The inside of the container is in contact with ice, which is a food product. It is therefore imperative that it is cleaned regularly and thoroughly.
Once a week it is essential to wash the inner walls of the container, having first removed the ice from it, using soap and water or a handful of sodium bicarbonate diluted in two litres of warm water; then rinse with running water and disinfect with specific products; lastly, dry thoroughly.
Installation diagram




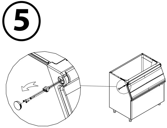
Removing the bin door







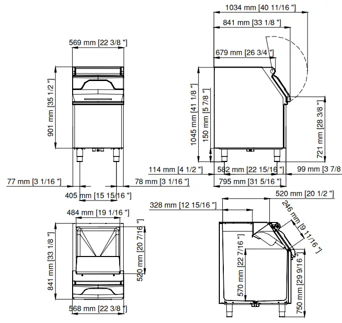
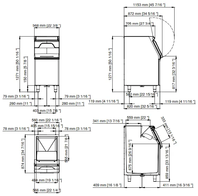
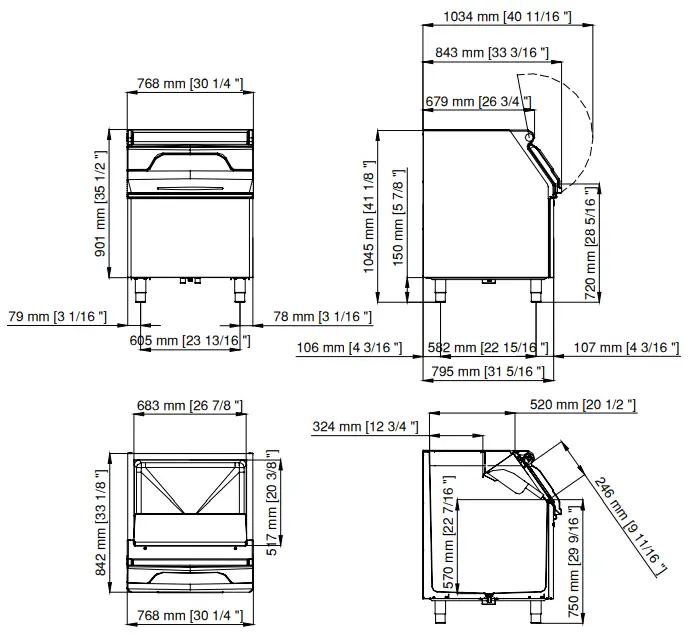
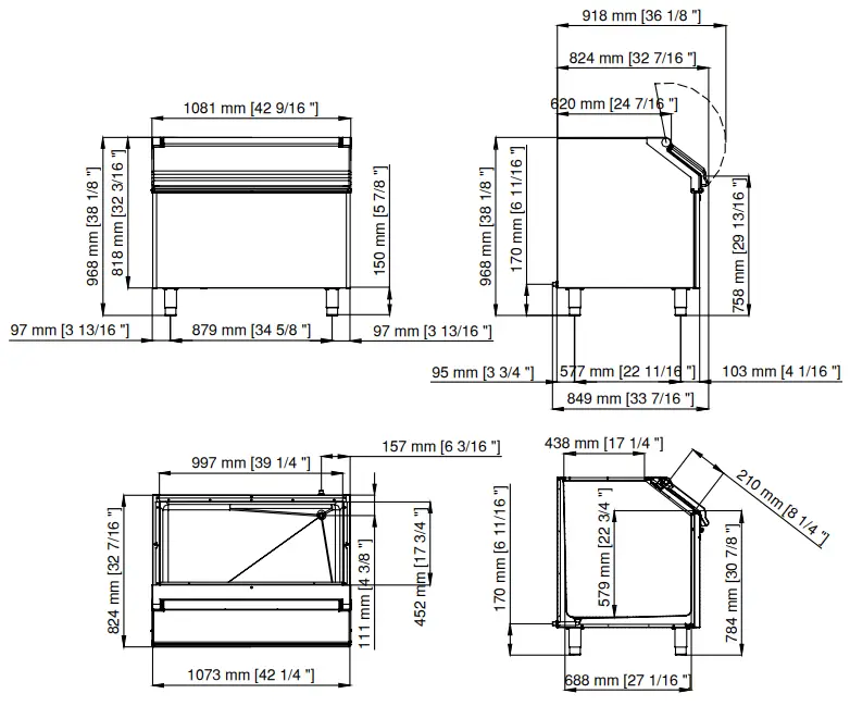
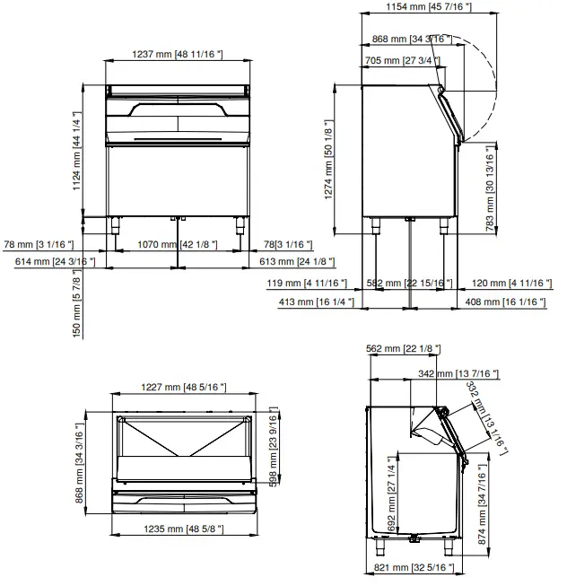
Dimensions
MG105

MG155

MG205

MG255

MG305

MG405

MG505

Disposal of waste electronic and electrical equipment (WEEE)

Fulfilling Directives 2002/95/CE, 2002/96/CE and 2003/108/CE on the disposal of waste electronic and electrical equipment.
The crossed out wheeled bin symbol indicates the product must be collected separately from other waste when it has become redundant. Differentiated collection of this equipment is arranged and handled by themanufacturer.
Consequently, the user who is wanting to dispose of this equipment must contact the manufacturer and follow the method the latter has adopted to allow separate collection of the redundant equipment.
Appropriate differentiated collection for the subsequent recycling, treatment and eco-friendly disposal of the dismantled equipment prevents possible negative effects on the environment and health and facilitates the recycling of materials used in manufacturing the equipment.
Administrative sanctions foreseen by the regulations in force shall be applied for any abusive disposal of the product by the holder.




















