CHIEF SL236 SMART-LIFT Electric Ceiling Lift

Product Information: SMART-LIFTTM Electric Ceiling Lift (Model SL236)
The SMART-LIFTTM Electric Ceiling Lift (Model SL236) is a versatile and reliable ceiling lift system designed for various applications. It is suitable for use in other environmental air spaces in accordance with Section 300.22(C) of the National Electrical Code. The ceiling lift system comes with multiple components and accessories to ensure safe and efficient installation.
Important Safety Instructions
- Read all instructions before using this product.
- Failure to follow the instructions may result in serious personal injury, damage to equipment, or voiding of the factory warranty.
- Always turn off power at the source before cleaning.
- Connect the mounting system to a properly grounded outlet only.
- Follow the National Electrical Codes ANSI/NFPA70 and the Canadian Electrical Codes, CSA C22.1 and CSA C22.2 for building wiring connections.
- Ensure adequate structural strength to support five times the combined weight of all equipment attached to the SL236.
- Do not exceed the weight capacity of 35 lbs (15.9 kg) for all components attached to the SL236.
- Avoid placing video equipment such as televisions or computer monitors on the ceiling panel, which should not exceed a total weight of 5 lbs (2.3 kg).
Installation Instructions
- Ensure you have the following tools required for installation:
- A (1) – Ceiling Lift
- B (1) – Push Button Assembly
- F (5) – Cable Tie Mount
- C (5) – Cable Tie
- D (1) – External Terminal Cover Plate
- E (1) – Jumper Wire
- G (4) – 6-32 x 3/16 Screws
- H (2) – Rubber Grommet
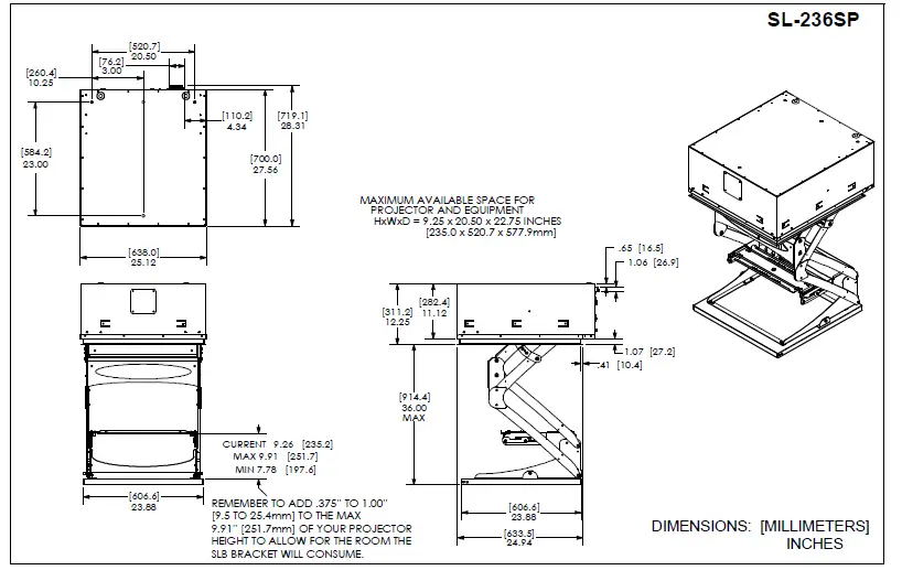
- Follow the provided dimensions for the installation:
- Height: 10.25″ (260.4 mm)
- Width: 20.50″ (520.7 mm)
- Depth: 23.00″ (584.2 mm)
- Length: 25.00″ (635.0 mm)
- Weight: 26.35 lbs (11.95 kg)
Note: The SMART-LIFTTM Electric Ceiling Lift (Model SL236) does not have any user-serviceable parts.
SMART-LIFT™ Electric Ceiling Lift
This device complies with part 15 of the FCC rules. Operation is subject to the following 2 conditions:
- This device may not cause harmful interference, and
- This device must accept any interference received, including interference that may cause undesired operation.
This equipment has been tested and found to comply with the limits of a Class B digital device, pursuant to Part 15 of the FCC rules. These limits are designed to provide reasonable protection against harmful interference in a residential installation. This equipment generates, uses and can radiate radio frequency energy, and if not installed and used in accordance with the instructions, may cause harmful interference to radio or television communications. However, there is no guarantee that the interference will not occur in a particular installation. If this equipment does cause harmful interference to radio or television reception, which can be determined by turning the equipment off and on, the user is encouraged to try to correct the interference by one of the following measures:
- Reorient or relocate the receiving antenna
- Increase the separation between the equipment and receiver
- Connect the equipment to an outlet on a circuit other than that to which the receiver is connected
- Consult the dealer or and experienced radio/TV technician for help
DISCLAIMER
Milestone AV Technologies, and its affiliated corporations and subsidiaries (collectively, “Milestone”), intend to make this manual accurate and complete. However, Milestone makes no claim that the information contained herein covers all details, conditions or variations, nor does it provide for every possible contingency in connection with the installation or use of this product. The information contained in this document is subject to change without notice or obligation of any kind. Milestone makes no representation of warranty, expressed or implied, regarding the information contained herein. Milestone assumes no responsibility for accuracy, completeness or sufficiency of the information contained in this document.
Chief® is a registered trademark of Milestone AV Technologies. All rights reserved.
IMPORTANT SAFETY INSTRUCTIONS
WARNING alerts you to the possibility of serious injury or death if you do not follow the instructions.
CAUTION alerts you to the possibility of damage or destruction of equipment if you do not follow the corresponding instructions.
WARNING: FAILURE TO READ AND FOLLOW THE FOLLOWING INSTRUCTIONS CAN RESULT IN SERIOUS PERSONAL INJURY, DAMAGE TO EQUIPMENT OR VOIDING OF FACTORY WARRANTY. It is the installer’s responsibility to make sure all components are properly assembled and installed using the instructions provided.
IMPORTANT ! : Model SL236 is suitable for use in Other Environmental Air Space in Accordance with Section 300.22(C) of the National Electrical Code.
When using an electrical mounting system, basic precautions should always be followed, including the following:
READ ALL INSTRUCTIONS BEFORE USING THIS PRODUCT!!!!
DANGER: TO REDUCE THE RISK OF ELECTRIC SHOCK:
Always turn off power at source before cleaning.
WARNING: TO REDUCE THE RISK OF
BURNS, FIRE, ELECTRIC SHOCK, OR INJURY TO PERSONS:
- Always turn off power at source before putting on or taking off parts.
- Use this mounting system only for its intended use as described in these instructions. Do NOT use attachments not recommended by the manufacturer.
Never operate this mounting system if it has a damaged test cord or test plug. If it is not working properly during testing, return the mounting system to a service center for examination and repair.
Keep the test power cord away from heated surfaces.
Never operate the mounting system with the air openings blocked. Keep the air openings free of lint, hair, and the like.
Never drop or insert any object into any opening.
Do not use near water. Do not expose to dripping or splashing water. Do not place objects filled with liquids, such as vases, on this apparatus.
Do not use outdoors unless marked for outdoor use.
Route cords and cables as shown in the installation instructions.
To disconnect, turn all controls to the off position, then turn off power at source.
WARNING: RISK OF ELECTRIC SHOCK! Connect this mounting system to a properly grounded outlet only. See Grounding Instructions.
Connection to the building wiring shall be done according to National Electrical Codes ANSI/NFPA70 and the Canadian Electrical Codes, CSA C22.1 and CSA C22.2 and an appropriate listed disconnect device (e.g. circuit breaker or fuse) shall be incorporated in the building installation wiring.
CAUTION: Changes or modifications to this unit not expressly approved by the manufacturer can void the units FCC compliance rating and make the unit illegal to operate.
WARNING: Failure to provide adequate structural strength for this component can result in serious personal injury or damage to equipment! It is the installer’s responsibility to make sure the structure to which this component is attached can support five times the combined weight of all equipment. Reinforce the structure as required before installing the component.
WARNING: Exceeding the weight capacity can result in serious personal injury or damage to equipment! It is the installer’s responsibility to make sure the weight of all components attached to the SL236 does not exceed 35 lbs (15.9 kg).
WARNING: RISK OF INJURY! Do not place video equipment such as televisions or computer monitors on the ceiling panel of the SL236. The total weight of any objects on the ceiling panel must not exceed 5 lbs (2.3 kg).
NOTE: This system has no user serviceable parts.
–SAVE THESE INSTRUCTIONS–
TOOLS REQUIRED FOR INSTALLATION

PARTS

DIMENSIONS


INSTALLATION REQUIREMENTS
NOTE: Throughout this document, reference to SL236 refers to both SL236FD and SL236SP models.
The SL236 has been designed to be mounted recessed into a ceiling.
Power Requirements
The SL236 requires 120VAC, 60 Hz and 12 amps power to operate.
IMPORTANT ! : Installation and maintenance of this product must be completed by a qualified service technician.
Pre-Test Lift before Installation
- Carefully inspect the SL236 for any shipping damage. If any damage is apparent, do NOT continue with the installation. Instead, contact Chief for further instructions.
- Attach supports (not provided) to the top of lift. (See Figure 1)

- Suspend the lift at least 3-1/2 ft. above a surface from a suitable structure such as saw horses, ladders or tables.
- Remove and save two screws holding side electrical cover in place. (See Figure 2)

- Remove electrical cover. (See Figure 2)
- Place the jumper wire (E) on the external wiring terminal contacts labeled 2 and 5, and wire the push button assembly (B) to contacts 1 (red) and 6 (black). (See Figure 3).
- Plug in the SL236 test cord. (See Figure 2)
NOTE: (See Figure 2) for location of external wiring terminal. (See Figure 4) for location of internal wiring terminal.

Power Requirements and Wiring
The SL236 requires 120VAC, 60 Hz and 12 amps power to operate.
IMPORTANT ! : This product must be grounded. If it should malfunction or break down, grounding provides a path of least resistance for electric current to reduce the risk of electric shock.
Grounding Instructions
This product is equipped with a test cord having an equipment-grounding conductor and a grounding plug. The plug must be plugged into an appropriate outlet that is properly installed and grounded in accordance with the National Electric Code, ANSI/NFPA, and Canadian Electrical Codes, Part 1.
WARNING: RISK OF ELECTROCUTION! All electrical wiring required for installation should be installed by a qualified electrician.
WARNING: PINCH HAZARD! FINGERS OR HANDS BETWEEN MOVING PARTS CAN LEAD TO SEVERE PERSONAL INJURY! Keep fingers and hands away from mount when operating.
- Press the push button (B) to test the SL236 while it is still in the pre-test position.
- Press when the lift is at its top position and it will move down.
- Press when the lift is at its bottom position and it will move up.
- Press while the lift is moving and it will stop.
- Leave SL236 in the closed position.
INSTALLING IN CEILING
WARNING: IMPROPER INSTALLATION CAN LEAD TO LIFT FALLING CAUSING SEVERE PERSONAL INJURY OR DAMAGE TO EQUIPMENT! It is the installers responsibility to make certain the structure to which the lift is being mounted is capable of supporting five times the weight of the lift and all attached equipment. Reinforce the structure as required before installing the lift.
WARNING: IMPROPER INSTALLATION CAN LEAD TO LIFT FALLING CAUSING SEVERE PERSONAL INJURY OR DAMAGE TO EQUIPMENT! It is the installers responsibility to make certain the structure to which the lift is being mounted is capable of supporting five times the weight of the lift and all attached equipment. Reinforce the structure as required before installing the lift.
Installing in a Suspended Ceiling (SL236SP Only)
NOTE: The SL236SP may be suspended from three 3/8 in. diameter x 8 in. length (minimum) Grade 2 or better threaded rods (not provided) which are secured to a 1-5/8″ x 1-5/8″ 12 ga metal framing channel (spanning a maximum of 5 feet–not provided) by Grade 2 or better 3/8″ channel nuts (not provided).
- Remove and save nuts attaching guide wires to two corners of ceiling panel. (See Figure 5)

- Pull down on each corner of ceiling panel to remove ceiling panel clips from rectangular holes. (See Figure 5)
- Install the SMA651 (optional accessory) at this time, if applicable, following instructions included with the kit.
- Cut the ceiling grid to fit the perimeter of the SL236SP.
- Place SL236SP onto threaded rods, inserting the rods into the three slots on top of the SL236SP housing.
(See Figure 6) - Secure the threaded rods to the SL236SP with Grade 2 or better 3/8 in. jam nuts (not provided) and washers (one of each on inside and one of each on outside–not provided).

- Install the SMA620 (optional accessory) to the SL236SP, if applicable, following instructions included with the kit.
- Insert the ceiling grid edge surrounding the SL236SP into the side channel of the SL236SP. (See Figure 7)
NOTE: The side channel of the lift will support the weight of the grid and ceiling tiles.
CAUTION: The lift MUST be installed square and parallel. Do NOT stress or bend the lift during installation. - Use the provided push button (B) to operate the SL236SP up and down, ensuring that all clearances are adequate.
- Replace surrounding ceiling tile.
- Remove four screws and the ceiling tile retainer from the ceiling panel. (See Figure 8)

- Cut ceiling tile to fit inside ceiling tile retainer, including grid pieces if necessary.

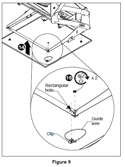
- Line up clips on four corners of ceiling panel with holes in SL236SP.
- Re-install four clips on ceiling panel into rectangular holes on SL236SP. (See Figure 9)
- Reattach guide wires (two places) to SL236SP, using nuts removed earlier in Step 1 of Installing in a Suspended Ceiling section. (See Figure 9)
- Install ceiling tile and grid by sliding it into the open end of the ceiling tile retainer. (See Figure 8)
CAUTION: Do NOT allow parts of ceiling tile or grid to protrude from the ceiling panel. Ensure that all parts assemble easily when installing ceiling tile into ceiling panel. Any protruding parts may cause damage to the lift and/or ceiling. - Re-install ceiling tile retainer to ceiling panel and secure with four screws removed in Step 11. (See Figure 8)
- Use the provided push button (B) to operate the SL236SP up and down, ensuring that all clearances are adequate after the ceiling has been finished.
Installing in a Wood Framework (SL236FD Only)
- Use 1/4″ x 1″ (minimum) Grade 2 lag screws (not provided) to secure SL236FD to the joists or wood framework, using the mounting tabs located on the sides of the SL236FD housing. (See Figure 10).
NOTE: There are three mounting tabs on each side and two mounting tabs on the front of the SL236FD. There are three mounting holes in the back of the SL236FD. The SL236FD must be installed using the back mounting holes AND the front two mounting tabs on both sides, OR by using the back mounting holes AND the front mounting tabs.
IMPORTANT ! : Minimum wood stud size is 2″x4″. Wood framework must be constructed of nothing larger than 2″x6″ wood studs across the rear of the SL236FD. The rear of the SL236FD is the side with the test cord.

CAUTION: The lift MUST be installed square and parallel. Do NOT stress or bend the lift during installation.
- Use the provided push button (B) to operate the SL236FD up and down, ensuring that all clearances are adequate.
Installing Projector on SL236
NOTE: The projector is secured from the top by a Chief SLB Series interface bracket (not included).
- Attach the SLB bracket to the projector, using the hardware and instructions included with the bracket.
- Press in end tabs on both ends of yaw adjustment bracket and lock into place. (See Figure 11)
- Remove the yaw adjustment bracket from the SL236 by lifting up. (See Figure 11)

- Place the yaw adjustment bracket over the studs on the SLB bracket, selecting the set of holes that best centers the projector weight. (See Figure 12)
- Install thumb nuts to secure yaw adjustment bracket to SLB bracket with projector.
- Reinstall yaw adjustment bracket with projector to SL236 by setting it in place, and releasing tabs at each end of yaw adjustment bracket. (See Figure 12)

Adjustments
- TRAVEL (SHOW ADJUSTMENT)
CAUTION: Do not overadjust (exceed maximum) travel length.- To adjust the travel of the lift mechanism, insert a Phillips screwdriver into the access hole found at the left rear corner of the lift.
NOTE: The access hole may be covered by ceiling tile in the SL236SP model. - Shorten travel by turning adjustment screw clockwise one or two turns. Check for desired travel, and repeat as necessary. (See Figure 13)
- Lengthen travel by turning the adjustment screw counter-clockwise one or two turns. Check for desired travel, and repeat as necessary. (See Figure 13)

- To adjust the travel of the lift mechanism, insert a Phillips screwdriver into the access hole found at the left rear corner of the lift.
- FORWARD/BACKWARD and PITCH
- To shift projector backward or forward (or up or down), loosen the nuts on each end of the yaw adjustment bracket. (See Figure 14)
- Move mounting bracket forward or backward (or up or down) as required. The bracket must be adjusted forward/backward equally.
- Tighten nuts. (See Figure 14)

- YAW (Rotation)
- Adjust one or the other side of the yaw adjustment bracket backward or forward by loosening two nuts on each side. (See Figure 15)
- Adjust bracket as required.
- Tighten nuts. (See Figure 15)

- ROLL (Horizontal Tilt)
- Shift bracket up or down in the side holes on one side or the other by loosening nuts.
- Adjust and tighten nuts on bracket. (See Figure 16)

Routing Cables
CAUTION: Do NOT attach cables to lower lifting arms or sides of projector bracket. Damage may result when lift is raised.
- Lower SL236 to service position.
- Route and secure electrical and video cables using installed cable clips (See Figure 17)
- Remove nut and open cable clip.
- Route cable through clip.
- Close cable clip and fasten with nut.
- Included mounting tabs (F) and cable ties (C) may also be used for securing cables.
CAUTION: SHOCK, INJURY OR DAMAGE TO EQUIPMENT IS POSSIBLE! Avoid placing cables near moving parts and pinch points to avoid damage to the cables. Ensure there is enough slack in the cables to allow for up and down movement of the lift.

Connecting Control Wiring
WARNING: All wiring should be performed following the National Electric Code, ANSI/NFPA, and Canadian Electrical Codes, Part 1.
- Unplug the SL236’s power cord (used for testing).
- Remove the jumper wire (E) and supplied push button (B) wiring (previously installed in the Pre-Test Lift before Installation section) from the external terminal block. (See Figure 3)
- Connect control wiring following instructions included with the third party automation and control equipment and user-supplied switching devices, and information in Table 1: Wiring Table.
NOTE: Any knockouts removed in the SL236 must be replaced with a supplied rubber grommet (H). - Feed the video and/or communications cables through the knockout in the rear or top of the lift and connect it to the projector.
NOTE: Ensure there is enough slack in the cables to allow for up and down movement of the lift. - Secure cables as necessary using supplied mounting pads (F) and cable ties (C).
CAUTION: KEEP SL236 OPEN WHILE PROJECTOR IS RUNNING OR IN COOLING MODE! Premature bulb failure or damage to electrical components may occur if lift closes.
NOTE: If SL236 is cycled up and down repeatedly the motor’s thermal overload protection will stop operation. Operation will resume when the thermal overload resets (usually within 3 to 5 minutes).
Connecting to Power Supply
IMPORTANT ! : This product must be connected to a grounded metal, permanent wiring system, or an equipment-grounding conductor must be run with the circuit conductors and connected to the equipment-grounding terminal or lead on the product.
WARNING: FAILURE TO DISCONNECT AND TERMINATE POWER LEADS PROPERLY MAY RESULT IN PERSONAL INJURY OR EQUIPMENT DAMAGE!! Licensed electrician must disconnect and terminate the leads to the power cord receptacle, and must hard wire the SL236 to a 12-amp power source.
- Disconnect and remove power inlet from interior junction box.
- Hardwire unit to a 120V 60Hz 12-amp power source.
NOTE: This unit was designed to have conduit run directly into the back of the interior junction box.
NOTE: If installing the SL236 in a drywall ceiling, remove the outside terminal block and cover with plate (D), using four 6-32 x 3/16″ Phillips pan head screws (G).
Wiring Options
NOTE: Refer to the Table 1: Wiring Table and (See Figure 18) for information on all wiring options.
NOTE: Refer to Table 2: Internal Terminal Descriptions and (See Figure 19) for terminal descriptions, functions and wiring options.
Table 1: WIRING TABLE

![CHIEF-SL236-SMART-LIFT-Electric -Ceiling-Lift-31]]](https://static-data1.manualsee.com/2/img/167/9119281/2023/08/CHIEF-SL236-SMART-LIFT-Electric-Ceiling-Lift-31.png)

NOTE: The numbers listed in the SL236 Internal and SL236 External columns refer to the corresponding numbers located where indicated in the wiring pictures. (See Figure 18)
Table 2: INTERNAL TERMINAL DESCRIPTIONS



Chief, a products division of Milestone AV Technologies
8800-002564 Rev00
2014 Milestone AV Technologies www.chiefmfg.com
04/14
USA/International A 8401 Eagle Creek Parkway, Savage, MN 55378
P 800.582.6480 / 952.894.6280
F 877.894.6918 / 952.894.6918
Europe A Fellenoord 130 5611 ZB EINDHOVEN, The Netherlands
P +31 (0)40 2668620
F +31 (0)40 2668615
Asia Pacific A Office No. 1 on 12/F, Shatin Galleria 18-24 Shan Mei Street
Fotan, Shatin, Hong Kong
P 852 2145 4099
F 852 2145 4477






NOTE: The side channel of the lift will support the weight of the grid and ceiling tiles.


























