castorama 3663602419006 Rina Semi-Box Manual Awning Taupe

Safety Instructions
- The instructions outlined below are intended to ensure your safety.
- Please read the safety manual and the instruction manual carefully before undertaking the product construction or mounting.
- Ensure that both the safety manual and instruction manual are retained for future reference.
- The product must be installed by a minimum of 2 adults who are proficient in the skills required to complete the task as outlined in the instruction manual.
- Expansion bolts are not included: Adapt your hardware to the mounting bracket.
- Ensure safety eyewear is worn when drilling, chiseling and handling concrete.
- Ensure protective gloves are worn if handling concrete.
- Do not construct, mount or use this product if it damaged or elements are missing.
- Do not modify the construction or design of this product.
- Failure to follow this instruction could lead to injury, death or property damage.
- Refrain from using this product for anything other than its intended purpose.
- Ensure that you have all the tools specified in the instruction manual available before undertaking the product construction or mounting. 0 This product is intended for outdoor use only.
- This product is intended for domestic use only.
- Do not over tighten the screws, nuts or bolts provided.
- Handle any tool used carefully and in accordance with their instructions.
- The products shall be retracted in case the wind speed is higher than 28 km/h.
- Check the entire installation and all fasteners regularly, especially at the beginning of each new season of use, to make sure that all fasteners are in good condition and have not loosened.
- Use warm soapy water and a soft damp cloth to clean the surface of the product. Wipe dry with a clean cloth.
- Never use any solvents, scourers, abrasives, bleach, acids, strong detergents, aggressive chemical cleaners or solvent-type cleaning solutions on the product.
IMPORTANT, RETAIN FOR FUTURE REFERENCE: READ CAREFULLY.

IMPORTANT – Please read carefully the separate safety guide before use.

Tools Reuired

Package Content

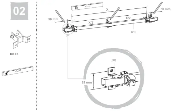
Installation




Use

Care


Declaration of Performance

N°DOP_S86356_ 3663602419006_1 | ||||
| 1. Unique identification code of the product-type : | ||||
3663602419006 – By extension, this declaration of performance also applies to any EAN product codes detailed in Appendix 1 | ||||
| 2. – Intended use(s) : | ||||
| External use | ||||
| – Manufacturer : | ||||
Kingfisher International Products B.V., | ||||
| Authorised representative : | ||||
| 5.- System(s) of assessment and verification of constancy of performance : | ||||
4 | ||||
| 6a) – Harmonized standard / Notified body/ies : | ||||
| EN13561 Clause 4 | ||||
| – European Assessment Document (EAD) – European Technical Assessment : – Technical Assessment Body – Notified body/ies : | ||||
| – Resistance to wind: Class 1 | ||||
| – Declared performance/s : | ||||
| – Essential Characteristics | – Performance | – Standard / EAD | ||
| 13561:2004/A1:2008 13561:2015 | ||||
| * (NPD*) : EN – No performance determined | ||||
| – Appropriate Technical Documentation and/or Specific Technical Documentation : | ||||
| 9. – The performance of the product identified above is in conformity with the set of declared performance/s. This declaration of performance is issued, in accordance with Regulation (EU) No 305/2011, under the sole responsibility of the manufacturer identified above – Signed for and on behalf of the manufacturer by : David Awe Kingfisher International Products B.V., 06/09/2019 APPENDIX I
| ||||
| (UK) DECLARATION OF PERFORMACE | ||
| No’ DOP_UKCA_3663602419006_1 | ||
| Unique Identification code of the product type – EAN 3663602419006 | ||
| ||
| Intended use: External use | ||
| Manufacturer: Kingfisher International Products Limited 3 Sheldon Square London W2 6PX United Kingdom | ||
| System(s) of assessment and verification of constancy of performance: 4 | ||
| BS13561:2004/A1:2008 BS 13561:2015 | ||
| Declared Performance | ||
| Essential characteristics | Performance | Designated Standard / UKAD |
| Wind resistance | Class 1 | BS13561:2004/A1:2008 BS 13561:2015 |
| The performance of the product identified above is in conformity with the set of declaraed performance/s. This declaration of performance is issued, in accordance with The Construction Products (Amendment etc.) (EU Exit) Regulations 2019, under the sole responsibility of the manufacturer identified above. Signed for and on behalf of: Group Quality Director Date of issue: [21/07/2021] | ||
| EAN 3663602419006 | ||
Manufacturer • Fabricant • Producent
Producător • Fabricante:
UK Manufacturer:
Kingfisher Interbational Products Liumited,
3 Sheldon Square, London, W2 6PX,
United Kingdom

External use
Resistance to wind : Class 1
EAN: 3663602419006
N°DOP_S86356_3663602419006_1
DOP_UKCA_S86356_3663602419006_1
4300 3.8 x 3 m
EN13561:2004/A1:2008
EN13561:2015

Installation
Use
Care


















