AFC-1000
Fire Alarm Control Panel
City of Chicago, Class 1 Addressable Approved
Owner’s Manual![]()

City of Chicago
Class 1 Approved
NYC Fire Dept.
Certificate of Approval 6256
Features
- 1,270 addresses available on this analog addressable system
- Additional system capacity achieved via multi-point SLC modules
- 1500 software zones
- NFPA 72 Compliant Smoke Sensitivity Test Built-In
- System Operates as Class A or Class B for SLC, P-Link and NACs
- 10 Amp Power Supply, Expandable to 315 amps
- 6 NACS, Regulated, Rated at 3 Amps each, expandable to 192
- 4 Input/Output (I/O) Circuits for system flexibility rated at 1 Amp each
- Strobe Synchronization and System Wide Sync for Gentex®, AMSECO®, Cooper Wheelock® and System Sensor® strobes
- Dedicated Alarm, Supervisory and Trouble Relays
- 4,000 Event History Buffer
- Optional two line DACT with UD-2000 that can report General, Zone or Point Information
- Built in IP communicator
- Ethernet Port for Programming and Network Connectivity
- E-Mail System Status, Reports and Event Information
- Product includes 5 year warranty
- City of Chicago Class 1 Addressable Approved
Description
The AFC-1000 is an expandable analog/addressable releasing fire alarm system with a total system capacity of 1270 addresses. Additional capacity on the system is achieved using multi-point SLC modules The control panel utilizes the exclusive Potter protocol that includes a complete line of sensors and modules. Each SLC may be comprised of any combination of smoke sensor, heat detectors or modules and allows for a total of 50 ohms of impedance and may use any wire compliant with the National Electrical Code (NEC). The AFC-1000 has a 10 Amp power supply with six Notification Appliance Circuits (NACs) and four Input/Output (I/O) circuits.
The NACs are rated at 3 Amps each and the I/Os are rated at 1 Amp each. Each output is regulated and power limited. In addition, each output is uniquely programmable and may be configured for steady signal, strobe synchronization, constant power, door holder power, or releasing. The strobe synchronization includes Gentex, AMSECO, System Sensor and Cooper/Wheelock and with the exclusive Quadrasync each output may have a unique brand and all strobes will flash together.
The NACs may be expanded using the PSN-1000 series intelligent power supplies. Each PSN-1000 adds another 10 Amps of power, 2 additional input circuits and the AFC-1000 will support up to 31 power supplies. The system will synchronize the strobes system wide. In addition, the PSN1000E has space to allow the installation of up to six PAD100-SLCE SLC loop expansion cards. The cards mount on a stacker bracket that allows access to all SLC circuit connections.
Technical Specifications
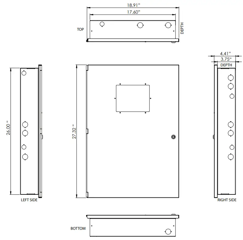
| Dimensions | 18 I5/16″W x 27 5/16″H x 4 7/16″D |
| AC Mains | 5.0 Amps @ 120 VAC 50/60 HZ 3.0 Amps @ 240 VAC 50/60 HZ |
| Enclosure | 16 gauge cold rolled steel with removable locked door with Lexan viewing window |
| Battery | Standby Current-130 mA Alarm Current-220 mA •10 Amps power for NACs, I/O, and P-Link •3 Amps per NAC, regulated •1 Amp per I/O circuit, regulated •Battery Charger range 8-55 Ah •Battery Charger voltage 27.3 VDC •P-Link maximum current of 1 Amp |
| Temperature and Humidity Range | 32° to 120° (0°C to 49°C) with a maximum humidity of 93% non-condensing. |
SLC Loop Accessories
The control panel may be connected with up to 1,270 addressable devices or modules in any combination. The SLC is not restricted by any special wire requirements and may be wired with any wire that complies with the NEC.
SLC Loop Devices
| Device | Description |
| PAD 100-PD | Analog Photo Electric Smoke Detector is a smoke detector with a listed obscuration of 1.02 to 3.83 percent per foot. |
| PAD100-PHD | Combination Analog Photo Electric Smoke/Heat Detector — a smoke detector with a listed obscuration of 1.02 to 3.83 percent obscuration and a fixed temperature 135° Fahrenheit heat detector. |
| PAD100-HD | Analog Fixed (135d-185dF) or Rate-of-Rise Heat Detector (software selectable) |
| PAD100-DUCTR | Addressable Duct Smoke Detector with Form C Relay. Addressable Duct Smoke Detector with Form C relay rated at 10a @ 250/120VAC or 8amps at 30VDC. |
| PAD100-DUCT | Addressable Duct Smoke Detector. |
| PAD 100-6B | 6″ round base that is mounted to an electrical box and wired for connection of one of the above sensors. |
| PAD100-4B | 4″ round base that may be mounted to an electrical box and wired for connection to the above sensors. |
| PAD100-IB | Isolator base that interrupts a short in a SLC and prevents the short from affecting protected devices on the loop. |
| PAD100-RB | Addressable Relay Base that contains one relay controlled by the SLC. Relay is rated at rated at 2 amps at 30 VDC or 0.5A at 125VAC. |
| PAD100-SB | Addressable Sounder Base that contains an addressable sounder module that may be configured for local, group and all call. |
| PAD 100-CD | Addressable CO gas detector. |
| PAD 100-DD | Addressable photo electric smoke detector for use in DUCT/DUCTR enclosure. |
| PAD 100-LFSB | Addressable Low Frequency Sounder Base that contains an addressable sounder module that may be configured for local, group and all call. The LFSB complies with the Low Frequency Signal Requirements (520 Hz) |
| PAD100-SPICE | Speaker base is a wall or ceiling mount speaker capable of 25 or 70.7 VRMS and is field selectable from 1/8W to 4W. |
Modules
| Device | Description |
| PAD100-MIM | Micro Input Module provides a small foot print contact module for mounting inside an enclosure. |
| PAD100-PSSA | Single Action Addressable Pull Station. |
| PAD100-PSDA | Dual Action Addressable Pull Station. |
| PAD100-SIM | Single Input Module is a standard contact module with an LED that mounts into a 4″ square electrical box. |
| PAD 100-DIM | Dual Input Module is a device that can monitor two distinct inputs with a single device or in a Class A mode. |
| PAD100-TRTI | Two Relay Two Input module provides two form C relays that are individually controlled by the control panel. Each relay is rated for 2 amps at 30VDC or 0.5 amps at 125VAC. Also provides two contact inputs. |
| PAD100-NAC | Notification Appliance Circuit module is an addressable remote appliance circuit controlled by the panel. |
| PAD100-ZM | Zone Module is used to connect conventional 2-wire smoke detectors to the system. |
| PAD 100-IM | Module interrupts a short on the SLC and prevents the short from affecting protected devices on the loop. |
| PAD100-RM | Relay Module that provides one form C relay controlled by the control panel. Relay is rated for 2 amps at 30VDC or 0.5 amps at 125VAC. |
| PAD 100-LED | Module provides a single addressable LED that is controlled by the control panel. |
| PAD 100-SM | Speaker Module provides switching for two audio channels. |
| PAD100-LEDK | Addressable LED and key switch that mounts in a single gang box. |
| PAD100-DRTS | DUCTR Remote Test Switch that mounts in a single gang box and optionally supervised. For use with the PAD 100-DUCTR only. |
| PAD100-0ROI | One Relay One Input Module provides one form C relay and one input. The relay is rated at 2 amps at 30VDC or 0.5 amps at 125VAC. |
SLC Features
The Potter protocol is a digital protocol with a proven design for reliability and noise immunity. The system does not require special cable or conductors for connection of the Signaling Line Circuit as long as the cable is compliant with NFPA 70 and NFPA 72.
The system allows for Class A or Class B installations as well as “T-Taps.”Each loop is capable of 127 points, with a max wiring distance of 10,000 ft.
Sensor Features
The sensors through the fire alarm control panel provide a real time status as to the condition of the system. The smoke detector sensitivity, heat detector temperature level and drift compensation are all programmable options. The system also allows for a day/night mode where the panel automatically adjusts the sensitivity depending on the time of day. To assist in the reduction of false alarms, the smoke detectors also have a maintenance warning that sends a trouble signal when a detector is dirty to the point that it can no longer maintain the programmed sensitivity.
User Interface
The fire alarm control panel has a 4 x 40 LCD display to provide information to the system status. The keypad has navigation keys to allow manipulation of the Menu on board the panel. The panel is shipped standard with the following LEDs:
- AC Power – Green
- Alarm – Red
- Earth Fault – Amber
- Supervisory – Amber
- Silenced – Amber
- Trouble – Amber
- Pre-Release – Amber
- Release – Red
P-Link
The common buttons include a Silence, Reset, Acknowledge, and Drill. All of the buttons are accessible once the locked door is opened.
The AFC-1000 has a proprietary communication protocol that communicates through a RS-485 connection to field devices. Up to 64 devices may be connected to a single P-Link connection. The P-Link includes the communication terminals and regulated 24 VDC connection for the field devices. The field devices may be any of the following:
PAD100-SLCE-Analog/Addressable loop expansion module
SLCE-127 –Nohmi addressable loop expansion module for retrofit applications.
RA-6075R – 2 x 16 LCD annunciator with a key pad in a locked metal enclosure.
RA-6500R(F) – 4 x 40 LCD annunciator with a key pad in a locked metal enclosure. Flush mount version available.
LED-16(F) – 16 LED annunciator with common indicators in a locked metal enclosure. Flush mount version available.
PSN-1000(E) – 10 amp, remote intelligent power supply with 6 NACs, 2 Inputs and a P-Link repeater. This panel is listed in conjunction with the AFC-100 as releasing circuits
CA-6500 – Class A convertor that converts the SLC, NACs and P-Link connection
UD-2000 – UL listed, Dual line telephone alarm communicator
DRV-50 – LED driver expander, used to connect up to 50 LEDs in a graphic display
FCB-1000 – Fire communication bridge, provides remote mounting of the Ethernet connection
FIB-1000 – Fiber interface module, used to extend P-Link to multimode fiber (2 required)
RLY-5 – Relay module, provides 5 form C relay contacts rated at 3.0 amps 24VDC/125AC
SPG-1000 – Serial parallel gateway, allows for the connection to a serial or parallel printer
The FIB-1000, FCB-1000 and the SPG-1000 may be installed in the stacker bracket or ordered with the optional rack mount enclosure.
MC-1000 Multi-Connect allows up to sixty-three AFC series panels to share a single reporting technology.
IDC-6 – Initiating device circuit provides 6 programmable inputs
AE-2 – Two card expansion cabinet
AE-8 – Eight card expansion cabinet
AE-14 – Fourteen card expansion cabinet
Ethernet/I.P. Connection
The AFC-1000 is shipped standard with an Ethernet connection.
This connection is the programming port and may be connected to a building Wide Area Network (WAN) or Local Area Network (LAN). Once connected to the Internet, the panel may be selectively programmed to e-mail alarm conditions, trouble conditions, supervisory conditions, test, Event History and detector status. An e-mail may be sent to the panel and the panel will e-mail the event history, detector status, configuration file or server status to an authorized E-mail account. In addition, reminders may be set to send an e-mail for service, testing or other conditions.
In addition, the Ethernet connection is UL listed as an IP communicator. The IP communicator is listed to report to the UL listed Sur-Gard III IP receiver. The IP communicator replaces the traditional less reliable alarm communicator transmitter that utilized telephone lines. The IP communicator is an active method of connection and communication to the monitoring station.
Chicago Building Code Requirements
The models CBC-DC-KIT-2, CTD2G, CITY, and FIRE are designed to comply with conventional and addressable Class I type building requirements of the City of Chicago, Illinois. They provide the ability to perform silencing of the system trouble bell and the city tie disconnect bell. They also allow disconnecting of the municipal tie fire alarm box. For City of Chicago fire alarm projects, a fire alarm plan review and permit are required.
CTD2G
The City Disconnect Switch is used to disconnect the fire alarm panel from reporting any alarm or trouble condition to the city in order to test and maintain the fire alarm system. When the key switch is turned to the Disconnect position a white pilot light illuminates to inform the user that the panel has been disconnected.
FIRE
The Fire Alarm Trouble Bell module is used to silence and test the fire alarm trouble bell. When the fire alarm system is in trouble the bell will ring. Moving the toggle switch to Bell Silence will silence the bell and activate the Bell Silenced LED.
When the trouble clears the Bell Silenced LED will turn off and a ring back will sound until the toggle switch is returned to the Bell Normal position. When the panel is normal, moving the toggle switch to the Bell Silence position will ring the bell. Pressing the Bell Test button will ring the bell.
CITY
The City Tie Trouble module is used to silence and test city tie disconnect troubles. When the CTD2G keyswitch is in the Disconnected position, the City Tie Trouble bell will ring. Moving the toggle switch to Bell Silence will silence the bell and activate the Bell Silenced LED. When the trouble clears the Bell Silenced LED will turn off and a ring back will sound until toggle switch is returned to the Bell Normal position.
When the CTD2G keyswitch is in the Normal position and the toggle switch on the CITY module is in the Bell Silence position, the City Tie Trouble bell will ring. Pressing the Bell Test button will ring the bell.
These modules can be each be mounted to a two-gang deep bell box or a two gang deep wiremold box and operates on 24VDC. The modules can be flush mounted with a two-gang plaster ring on a deep 4” square 1900 box.
For more information on and to order the above modules or the City Tie Disconnect Panel, please contact the following vendor:
Gemcom, Inc., 8828 S. Archer Ave.
Chicago, IL 60480 800-871-6840 www.gemcom.com
CBC-DC-KIT-2
The City Tie DISCONNECT PANEL combines 3 separate switch assemblies in one complete panel to simplify installation and wiring near the Fire Alarm Panel
The City Tie Disconnect Switch is used to disconnect the Fire Alarm Panel from reporting any Alarm or Trouble Condition to the City in order to test and maintain the Fire Alarm System. When the switch is turned to the Disconnected position, a White Pilot light illuminates to inform the user that the Panel has been disconnected. The City Tie Trouble Bell will ring and can be silenced using the City Tie Trouble Station on the bottom right of the Disconnect Switch.
Both the Fire Alarm Trouble and the City Tie Trouble Stations work the same way. In the “BELL NORMAL” position, the “BELL TEST” will sound the bell. When there is a trouble condition, the bell will sound. Switching the toggle to the “BELL SILENCE” position will silence the bell and the Bell Silenced LED will illuminate. When the trouble clears, the LED will turn off and a ring back will sound until the “BELL SILENCE” switch is returned to the normal position.
The back box contains 8 combination 1/2” / 3/4” knockouts. The door mounts with 2 locknuts and the back plate with 4 locknuts. The enclosure includes a key lock.
Additional Equipment Required
An incandescent backlit annunciator is required to comply with Class I type requirements. Contact the vendor listed below for the custom model XL8 Tabular Annunciator (see figure at right).
Space Age Electronics, Inc., 58 Chocksett Road
Sterling, MA 01564 (800) 486-1723 www.1sae.com

Dimensions

Ordering Information
| Model | Description | Stock No. |
| AFC-1000 | Fire Alarm Control Panel | 3992754 |
| Replacement Board AFC-1000 | 3992758 |
Potter Electric Signal Company, LLC
• St. Louis, MO • Phone: 800-325-3936
• www.pottersignal.com
8830157 – REV B • 1/20
firealarmresources.com


















