TRIM-TEX J Bead 3/8 Inch x 10 ft Capitol Materials Coastal

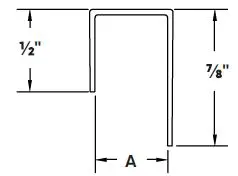
J Bead
The bead that started it all! The world’s first vinyl drywall finishing bead, this venerable profile still caps unfinished drywall with unparalleled ease — no mud required! Use this bead anywhere a finished drywall edge is called for.
Installation Guide
Technical Specs
Scan Below for Installation Video

Before Installation
Measure, cut and dry fit the bead.
Step 1:
Apply caulk to the inside of J Bead, if necessary.
Step 2:
Insert J bead onto the edge of the drywall (note that the longer leg goes behind the drywall, and smaller leg goes in front of the drywall).
Step 3:
Install drywall.

3700 W Pratt Avenue, Lincolnwood, IL 60712 • (800) 874-2333 • trim-tex.com




















