Electrolux ECS9979K Range Hood

Product Description
- Stir-fry instant suction function: When stir-frying, enable this function to increase suction instantly, and create a new “clean” kitchen in 1 minute.
- Side-draft technology: Peripheral smoke deflecting technology to lock fume, double sided intake turbine to achieve complete suction, multiple oil-smoke separation systems to purify the kitchen from outside to inside.
- Long oil cup: Less frequent cleaning, and longer service life.
- Removable panel: More thorough cleaning, and easier repair and maintenance.
- Delay management: Continue to suck for 5 minutes in the unattended state, and automatically turn off after completion, so as to easily remove residual fume without worries.
Precautions
Child Safety
Do not allow children to extend their fingers or other parts of the body into the range hood.
Warning: Destroy or recycle the appliance’s carton, plastic bags, and any other exterior wrapping material immediately after the product is unpacked. Children should never play with these items. Danger of suffocation!
Precautions for Use
- Always use a power supply compliant with the requirements of the appliance. A three-pin power socket must be reliably grounded.
- The wall on which the range hood will be installed should be strong enough to bear the dead weight of the range hood itself. The wall must be non-combustible.
- Do not expose the range hood to fire directly.
- Protect the motor, switches and other electrical parts against water.
- Do not change the specifications of electrical parts, change the internal circuit, or connect other lines.
- Do not scratch, knot, or squeeze the power cable.
- If any abnormal conditions occur during use, refer to the troubleshooting section for solutions before contacting the customer service centre. If the fault persists, unplug the power plug of the range hood and contact our customer service centre.
- If the light is damaged, replace it with a new one with the same specifications.
- This appliance is for household use only instead of unintended purposes.
- When oil residue stored in the oil cup reaches two thirds of its capacity, clean immediately to prevent spillage.
- Do not dismantle and repair the appliance without authorization. Otherwise, serious consequences may be followed.
- If users do not clean the range hood according to the instructions, there is a risk of fire.
- The room must be well-ventilated when the range hood is used in a place where gas or other fuel is combusted {but the range hood should not be installed in a place with large convection. Otherwise, the suction performance will be degraded}.
- The gas discharged from the range hood cannot be discharged into the waste smoke tube of burning gas or other fuels.
Environmental Protection
“Environmental protection, benefit of mankind, pollution prevention, and continuous improvement” are the philosophy our company’s environmental management. The environmental impact caused by our products in use and after service life is hereby warned to you as follows:
Waste cartons and plastic bags are recyclable while waste foam is not. Properly classify these wastes after unpacking.
Packing List
Please check the items in the package against the packing list. If there is any missing or lost item:
- Please ask the vendor to handle this if it is the responsibility of the company or vendor.
- Please contact the vendor or the company if it is your responsibility.

Technical Specifications

Schematic Circuit Diagram

Installation Instructions
Installation Requirements
- The wall on which the appliance is installed should be strong enough to bear the dead weight of the appliance.
- The range hood must not be in contact with the electrical lines inside and outside the wall. Otherwise, there is a risk of electric shock.
- The range hood should not be installed in a place with large convection. Otherwise, the suction performance will be degraded.
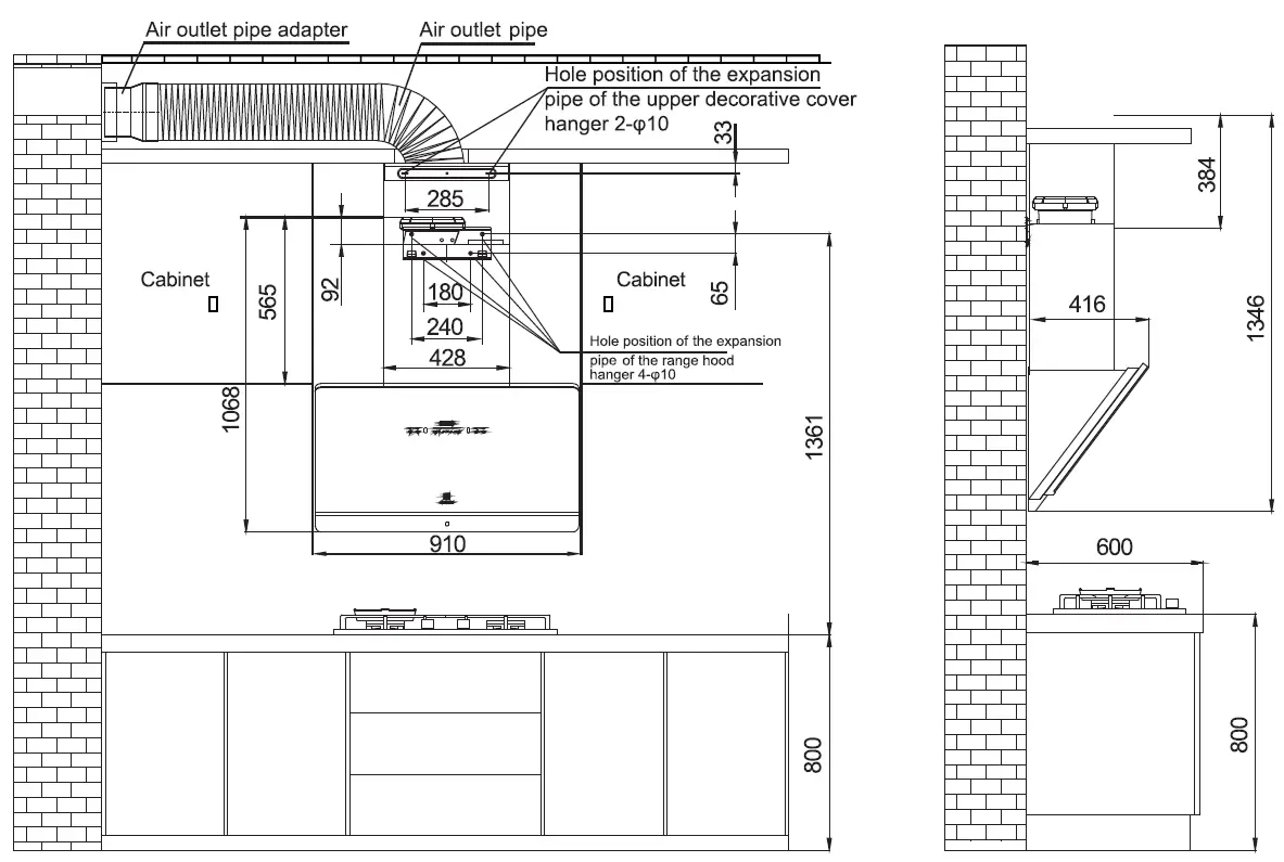
- The range hood should be securely installed on the wall 650 mm above the cooker.
- The distance between the air outlet of the range hood and the upper exhaust hole should be less than or equal to 1.5 m, so as to avoid degraded suction performance because of too long air outlet or too many turns (generally one turn).
- The following figure shows the installation dimension of the air outlet when it is mounted to the cupboard or ceiling.
Installation Method
- The distance from the bottom of the range hood to the cookware supporting surface on the stove should be at least 650mm.lf the installation instructions of gas stove specify a greater distance, it should be considered.
Please select an appropriate height according to the condition and the suggestions of the installer. - Installation of ECS961 OK/ECS9612K:
Identify the hole location, drill two holes with a diameter of 10 mm, a depth of 53 mm and a spacing of 180 mm on the wall, and bury the expansion pipes in the holes. Secure the mounting plate to the wall with two 05 x 53 mm wood screws.
Installation of ECS9979K:
Drill 4 holes in the wall with an impact drill, and their sizes are displayed in the installation diagram. Then bury 4 plastic expansion pipes with a diameter of 10 mm, and fix the mounting plate in the position with the size shown in the diagram. (Note: Avoid electric wires inside the wall while drilling. Otherwise, there is a risk of electric shock.) - To install a decorative cover, determine the position of the mounting hole of the decorative cover mounting plate according to the installation diagram.
Drill two holes with a diameter of 10 mm and a depth of 50 mm with an electric impact drill at the corresponding positions, bury plastic expansion pipes, and fix the upper decorative cover bracket on the wall with two screws (05 x 53). (Note: Avoid electric wires inside the wall while drilling. Otherwise, there is a risk of electric shock.) - Hang the main body on the appliance mounting plate, and check that the main body is firmly hung and level. No skew is allowed.
- After the main body is well installed, determine the drilling position of the impact drill as shown in the installation diagram, firmly bury the expansion pipes and fix the safety block. Screw in ST5X19 screws (to prevent accidental decoupling of the machine body due to external force).
- First, remove the eight ST4X16 screws at the air outlet, put the rubber gaskets in order, and align all the holes with the mounting holes on the top plate of the case.
Installation diagram of ECS9979K
Installation diagram of ECS961 OK/ ECS9612K
- Align the eight holes of the air outlet holder with the mounting holes on the rubber sealing ring. Please note that the direction of the air outlet, should be tilted towards the electric box. Drive eight ST4X16 self-tapping screws to fix the air outlet.
- Then wrap the air duct with the rotating clamp of the air outlet, and pay attention to the direction in which you wrap the duct. Then insert the air outlet pipe into the bottom of the circular groove of the air outlet holder (pay attention to the direction). Finally insert the four clamping feet of the clamp into the four clamping grooves of the air outlet, and press the clamp down with strength to ensure that the clamping feet of the clamp are well inserted.
- Pull out the upper decorative cover, adjust the height of the upper decorative cover and hook it to the mounting hole. Align the holes on both sides of the upper decorative cover with the anchor holes of the bracket, and secure them with two stainless steel screws (M4 x 12) with gaskets. (Note: Be careful while pulling out the upper cover and pay attention to sharp edges around the product to avoid cuts.)
- Take the other end of the air outlet pipe out of the room, and check that the pipe wall is not bulging or flat and can bend freely. Connect the power supply, start the motor, and check whether the two metal pieces turn up. The two metal pieces should fall back naturally when the appliance is turned off.
- Direct connection is possible when the aperture of the smoke outlet on the kitchen wall is larger than the outer diameter of the exhaust pipe. Otherwise, cut off the excess part of the exhaust pipe connector smaller than the smoke outlet as required, connect the exhaust pipe and exhaust pipe connector with adhesive tape, and install it into the smoke outlet. Seal the connector with sealant.
- lf you connect the exhaust pipe directly to the outside, extend the exhaust pipe at least 30 mm out of the wall, with the air outlet slightly tilting down to avoid backflow of rainwater.
- Align the hanging lugs at both ends of the oil cup with the slots on the two oil cup brackets at the lower end of the rear of the range hood, push the oil cup horizontally inward, and check that the oil cup is securely installed.
- lnsert the power plug of the appliance into a power socket that is reliably grounded, and try to run the appliance to confirm whether the functions are normal.
Note: The diameter of the exhaust wall hole should be similar to that of the air outlet pipe, and should not be too small. Otherwise, it will lead to poor smoke exhaust, increased noise, reduced air volume, etc. .
Installation Checks
The user should first check whether the range hoop is well installed.
Power Settings
After checking that the appliance is properly installed, plug the power plug of the appliance into a power socket that is reliably grounded.
Instructions for Use
- The instructions for use of the Power button of ECS961 OK:
Power
When you tap the “Power” button, the buzzer sounds and all buttons are lit up in white. The red LED indicator lights turn on from left to right for 0.1 seconds. In the final 0.6 seconds, if there is a speed setting memory, the fan is turned on in the memorized speed setting. Otherwise, the fan is turned on in speed 2, and the red power indicator light and red indicator lights for the corresponding speed setting and lower speed setting are turned on. Open the flap and enter the on state.
With power on, when you tap the “Power” button, the buzzer sounds, all the buttons are turned off, and the appliance is turned off (The light is not affected). The air inlet flap is closed (the flap will not be closed when the light is on; otherwise, it will be closed).
Fan Speed Settings
With power on, you can tap the “1”, “2” or “3” button to set the fan speed with a beep sound. The indicator light for the fan speed button you tap and the indicator lights with lower speed setting are displayed in red. You can switch fan speed freely among “1”, “2” and “3” by tapping the fan speed key.
Stir-fry “lf
With power on, when you tap the “Stir-fry” button, the buzzer sounds, and the red indicator lights for the fan speed and the button will be displayed. The fan will return to the original speed setting after the speed setting in stir-fry mode runs for 1 minute. When you tap the “Stir-fry” button again within 1 minute, the fan will restore its original speed setting with a beep sound. Directly press other speed setting buttons to enter the corresponding speed setting.
Light
ln standby/on state, when you tap the “Light” button, the buzzer sounds, the Light button is lit up, the corresponding red indicator light is lit up, and the light turns on. You can tap the “Light” button again to turn off the indicator light and the light.
Delay Shutdown
With fan on, when you tap the “Delay” button, the buzzer sounds, the red indicator light for the Delay button blinks, and the system starts to execute the “Delay Shutdown” function. The fan runs in speed setting 1 and the red indicator light for speed setting 1 turns on. The appliance shuts down after 5 minutes. You can tap the “Delay” button again in “Delay Shutdown” mode to disable the delay shutdown function. Upon completion of delay shutdown, the appliance is shut down and the light turns off.
Strainer Clean S
After the appliance is powered on for the first time, the system will accumulate the operation time of the appliance. When the operation time reaches 50 hours, the red indicator light for the Clean button will blink. Users needs to remove the strainer for cleaning. Press and hold the “Strainer Clean” button for 3 seconds after the strainer is reinstalled to clear the alarm (The 50-hour timer starts again).
Flap
When there is lighting or the fan is on, turn off the hood to open the air inlet flap, otherwise close the air inlet flap. - The instructions for use of the Power button of ECS9612K:
Power
When you tap the “Power” button or wave your hand right, the buzzer sounds and all white button indicator lights are lit up. The red LED indicator lights turn on from left to right for 0.1 seconds. In the last 0.6 seconds, if there is a speed setting memory, the fan is turned on in the memorized speed setting. Otherwise, the fan is turned on in speed 2, and the red power indicator light, the red indicator light for the corresponding speed setting, and the ventilation indicator light are turned on. The appliance is powered on. With power on, when you tap the “Power” button, the buzzer sounds, all the buttons are turned off, and the appliance is turned off (The light is not affected). The air inlet flap is closed (the flap will not be closed when the light is on; otherwise, it will be closed).
Fan Speed Settings
With power on, you can tap the “1”, “2”, “3”, “4”, or “5” button or wave your hand left or right to set the fan speed with a beep sound. The indicator light for the fan speed button you tap, the ventilation indicator light, and the indicator lights with lower speed setting are displayed in red. You can switch fan speed freely among “1”, “2”, “3”, “4”, and “5” by tapping the fan speed key.
Stir-fry
With power on, when you tap the “Stir-fry” button, all the speed settings are displayed. The fan will return to the original speed setting after the speed setting in stir-fry mode runs for 1 minute. When you tap the “Stir-fry” button again within 1 minute, the fan will restore its original speed setting with a beep sound.
Ventilation
With power on, when you tap the “Vent” button, the ventilation function is enabled, and the red indicator light for the button blinks. The fan runs for 5 minutes in speed setting 1 every one hour. You can tap the “Vent” button again or swipe right to cancel ventilation. The fan starts in speed setting 2. You can tap the “Power” button or swipe left to shut down the appliance.
Light
In standby/on state, when you tap the “Light” button, the buzzer sounds, the Light button is lit up, the corresponding red indicator light is lit up, and the light turns on. You can tap the “Light” button again to turn off the indicator light and the light.
Delay Shutdown
With fan on, when you tap the “Delay” button or control the appliance with gesture, that is, swiping left in speed setting 1, the buzzer sounds, the red indicator light for the Delay button blinks and the red indicator light for speed setting 1 turns on, and the system starts to execute the “Delay Shutdown” function. The fan runs in speed setting 1 and stops after 5 minutes. You can tap the “Delay” button again in “Delay Shutdown” mode to disable the delay shutdown function. Upon completion of delay shutdown, the appliance is shut down and the light turns off.
Strainer Clean G
After the appliance is powered on for the first time, the system will accumulate the operation time of the appliance. When the operation time reaches 50 hours, the red indicator light for the Clean button will blink. Users needs to remove the strainer for cleaning. Press and hold the “Strainer Clean” button for 3 seconds after the strainer is reinstalled to clear the alarm (The 50-hour timer starts again).
Flap
When there is lighting or the fan is on, turn on the hood to open the air inlet flap, otherwise close the air inlet flap.
Gesture Settings
With power off, press and hold the “Power” button for 3 seconds to enter the gesture setting mode. Tap the “1” button. The red indicator light turns on and the gesture function is enabled. Tap the “2” button. The red indicator light turns on and the gesture function is disabled. In gesture setting mode, if you tap the “Power” button or “Light” button, or the appliance is inactive for 3 seconds, the appliance is turned off and the gesture function is set (The gesture function is enabled by default).
Gesture Function
When the appliance is turned off, if you wave your hand left, the appliance remains off without response. You can wave your hand right to start the appliance. The appliance starts in speed setting 2 for the first time. The appliance will starts in the last speed setting in later uses (not ventilation or delay mode). When the appliance is operating, you can wave your hand left to reduce speed setting from stir fry, 5, 4, 3, 2, 1, delay shutdown to shutdown, or wave your hand right to increase speed setting from 1, 2, 3, 4, 5 to stir fry, and then maintain at the stir fry mode without other response. When the delay shutdown function is enabled, you can wave your hand left to shut down the appliance, or wave your hand right to start the appliance in speed setting 2. When the ventilation function is enabled, you can wave your hand left to shut down the appliance, or wave your hand right to start the appliance in speed setting 2. In gesture setting mode, the appliance does not respond when you wave your hand left or right. - The instructions for use of the Power button of ECS9979K:

Power CD
When you tap the “Power” button or wave your hand right, the buzzer sounds and all white button indicator lights are lit up. The red LED indicator lights turn on from left to right for 0.1 seconds. In the last 0.6 seconds, if there is a speed setting memory, the fan is turned on in the memorized speed setting. Otherwise, the fan is turned on in speed 2, and the red power indicator light, the red indicator lights for the corresponding speed setting and lower speed settings, and the ventilation indicator light are turned on. Open the lifting panel and enter the on state. With power on, when you tap the “Power” button, the buzzer sounds, and all the button lights and indicator lights are turned off (The light is not affected). The clock is steadily on and the appliance is turned off. The lifting panel is closed.
Fan Speed Settings
With power on, you can tap the “1”, “2”, “3”, “4”, or “5” button or wave your hand left or right to set the fan speed with a beep sound. The indicator light for the fan speed button you tap, the ventilation indicator light, and the indicator lights with lower speed setting are displayed in red. You can switch fan speed freely among “1”, “2”, “3”, “4”, and “5” by tapping the fan speed key or using gestures.
Stir-fry
With power on, when you tap the “Stir-fry” button, the buzzer sounds, and all the speed settings are displayed. The fan will return to the original speed setting after the speed setting in stir-fry mode runs for 1 minute. When you tap the “Stir-fry” button again within 1 minute, the fan will restore its original speed setting with a beep sound. If you wave your hand right within 1 minute, the appliance will not respond, and if you wave your hand left, speed setting 5 is enabled. Stir-fry for 1 minute, and the clock should display countdown (only for an appliance with clock function). Directly press other speed setting buttons to enter the corresponding speed setting.
Ventilation
With power on, when you tap the “Vent” button, the ventilation function is enabled, and the red indicator light for the button blinks. The fan runs for 5 minutes in speed setting 1 every one hour. The screen displays a 5-minute countdown, and the clock is displayed for the other 55 minutes after the countdown. You can press and hold the “Vent” button again for 3 minutes or swipe right to cancel ventilation. The fan starts in speed setting 2. You can tap the “Power” button or swipe left to shut down the appliance.
Light
In standby/on state, when you tap the “Light” button, the buzzer sounds, the Light button is Iii up, the corresponding red indicator light is Iii up, and the light turns on (high illumination). You can tap the “Light” button again to switch from high illumination to low illumination, repeat the operation to turn off the indicator light and the light, and repeat the operation again to enable high illumination, and so on and so forth.
Delay Shutdown
With fan on, when you tap the “Delay” button or control the appliance with gestures, that is, swiping left in speed setting 1, the buzzer sounds, the red indicator light for the Delay button blinks , the system starts to execute the “Delay Shutdown” function. The fan runs in speed setting 1, the red indicator light for speed setting 1 turns on, and the screen starts to count down (by default, the countdown starts from 5 minutes). You can tap the “Delay” button again to change the time from 5 minutes to 10 minutes, repeat the operation to change the time from 10 minutes to 15 minutes, and repeat the operation again to disable the delay shutdown function and restore speed setting 2. When the delay function is on, press and hold the delay button for 3 seconds or wave your hand to the right to exit the delay and restore speed setting 2 directly. Press the power button or wave your hand left to turn off the appliance. Upon completion of delay shutdown, the appliance is shut down and the light turns off.
Strainer Clean
After the appliance is powered on for the first time, the system will accumulate the operation time of the appliance. When the operation time reaches 50 hours, the red indicator light for the Clean button will blink.
Users needs to remove the strainer for cleaning. Press and hold the “Strainer Clean” button for 3 seconds after the strainer is reinstalled to clear the alarm (The 50-hour timer starts again).
Lifting
When there is lighting or the fan is on, open the lifting panel, otherwise close the lifting panel.
Clock setting
With power off, press and hold the “Power” button and “Light” button for 3 seconds to enter the clock setting mode. The clock flashes, the “1 “, “2”, “3”, “4”, “5” buttons and the red indicator lights are lit up. Press and hold “1” and “2” to change the hour, “1” to decrease the value, “2” to increase the value, and the input range is 1-12. Press and hold “1” and “2” to continuously change the number. Press and hold “3” and “4” to change the minute, “3” to decrease the value, “4” to increase the value, and the input range is 0-59. Press and hold “3” and “4” to continuously change the number. Press “5” to switch between AM and PM. In the clock setting mode, tap the “Power” button or “Light” button or the appliance is inactive for 3 seconds, the appliance is turned off.
Gesture Settings
With power off, press and hold the “Power” button for 3 seconds to enter the gesture setting mode, and the “1” and “2” buttons are lit up. All shipped appliances feature the gesture function by default. The red indicator for the “1” button is lit up, and the function screen displays “on”. When you tap the “2” button, the red indicator for the “2” button is lit up, and the red indicator for the “1” button is turned off. At this time, the gesture function is turned off and the screen displays “off’. In gesture setting mode, if you tap the “Power” button or “Light” button, or the appliance is inactive for 3 seconds, the appliance is turned off and the gesture function is set.
Gesture Function
When the appliance is turned off, if you wave your hand left, the appliance remains off without response. You can wave your hand right to start the appliance. The appliance starts in speed setting 2 for the first time. The appliance will starts in the last speed setting in later uses (not ventilation or delay mode). When the appliance is operating, you can wave your hand left to reduce speed setting from stir fry, 5, 4, 3, 2, 1, delay shutdown to shutdown, or wave your hand right to increase speed setting from 1, 2, 3, 4, 5 to stir fry, and then maintain at the stir fry mode without other response. When the “Delay Shutdown” function is enabled, you can wave your hand left to shut down the appliance, or wave your hand right to start the appliance in speed setting 2When the ventilation function is enabled, you can wave your hand left to shut down the appliance, or wave your hand right to start the appliance in speed setting 2. (In clock setting mode, the appliance does not respond when you wave your hand left or right. In gesture setting mode, the appliance does not respond when you wave your hand left or right.)
Removal of the light:
- Extend a small slotted screwdriver or similar objects into the gap between the light cover and the hood.

- Pry up the light from the hood and disconnect the connector. The light can be replaced.
Removal of the switch:
- Removal of ECS9979K switch:
Unscrew the 3 screws on the top of the back of the glass fiber reinforced plastic panel, directly remove the glass panel. Then remove the switch platen, unscrew the screws on both sides of the switch, and replace the switch. - ECS9612K Removal of ECS9610K switch:

Unscrew the 2 big flat head screws behind the glass with a screwdriver, then press and hold the glass panel to push downward, and then remove the glass. Then unscrew the three screws securing the switch to remove the switch.
Maintenance
Maintenance guarantees good performance. Please take good care of your appliance. Be sure to cut off the power supply before any maintenance operations {hold the plug and remove it). Perform maintenance operations with gloves to prevent cuts by sharp edges of the appliance. Remove oil stains on the surface of the strainer and mainframe regularly, and keep the appliance clean. Clean the strainer every month to ensure good suction and exhaust performance. Perform total preventive maintenance every year to clean oil stains and guarantee good performance. Do not clean the appliance with water or flammable cleaning agent. Maintenance ECS9612K/ ECS9610K:
Removal of Parts



Handle with care while disassembling parts to avoid distortion or damage.
- Press the lighting button to fully open the flap glass, and then unplug the power plug.
- Unscrew the 5 screws under the glass with a screwdriver and remove the lower glass to clean the inside.
- Remove the screws securing the strainer and remove the inner strainer.
- Remove the screws securing the case cover and remove the case cover.
- Remove the screws securing the guide ring and remove the guide ring.
- Remove the wind wheel cap in the direction as indicated by the arrow and remove the wind wheel.
- After maintenance operations, reinstall parts in the reverse order of removal.
Cleaning of Parts
- Please use neutral detergent, soft cloth and soft brush for cleaning parts. Do not use organic solvents.
- Please soak parts for 30 minutes before cleaning. Avoid deformation or damage during cleaning.
- Upon completion of part cleaning, rinse parts with fresh water and wipe dry with a soft cloth.
- Use a soft dry cloth or soft brush to clean the electrical parts, instead of water or detergent.
- If users do not clean the appliance according to the instructions, there may be a risk of fire.
Maintenance of ECS9979K:
Press the panel’s lifting button to lift the glass panel to the top, remove the strainer assembly. Separate the inner and outer strainers, soak them in warm water with neutral detergent, and clean them with a brush. Dry the cleaned strainers in the air or wipe them dry, and install them in turn to ensure that the grease filters are well installed to prevent any scratch when the glass panel slides. Dry the oil cup in the air or wipe it dry, hold both ends of the oil cup and align them with the two buckles at the lower end of the hood to install it. Make sure the oil cup is well installed. Please clean the oil cup regularly to avoid any smelly or solidified oil due to a long storage time.
Removal of air duct:

Handle with care while disassembling parts to avoid distortion or damage.
- Unscrew the screws securing the external decorative cover and remove the external decorative cover.
- Remove the screws securing the case cover and remove the case cover.
- Remove the screws securing the guide ring and remove the guide ring.
- Remove the wind wheel cap in the direction as indicated by the arrow and remove the wind wheel.
- After maintenance operations, reinstall parts in the reverse order of removal.
Cleaning of Parts
- Please use neutral detergent, soft cloth and soft brush for cleaning parts. Do not use organic solvents.
- Please soak parts for 30 minutes before cleaning. Avoid deformation or damage during cleaning.
- Upon completion of part cleaning, rinse parts with fresh water and wipe dry with a soft cloth.
- Use a soft dry cloth or soft brush to clean the electrical parts, instead of water or detergent.
- If users do not clean the appliance according to the instructions, there may be a risk of fire.
Note:
The range hood should be maintained by skilled personnel.
Troubleshooting

Always remove the power plug before troubleshooting
Warning:
- Please cut off the power supply before connecting or replacing plug-ins.
- A damaged power cable must be replaced by a skilled person from the manufacturer, its repair department or other similar departments.
- Do not suck flame into the appliance. Otherwise, there may be a risk of fire.
Part Names


CONSUMER CARE CENTER

www.electrolux.com
The Thoughtful Design Innovator.
Do you remember the last time you opened a gift that made you say, “Oh! How did you know? That’s exactly what I wanted!” That’s the kind of feeling that we at Electrolux seek to evoke in everyone who chooses or uses one of our products. We devote time, knowledge, and a great deal of thought to anticipating and creating the kind of appliances that our customers really need and want. This kind of thoughtful care means innovating with insight. Not design for design’s sake, but design for the user’s sake. For us, thoughtful design means making appliances easier to use and tasks more enjoyable to perform, freeing our customers to experience the ultimate 21st century luxury: ease of mind. Our aim is to make this ease of mind more available to more people in more parts of their everyday lives, all over the world. The “Thinking of you” promise from Electrolux goes beyond meeting the needs of today’s consumers. It also means we’re committed to making appliances safe for the environment-now and for future generations. Electrolux. Thinking of you. Share more of our thinking at www.electrolux.com


Installation diagram of ECS961 OK/ ECS9612K
Power
Power

Unscrew the 3 screws on the top of the back of the glass fiber reinforced plastic panel, directly remove the glass panel. Then remove the switch platen, unscrew the screws on both sides of the switch, and replace the switch.













