SIEMENS XLS-MSE2-R-ADPT Adapter Kit

INTRODUCTION
Use the Model XLS-MSE2(R)-ADPT Adapter Kit from Siemens Industry, Inc., to upgrade existing MXL Systems installed in Model MSE-2(R) backboxes to FireFinder- XLS/Desigo Fire Safety Modular/Cerberus PRO Modular Systems. The XLS-MSE2(R)- ADPT Adapter Kit consists of an adapter plate, inner door and outer door. The XLSMSE2- ADPT (S54430-C7-A1) inner and outer doors are black; the XLS-MSE2R-ADPT (S54430-C7-A2) inner door is black and outer door is red. The XLS-MSE2-ADPT and the XLS-MSE2R-ADPT are identical in all other ways and will be referred to in the remainder of this document as XLS-MSE2-ADPT.
The adapter plate installs over the existing studs in an MSE-2(R) backbox with the #1/4 x 20 hex flange nuts supplied and provides four studs on which to mount one CAB-MP mounting plate (P/N 500-633012) and four studs on which to mount one PTB (P/N 500-033390).
The inner door has an opening in it for the installation of an operator interface and other modules. There are eight threaded studs around each opening on the inner door. These threaded studs allow equipment installation on the door. The equipment is secured by #10-32 nuts. The inner door is permanently hinged right, is attached to the backbox by screws, and is secured to the backbox by swell-action latches.
The XLS-MSE2(R)-ADPT is for indoor use only in dry environments.
With this conversion, the maximum battery set that can be used in the backbox is 33 AH (model BTX-1). If larger batteries are required, use either a BB-55 or CAB-BATT battery box.
When converting an MXL to an XLS/Desigo Fire Safety Modular/Cerberus PRO Modular system, it may be necessary to use the XLS-EXT-CABLE-PKG (S54430-K1- A1). This kit includes a 58 inch 60-pin Data Bus cable, a 58 inch 6-pin CAN Bus cable and a 20 inch 12AWG ground wire.
To convert an MSE-2(R) backbox from an MXL System to an XLS/Desigo Fire Safety Modular/Cerberus PRO Modular component system, you must first disassemble the MXL and then assemble the XLS/Desigo Fire Safety Modular/Cerberus PRO Modular. This two-part procedure is described in detail below.
DISASSEMBLY OF MXL SYSTEM
Remove all system power, first battery and then AC.
- Remove and discard the outer door and the hardware used to secure it in place.
- Disconnect and remove the modules from the inner door.
- Remove all modules from the backbox, making sure to mark all wires.
- Remove the MPS power supply and batteries from the backbox. Save the mounting hardware for later use.
ASSEMBLY OF XLS/DESIGO FIRE SAFETY MODULAR/CERBERUS PRO MODULAR SYSTEM
The three parts of the XLS-MSE2-ADPT are installed separately. The adapter plate is installed first, followed by the inner door and then the outer door.
- Adapter Plate The XLS-MSE2-ADPT adapter plate has holes in it that fit over the studs in the MSE-2 backbox in only one way.
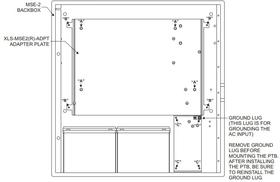
- Place the XLS-MSE2-ADPT over the studs in the backbox and secure it in place with the four #1-4 x 20 hex flange locknuts supplied in the locations marked “A” in Figure 1.

Figure 1
Installing the XLS-MSE2-ADPT Adapter Plate in the MSE-2 Backbox - One CAB-MP can be mounted on the XLS-MSE2-ADPT using the studs marked “B” in Figure 1.
- Install the required CC-5/CC-2 system cardcage(s), PSC-12 power supply optional PSX-12 power supply extender and PTB power termination board after careful consideration of NEC Article 760 for separation of power limited and non-powered limited wiring. Use the hardware provided with those modules to mount them to the CAB-MP mounting plate. Refer to the CC-5/CC-2 Installation Instructions, P/N 315-033035, the PSC-12 Installation Instructions, P/N 315-033060, and the PSX-12 Installation Instructions, P/N 315-034120
- One PTB can be mounted on the XLS-MSE2-ADPT using the studs marked “C” and “D” in Figure 1. Refer to the PTB Installation Instructions, P/N 315- 034877. The stud marked “D” is a lug for grounding the AC input. Remove the ground lug before mounting the PTB. After installing the PTB, be sure to reinstall the ground lug.
- There is room in the bottom of the enclosure for a battery set of up to 33 AH.
- System cards can be installed in the CC-5 cardcage, as required.
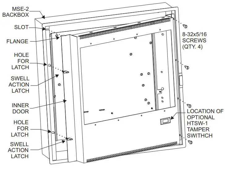
- Install the Inner Door Install the inner door by following the steps listed below.
- Place two of the four #8-32×5/16 screws provided in the top and bottom holes on the right-hand side of the backbox.
- Tighten the screws just a few turns leaving a 1/8-inch gap between the head of the screws and the backbox.
- Slide the inner door into position under the screws.
- Make certain the flange at the left-hand top of the inner door is seated in the slot in the backbox and the swell action latches located near the top and bottom of the inner door are seated in their respective holes in the backbox. (Refer to Figure 2.) Press the latches down to secure them in place, adjusting the door as needed so that it seats securely in the enclosure.

Figure 2
Installing the Inner Door - Insert the remaining two screws in the two holes on the right side of the backbox to secure the inner door. Tighten all four of the screws.
- Install a FCM2041-U2/-U3 on the inner door. Refer to the PMI Installation Instructions, P/N 315-033070, the FCM2041-U2 Installation Instructions, Document ID A6V11231623, or the FCM2041-U3 Installation Instructions, Document ID A6V11231630, for further information.
- Install door-mounted modules (FCM-6, LCM-8, SCM-8) as needed for system operation.
- Insert blank plates, as needed, in unused spaces on door and secure with #10-32 nuts. (Refer to Table 1 and Figure 3.)
| TABLE 1 INNER DOOR PLATES | ||
| MODEL | DESCRIPTION | MOUNTING |
| ID-MP | Mounting plate/bracket for FCM-6, LCM-8, SCM-8 and BCM. | Mounts on studs in door. Secured with two 10-32 nuts. |
| ID-SP | Blank insert the same size as the ID-MP mounting plate/bracket. | Mounts on studs in door. Secured with two 10-32 nuts.
Up to four ID-MPs or ID-SPs can be installed on one row. |
Models LVM and FMT, one module width each, mount to the inner door. No other modules (PSC-12/PSX-12/CC-5/CC-2) may be located behind these modules.
Figure 3
Inner Door and Plates
Install the Outer Door
- Insert the hinge pins on the outer door in the hinges on the backbox.
- Place the XLS system label, P/N 575-234411, Desigo Fire Safety Modular sytem label, P/N A5Q00075144, or Cerberus PRO Modular system label, P/N A5Q00075194, on the inside of the outer door.
- A ground wire comes installed on the inside of the outer door. (Refer to Figure 4.) Bring the free end of the ground wire through the opening at the top left-hand side of the inner door and secure it in place on an unused stud in the backbox with a #10-32 hex nut (user supplied).
- Close the outer door and secure with the key latch.

Figure 4
Ground Wire Installation
WIRING
In compliance with NEC Article 760, all power limited fire protective signaling conductors must be separated a minimum of ¼ inch from all of the following wiring located within a control panel:
- electric light
- power
- Class 1 or non-power limited fire protective signaling conductors
To meet these requirements, the following guidelines must be observed when installing modules and wiring to this control panel.
When installing power limited field wiring, the installer must comply with NEC article 760, which states:
The fire alarm power-limited circuits are installed using Types FPL, FPLR, FPLP or permitted substitute cable, provided these power-limited cable conductors extending beyond the jacket are separated by a minimum of 0.25 in. (6.35 mm) or by a nonconductive sleeve or nonconductive barrier from all other conductors.
If energy limited cable or equivalent is not used within the enclosure, then the following guidelines do not apply. In that case, be sure to follow standard wiring practices.
Wiring Entering Enclosure Non-Power Limited Wiring
Wiring entering the enclosure from the bottom and right side of the backbox is considered non-power limited wiring. Wiring must be in the shortest route and must not overlap any other wiring.
Power Limited Wiring
Wiring entering the enclosure from the top and the left side of the backbox is considered power limited. Wiring must be in the shortest route and must not overlap any other wiring.
Use the existing lances in the backbox to dress the wires as needed to maintain separation of power limited and non-power limited wiring.
Use the existing lances on the adapter plate to dress the wires as needed to maintain separation of power limited and non-power limited wiring.
Install Wiring
The primary mains input must have a separate or dedicated circuit breaker. Wire in accordance with local codes and Article 760 of NEC.
- Remove the knockouts in the backbox for the entry of field wiring.
- Pull all field wiring into the backbox. Do not dress the wiring until the location of all the equipment is known.
- Install the wiring from the external power source to the approximate location of the power supply.
Cyber security disclaimer
Siemens products and solutions provide security functions to ensure the secure operation of building comfort, fire safety, security management and physical security systems. The security functions on these products and solutions are important components of a comprehensive security concept.
It is, however, necessary to implement and maintain a comprehensive, state-of-the-art security concept that is customized to individual security needs. Such a security concept may result in additional site-specific preventive action to ensure that the building comfort, fire safety, security management or physical security system for your site are operated in a secure manner. These measures may include, but are not limited to, separating networks, physically protecting system components, user awareness programs, defense in depth, etc.
For additional information on building technology security and our offerings, contact your Siemens sales or project department. We strongly recommend customers to follow our security advisories, which provide information on the latest security threats, patches and other mitigation measures.
http://www.siemens.com/cert/en/cert-security-advisories.htm
Siemens Industry, Inc.
Building Technologies Division
Florham Park, NJ
Siemens Canada, Ltd.
1577 North Service Road East
Oakville, Ontario
L6H 0H6 Canada



















