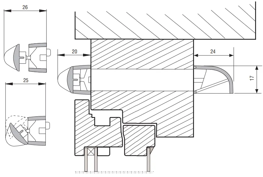
Technical data. 40cm²
Installation instructions
Slot ventilator AW-40 / AB-40
AB-40 Slot Ventilator


Hole-making, 21 holes X 13 mm gives a total of 27cm² open ventilation area.

Hole-making, 2 slots 167,5 X 13 mm gives a total of 42cm² open ventilation area.

Easy to install !
Suitable for installation in upper window frame/casement.
When installing in a double-pane window frame, seal with a dust seal strip around the holes between the frames.
This is to avoid condensation.
Prevent cracking of the window frame / casement when making holes.
To prevent cracking, use clamps to tighten down a wooden block against the surface where the drill is to pass through the frame/casement.
Avoid drilling too close to window glass and edges of the window frame / casement to prevent cracking.
For optimum performance, use silicone along edges and slots, also along the underside of the vent.

Copyright O Volution Sweden AB
009-925001-D_220113
We accept no liability for printing errors and reserve the right to make changes to material and design
















