DOMETIC DCU Self-Contained Air Conditioning System

Product Information: Climate Control Marine Self-Contained
The Climate Control Marine Self-Contained is a DCU, DLU, DTG, ECD, TX air conditioning system designed for marine use. It is a self-contained unit that provides air conditioning and climate control capabilities on boats or other marine vessels. The system comes with various components, including a supply air grille, digital display, electric box, remote air sensor cable (optional), seawater outlet hose, overboard discharge, seawater inlet hose, seawater scoop thru-hull inlet, seacock shut-off valve, seawater strainer, and pump.
The installation manual for this product is available in multiple languages online at documents.dometic.com.
Product Usage Instructions
- Read the installation manual completely to familiarize yourself with the product and understand the necessary connections and installation process.
- Plan the connections that need to be made to the air conditioner, including ducting, condensate drain line, seawater inlet and outlet hoses, electrical power connections, location of the control, and seawater pump placement. Ensure easy access for routing and future maintenance.
- Before proceeding with the installation, observe the following directives to reduce the risk of accidents and injuries:
- Do not install the air conditioning unit in a location containing gasoline engines, tanks, LPG/CPG cylinders, regulators, valves, or fuel line fittings. This could result in an explosion hazard.
- Unless labeled otherwise, self-contained units do not meet federal requirements for ignition protection. Follow all safety warnings to avoid serious injury or death.
- Refer to the condensing unit’s product data plate label for the quantity of refrigerant shown in weight and GWP. The refrigerant added should be noted on the unit label.
- Follow the provided component identification diagram to locate and identify the various components of the air conditioning system.
- Proceed with the installation, ensuring proper connections, routing, and placement of the components as per the installation manual.
- After installation, test the system to ensure proper functioning.
- Regularly maintain and clean the system as per the maintenance instructions provided in the installation manual.
Copyright
© 2022 Dometic Group. The visual appearance of the contents of this manual is protected by copyright and design law. The underlying technical design and the products contained herein may be protected by design, patent or be patent pending. The trademarks mentioned in this manual belong to Dometic Sweden AB. All rights are reserved.
Important notes
Please read these instructions carefully and follow all instructions, guidelines, and warnings included in this product manual in order to ensure that you install, use, and maintain the product properly at all times. These instructions MUST stay with this product.
By using the product, you hereby confirm that you have read all instructions, guidelines, and warnings carefully and that you understand and agree to abide by the terms and conditions as set forth herein. You agree to use this product only for the intended purpose and application and in accordance with the instructions, guidelines, and warnings as set forth in this product manual as well as in accordance with all applicable laws and regulations. A failure to read and follow the instructions and warnings set forth herein may result in an injury to yourself and others, damage to your product or damage to other property in the vicinity. This product manual, including the instructions, guidelines, and warnings, and related documentation, may be subject to changes and updates. For up-to-date product information, please visit documents.dometic.com.

Find the installation manual in additional languages online at documents.dometic.com
Explanation of symbols and safety instructions
This manual has safety information and instructions to help you eliminate or reduce the risk of accidents and injuries.
Recognize safety information
A signal word will identify safety messages and property damage messages, and also will indicate the degree or level of hazard seriousness.
WARNING! This is a safety alert symbol.
It is used to alert you to potential physical injury hazards. Obey all safety messages that follow this symbol to avoid possible injury or death.
Understand signal words
A signal word will identify safety messages and property damage messages, and also will indicate the degree or level of hazard seriousness.
- WARNING!
Indicates a hazardous situation that, if not avoided, will result in death or serious injury. - NOTICE!
Indicates a hazardous situation that, if not avoided, could result in minor or moderate injury. - Note Supplementary information for operating the product.
Supplemental directives
To reduce the risk of accidents and injuries, please observe the following directives before proceeding to install this appliance:
- Read and follow all safety information and instructions.
- Read and understand these instructions before installing this product.
- The installation must comply with all applicable local or national codes, including the latest edition of the following standards:
- American Boat and Yacht Council (ABYC)
- ANSI/NFPA 70, National Electrical Code (NEC)
General safety messages
WARNING! CARBON MONOXIDE HAZARD
Failure to obey the following warnings could result in death or serious injury:
- Do not install or operate a self-contained air conditioner in the bilge or engine room areas, or near an internal combustion engine. Ensure that the selected location is sealed from direct access to bilge and/or engine room vapors.
- Verify the condensate drain line is properly installed and sealed. Do not terminate the condensate drain line within 3 ft. (0.91 m) of any outlet of an engine or generator exhaust system, in a compartment containing an engine or generator, or in a bilge, unless the drain is connected properly to a sealed condensate or shower sump pump. If the drain line is not properly installed, dangerous fumes may travel up the drain line and contaminate the living quarters.
- Do not install the air conditioning unit in a location where it can circulate carbon monoxide, fuel vapors, or other noxious fumes into the boat’s living spaces.
WARNING! ELECTRICAL SHOCK, FIRE, AND/OR EXPLOSION HAZARD.
Failure to follow these precautions could result in death or serious injury.
This appliance is not intended for use by persons (including children) with reduced physical, sensory, or mental capabilities, or lack of experience and knowledge, unless they have been given supervision or instruction concerning the use of the appliance by a person responsible for their safety. Children should be supervised to ensure that they do not play with the appliance. Cleaning and user maintenance shall not be made by children without supervision. This appliance should not be accessible to the general public.
WARNING! EXPLOSION HAZARD.
Failure to follow these precautions could result in death or serious injury.
Do not install the air conditioning unit in a location containing gasoline engines, tanks, LPG/CPG cylinders, regulators, valves, or fuel line fittings. Unless labeled otherwise, self-contained units do not meet federal requirements for ignition protection. Failure to obey this warning could result in death or serious injury.
WARNING! ELECTRICAL SHOCK HAZARD.
Failure to follow these precautions could result in death or serious injury.
- Be sure to effectively ground the air conditioning unit to minimize the electrical shock hazard. Refer to the installation guidelines for further information.
- Each air conditioning unit installed requires a dedicated circuit breaker. If there is only one air conditioning unit in-stalled, the seawater pump does not require a circuit breaker. If two or more air conditioning units use the same sea-water pump, the pump wires will be connected to a pump relay panel (PRP), which in turn has its own dedicated circuit breaker sized for the pump (20 A max). Refer to the wiring diagram furnished with the PRP. Electrical connections in the bilge and/or below the waterline should use heat shrink type butt splices.
- Field wiring must comply with ABYC electrical codes. Power to the unit must be within the operating voltage range indicated on the data plate. Properly sized fuses or HACR circuit breakers must be installed for branch circuit protection. See the data plate for the maximum fuse/circuit breaker size (MFS) and minimum circuit capacity (MCA).
NOTICE!
This appliance contains fluorinated greenhouse gases in hermetically sealed equipment. Refer to the condensing unit’s product data plate label for the quantity of refrigerant shown in weight and GWP. The refrigerant added should be noted on the unit label.
Intended use
This manual is intended for the installation of Turbo, Voyager, Vector Compact, EnviroCool, and Low Profile self-contained air conditioning systems (hereinafter referred to as air conditioner). This air conditioner is only suitable for the intended purpose and application in accordance with these instructions.
This manual provides information that is necessary for proper installation of the air conditioner. Poor installation and/or improper operating or maintenance will result in unsatisfactory performance and a possible failure. The manufacturer accepts no liability for any injury or damage to the product resulting from:
- Incorrect assembly or connection, including excess voltage
- Incorrect maintenance or use of spare parts other than original spare parts provided by the manufacturer
- Alterations to the product without express permission from the manufacturer
- Use for purposes other than those described in this manual
Dometic reserves the right to change product appearance and product specifications.
General information
Note The images used in this document are for reference purposes only. Components and component locations may vary according to specific product models. Measurements may vary ± 0.4 in (10.00 mm).
Read these instructions completely and then plan the connections that must be made to the air conditioner (including ducting, condensate drain line, seawater inlet and outlet hoses, electrical power connections, location of the control, and seawater pump placement), to assure easy access for routing and future maintenance.
Component locations
Air Conditioning System Component Identification –

- Supply air grille and transition box
- Digital display
- Electric box
- Optional remote air sensor cable
- Seawater outlet hose
- Overboard discharge
- Seawater inlet hose
- Seawater scoop thru-hull inlet
- Seacock shut-off valve
- Seawater strainer
- Pump
- Condensate drain hose barb
- Mounting bracket
- Air conditioner
- Return air grille and filter
- Insulated flexible ducting
Specifications
This section contains specification data for the air conditioning unit.
Table 1: Minimum duct and grille sizes per BTU capacity
| 3.5 k BTU | 6 k BTU | 8 k BTU | 10 k BTU | 12 k BTU | 16 k BTU | 18 k BTU | 27 k BTU | |
| Minimum duct diame- ter | 3.0 in (76.00 mm) | 4.0 in (102.00 mm) | 5.0 in (127.00 mm) | 6.0 in (152.00 mm) | 6.0 in (152.00 mm) | 7.0 in (178.00 mm) | 7.0 in (178.00 mm) | 8.0 in (203.00 mm) |
| Minimum duct area | 2.6 in² (17.00 cm²) | 5.0 in² (32.00 cm²) | 7.7 in² (50.00 cm²) | 11.2 in² (72.00 cm²) | 11.2 in² (72.00 cm²) | 15.2 in² (98.00 cm²) | 15.2 in² (98.00 cm²) | 19.8 in² (128.00 cm²) |
| Minimum return air grille | 25.3 in² (163.00 cm²) | 25.3 in² (163.00 cm²) | 31.5 in² (203.00 cm²) | 39.4 in² (254.00 cm²) | 51.1 in² (330.00 cm²) | 78.7 in² (508.00 cm²) | 78.7 in² (508.00 cm²) | 94.5 in² (610.00 cm²) |
| Minimum supply air grille | 4.6 in² (30.00 cm²) | 12.6 in² (81.00 cm²) | 18.9 in² (122.00 cm²) | 23.6 in² (152.00 cm²) | 27.6 in² (178.00 cm²) | 31.5 in² (203.00 cm²) | 39.4 in² (254.00 cm²) | 55.2 in² (356.00 cm²) |
Table 2: Operating water temperature and pressure
| Minimum operating water temperature | 39.2 °F (4.00 °C) |
| Maximum operating water temperature | 80.6 °F (27.00 °C) |
| Minimum operating water pressure | 4.2 psi (29.00 kPa) |
| Maximum operating water pressure | 6.00 psi (41.4 kPa) |
Note The unit can operate outside these conditions with reduced capacity.
Pre-installation
NOTICE!
The Turbo and Voyager self-contained condensate base pans are equipped with vibration isolators installed in the bot-tom of the pan. These isolators are designed to dampen the vibration caused by the operating air conditioner from transferring into the mounted surface. Care must be taken when moving the air conditioner across mounting surfaces as the isolators can be damaged.
NOTICE!
The air conditioner must be mounted to a low, flat, level surface, like in the bottom of a locker, under a bunk or dinette seat, or in a similar location.
This section explains how to prepare the air conditioner for installation.
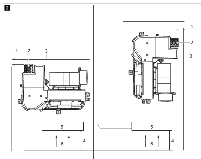
Determining the installation location
Voyager placement relative to airflow –

- 3.0 in (76.00 mm)
- Heat sink
- Bulkhead
- 4.0 in (102.00 mm)
- Return air grille
- Airflow
All other air conditioning units placement relative to airflow –

- 4.0 in (102.00 mm)
- Return air grille 3 Airflow
- 3.0 in (76.00 mm)
- Bulkhead
Choose a location with sufficient airflow. The return air grille should have a minimum of 4.0 in (102.00 mm) of air circulation clear-ance in front of it, free from any obstruction.
If the air conditioner is positioned perpendicular to the return air grille, maintain a minimum of 3.0 in (76.00 mm) air circulation clearance on the air intake side.
Voyager only. Provide a minimum open area of 3.0 in (76.00 mm) above and below the heat sink.
Rotating the blower
This section explains how to rotate the blower for each unit type. If needed, rotate the blower to the direction that allows the most direct airflow discharge through the ducting.
Turbo and Voyager blowers
Turbo and Voyager system blower rotation –

- Adjustment screw
- Blower
- Loosen the adjustment screw on the blower mount ring.
- Rotate the blower to the desired position.
- Tighten the adjustment screw.
EnviroCool, MCS, and ECD blowers
EnviroCool, MCS, and ECD system blower rotation –

- Screw
- Plate
- Blower
- Remove the seven screws on the plate.
- Rotate the blower to the desired position.
- Secure the blower in place using self-tapping screws(not provided).
Rotatable blowers
Vector compact blower rotation –

- Screws on blower ring
- Screws on drain pan or bracket
- Remove the screws from the blower ring.
- Remove the screws attaching the blower to the drain pan or bracket.
- Rotate the blower to the desired position.
- Secure the blower in place using self-tapping screws (not provided).
- Plug any unused holes to prevent air loss.
Placing the air filters
Air filters remove airborne particles from the cabin air and keep the evaporator coil clean. Place one air filter, either on the air conditioner or in the return air grille, for each air conditioner.
Placing the grilles and transition boxes
Consider the following when placing the grilles and transition boxes:
- Install the supply air grille as high as possible in a location that will provide uniform air distribution throughout the cabin. Direct the grille louvers upward.
- Install the return air grille as low and close to the air conditioner as possible to ensure airflow to the evaporator.
- Do not direct the supply air discharge towards the return air grille, as this will cause the system to short cycle.
- Allow for adequate clearance behind the supply air grille for the transition box and ducting connection. Refer to Table 1: Minimum duct and grille sizes per BTU capacity on page 6.
Installation
This section explains how to install the self-contained air conditioner.
Installing the mounting brackets and condensate drain
NOTICE!
To prevent cracking the drain pan, do not use more than two layers of plumbers tape to wrap the hose barb, and do not overtighten the hose barb.
Typical placement of mounting brackets and condensate drains –

- Condensate drain hose barb
- Mounting bracket
Condensate drain installation for Turbo and Voyager –

- Hose barb
- Threaded drain hole
- Slug knockout
- Drain pan
- Drain hose
Condensate drain installation for all other air conditioning units –

- Locking nut
- Drain pan
- Liquid-seal washer
- Solid washer
- PVC fitting 0.5 in (12.7 mm) HB x 0.5 in (12.7 mm) MPT)
- Using the hose barb, knock out a slug from an effacing drain hole by applying one quick strike with a rubber mallet. Discard the slug knockout.
- For Turbo and Voyager units:
- Wrap the threaded end of the hose barb with plumbers tape.
- Screw the hose barb into the threaded drain hole and tighten securely.
- For all other air conditioners:
- Thread the hose barb through a solid washer and liquid-seal washer and insert it into the drain hole.
- Secure with a locking nut.
- Secure the drain hose to the hose barb with a stainless steel hose clamp.
- Route the drain hose downward to a safe and proper collection point.
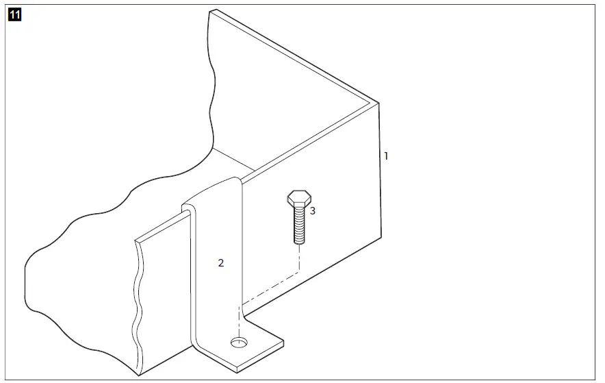
Mounting bracket installation for Turbo and Voyager units –

- Mounting bolt (not provided)
- Fender washer (provided)
- Mounting bracket (provided)
Mounting bracket installation for other air conditioning units –

- Drain pan
- Mounting bracket
- Mounting bolt (not provided)
- Install one mounting bracket on each side of the drain pan, evenly spaced.
Installing foam handle insulation on Voyager units –

- Foam handle insulation
- Handle opening
- Drain pan
For Voyager units:
- Remove the film covering the adhesive backing on the foam handle insulation.
- Position the foam handle insulation to completely cover the handle opening with the adhesive side facing the drain pan.
- Press around the handle opening to adhere the foam handle insulation to the drain pan.
Installing the ducting
Observe the following conditions when installing the ducting:
- Ducting must be appropriately sized for your application.
- Run ducting as straight, smooth, and taut as possible, minimizing the number of 90.00 ° bends and loops, which can reduce airflow.
- Fasten the ducting securely to prevent sagging.
- Do not allow ducting to be flattened or kinked.
- Trim excess ducting lengths following installation.
- Insulate ducting when it is located in high-heat areas.
- Insulate ducting when it is located in high-heat areas.
- Do not route ducting through an engine room or any area where it may be exposed to dangerous vapors or exhaust fumes.
If a transition box is used, the total area of supply air ducts going out of the box should be at least equal to the total area of the supply ducts going into the box. Refer to Specifications on page 6
Ducting connections –

- Fiberglass insulation
- Mount ring
- Transition box
- Slide the inner mylar duct hose around the mount ring to the transition box.
- Screw three or four stainless steel screws through the mylar duct hose into the mount ring, capturing two or three wires with screw heads.
- Slide the fiberglass insulation around the inner mylar duct hose to the transition box. Secure with duct tape.
Installing the seawater system
NOTICE!
Failure to follow this procedure will void the warranty.
Observe the following considerations when setting up the seawater system:
- The strainer must be below the pump.
- Hoses must be double clamped.
- Hoses must not have kinks, loops, or high spots where air can become trapped.
- The pump and strainer must be below the water line.
- The thru-hull inlet, ball valve, hose, and strainer should be no smaller than the pump inlet.
- Install the thru-hull fitting as far below the water line as possible.
- The pump must have a dedicated thru-hull.
- Avoid 90.00 °elbow fittings as much as possible.
- Ensure that the pump head is rotated toward the direction of water flow.
- Use plumbers tape on all threaded connections.
Refer to Table 2: Operating water temperature and pressure on page 6 for maximum and minimum water temperature and pressure values.
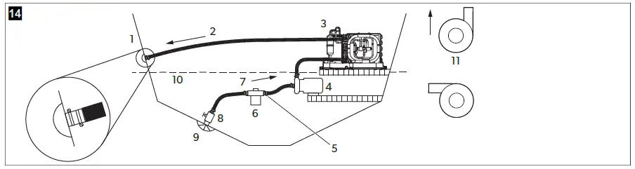
Seawater system –

- Seawater outlet
- Outlet flow
- Air conditioner
- Seawater pump
- Hose clamps
- Strainer
- Uphill inlet flow
- Ball valve
- Scoop thru-hull inlet
- Water line
- Correct pump head strainer orientations
- Install a seawater scoop thru-hull inlet as close to the keel and as far below the water line as possible. Secure the scoop thru-hull inlet using a marine-grade sealant designed for underwater use.
- Install a bronze, full-flow seacock on the seawater scoop thru-hull inlet.
- Install a seawater strainer below the level of the pump with access to the filter.
- Mount the pump above the strainer and at least one foot below the waterline.
- Connect the seacock and strainer with an uphill run of reinforced marine-grade hose.
- Connect the discharge from the pump uphill to the bottom inlet of the air conditioners condenser coil with a 5/8 in (16.00 mm) reinforced, marine-grade hose.
- Connect the discharge from the condenser coil to the overboard discharge thru-hull fitting with a 5/8 in. reinforced marine-grade hose.
- Avoid loops, high spots, or the use of 90.00 ° elbows with the seawater hose. Each 90.00 ° elbow is equivalent to 2.5 ft (76.00 cm) of hose and a 90° elbow on the pump outlet is equivalent to 20.0 ft (610.00 cm) of hose.
- Double-clamp all hose connections using two stainless steel clamps, reversing the clamps where necessary.
- Connect all metallic parts in contact with seawater to the vessel’s bonding system.
Making electrical connections
WARNING! ELECTRICAL SHOCK HAZARD.
Always turn off the air conditioning power supply breaker before opening the electrical box. Failure to obey this warning could result in death or serious injury.
NOTICE!
The air conditioner must be connected to the boat’s bonding system to prevent corrosion due to stray electrical current. All pumps, metallic valves, and fittings in the seawater circuit that are isolated from the air conditioner by PVC or rubber hoses, must be individually bonded to the boat’s bonding system.
Note Failure to properly ground and bond the system will void the warranty.
All conditioning units have a terminal strip, labeled for proper connections, inside the electric box. The wiring diagram inside the electric box supersedes ABYC standards. Use the correct size circuit breaker to protect the system as specified by the air conditioning units data plate label. A minimum of 12 AWG boat cable should be used to supply power to the air conditioner and the seawater pump. Make all connections using ring or captive fork terminals.
Observe the following when making electrical connections:
- Alternating current (AC) grounding must be connected to the ground terminal (GRND) at the AC power input terminal block.
- Connections between the vessel’s AC system grounding conductor and the vessel’s direct current (DC) negative or bonding system should be made as part of the vessel’s wiring. When maintenance or replacing existing equipment that contains a chassis- mounted ground stud, check the vessel’s wiring for these connections.
- Voyager air conditioners are designed to operate on AC or high voltage DC. Refer to the vessel’s wiring diagram for correct placement.
Ensure that the AC ground of the air conditioner is properly connected to the AC ground of the boat. Within the boat itself, ensure that the AC ground bus is connected to the DC ground bus at exactly one place.
Disposal
Place the packaging material in the appropriate recycling waste bins, wherever possible. Consult a local recycling center or specialist dealer for details about how to dispose of the product in accordance with the applicable disposal regulations.
Warranty
Refer to the sections below for information about warranty and warranty support in the US, Canada, Australia, New Zealand, and all other regions.
United States and Canada
LIMITED WARRANTY AVAILABLE AT DOMETIC.COM/EN-US/TERMS-AND-CONDITIONS-CONSUMER/WARRANTY.
IF YOU HAVE QUESTIONS, OR TO OBTAIN A COPY OF THE LIMITED WARRANTY FREE OF CHARGE, CONTACT:
DOMETIC CORPORATION MARINE CUSTOMER SUPPORT CENTER
2000 NORTH ANDREWS AVENUE POMPANO BEACH, FLORIDA, USA 33069 1-800-542-2477
Asia-Pacific(APAC) Countries
If the product does not work as it should, please contact your retailer or the manufacturer’s branch in your country (see the back of this instruction manual for the web addresses to locate your region or retailer). The warranty applicable to your product is 1 year.
For repair and warranty processing, please include the following documents when you send in the device:
- A copy of the receipt with purchasing date
- A reason for the claim or description of the fault.
Our goods come with guarantees that cannot be excluded under the Australian Consumer Law. You are entitled to a replace-ment or refund for a major failure and for compensation for any other reasonably foreseeable loss or damage. You are also entitled to have the goods repaired or replaced if the goods fail to be of acceptable quality and the failure does not amount to a major failure.
Australia Only
Our goods come with guarantees that cannot be excluded under the Australian Consumer Law. You are entitled to a replace-ment or refund for a major failure and for compensation for any other reasonably foreseeable loss or damage. You are also entitled to have the goods repaired or replaced if the goods fail to be of acceptable quality and the failure does not amount to a major failure.
New Zealand Only
This warranty policy is subject to the conditions and guarantees which are mandatory as implied by the Consumer Guarantees Act 1993(NZ).
All other regions
The statutory warranty period applies. If the product is defective, please contact the manufacturer’s branch in your region or your retailer (see the back of this instruction manual for the web addresses to locate your region or retailer).
For repair and guarantee processing, please include the following documents when you send in the device:
- A copy of the receipt with purchasing date
- A reason for the claim or description of the fault
YOUR LOCAL DEALER dometic.com/dealer
YOUR LOCAL SUPPORT dometic.com/contact
YOUR LOCAL SALES OFFICE dometic.com/sales-offices




















