Whirlpool WDT740SAL 24″ Dishwasher

PRODUCT DIMENSIONS
*Dishwasher can be raised 17/16″ (3.7 cm) with feet fully extended.
| DESCRIPTION | DIMENSIONS | |
| A | Width of door | 23⅞” (60.6 cm) |
| B* | Height to top of handle | 319/16″ (80.1 cm) |
| C | Height of adjustable toe kick | 31/2″ (8.8 cm) – minimum 41/4″ (10.8 cm) – maximum |
| D | Width of recessed dishwasher | 23⅞” (60.6 cm) |
| E† | Depth without door | 225/8″ ( 57.5 cm) |
| F† | Depth with Towel Bar Handle | 261/2″ (67.3 cm) |
| Depth with Pocket Handle | 241/2″ (62.2 cm) | |
| G* | Height to bottom of door (minimum) | 35/16″ (8.4 cm) |
| H* | Height to top of door (minimum) | 337/16″ (84.9 cm) |
| I†* | Height of recessed dishwasher (minimum) | 335/8″ (85.4 cm) |
| J† | Depth with door fully open (minimum) | 503/16″ (127.4 cm) |
| K† | Depth with toe kick (minimum) | 2013/16″ (52.9 cm) |
†Insulation blanket thickness not included, can be crushed up to 1/8″ (0.3 cm), or removed along the top perforate section for additional clearance. Dishwasher can be raised 17/16″ (3.7 cm) with feet fully extended.
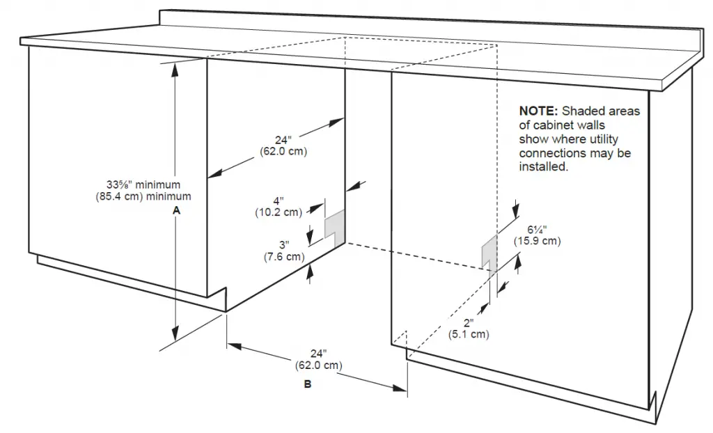
OPENING/CLEARANCE DIMENSIONS
IMPORTANT: Check that all surfaces have no protrusions that would prohibit dishwasher installation.
A. Measured from the lowest point on the underside of the countertop. May be reduced to 335/8″ minimum (85.4 cm) minimum by removing the feet and perforated area of insulation (blanket) on dishwasher.
B. Minimum, measured from narrowest point of opening.
NOTE: Corner locations require a 2″ (5.1 cm) minimum clearance between the side of the dishwasher door and the wall or cabinet.
DRAIN REQUIREMENTS
- A new drain hose is supplied with your dishwasher. If drain hose is not long enough, use a new drain hose with a maximum length of 12 ft (3.7 m) that meets all current AHAM/ IAPMO test standards, is resistant to heat and detergent, and fits the 1″ (2.5 cm) drain connector of the dishwasher.
NOTE: Do not connect multiple drain hoses together. - Make sure to connect drain hose to waste tee or disposer inlet above drain trap in house plumbing and 20″ (50.8 cm) minimum above the floor. It is recommended that the drain hose either be looped up and securely fastened to the underside of the counter or be connected to an air gap.

- Make sure to use an air gap if the drain hose is connected to house plumbing lower than 20″ (50.8 cm) above subfloor or floor.
- If required, the air gap should be installed in accordance with the air gap installation instructions. When you are connecting the air gap, a rubber hose (not provided) will be needed to connect to the waste tee or disposer inlet.
- Use 1/2″ (1.3 cm) minimum I.D. drain line fittings.
WATER SUPPLY REQUIREMENTS
- This dishwasher has a water heating feature and also requires a connection to a hot water supply line.
- A hot water line with 20 psi to 120 psi (138 kPa to 862 kPa) water pressure can be verified by a licensed plumber.
- 120°F (49°C) water at dishwasher.
- 3/8″ (0.95 cm) O.D. copper tubing with compression fitting or flexible braided water supply line.
NOTE: 1/2″ (1.3 cm) minimum plastic tubing is not recommended. - A 90° elbow with 3/4″ (0.95 cm) hose connection with rubber washer.
- Do not solder within 6″ (15.2 cm) of the water inlet valve.
- If installed in new construction, make sure the house water supply lines have been flushed prior to connecting the dishwasher to remove any debris that may exist in the supply line.
NOTE: If replacing an existing dishwasher, it is recommended to install a new water line and drain hose (supplied) with the new dishwasher.
ELECTRICAL REQUIREMENTS
WARNING:
- Plug into a grounded 3 prong outlet.
- Do not remove ground prong.
- Do not use an adapter.
- Do not use an extension cord.
- Failure to follow these instructions can result in death, fire, or electrical shock.
Be sure that the electrical connection and wire size are adequate and in conformance with the National Electrical Code, ANSI/NFPA 70 – latest edition, and all local codes and ordinances.
A copy of the above code standards can be obtained from: National Fire Protection Association
1 Batterymarch Park
Quincy, MA 02169-7471
You Must Have:
- 120 V, 60 Hz, AC only, 15 A or 20 A, fused electrical supply
- Copper wire only
- A maximum of 2 field wiring supply conductors (12 AWG largest size) plus 1 grounding conductor are permitted in the terminal box.
We Recommend: A time-delay fuse or circuit breaker.
Circuit Requirements:
- The dishwasher may be installed on the same circuit as a garbage disposal providing that the branch circuit cannot exceed rated circuit load and must comply with all governing codes and regulations such as but not limited to National Electrical Code, ANSI/NFPA 70 – latest edition.
- No electrical connections other than the dishwasher power and ground connections can be made inside of the dishwasher terminal box.
If connecting dishwasher with a power supply cord:
- Use UL Listed power cord kit marked for use with dishwasher.
- Plug into a grounded 3 prong outlet. Outlet must meet all local codes and ordinances. If connecting dishwasher with direct wiring:
- Use flexible, armored, or nonmetallic sheathed copper wire with grounding wire that meets the wiring requirements for your home and local codes and ordinances.
- Use a UL Listed/CSA Approved metallic strain relief.






















