REEFE PRJ100E Jet Pressure Pump User Manual
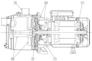
COMPONENTS & MATERIALS

POSITION | COMPONENT | MATERIAL |
11 | Pump Shaft | Stainless Steel AISI 420F |
| 14A | Motor Bracket Kit | In die casting alumnium UNI 5076 |
16 | Impeller | Techno Polymer |
| 17 | Mechanical Seal | Carbon – Ceramics |
18 | Pump Body | Stainless Steel AISI 304 |
| 24A | Diffuser, Nozzle & Venturi | Techno Polymer |
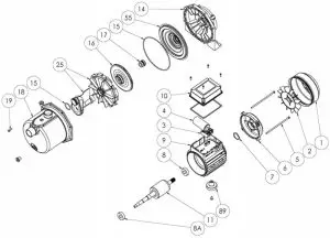
PARTS LIST & MATERIALS

POSITION | COMPONENT | POSITION | COMPONENT |
1 | Fan Cover | 11 | Rotor & Shaft |
| 2 | Fan | 14 | Motor bracket |
3 | Board | 15 | O-Ring Kit |
| 4 | Capacitor | 16 | Left Impeller |
5 | Tie-Rod | 17 | Complete Mechanical Seal |
6 | Driving Cap | 18 | Pump Body |
| 7 | Split Ring | 19 | Bracket Screw |
8 | Rear Bearing | 25 | Diffuser Kit |
| 8A | Front Bearing | 55 | Mechanical Seal Plate |
9 | Casing with wound stator | 89 | Pump Feet |
| 10 | Board Cove |
INSTALLATIONS INSTRUCTIONS
CORRECT INSTALLATIONS


TIP!
PRESSURE TANKS CAN SAVE YOU MONEY AS THE PUMP DOES NOT HAVE TO START SO OFTEN.
- BARREL UNION
- Y-STRAINER OR PRE-FILTER
- BALL VALVE OR GATE VALVE
TIP! CLEAN THE Y-STRAINER MONTHLY TO ENSURE PEAK PERFORMANCE. SIMPLY UNDO THE BUNG AND LET IT FLUSH OUT. MAKE SURE YOU RE-FIT THE MESH FILTER.
TIP! IF PUMP STARTS FREQUENTLY, CHECK TOILET CISTERNS, THEY ARE PROBABLY LEAKING.
IMPORTANT! RAIN-MAINS SYSTEMS ARE NOT TO BE USED WITH SUCTION LIFT UNLESS A PUMP SHUT-OFF CONTROLLER IS ADDED
INCORRECT INSTALLATIONS
INCORRECT! PUMP IS INSTALLED WITHOUT BARREL UNION’S, A Y-STRAINER & A BALL VALVE.
INCORRECT! PUMP IS INSTALLED WITHOUT A CHECKVALVE OR A FOOT VALVE.
INCORRECT! THE PUMP IS CONNECTED INCORRECTLY. ALWAYS ENSURE WATER INLET AND OUTLET ARE CORRECT.

INCORRECT! PUMP IS NOT INSTALLED ON A LEVEL SURFACE. ALWAYS ENSURE THE PUMP IS INSTALLED LEVEL.
INCORRECT! DON’T USE EXTENSION LEADS. NEVER USE AN
EXTENSION CABLE TO CONNECT THE PUMP TO MAINS POWER.
ALWAYS CONNECT PUMP DIRECTLY TO DEDICATED POWER OUTLET.

IMPORTANT! RAIN-MAINS SYSTEMS MUST NOT BE USED FOR USE WITH SUCTION LIFT, UNLESS A PUMP SHUT-OFF CONTROLLER IS ADDED.

INCORRECT! NO FOOT VALVE! FOR INSTALLATIONS WHERE THE PUMP IS ABOVE THE OUTLET OF THE TANK, ALWAYS USE A FOOT VALVE IN THE TANK.

INCORRECT! PIPES TOO SMALL!
FOR PUMP INLET, USE 25mm PIPE (INTERNAL DIAMETER). WE RECOMMEND 30mm FOR BEST PERFORMANCE. (FOR PUMPS WITH 32MM INTAKE OR LARGER, USE SUCTION PIPE ONE OR MORE SIZE LARGER).
For the oulet (discharge) pipework, use pipe that is the same diameter as the outlet of the pump, or NO MORE THAN ONE SIZE SMALLER. BIGGER PIPE = BETTER PERFORMANCE
PLEASE READ THE INSTRUCTIONS FOR MORE DETAILED INSTALL INFORMATION.
IMPORTANT
FOR VERY LONG SUCTION/INTAKE PIPEWORK, IT IS CRITICAL THAT THE CORRECT PIPE SIZE IS USED ESPECIALLY IN SUCTION-LIFT APPLICATIONS, CHECK WITH A QUALIFIED PUMP TECHNICIAN FOR THIS TYPE OF INSTALLATION.
IMPORTANT! ALWAYS PRIME THE PUMP BEFORE STARTING.
TIP
SOMETIMES YOU MAY HAVE TO DO THIS AFTER THE PUMP HAS STOPPED DUE TO THE TANK BEING EMPTY OR LOW IN WATER.

TIP! IF YOUR PUMP STOPS, CHECK YOUR TANK, IT MAY BE EMPTY.
DANGER!
ALWAYS DISCONNECT THE PUMP FROM POWER WHEN INSTALLING, AND WHILE SERVICING OR REPAIRING.

DANGER!
ENSURE THE PUMP IS CONNECTED TO A DEDICATED POWER OUTLET THAT IS PROTECTED BY A SAFETY SWITCH (RCD).

IMPORTANT
CONSIDER NEIGHBOURS WHEN INSTALLING THE PUMP. ALL PUMPS MAKE SOME NOISE.
IMPORTANT – DO NOT EXPOSE THE PUMP DIRECTLY TO THE ELEMENTS.
WE RECOMMEND THE PUMP IS PROTECTED WITH A PUMP COVER.

IMPORTANT! ENSURE THE PUMP IS SIZED CORRECTLY FOR THE JOB. TOO SMALL = LOW PERFORMANCE AND MAY USE EXCESS POWER, AND/OR OVERHEAT THE MOTOR AND/OR CAUSE PREMATURE FAILURE. THIS IS NOT A WARRANTY FAULT IF THIS OCCURS.

PIPEWORK MUST ALIGN WITH PUMP!
STRESS ON THE PUMP DUE TO THE PIPEWORK BEING CROOKED WILL LEAD TO FAILURE OF THE PUMP THAT IS NOT COVERED BY WARRANTY.
© Ascento Group Australia, 2020.
IMPORTANT NOTICE: These diagrams are a guide only, it is the owners responsibility to ensure that the installation is carried out in accordance with applicable Electrical and Plumbing Standards and Local Council Regulations, and that the product is suitable for their purpose of use. Warranty does not include rectification of incorrect installation and/or problems caused by incorrect installation.
INSTRUCTION MANUAL & WARRANTY EXTERNAL CONSTANT PRESSURE PUMPS
APPLICATION: CONSTANT PRESSURE PUMPS are fit for purpose when installed correctly according to these instructions; For pumping of Clean Fresh Water at a temperature of +5°C to +40°C to: Garden Taps, Houses, Sheds, Cabins, Pressure Boosting, Clean Water Transfer, suitable Rain-to-Mains Systems (370Watt and greater motor size) and for no other use. They must not be used in hazardous locations or for liquids other than clean water, or for continuous operation.
DANGER: DO NOT INSTALL ANY PUMP if the premises does not have a Safety Switch (RCD)
IMPORTANT: Ensure the pump is the right size for your application, before you install it. A pump that is under-sized is not faulty, and is not covered by warranty. Ensure the right size piping is used, small pipes reduce performance and cause the pump to use more power!
See below for further information, and refer to the information on the box and/or label on the pump for the performance data. If in doubt consult with your dealer or a pump technician to ensure your pump is sized to suit your needs.
PERFORMANCE DATA
Refer to the information on the box
NOTES: Performance data quoted is generally from test data, and can vary, and does not take into account factors in the installation such as loss of pressure and flow due to pipework & pipe-fittings & valves. Product depicted on the box and referred to in this document, and other diagrammatic instructions, may differ from the product supplied, due to design changes or improvements.
***Be aware that the Amps and Wattage will vary according to the load on the motor, the figures stated are approximate.
INSTALLATION GUIDELINES
Please read and follow the instructions including the diagrammatic instructions. Warranty is voided if the instructions are not followed.
- IMPORTANT MANDATORY REQUIREMENTS FOR ALL INSTALLATIONS: Before installing or servicing disconnect from the power supply. All pumps must be installed using barrel-union connections to facilitate easy servicing or replacement. Ball-valves or gatevalves must be fitted on the suction, and the discharge, and the Town-water backup supply where fitted. A Y-Strainer or Pre-filter must be installed on the suction to prevent particles entering the pump. Remove all swarf from the tank after cutting openings etc – swarf in the pump voids warranty. All instructions are conditions of warranty; all warranty is void if instructions are not followed. It is recommended to install a Check-Valve in the discharge pipework, however DO NOT install the check valve directly on the discharge of the Pressure Controller, as this may cause it to malfunction, install the Check-Valve further down the pipe, before the first point of discharge.
- IRRIGATION USE – MANDATORY REQUIREMENTS FOR ALL INSTALLATIONS: For any installation of these pumps that is supplying irrigation, you must fit an 18L or larger pressure tank. Air pressure must be set at 70% of maximum pump pressure. Tank is simply fitted to the discharge pipework with a “tee”, anywhere between the pump and the first point of discharge.
- POSITION Do not position the pump where it could take in solids or sludge. This pump is not to be used as your sole water supply. For critical applications where loss of water supply could cause serious consequences, use a DUAL PUMP System so you have a second water supply or use a TOWN-WATER BACK-UP SYSTEM. This pump is not designed for Fire Fighting purposes.
- PROTECT FROM THE WEATHER: The pump must be protected from the weather, by way of a plastic pump cover or skillion roof cover, or similar. However the installer must ensure that there is adequate ventilation so the pump does not overheat.
- IMPORTANT re INSTALLATION: This pump MUST NOT be installed in any manner that if it were to leak that it would cause damage or loss to property or persons. It MUST be installed in a well-ventilated and drained area. All warranty is void if this condition is not heeded and no liability can be accepted in the case of damage or loss caused by failing to comply with this condition. If the pump leaks, the water must be able to drain away from the pump and not cause damage.
DANGER!!!! If water pools around the pump (from any source of water) it will cause a dangerous electrical hazard. - BASE must be LEVEL Fix the pump in place through the footplate using suitable fasteners, on a stable, level surface – the base must NOT be sloping even slightly – ensure it is level.
- IMPORTANT NOTE re PUMP NOISE: Avoid installing pumps near bedrooms or neighbours bedrooms. Particularly JET pumps, due to their self-priming design they typically make more noise than a MULTISTAGE Pump. This is a feature of the pump design, it is not a fault, and is not a cause for warranty claims, as it is not a product fault. If noise is likely to cause problems, we recommend that you use a MULTISTAGE Pump, and install the pump AWAY from bedrooms.
- (a) PIPE SIZE AND TYPE: Install the pump as near the water supply as possible to reduce the length of suction pipe. We recommend heavy duty flexible suction hose for the inlet (Suction Pipe) but whatever pipe is used it must be no less than the same Internal
Diameter as the PUMP INLET (1 size bigger is better), and heavy-duty pressure hose or similar for the outlet, we recommend the
Internal Diameter for the delivery pipework is the same as the PUMP OUTLET for the best performance, or no more than one size less than the Pump Outlet Internal Diameter. If the pump is for “Whole of house” supply (check is your pump big enough first!!) we strongly recommend that 25mm Internal Diameter piping is used throughout the house, and is only reduced to connect to the fixtures as required, this will ensure that the pump delivers best performance and efficiency, saving the user money over the long-term. Use as few bends as possible, every bend reduces performance.
IMPORTANT!!! If your house has more than 3 bathrooms you MUST consult with a Pump Specialist to ensure you size your Pump and Pipework correctly – remember that a short term saving could become a long-term liability
(b) MORE INFO RE PIPE SIZE: Pressure of the water at the discharge (taps, showers, irrigation etc) is affected by the pipe size. The
SMALLER your pipes, the LOWER the pressure will be at discharge. Example: 13mm ID pipe over 20 metres at 30Lpm will reduce
pressure at discharge by 240kPa (2.4bar) – whereas if 25mm ID pipe is used for 20 meters at 30Lpm it only reduces pressure by a miniscule 10kPa. Smaller pipe also means that more power will be used as the pump has to work harder to overcome the extra backpressure from small pipes. A small short-term saving (in the cost of the pipes) will become a long-term liability - SEAL JOINTS Ensure all fittings and joints are watertight and airtight, especially in suction-lift applications.
- INSTALLATION AND ELECTRICAL WIRING must adhere to state and local codes and must be completed before priming the pump.
These pumps come with an earthed power plug and all electrical installations must be earthed. Any Electrical work must be performed by a licenced Electrician. The installation must also comply with applicable Plumbing Regulations, it is the installers responsibility to ensure compliance. - IMPORTANT re SAFETY SWITCH (RCD);
The Pump must be connected to a suitable power circuit protected by a RCD (safety switch) having a rated residual operating current not exceeding 30mA, in the circuit breaker. (3-Phase 415 Volt Pumps must be installed by a licenced Electrician according to applicable Regulations & Australian Standards) Disconnect the pump from power supply when people are in the water, or when servicing or repairing the pump. All warranty is void if this instruction is not followed. Plugging into existing outlets may cause low voltage supply to the motor, which may trip motor overload, or burn out the motor, which will not be covered by the Warranty.
(b) Surge Protection – We recommend that a surge protector is used to protect the electronics of this pump, as damage due to power surges is not covered by the Warranty. - MAINS PRESSURE BOOSTING This is a specialized type of application, and must be completed by a Qualified Plumber or Pump
Technician who is competent and licenced to perform this type of installation. - VOLTAGE of power supply must match the voltage of the pump – 240V AC only for Single-Phase pumps, 415V for 3-Phase pumps, refer to the nameplate of the pump for correct voltage. Do not run on generator power from low quality/old generators. If you only have generator power, you may need to have the Pressure Controller removed and replaced with a Pressure Tank and Switch, at additional cost. The Pressure Controller will be damaged by the voltage fluctuations caused by power supplied by low quality generators. High quality “Sine-Wave” generators are usually acceptable but we cannot guarantee this, as we have no control over the generator that you use, it is your responsibility to ensure the generator used is fit for the purpose.
- WARNING: these pumps are not designed for, and must not be installed in locations classified as hazardous.
- THE FOLLOWING MAY CAUSE SEVERE DAMAGE TO THE PUMP AND WILL VOID WARRANTY;
- Using an extension cord to power the pump.
- Cutting the earth pin off the plug or using an adapter fitting or double adapter.
- Working on the pump while connected to the power supply.
- Removing motor housing, or dissembling the pump housing, except by a qualified technician
- Pumping chemicals or corrosive liquids or flammable liquids.
- Pumping hot liquids (Exceeding 40° Centigrade)
- Using a generator for power supply – see 12
- Operations that involve frequent starting. This will lead to premature failure of the capacitor. We recommend that if the pump is regularly starting more often than 10 times per hour, you should add a 18L or larger pressure tank into the system. Occasional frequent starting (for example during the evening showers) is not a problem, but constant (most of the day) frequent starting is a problem.
Note that if the pump starts and stops more than 7 times within 2 minutes, it may switch itself off and you will need to press the restart button to reactivate it.
- PUMP PRIMING AND START UP
- Dry operation will destroy the pump seals and is not covered by warranty.
- Remove the pressure controller by loosening the barrel union, (or use the priming plug at the front of the wet-end, near the inlet, but that is slower) and completely fill the pump chamber with water before starting.
- Turn the pump on, if water does not flow, turn it off and repeat step 15(b) again, and if it is suction-lift the entire suction pipe may need to be pre-primed.
- If it still does not pump water, check the intake and discharge pipework is free from airlocks, or any other obstructions and refer to the TROUBLESHOOTING guide.
- SUCTION LIFT
Suction lift installations are notoriously troublesome, and almost invariably it is not the pump that causes the problem, we recommend using a submersible pump system if at all possible.
NOTICE!! Suction Lift is NOT SUITABLE for most Rain-to-Mains Changeover Systems – unless you fit a float switch in the tank. When pumping out of a tank that is at a lower level or underground, the inlet pipe must be:- Fitted with a foot valve that is kept clear of sludge that will build up on the bottom of the tank over time.
- The suction (intake) pipework must be ‘uphill’ all the way to the pump (only RISE, not rise and fall) and be perfectly airtight and be of sufficient diameter (not less than 30mm internal diameter and greater diameter than the discharge) and be of suitable material that will not collapse (suction pipe)
- A SWING Check Valve should also be installed at the inlet of the pump, in most cases.
- For pipe lengths of greater than 3m for suction you must consult with a qualified pump technician as to whether the pipe sizing you are using is suitable. Using incorrect pipe sizes will lead to problems. Suction lift installations are notoriously troublesome, and almost invariably it is not the pump that causes the problem. Leaking footvalve, air leak into the pipe, slow water leak out of the pipe, humps & hollows in the pipe leading to air-pockets, will cause “loss of prime” and pump failure/no water delivered. FAILURE TO FOLLOW THESE GUIDELINES WILL RESULT IN LOSS OF PRIME (No Water in Pump)
- OVERLOAD PROTECTION
This pump has a built in thermal protection switch. The pump stops if a high-temperature condition occurs. The motor restarts automatically after it has cooled down when the built in thermal protector resets itself. Or you may need to turn the power off and on again to reset it. If this problem reoccurs – check as per 15 - IMPORTANT NOTES
(a) Do not switch the pump on and off frequently, as this will cause damage to the electronics and void warranty. (b) Do not attempt to adjust the flow via the intake pipework (c) If there is insufficient water, the motor will stop. See 15 (f) and also 19. (d) If the pump is idle for a long period of time or in very low temperature, the water should be drained to avoid damage to the pump and/or stagnation of water.
DANGER!!!!
Keep the pump equipment protected from interference by pets, wildlife, children, infirm persons or incompetent persons.
WARNING!!!
This pump is designed for clean fresh water only, in non-hazardou locations. It must NOT be used as a continuous duty fountain pump, or dirty water, or liquids other than water. Install in well ventilated and well drained area. - PUMP CONTROLLER FUNCTION AND OPERATION:
The Pump Controller (sometimes referred to as the Pressure Controller) fitted to this pump is designed to be almost completely automatic, and will restart itself if the pump runs out of water; you should not normally need to do anything. Instructions and basic function;- Use for CLEAN rainwater only – you must fit a prefilter or Y-Strainer to the intake (suction pipe) of the pump
- Do not use a low quality generator for power supply – see section 12 – as this may damage the electronics
- Protect from direct sunlight to avoid UV damage to the plastic
- The pump controller will stop the pump if there is no water in the pump
- It then immediately rechecks for water (Starts pump) for a 15 second trial. Then rechecks again at the 3 minute mark, 1 hour mark, 5 hour mark and then every 24 hours after until the pump reprimes.
- When the pump is connected to a rain water tank, once the tank refills with water, the pump automatically reprimes and starts to supply.
- If it happens to do this in the middle of the night it can be annoying! In the morning, turn it off & on again after 30 seconds and it will reset itself so it does the checking in daylight hours.
- Leak detection function: if the pump starts and stops 7 times or more in about 2 minutes, the pump may turn off automatically. If this occurs, investigate what is leaking.
- You can reset the function back to the beginning anytime by pressing the restart button.
- If it is many days before it rains again (or you have your tank re-filled), turn off the power to the pump, at the power outlet
- Occasionally when the pump re-starts after a run-dry event, some air might come through the lines, this will do no harm.
NOTE: if pipe from tank to pump is not straight it will most likely get air-locks in the pipe, and the pump might not shut down
properly when the tank is low, as it is getting some air, some water – this is not a fault – simply turn the pump off until the tank fills to
have 500mm depth or more.
TROUBLESHOOTING CHECKLIST
Check the following before requesting service or repair. A call out fee and labour cost may apply to field services.
PROBLEMS & POSSIBLE CAUSES;
20. Light Flashes “No Water” or “Failure”
- This normally indicates that the pump has no water, either because the tank is empty or the pump has “lost prime” it has run dry.
- The pump is fitted with an AUTOMATIC RESTART controller so it will attempt to re-start itself several times. This is normal, it does
not mean the pump is faulty. Refer to point 19 a) to k) of the instructions.
NOTICE: tank level indicators are not always accurate!! Check inside the tank to be sure of the water level.
Pump does not run or motor runs for a short time, then stops
- Circuit breaker or Safety Switch is off or fuse has blown > in a SAFE manner investigate why this has occurred, by process of elimination > do not assume it is the pump > if you cannot do this safely, have a licenced Electrician check and rectify it.
- Water level in the tank is too low > Top up or use alternative supply > turn pump off until the tank fills
- Electrical components have been flooded > It is likely that the pump will need to be replaced > in a SAFE manner investigate why this has occurred, by process of elimination > do not assume it is the pump > if you cannot do this safely, have a licenced Electrician check and rectify it.
- Pump plug is not connected properly, or has been flooded or wet > Isolate power at main switch, remove plug & allow to dry. If the problem continues, contact a licenced electrician to check the cause.
- If all of the above are OK, the pump might have overheated and triggered the thermal overload switch > Turn it off and wait 30 minutes for it to cool down and turn it on again > If the pump does not operate normally, investigate why, it might be blocked with debris, or the Y-Strainer/Prefilter might be blocked > flush clean and re-assemble.
22. Pump runs but does not deliver water or only a small amount of water
- Check valve is installed backwards, arrow on valve should point in direction of flow > have the installer fix this.
- Discharge shut-off valve/ball-valve / gate-valve may be closed > open the valve.
- Impeller or volute openings are fully or partially clogged or it might be blocked with debris, or the Y-Strainer/Prefilter might be blocked > flush clean and re-assemble > if it is the pump, disconnect from the power supply, and if you are competent to do so, disassemble the pump and clean. If not, have a pump technician do it for you.
- Pump is air-locked > Start and stop several times by turning it on and off with 20 seconds between. If this does not work, see below regarding re-priming the pump
- Vertical pumping distance is too high – Reduce distance or upgrade to a larger pump.
- Foot valve blocked > Clean or replace the FOOT valve
- Tank too low water level > Check the suction and water levels
23. Pump runs and does not stop or runs when no taps are in use
- In most cases this situation it is due to a leak in pipework or leaking toilet cisterns or underground pipe leak (wet soil, muddy, grass growing well!) > it is not a pump fault > ascertain by process of elimination what is leaking > the only sure way to check toilet cisterns is to turn them off at the stopcock which is usually under the cistern as most of them will not run into the pan > close the ballvalve / gatevalve on the discharge side of the pump, does the pump now stop > something is leaking it is not a pump fault.
- There could be debris inside the Pump Controller > open all taps fully to try and flush it out > if this does not work disconnect from the power supply and [a] remove the pipework off the top of the controller there is probably some debris in the brass “popit valve” that is in the top of the controller, carefully remove the debris > if it is not that disassemble the pump controller and clean, or have a pump technician do it for you.
24. Pump not pumping properly
- Too high head or pump under specified > Check specifications.
- Too low water level > Check the water level in the tank, tank level indicators are not always accurate
- Loss of prime > Check foot valve (if fitted), re-prime the pump.
- Leakage of inlet pipe > Check the inlet pipe is not taking in air, check all joints.
- Inlet Pipe has rise and fall (Dips) or has too many elbows or is blocked > Fix suction pipe so it is both perfectly straight and level,
OR rises all the way to the pump, or turn the pump off and wait for the tank to fill more > NOTE: if the inlet pipe is not straight to the pump it is most likely that you WILL get airlocks in the pipework especially when the tank has low water, this is NOT a pump fault > turn the pump off until the tank fills to have 500mm depth or more. - If a check valve has been installed directly on the discharge of the pump controller, this may cause the pump controller to malfunction > Move the check valve to a different position.
25. Safety Switch (RCD) or Circuit Breaker trips when the pump starts
- Circuit is overloaded with too many appliances connected to it > contact a licenced electrician to install additional circuit
- Power plug is wet > refer 21.
- Pump has been flooded > refer 21.3
- If none of the above, the Motor may be defective > have it checked by a qualified technician
If you have checked all the above trouble shooting points and it fails to rectify the problem, have it checked by a qualified technician
WARNING!!!
ELECTRICAL PRECAUTIONS
DO NOT INSTALL PUMP if the premises does not have a Safety Switch (RCD)
Before servicing a pump, always shut off the power supply and then make sure you are not standing in water and that there is no risk of electrical shock. If pump is direct-wired to the electrical circuit, have a qualified licensed electrician disconnect it before attempting any repairs or servicing.
DO NOT ATTEMPT ELECTRICAL REPAIRS OF ANY SORT UNLESS YOU ARE A LICENSED ELECTRICIAN
WARRANTY RECORD – FILL IN AND RETAIN THIS WITH YOUR ORIGINAL PURCHASE RECEIPT
PURCHASER NAME & ADDRESS_______________________
PHONE NO_________________________
DATE OF PURCHASE ………../………../…………
DEALER/STORE NAME_________________________
DEALER SUBURB/TOWN_________________________
PHONE NO_________________________
BRAND & MODEL NUMBER OF PUMP_________________________ BATCH or SERIAL NUMBER_________________________
Do NOT send this form to us, retain it for your record.
INSTALLATION CHECKLIST: MUST BE FILLED IN FOR WARRANTY TO APPLY
Installer Name__________________________Qualification:_____________(write Owner if applicable)
Phone Number: ____________________If installed by a Plumber or Electrician, Licence No:_____________________
Installation Address:______________________________________________________
Tick the boxes as the item is completed/correct, put n/a if not applicable;
- The Pump is being used for an appropriate purpose for which it is intended, according to the instructions [ ]
The Power Circuit the Pump is connected to is RCD (Safety Switch) Protected - A Y-Strainer or Pre-filter is installed in the suction pipe to prevent particles entering the pump [ ]
- All swarf has been removed from the tank after cutting openings etc.
- Barrel Unions are fitted on the pipe connections for easy removal & replacement
- A Ball Valve or Gate Valve is fitted to the suction pipe (the pipe from tank to pump)
- Pipe is sized appropriately for the application (diameter and length)
- The installation is constructed so the pump can be easily removed or replaced.
- The pump is installed in accordance with National & Local Plumbing Regulations
- The Electrical Supply cable is plugged into a Power Outlet that is in accordance with the current standard of Electrical Safety Regulations AS/NZS 3000 – or the pump has been wired directly to the power circuit by a Licenced Electrician.
- The Pump has been primed (filled with water) started, tested, and operates correctly.
- The pipes and connections and the barrel-union on the pump, and toilet cisterns (if connected) have been checked for leaks.
- The pump is protected from sunlight & rain, with a suitable vented pump-cover or enclosure.
- The Owner has been shown how to re-prime and re-set the pump (re-fill the pump with water if it runs dry)
- For suction lift applications the Owner has been shown how to re-prime the SUCTION PIPE and re-set the pump (re-fill the pipe & pump with water if it runs dry) and how to check if there is an air-leak in the suction pipe if the pump loses prime continually
Signed by the Installer:________________________________________ Date Installed: _______/_______ /______

















