KOHLER KD2800 eFRAME Walk In Enclosures and Subbase Fuel Tank Package

Enclosure and Subbase Fuel Tank Combinations
Sound Enclosure Level 2 configurations include a sub base fuel tanks.
Available Approvals and Listings
- UL2200 FTTP Certification for Construction
- UL142 Listing (fuel tanks)
- CSA Approval
- IBC Certified via analysis for site specific use.
- cUL Listing (fuel tanks only)
Note: Some models may have limited third-party approvals; see your local distributor for details.
Applicable to the following models: KD2800 – KD3250
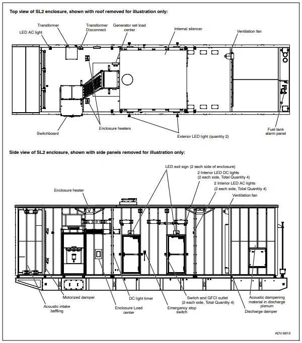
Sound Level 2 Enclosure Standard Features
- Kohler Factory Sound Attenuated, Aluminum Skin and Aluminum Frame Enclosure.
- Internal silencer, acoustic- lined air inlet, vertical outlet hood with 90_ angles to redirect air and reduce noise. D Mounts to sub base fuel tank.
- Aluminum construction with four large, hinged, doors for easy maintenance.
- Fade-, scratch-, and corrosion-resistant textured finish. D Lockable, stainless steel external door latches, internal crash bar for exit.
- Door retention.
- Air inlet louvers to reduce rain and snow entry.
- Designed to meet or exceed 135 mph wind load rating. D IBC Certified via analysis for site specific use.
- Roof snow loading capable of up to 341.7 kg/m2 (70 lb/ft2).
- Fluid drains piped to the exterior of the enclosure.
- Acoustic insulation that meets UL 94 HF1 flammability classification.
- Cable entry access available either through the tank stub- in or through the top right or left side panels of the enclosure.
- Enclosure is capable of being split into three sections with one section independently removed in the field.
Subbase Fuel Tank Features
- The fuel tank has a black powder-coat finish texture. D The above-ground rectangular secondary containment tank mounts directly to the generator set, below the generator set skid (sub base).
- Provides walking surface within enclosure for generator set access.
- Both the inner and outer tanks have UL-listed emergency relief vents.
- Flexible fuel lines are provided.
- The containment tank’s construction protects against fuel leaks or ruptures. The inner (primary) tank is sealed inside the outer (secondary) tank. The outer tank contains the fuel if the inner tank leaks or ruptures.
- The above ground secondary containment subbase fuel tank meets UL 142 requirements.
- Oil fogged tank interior for rust prevention.
Aluminum Sound Enclosures

Level 2 Sound Enclosure Features
- Heavy-duty aluminum frame and aluminum skin construction. Preassembled package offering corrosion resistant, dent resilient structure.
- Superior finish, durability, and appearance.
- Rimless enclosure roof to reduce the buildup of moisture and debris.
- Internal exhaust silencers offering maximum component life and operator safety.
- Service access. Multiple personnel doors on both sides for easy access to generator set control and servicing of the fuel fill, fuel gauge, oil fill, and battery.
- Cooling/combustion air intake. Fixed air intake louvers.
- Sound-attenuating design using internal silencer and added acoustic insulation, UL 94 HF1 listed for flame resistance.
- Vertical air discharge. Sound level 2 (SL2) models use a vertical air discharge design that redirects exhaust and cooling air up and above the enclosure to reduce noise.
- Enclosure is capable of being split into three sections with one section independently removed in the field if major generator set component replacement is required – significantly reducing service costs and downtime.
Aluminum Sound Enclosure Options

Aluminum Sound Enclosure Options
- Basic Electrical Package (BEP)
Distribution Panel/Load Center. Pr ewired AC power distribution of all factory-installed features including block heater, four GFCI-protected internal 120-volt service receptacles, internal and exit lighting, and commercial grade wall switches. Three-phase panel mounted on interior enclosure wall and single-phase load center mounted on generator skid rail, powered by building source power and protected by a main circuit breaker, rated as noted, with capacity and circuit positions for future expansion. AC power distribution installed in accordance with NEC and all wiring within conduit. LED AC lights located within UL-listed fixtures designed for wet locations.- BEP, 60 Hz. Includes 100 amp single-phase electrical panel and 150 amp three-phase electrical panel, four 3-way switches, four LED lights, and four GFCI receptacles.
- DC Light Package
Prewired, internal LED DC light package offering an economical alternative light source within the enclosure, as a complement to the BEP or a source of light when AC power is not available. Battery drain limited with fuse protection and controlled through a 0- 60 minute, spring-wound, no-hold timer.* - Electrical Accessories
Wiring Kits. Electrical wiring for accessories. BEP required.- Alternator heater wiring*
- Block heater wiring, single-phase*
- Block heater wiring, three-phase
- Battery charger wiring*
- Battery heater wiring
- Emergency Stop Switch
- Generator set emergency stop switch, qty. 1.*
- LED Exterior Lighting above Entrance Doors. BEP required.
- LED exterior lights, qty. 4.*
- Stepdown Transformers. BEP required, 60 Hz.
- Three-phase, 120/208 V *
- Disconnect Switches. Disconnect switch for step down transformer. 60 Hz only. *
- Three-phase *
- Enclosure Heater
- Heater, 3.6/4.8 kW Ceiling Mounted. Electrical utility heater prewired to load center internal to enclosure. Rated at 12288/16384 Btu. Includes adjustable louvers offering down flow and horizontal air tuning, built-in thermostat with automatic fan delay controls.
- Heater kit with 2 heaters, 208/240 VAC, 60 Hz. BEP required.*
- Exhaust Fan
- Exhaust Ventilation Fan. Mounted inside the enclosure.
BEP required.*
- Exhaust Ventilation Fan. Mounted inside the enclosure.
- Motorized Inlet Louvers. 60 Hz only; BEP required.
- Aluminum construction*
- Gravity Air Outlet
- Aluminum construction*
* Included in base specification as standard. Other items are available as Engineering Specials. BEP is adjusted according to
Engineering Special requirements.
- Aluminum construction*
Subbase Fuel Tank

Subbase Fuel Tank Standard Features
- Extended operation. State tanks with minimum capacity for 24 hr. operation
- UL listed. Secondary containment generator set base tank meeting UL 142 requirements.
- NFPA compliant. Designed to comply with the installation standards of NFPA 30 and NFPA 37.
- Integral external lift lugs. Enables crane with spreader-bar lifting of empty tank to ensure safety.
- Emergency pressure relief vents. Vents ensure adequateventing of inner and outer tank under extreme pressure and/or emergency conditions.
- Normal vent- 3.7 m (12 ft.) above grade.
- Normal vent with cap. Vent is raised above lockable fuel fill.
- Fuel level gauge with sender.
- Mechanical fuel level gauge.
- Leak detection switch. Annunciates a contained primary tank fuel leak condition at generator set control.
- Electrical stub-up area open to bottom with side panel access.
- Additional 2 in. NPT fittings for optional accessories.
- 3- alarm panel (low, high, critical high).
- Two 18.9 L (5- gal.) spill containment with 95% shut- off OPV.
- Fuel tank panel, 4 alarm, 24 V, Florida Dept. of Environmental Protection (FDEP) approved
- 100% engine fluid containment.
Subbase Fuel Tank Options*
- Fuel in Basin Options
- Fuel in basin switch, Florida Dept. of Environmental
- Protection (FDEP) File approved
- Fuel Supply Options
- Fire safety valve (installed on fuel supply line)
- Ball valve (installed on fuel supply line)
- Fuel Fill Options
- Fill pipe extension to within 152 mm (6 in.) of bottom of fuel tank
- 18.9 L (5 gallon) spill containment
- 18.9 L (5 gallon) spill containment fill to within 152 mm (6 in.) of bottom of fuel tank
- 28.4 L (7.5 gallon) spill containment, Florida Dept. of Environmental Protection (FDEP) approved
- 28.4 L (7.5 gallon) spill containment with 95% shutoff, Florida Dept. of Environmental Protection (FDEP) approved
- High Fuel Level Switch
- High fuel level switch, 24V
- High fuel level switch, 24V, Florida Dept. of Environmental Protection (FDEP) approved
- Fuel tank panel, 3 alarm, 24 V
- Fuel tank panel, 3 alarm, 24 V, Florida Dept. of Environmental Protection (FDEP) approved
- Tank Marking Options
- Decal, Combustible Liquids – Keep Fire Away (qty. 2)
- Decal, NFPA 704 identification (qty. 2)
- Decal, tank number and safe fuel fill height (qty. 2)
Enclosure and Subbase Fuel Tank Specifications
| Fuel Tank Capacity, L (gal.) | Est. Fuel Supply Hours at 60 Hz with Full Load (nominal ) | Max. Dimensions, mm (in.) |
Max. Weight, [ kg (lb.) | Fuel Tank Height, mm (in.) | Sound Pressure Level at 60 Hz with Full Load, dB(A) ] | ||
| Length | Width w | Height | |||||
KD2800 SL2 Sound Enclosure with Internal Silencer and State Code Subbase Fuel Tank
| 23417 (6186) | 28 | 15545 (612) | 4186 (164.8) | 5278 (207.8) | 56436 (124420) | 714 (28.1) | 75 |
KD3000 SL2 Sound Enclosure with Internal Silencer and State Code Subbase Fuel Tank
| 23417 (6186) | 26 | 15545 (612) | 4186 (164.8) | 5278 (207.8) | 56436 (124420) | 714 (28.1) | 75 |
KD3250 SL2 Sound Enclosure with Internal Silencer and State Code Subbase Fuel Tank
| 23417 (6186) | 24 | 15545 (612) | 4186 (164.8) | 5278 (207.8) | 56436 (124420) | 714 (28.1) | 75 |
- Data in table is for reference only. Height includes enclosure, lift base, and tank (if equipped). Refer to your authorized Kohler distributor for enclosure and sub-base fuel tank specification details.
- Max. weight includes the generator set (wet) with the largest alternator option, enclosure, silencers, and tank (no fuel).
- Log average sound pressure level of 8 positions around the perimeter of the unit at a distance of 7 m (23 ft.). Refer to TIB-114 for details.
- An additional 1016 mm (40 inches) of clearance on each side for opening and closing the access doors is recommended.
Note: If the Est. Fuel Supply Hours column shows more than one number, the numbers represent each model in that range.
Availability is subject to change without notice. Kohler Co. reserves the right to change the design or specifications without notice and without any obligation or liability whatsoever. Contact your local Kohler generator set distributor for availability.



















