KOHLER KG200 Industrial Natural Gas Generator

Ratings Range

Generator Set Ratings

Standard Features
- Kohler Co. provides one-source responsibility for the generating system and accessories.
- The generator set and its components are prototype-tested, factory-built, and production-tested.
- The 60 Hz generator set offers a UL 2200 listing.
- The generator set accepts rated load in one step.
- The 60 Hz generator set meets NFPA 110, Level 1 when equipped with the necessary accessories and installed per NFPA standards.
- A one-year limited warranty covers all generator set systems and components. Two- and five-year extended limited warranties are also available.
- Alternator features:
- The unique Fast-Response
- X excitation system delivers excellent voltage response and short-circuit capability using a rare-earth, permanent magnet (PM)-excited alternator. (For 4S13X Alternator)
- The unique Fast-Response
- II excitation system delivers excellent voltage response and short-circuit capability using a permanent magnet (PM)-excited alternator. (For 4UA13 and 4UA9 Alternators)
- The brushless, rotating-field alternator has a broad range of reconnecting abilities.
- Natural gas, LP gas, and dual fuel models areavailable.
- Dual fuel model features:
- Natural gas is the primary fuel. Automatically transfers back to primary fuel when LPG fuel becomes low or the generator stops and restarts.
- The patent pending reset box on the generatorprovides the ability to manually transfer back to natural gas.
- The natural gas rating is available when running on natural gas.
- APM603 controller provides a load shed forautomatic derate to LPG ratings to prevent an overload condition.

Generator Set Ratings, continued

RATINGS: All three-phase units are rated at 0.8 power factor. All single-phase units are rated at a 1.0 power factor. Standby Ratings: The standby rating is applicable to varying loads for the duration of a power outage. There is no overload capability for this rating. Ratings are in accordance with ISO-8528-1 and ISO-3046-1. Obtain technical information bulletin (TIB-101) for rating guidelines, complete rating definitions, and site condition derates. The generator set manufacturer reserves the right to change the design or specifications without notice and without any obligation or liability whatsoever.
Alternator Specifications
- Manufacturer Kohler
- Type 4-Pole, Rotating-Field
- Exciter type Brushless, Rare-Earth Permanent Magnet
- Leads: quantity, type 4SX, 4UA 12, Reconnectable
- Voltage regulator Solid State, Volts/Hz
- Insulation: NEMA MG1
- Material Class H
- Temperature rise 130 C, Standby
- Bearing: quantity, type 1, Sealed
- Coupling Flexible Disc
- Amortisseur windings Full
- Voltage regulation, no-load to full-load Controller Dependent
- One-step load acceptance 100% of Rating
- Unbalanced load capability 100% of Rated Standby Current
- Peak motor starting kVA: (35% dip for voltages below)
- 480 V 4UA9 (12 lead) 700 (60 Hz)
- 480 V 4S13X (12 lead) 570 (60 Hz)
- 480 V 4UA13 (12 lead) 960 (60 Hz)
NEMA MG1, IEEE, and ANSI standards compliance for temperature rise and motor starting.
- Sustained short-circuit current of up to 300% of the rated current for up to 10 seconds.
- Sustained short-circuit current enabling downstream circuit breakers to trip without collapsing the alternator field.
- Self-ventilated and drip-proof construction.
- Windings are vacuum-impregnated with epoxy varnish for dependability and long life.
- Superior voltage waveform from a two-thirds pitch stator and skewed rotor
Application Data
Engine
Engine Specifications 60Hz 50Hz
- Manufacturer Kohler
- Engine: model, type KG10V08T- 6DGS, 10.3 L, 4-Cycle, Turbocharged and Aftercooled
- Cylinder arrangement V-8
- Displacement, L (cu. in.) 10.3 (632)
- Bore and stroke, mm (in.) 116.8 x 120.6 (4.6 x 4.7)
- Compression ratio 9.3:1
- Piston speed, m/min. (ft./min.) 434.3 (1425)
- Main bearings: quantity, type 5, Tri-Metal
- Rated rpm 1800 1500
- Max. power at rated rpm (NG), kW (HP) 245 (330) 196 (263)
- Max. power at rated rpm (LPG), kW (HP) 195 (262) 156 (209)
- Cylinder head material Cast Iron
- Piston type and material Dished Top Forged Aluminum
- Crankshaft material Forged Steel
- Valve (exhaust) material Inconel
- Governor type Electronic
- Frequency regulation, no-load to full-load Isochronous
- Frequency regulation, steady state ±0.75%
- Frequency Fixed
- Air cleaner type, all models Dry
Exhaust
Exhaust System 60Hz 50Hz
- Exhaust manifold type Dry
- Exhaust flow at rated kW, m3/min. (cfm) 43.6 (1540) 32.9 (1162)
- Exhaust temperature at rated kW, dry
- exhaust, C (F) 764(1407)704 (1300)
- Maximum allowable overall back pressure, kPa (in. Hg) 19.8 (5.87) 5.85 (1.74)
- Maximum allowable back pressure after the catalyst, kPa (in. Hg) 14.3 (4.24) 4.2 (1.25)
- Exhaust outlet size at engine hookup, mm (in.) Flanged Outlet at Catalyst see ADV drawing
Engine Electrical
Engine Electrical System 60Hz 50Hz
- Ignition system Coil Pack
- Battery charging alternator:
- Ground (negative/positive) Negative
- Volts (DC) 12
- Ampere rating 130
- Starter motor rated voltage (DC) 12
- Battery, recommended cold cranking amps (CCA): Qty., rating for – 18C (0°F) one, 925
- Battery voltage (DC) 12
Fuel
Fuel System 60Hz 50Hz
- Fuel type Natural Gas, LP Gas, or Dual Fuel
- Fuel supply line inlet 2 NPT
- Natural gas, LPG, and Dual fuel supply
- pressure, kPa (in. H2O) 1.74- 2.74 (7-11)
Fuel Composition Limits * Nat. Gas LP Gas
- Methane, % by volume 90 min. –
- Ethane, % by volume 4.0 max. –
- Propane, % by volume 1.0 max. 85 min.
- Propene, % by volume 0.1 max. 5.0 max.
- C4 and higher, % by volume 0.3 max. 2.5 max.
- Sulfur, ppm mass 25 max.
- Lower heating value,
- MJ/m3 (Btu/ft3), min. 33.2 (890) 84.2 (2260)
Fuels with other compositions may be acceptable. If your fuel is outside the listed specifications, contact your local distributor for further analysis and advice.
Lubrication
Lubricating System 60Hz 50Hz
- Type Full Pressure
- Oil pan capacity, L (qt.) 11.3 (12)
- Oil pan capacity with filter, L (qt.)15.1 (16)
- Oil filter: quantity, type 1, Cartridge
- Kohler recommends the use of Kohler Genuine oil and filters
Cooling
Radiator System 60Hz 50Hz
- Ambient temperature, C (F) * 50 (122)
- Engine jacket water capacity, L (gal.) 11 (2.9)
- Radiator system capacity, including engine, L (gal.) 34 (9)
- Engine jacket water flow, Lpm (gpm) 219 (58) 182 (48)
- Heat rejected to cooling water at rated
- kW, dry exhaust, kW (Btu/min.) 102 (5800) 104 (5914)
- Heat rejected to charge cooling air at rated kW, dry exhaust, kW (Btu/min.) 20.1 (1143) 23.5 (1336)
- Heat rejected to engine oil at rated kW, dry exhaust, kW (Btu/min.) 20.5 (1165) 20 (1137)
- Water pump type Centrifugal
- Fan diameter, including blades, mm (in.) 900 (35.4)
- Fan, kW (HP) 15 (20.1) 9 (12)
- Max. restriction of cooling air, intake and discharge side of the radiator, kPa (in. H2O) 0.125 (0.5)
- Enclosure with an enclosed silencer reduces ambient temperature capability by 5 C (9 F).
Operation Requirements
Air Requirements 60Hz 50Hz
- Radiator-cooled cooling air, m3/min. (scfm) 331 (11700) 275 (9700)
- Combustion air, m3/min. (cfm) 12.74 (450) 9.77 (345)
- Heat rejected to ambient air:
- Engine, kW (Btu/min.) 58.2 (3309) 40 (2275)
- Alternator, kW (Btu/min.) 16 (910) 13.8 (784)
- Air density = 1.20 kg/m3 (0.075 lbm/ft3)
Fuel Consumption 60Hz 50Hz
Natural Gas, m3/hr. (cfh) at % load Standby Ratings
- 100% 67.9 (2398) 51.9 (1832)
- 75% 53.1 (1874) 40.7 (1436)
- 50% 38.2 (1350) 29.4 (1040)
- 25% 23.4 (826) 18.2 (644)
- 0% 8.5 (302) 7.0 (248)
LP Gas, m3/hr. (cfh) at % load Standby Ratings
- 100% 23.5 (829) 18.9 (669)
- 75% 18.5 (654) 12.6 (443)
- 50% 13.6 (479) 9.3 (327)
- 25% 8.6 (304) 6.8 (239)
- 0% 3.7 (129) 2.8 (100)
Nominal fuel rating: Natural gas, 37 MJ/m3 (1000 Btu/ft.3) LP vapor, 93 MJ/m3 (2500 Btu/ft.3)
LP vapor conversion factors:
- 8.58 ft.3 = 1 lb.
- 0.535 m3 = 1 kg.
- 36.39 ft.3 = 1 gal
Controllers

APM402 Controller
- ovides advanced control, system monitoring, and system diagnostics for optimum performance and compatibility.
- Digital display and menu control provide easy local data access
- Measurements are selectable in metric or English units
- Remote communication thru a PC via network or
- rial configuration
- The controller supports the Modbus protocol
- Integrated hybrid voltage regulator with ±0.5% regulation
- Built-in alternator thermal overload protection
- NFPA 110 Level 1 capability
- Refer to G6-161 for additional controller features and accessories.

APM603 Controller
- Provides advanced control, system monitoring, and system diagnostics
- or optimum performance and compatibility.
- 7-inch graphic display with touch screen and menu control provides easy local data access
- Measurements are selectable in metric or English units
- Load management to connect and disconnect loads as required
- The controller supports Modbus RTU, Modbus TCP, SNMP, and BACnet
- Integrated voltage regulator with ±0.25% regulation
- Built-in alternator thermal overload protection
- UL-listed overcurrent protective device
- NFPA 110 Level 1 capability
- Refer to G6-162 for additional controller features and accessories.
Standard Features
- Air Restriction indicator
- Alternator Protection
- Battery Rack and Cables
- Closed Crankcase Ventilation (CCV) Filter
- Dual Fuel Reset Box (standard on dual fuel models)
- Gas Fuel System (includes fuel mixer, electronic secondary gas regulator, gas solenoid valve, and flexible fuel line between the engine and the skid-mounted fuel system components)
- Integral Vibration Isolation
- Local Emergency Stop Switch
- Oil Drain Extension
- Operation and Installation Literature
- Open Unit Accessory Kit (Duct Flange, Stone Guard, and Three-Way Exhaust Catalyst)
Available Options
Circuit Breakers
Type Rating
- Magnetic Trip 80%
- Thermal Magnetic Trip 100%
- Electronic Trip (LI) Operation
- Electronic Trip with
Short Time (LSI)
- Manual
- Electrically Operated (for par-
- Electronic Trip with alleging) Ground Fault (LSIG)
Circuit Breaker Mounting
- Generator Mounted
- Remote Mounted
- Bus Bar (for remotely mounted breakers)
Enclosures for Remote Mounted Circuit Breakers
- NEMA 1
- NEMA 3R
Approvals and Listings
- CSA Approval
- IBC Seismic Certification
- UL 2200 Listing / cUL Genset Listing
- Hurricane Rated Enclosure (Available with Premium Aluminum Sound Enclosure Only)
Enclosed Unit
- Sound Enclosure (with enclosed critical silencer)
- Weather Enclosure (with enclosed critical silencer)
Open Unit
- Exhaust Silencer, Critical
Fuel System
- Dual Fuel NG/LPG (automatic changeover)
- Flexible Fuel Line
- Fuel Filter Kit
- Secondary Gas Solenoid Valve (UL Fuel System)
Controller
- Failure Relay w/Harness,1 Fault (APM603 controller only)
- Four Input/Fifteen Output Module
- Lockable Emergency Stop
- Manual Speed Adjust (APM402 controller only)
- Manual Key Switch (APM603 controller only)
- Paralleling, Gen Mounted EOB (APM603 controller only)
- Paralleling, Remote Mounted EOB (APM603 controller only)
- Remote Annunciator Panel
- Remote Emergency Stop Switch
- Run Relay, 12 V
- Two Input/Five Output Module (APM402 controller only)
Cooling System
- Block Heater, 1500 W, 120 V
- Block Heater, 1500 W, 240 V
- Required for ambient temperatures below 10°C (50°F)
Electrical System
- Battery
- Battery Charger (6A or 10A)
- Temperature Compensation for 10A Battery Charger
- Battery Heater, 120V
- Alternator Strip Heater
- Basic Electrical Package (Includes 30 A terminal strip, DC light switch, 20 A, 240 VAC receptacle, and 20 A, 120 VAC GFI receptacles.)
Miscellaneous
- Certified Test Report
- Engine Fluids (oil and coolant) Added
- Rodent Guards
- Skid End Caps
Literature
- General Maintenance
- NFPA 110
- Overhaul
- Production
Warranty
- 2-Year Basic Limited Warranty
- 5-Year Basic Limited Warranty
- 5-Year Comprehensive Limited Warranty
- 10-Year Extended Warranty
Other Options
Dimensions and Weights
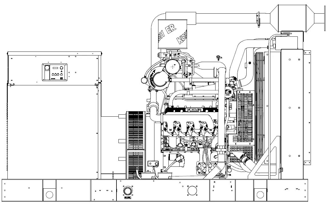
- Overall Size, L x W x H, mm (in.): 2800 x 1340 x 1809 (110.2 x 52.8 x 71.2)
- Weight (radiator model), wet, kg (lb.): 2030 (4480)

NOTE: This drawing is provided for reference only and should not be used for planning installation. Contact your local distributor for more detailed information.



















