Emergency Standby Power Generator
Instruction Manual
Emergency Standby Power Generator
EPA-Certified for Stationary Emergency Applications
Ratings Range
| Standby | 60 Hz |
| kW | 77- 100 |
| kVA | 77- 125 |

Standard Features
- Kohler Co. provides one-source responsibility for the generating system and accessories.
- The generator set and its components are prototype-tested, factory-built, and production-tested.
- The 60 Hz generator set offers a UL 2200 listing.
- CSA approval is available.
- The 60 Hz generator set meets NFPA 110, Level 1, when equipped with the necessary accessories and installed per NFPA standards.
- The generator set accepts rated load in one step.
- A one-year limited warranty covers all generator set systems and components. Two- and five-year extended limited warranties are also available.
- Alternator features:
• The unique Fast-Response® X excitation system delivers excellent voltage response and short-circuit capability using a rare-earth, permanent magnet (PM)-excited alternator.
• The brushless, rotating-field alternator has broadrange reconnectability. - Other features:
• Kohler APM402 controller. See controller features on page 3.
• The electronic, isochronous governor incorporates an integrated drive- by- wire throttle body actuator delivering precise frequency regulation. - Quick- ship (QS) models with selected features and a five- year basic limited warranty are available. See your Kohler distributor for details.
Generator Set Ratings
Natural Gas 130® C RiseStandby Rating.
LP Gas 130®C RiseStandby Rating.
| Alternato | Voltage | Ph | Hz | kW/kVA | Amps | kW/kVA | Amps |
| 4R9X | 120/208 | 3 | 60 | 100/125 | 347 | 100/125 | 347 |
| 127/220 | 3 | 60 | 100/125 | 329 | 100/125 | 329 | |
| 120/240 | 3 | 60 | 100/125 | 301 | 100/125 | 301 | |
| 120/240 | 1 | 60 | 77/77 | 321 | 77/77 | 321 | |
| 139/240 | 3 | 60 | 100/125 | 301 | 100/125 | 301 | |
| 220/380 | 3 | 60 | 91/114 | 174 | 91/114 | 174 | |
| 277/480 | 3 | 60 | 100/125 | 151 | 100/125 | 151 | |
| 4R12X | 120/208 | 3 | 60 | 100/125 | 347 | 100/125 | 347 |
| 127/220 | 3 | 60 | 100/125 | 329 | 100/125 | 329 | |
| 120/240 | 3 | 60 | 100/125 | 301 | 100/125 | 301 | |
| 120/240 | 1 | 60 | 91/91 | 380 | 91/91 | 380 | |
| 139/240 | 3 | 60 | 100/125 | 301 | 100/125 | 301 | |
| 220/380 | 3 | 60 | 100/125 | 190 | 100/125 | 190 | |
| 277/480 | 3 | 60 | 100/125 | 151 | 100/125 | 151 | |
| 4T13X | 120/240 | 1 | 60 | 100/100 | 417 | 100/100 | 417 |
RATINGS: All three-phase units are rated at 0.8 power factor. All single-phase units are rated at 1.0 power factor. Standby Ratings: The standby rating is applicable to varying loads for the duration of a power outage. There is no overload capability for this rating. Ratings are in accordance with ISO-8528-1 and ISO-3046-1. For limited running time and continuous ratings, consult the factory. Obtain technical information bulletin (TIB-101) for ratings guidelines, complete ratings definitions, and site condition derates. The generator set manufacturer reserves the right to change the design or specifications without notice and without any obligation or liability whatsoever. For dual fuel engines, use the natural gas ratings for both the primary and secondary fuels.
Alternator Specifications
| Specifications | Alternator |
| Manufacturer Type Exciter type | Kohler 4-Pole, Rotating-Field Brushless, Rare- Earth Permanent Magnet |
| Leads: quantity, type 4RX 4TX Voltage regulator Insulation: Material Temperature rise Bearing: quantity, type Coupling Amortisseur windings Voltage regulation, no-load to full-load | 12, Reconnectable 4, 120/240 Solid State, Volts/Hz NEMA MG1 Class H 130 C, Standby 1, Sealed Flexible Disc Full ±0.5% |
| One-step load acceptance Unbalanced load capability | 100% of Rating 100% of Rated Standby Current |
| Peak motor starting kVA: 480 V 4R9X (12 lead 480 V 4R12X (12 lead 240 V 4T13X (4 lead) | (35% dip for voltages below) 385 (60 Hz) 448 (60 Hz) 440 (60 Hz) |
- Total harmonic distortion (THD) from no load to full load with a linear load is less than 3.2%.
- NEMA MG1, IEEE, and ANSI standards compliance for temperature rise and motor starting.
- Sustained short-circuit current of up to 300% of the rated current for up to 10 seconds.
- Sustained short-circuit current enabling downstream circuitbreakers to trip without collapsing the alternator field.
- Self-ventilated and dripproof construction.
- Superior voltage waveform from a two-thirds pitch stator and skewed rotor.
- Windings are vacuum- impregnated with epoxy varnish for dependability and long life.
Application Data
Engine
| Engine Specifications | 60 Hz |
| Manufacturer Engine: model, type | Kohler KG6208THD 6.2L Turbocharged, Aftercooled |
| Cylinder arrangement Displacement, L (cu. in.) Bore and stroke, mm (in.) Compression ratio Rated rpm Max. power at rated rpm, kW (HP) NG LP Cylinder head material Piston type and material Crankshaft material Valve (exhaust) material Governor type Frequency regulation, no-load to ful Frequency regulation, steady state Frequency Air cleaner type, all models | V-8 6.2 (378) 01.6 x 95.25 (4.00 x 3.7 9.8:1 1800 152 (204) 131 (175) Cast Aluminum Cast Aluminum Forged steel Forged Steel Electronic Isochronous ±1.0% Fixed Dry |
Exhaust
| Exhaust System | 60 Hz |
| Exhaust manifold type | Dry |
| Exhaust flow at rated kW, m3 /min. (cfm) | 24 (848) |
| Exhaust temperature at rated kW, dry exhaust, C ( F) | 700 (1292) |
| Maximum allowable back pressure, kPa (in. Hg) | 14.9 (4.4) |
| Exhaust outlet size at engine hookup, mm (in.) | 88.9 (3.5) |
Engine Electrical
| Engine Electrical System | 60 Hz |
| Ignition system | |
| Battery charging alternator: Ground (negative/positive) Volts (DC) Ampere rating Starter motor rated voltage (DC) | Negative 12 130 12 |
| Battery, recommended cold cranking amps (CCA): Qty., rating for – 18 C (0°F) Battery voltage (DC) | One, 650 12 |
Fuel
| Fuel System | 60 Hz |
| Fuel type | Natural Gas, LP Gas, or |
| Fuel supply line inlet | Dual Fuel |
| Natural gas and LPG vapor fuel supply | 1.5 NPT |
| pressure, kPa (in. H2O) | 1.74- 2.74 (7-11) |
| Fuel Composition Limits * | Nat. Gas | LP Gas |
| Fuel Composition Limits * | 90 min. | — |
| Methane, % by volume | 4.0 max. | — |
| Ethane, % by volume | 1.0 max. | 85 min. |
| Propane, % by volume | 0.1 max. | 5.0 max. |
| Propene, % by volume | 0.3 max. | 2.5 max. |
| C4 and higher, % by volume | 25 max. | |
| Sulfur, ppm mass | ||
| Lower heating value, | 0 | |
| MJ/m3 (Btu³/ft ), min. | 33.2 (890) | 84.2 (2260) |
Lubrication
| Lubricating System | 60 Hz |
| Type | Full Pressure |
| Oil pan capacity, L (qt.)$ | 5.7 (6.0) |
| Oil pan capacity with filter and oil cooler,L (qt.) | 9.0 (9.5) |
| Oil filter: quantity, type $ | 1, Cartridge |
Cooling
| Radiator System | 60 Hz |
| Ambient temperature, °C (°F) | 45 (113) |
| Engine jacket water capacity, L (gal.) | 7.3 (1.93) |
| Radiator system capacity, including engine, L (gal.) | 28.4 (7.5) |
| Engine jacket water flow, Lpm (gpm) Heat rejected to ooling water at rated kW, dry exhaust, kW (Btu/min.) | 126 (33.3) |
| Heat rejected to charge air cooler at rated kW, dry exhaust, kW (Btu/min.) | 73.9 (4207) |
| Water pump type | 18 (1025) |
| Fan diameter, including blades, mm (in.) | Centrifugal |
| Fan, kWm (HP) | 711 (28) |
| Max. restriction of cooling air, intake and | 12.0 (16.1) |
| discharge side of radiator, kPa (in. H2O) | 0.12 (0.5) |
Operation Requirements
| Air Requirements | 60 Hz |
| Radiator-cooled cooling air,m3 /min. (scfm) | 290 (10,241) |
| Combustion air, m3 /min. (cfm) Heat rejected to ambient air: | 6.9 (244) |
| Engine, kW (Btu/min.) Alternator, kW (Btu/min. | 30 (1708) |
| † Air density = 1.20 kg/m3(0.075 lbm/ft) | 8 (455) |
Fuel Consumption
| Fuel Consumption | 60 Hz |
| Natural Gas, m3 /hr. (cfh) at % load | Standby Ratings |
| 100% | 41.7 (1473) |
| 75% | 34.7 (1224) |
| 50% | 26.8 (946) |
| 25% | 17.7 (625) |
| 0% | 8.3 (292) |
| LP Gas, m³/hr. (cfh) at % load | Standby Ratings |
| 100% | 18.8 (664) |
| 75% | 15.1 (532) |
| 50% | 11.0 (388) |
| 25% | 6.1 (216) |
| 0% | 3.4 (121) |
| Nominal fuel rating: | Natural gas, 37 MJ/m3(1000 Btu/ft. ) LP vapor, 93 J/m³ (2500 Btu/ft. ) |
LP vapor conversion factors:
8.58 ft.3 = 1 lb.
0.535 m³ = 1 kg.
36.39 ft.³ = 1 gal.
Controllers

APM402 Controller
Provides advanced control, system monitoring, and system diagnostics for optimum performance and compatibility.
- Digital display and menu control provide easy local data access
- Measurements are selectable in metric or English units
- Remote communication thru a PC via network or serial configuration
- Controller supports Modbus protocol
- Integrated hybrid voltage regulator with ±0.5% regulation
- Built-in alternator thermal overload protection
- NFPA 110 Level 1 capability Refer to G6-161 for additional controller features and accessories.
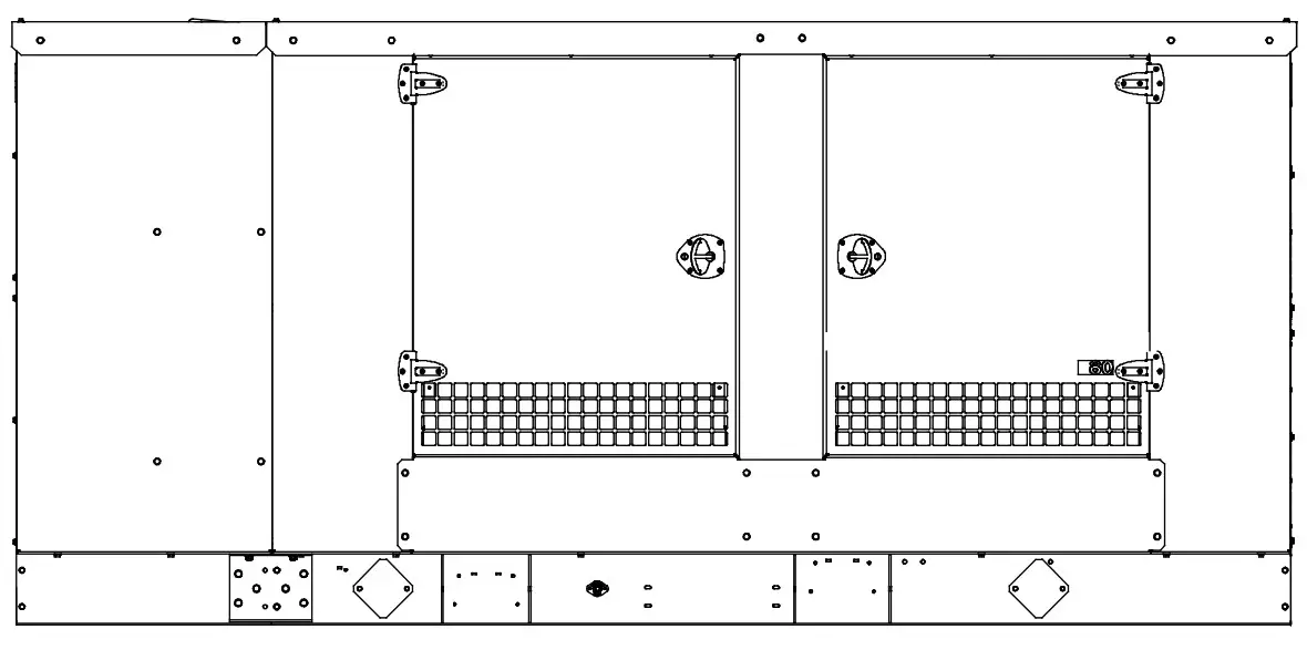
Sound Enclosure

- Sound level (8 point logarithmic average) at 7 m (23 ft.) with full load: 69 dB(A).
- Sound level compared to competitor ratings with no load: 68 dB(A).*
- Sound attenuating enclosure uses acoustic insulation that meets UL 94 HF1 flammability classification and repels moisture absorption.
- Vertical air inlet and outlet discharge with 90 degree bends to redirect air and reduce noise.
- Internal-mounted critical silencer and flexible exhaust connector.
- Skid-mounted, steel (standard) or aluminum (optional) construction with hinged doors.
- Fade-, scratch-, and corrosion-resistant Kohler Cashmere Power Armor textured e-coat paint.
- Lockable, flush-mounted door latches.
- Certified to withstand 299 kph (186 mph) wind load rating (aluminum enclosures only).
* Lowest of 8 points measured around the generator. Sound levels at other points around generator may be higher depending on installation parameters.
Standard Features
- Air Cleaner Restrictor Indicator
- Alternator Protection
- Battery Rack and Cables
- Electronic, Isochronous Governor
- Gas Fuel System (includes fuel mixer, electronic secondary gas regulator, gas solenoid valve, and flexible fuel line between the engine and the skid-mounted fuel system components)
- Flexible Fuel Line (for fuel supply connection)
- Integral Vibration Isolation
- Local Emergency Stop Switch
- Oil Drain Extension
- Operation and Installation Literature
- Steel Sound Enclosure
- Three- Way Catalyst
Available Options
Approvals and Listings
CSA Approval
UL 2200 Listing
Enclosure
Aluminum Sound Enclosure
Fuel System
Dual Fuel NG/LPG (automatic changeover)
Fuel Filter Kit
Secondary Gas Solenoid Valve (NFPA Fuel System)
Controller
Four Input/Fifteen Output Module
Lockable Emergency Stop
Manual Speed Adjust
Remote Emergency Stop
Run Relay
Remote Annunciator panel
Two Input/Five Output Module
Cooling System
Block Heater, 1500 W, 110- 120 V
Block Heater, 1500 W, 190- 240 V
Recommended for ambient temperatures below 10C (50F)
Electrical System
Battery
Battery Charger
Battery Charger Temperature Compensation
Battery Heater
Alternator Strip Heater
Line Circuit Breaker (NEMA1 enclosure)
Line Circuit Breaker with Shunt Trip (NEMA1 enclosure)
Miscellaneous
Certified Test Report
Engine Fluids (oil and coolant) Added
Rated Power Factor Testing
Rodent Guards
Literature
General Maintenance
Overhaul
Production
Warranty
2-Year Basic Limited Warranty
5-Year Basic Limited Warranty
5-Year Comprehensive Limited Warranty
Other Options
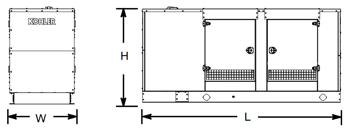
Dimensions and Weights
Overall Size, L x W x H, mm (in.) : 3525 x 1154 x 1665 (138.8 x 45.4 x 65.5)
Weight, wet, kg (lb.):
With steel sound enclosure: 1616 (3562)
With aluminum sound enclosure: 1515 (3340)

NOTE: This drawing is provided for reference only and should not be used for planning installation. Contact your local distributor for more detailed information.
DISTRIBUTED BY:
©2019 Kohler Co. All rights reserved.
G4-288 (KG100R) 9/21c



















