JUNIPER NETWORKS SSR1500 Line of Routers

Step 1: Begin
SUMMARY
In this guide, we provide a simple, three-step path, to quickly get the Juniper Networks® SSR1500 appliance up and running on Juniper Mist™ cloud. You’ll learn how to install, power on, and configure ;; basic s;মn]s for an AC-powered SSR1500 appliance.
Meet the SSR1500
The SSR1500 is a 1 U fixed configuration appliance that’s ideal for large data center or campus deployments. Powered by the Juniper® Session Smart Router (SSR) software, the SSR1500 provides secure and resilient WAN connectivity.
The SSR1500 has four 1 GbE ports, twelve 1/10/25 GbE SFP28 ports, a management port (for Mist operations), 512 GB of memory, and a 1 TB enterprise-grade solid-state drive (SSD) for storage.

What’s in the Box?
Along with your SSR1500, you’ll find:
- RJ-45 to USB A serial cable
- AC power cord (country-specific)
- Rack mount kit
- Two front mounting brackets
- Two side mounting rails
- Two rear mounting blades
- Six M4 i-head screws (for the front mounting brackets)
- Ten rack screws and cage nuts
- Eight M4 flat-head screws
What Else Do I Need?
- Number 2 or 3 Phillips(+) screwdriver, depending on the size of your rack screws
- A management host such as a laptop or desktop PC
- A grounding cable
CAUTION: Ensure that a licensed electrician has attached the appropriate grounding lug to your grounding cable. Using a grounding cable with an incorrectly attached lug can damage the SSR1500
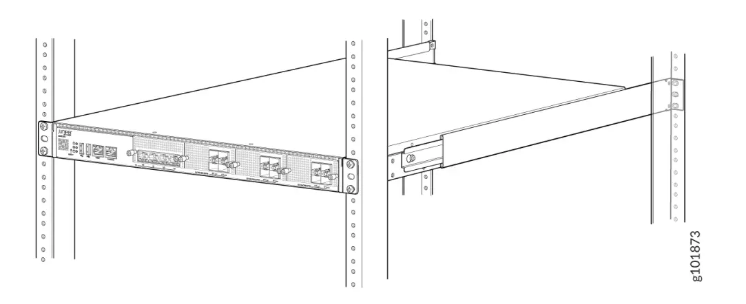
Rack lt
Here’s how to install the SSR1500 in a four-post rack:
- Review the General Safety Guidelines and Warnings.
- Wrap and fasten one end of the electrostatic discharge (ESD) cable grounding strap around your bare wrist, and connect the other end to a site ESD point.
- Attach the front mounting brackets to the front of the chassis using the six M4 flat-head screws.
- Secure the six M4 i-head screws to the sides of the chassis. Position the side mounting rails such that the keyholes of the side mounting rails align with the M4 i-head screws on the chassis. Slide and lock the side mounting rails in place and use the two M4 flat-head screws to secure the rails.

- Grasp both sides of the SSR1500 chassis, lift it, and position it in the rack so that the front mounting bracket holes align with the threaded holes in the rack rail.
NOTE: Ensure that the rear of the device is supported while you mount the SSR1500 in the rack. - While you’re holding the SSR1500 in place, have a second person insert and tighten the rack-mount screws to secure the front mounting brackets to the rack rails. Tighten the screws in the two bottom holes first, then tighten the screws in the two top holes.

- Continue to support the SSR1500 in place and have the second person slide the rear mounting blades into the channels of the side mounting rails.
- Secure the rear mounting blades on each side of the chassis to the rack post using the rack mounting screws.

- Check that the front mounting brackets on each side of the rack are lined up with each other.

- Attach a grounding cable to earth ground and then attach the other end to the SSR1500 grounding point.

- Dress the grounding cable. Ensure that it doesn’t touch or block access to other device components, and that it doesn’t drape where people could trip over it.
Power On
Now that you’ve installed your SSR1500 in the rack and grounded the chassis, you’re ready to connect it to power.
The SSR1500 supports redundant AC power supplies that are pre-installed at the factory. It comes with two AC power supplies preinstalled on the rear of the device.
- Wrap and fasten one end of the ESD grounding strap around your bare wrist, and connect the other end to one of the ESD grounding points on the router.
- Turn off the power switch on the SSR1500.
- Make sure that the power supplies are fully inserted in the chassis.
- Push the end of the power cord retainer strip into the hole under the power supply socket until it snaps into place. Ensure that the loop in the retainer strip faces the input on the PSU.
- Press the small tab on the retainer strip to loosen the loop. Slide the loop until there is enough space to insert the power cord coupler through the loop into the power supply socket.
- Insert the power cord coupler firmly into the power supply socket.
- Slide the loop toward the power supply socket until it is snug against the base of the coupler.

- Press the tab on the loop and draw out the loop into a tight circle.
- If the AC power source outlet has a power switch, turn it off.
- Insert the power cord plug into an AC power source outlet.
WARNING: Ensure that the power cord does not block access to the appliance components or drape where people can trip on it. - If the AC power source outlet has a power switch, turn it on.
- Turn on the power switch on the SSR1500.
Step 2: Up and Running
Now that the SSR1500 is powered on, let’s get it up and running on Juniper Mist'” cloud. You’ll need Juniper Mist WAN Assurance subscription and login credentials for the Juniper Mist portal.
Connect Your SSR1500 to the Mist Cloud
Your SSR1500 uses port MGMT (mgmt-0/0/0) as the default port to contact Mist for zero-touch provisioning (ZTP). It uses port 2/1 (xe-0/2/1) to connect to the LAN.
- Connect the MGMT port to an Ethernet link that can assign a DHCP address to the SSR1500 and provide connectivity to the Internet and Mist.
NOTE: For management, you can connect the SSR1300 to Mist using the MGMT port. You can also connect to Mist from one of the WAN ports only when the MGMT port is disconnected, or does not have a valid DHCP leased address and default route. - Connect port 2/1 to your LAN devices, such as
• Mist-managed Juniper EX switches
• Mist APs
• User devices
- Power on the SSR1500. Your SSR1500 is now connected to the Mist cloud.
Claim Your Appliance
To add the SSR1500 to your organization’s WAN Edge inventory, you’ll need to enter the SSR1500 claim information into Mist. The claim label (QR code sticker) on the front panel has the claim information.
To enter the claim information, do one of the following:
- Scan the QR code with the Mist mobile application.
- You can also manually enter the claim code in Mist. The claim code is the number above the QR code. For example: In this picture, the claim code is FVDHMBSNGFEVY40.

Mist Al App QR Scan
You can download the Mist Al App from the Mac App Store or from Google Play Store.
- Open the Mist Al app.
- Click Claim Devices to Org.

- Scan the QR code.
Enter the Mist Claim Code
- Log in to your organization on the Juniper Mist cloud.
- Select Organization > Inventory from the menu on the left, then select the WAN Edges tab at the top.
- Click Claim WAN Edges in the upper right portion of the inventory screen.
- Enter the SSR1500 claim code and click Add.
- Uncheck the Assign claimed WAN Edges to site check box to place the SSR1500 in the inventory. The SSR1500 is assigned to a site later.
- Click the Claim button to claim the SSR1500 into your inventory.
Video: Add the Claim Information in Mist
Add the Network
Add the network to be used for accessing applications over a LAN network segment.
- Select Organization > Networks from the menu on the left.
- Click Add Networks in the upper-right corner of the Networks page.
Video: Access the Add Networks Page - Enter a name for the network.
- Enter the network subnet as 192.168.1.0/24.

- Click Add.
This network is now defined for use across the entire organization, including the template that you’ll apply to your SSR1500.
Add Applications
- Select Organization > Applications from the menu on the left.
- Click Add Applications in the upper-right corner of the Applications page.
Video: Access the Add Applications Page - Enter the name for the application as Internet.
- Enter 0.0.0.0/0, or all IPv4 address spaces in the IP Addresses field.

- Click Add.
Your organization is now set up to provide access to the Internet.
Create a Template
Excellent! Now you have the SSR1500 waiting to be claimed, a network for your LAN, and an Internet application. Next, you need to create a WAN Edge template that ties them all together. Templates are reusable and keep the configuration consistent for every SSR1500 you deploy.
- Select Organization > WAN Edge Templates from the menu on the left.
- Click Create Template in the upper-right corner of the WAN Edge Templates page.
- Enter a name for the template.
- Click Create.
- Enter the NTP and DNS information for the WAN edge device.
Video: Create the Template
Configure the WAN Port
The first thing to do in your template is to define which port to use for the WAN.
- Scroll to the WAN section of the template, and click Add WAN.
- Enter the name for the WAN port as wan 1.
Video: Add WAN Configuration - Enter the interface as ge-0/1/0 to designate it as a WAN port.

- Click Add.
Configure the LAN Port
Next, associate your LAN network segment with the appropriate port on the SSR1500.
- Scroll to the LAN section of the template, and click Add LAN.
Video: Add LAN Configuration - From the Network drop-down menu, select your network segment to associate it with the LAN port.
- Enter the interface for the LAN port, for example, xe-0/2/1.
- Enter 192.168.1.1 as the IP Address that needs to be assigned to the WAN edge device .1 for use as the gateway in the network.
- Enter /24 as the Prefix Length.

- Select Server under DHCP to provide DHCP services to endpoints on this network.
- Give your DHCP server an address pool starting with 192.168.1.100 and ending with 192.168.1.200.
- Enter 192.168.1.1 as the gateway to be assigned to DHCP clients.
- Finally, enter the IP addresses for the DNS Servers to be assigned to clients on the network. For example, 8.8.8.8, 8.8.4.4.

- Click Add.
Configure Traffic Steering and Application Policies
Your template has the WAN and LAN information. Now, you need to tell the SSR1500 how to use the information to connect users to applications. This is done using traffic steering and application policies.
To configure the steering policy:
- Scroll to the Traffic Steering section of the template and click Add Traffic Steering.
Video: Add Traffic Steering Policy - Enter a name for the steering policy, for example, local-breakout.
- Click Add Paths to give your steering policy a path to send traffic.
- Select WAN as the path type, and select your WAN interface. For applications that use the policy, this indicates you want the traffic to be sent directly out of the local WAN interface.
- Click the ✓ button in the upper right corner of the Add Path panel, and then click Add at the bottom of the Add Traffic Steering side panel.
To configure the application policy:
- Scroll to the Application Policies section of the template, and click Add Application Policy.
Video: Add Application Policy - Enter a string in the Name column, and click the check mark to the right of your entry.
- Select your LAN network from the Network column drop-down list. Select Allow from the Action column drop down list.
- Select your Internet application from the Applications column drop-down list.
- Select your local breakout steering policy from the Traffic Steering column drop-down list.
Video: Configure the Application Policy
Almost there! You now have a working WAN Edge template that you can apply to many sites and appliances across your organization.
Assign the Template to a Site
Now that you’ve set up the template, you need to save and assign it to the site where your WAN edge device will be deployed.
- Scroll to the top of the page and click Save.
- Click the Assign to Site button, and select the site where you want the template configuration applied.
Assign the SSR1500 to a Site
After the SSR1500 is on boarded to the Mist cloud, you’ll need to assign it to a site so you can begin to manage the configuration and gather data in Mist cloud.
- Select Organization > Inventory. The status of the SSR1500 is shown as Unassigned.
- Select the SSR1500 and from the More drop-down list, select Assign to Site.
- Select the site from the Site list.
NOTE: Under Manage Configuration, do not check the Manage Configuration with Mist checkbox for the SSR1500 if it is using Session Smart Router software version 5.4.4. This allows the SSR1500 to reach out to the conductor IP address specified when the site was created to receive configuration information. If you are onboarding a Mist-managed appliance using Session Smart Router software version 6.0, select Manage Configuration with Mist. If you do not select Manage Configuration with Mist, the SSR1500 will not be managed by Mist. - Click Assign to Site.
Video: Assign the SSR1500 to a Site
The site assignment takes a few minutes. After the site is fully on boarded, use the Mist WAN Edge – Device View to access the SSR1500, and the Insights view to view events and activity.
Step 3: Keep Going
SUMMARY
Congratulations! Now that you’ve done the initial configuration, your SSR1500 is ready to use. Here are some things you can do next:
What’s Next?
| If you want to | Then |
| Understand the various configurations available on the SSR1500 | See Configuration Management on the SSR |
| Configure essential user access and authentication features | See Access Management |
| Upgrade the software | See Upgrading the SSR Networking Platform |
General Information
| If you want to | Then |
| See all documentation available for the SSR1500 | See the SSR1500 Documentation in the Juniper Networks Tech Library |
| See all documentation available for SSR software | Visit Session Smart Router (formerly 128T) |
| Stay up-to-date with new and changed features and known and resolved issues | See the SSR Release Notes |
Learn with Videos
Here are some great video and training resources that will help you expand your knowledge of SSR Software.
| If you want to | Then |
| Get short and concise tips and instructions that provide quick Juniper answers, clarity, and insight into specific features and functions of Juniper technologies | See Learning with Videos on Juniper Networks main YouTube page |
| View a list of the many free technical trainings we offer at Juniper | Visit the Getting Started page on the Juniper Learning Portal |
Juniper Networks, the Juniper Networks logo, Juniper, and Juncos are registered trademarks of Juniper Networks, Inc. in the United States and other countries. All other trademarks, service marks, registered marks, or registered service marks are the property of their respective owners. Juniper Networks assumes no responsibility for any inaccuracies in this document.
Juniper Networks reserves the right to change, modify, transfer, or otherwise revise this publication without notice. Copyright © 2023 Juniper Networks, Inc. All rights reserved.
































