RICE LAKE RoughDeck LP Low-Profile Floor Scale

Introduction
This manual is intended for use by service technicians responsible for installing and servicing RoughDeck® LP floor scales. The RoughDeck LP floor scales are fully electronic, low-profile load receivers with a 2000 lb (907.20 kg) capacity. Manuals and additional resources are available from Rice Lake Weighing Systems at www.ricelake.com/manuals Warranty information can be found on the website at www.ricelake.com/warranties
Safety
Safety Definitions:
- DANGER: Indicates an imminently hazardous situation that, if not avoided, will result in death or serious injury. Includes hazards that are exposed when guards are removed.
- WARNING: Indicates a potentially hazardous situation that, if not avoided, could result in serious injury or death. Includes hazards that are exposed when guards are removed.
- CAUTION: Indicates a potentially hazardous situation that, if not avoided, could result in minor or moderate injury.
- IMPORTANT: Indicates information about procedures that, if not observed, could result in damage to equipment or corruption to and loss of data.
General Safety
Do not operate or work on this equipment unless this manual has been read and all instructions are understood. Failure to follow the instructions or heed the warnings could result in injury or death. Contact any Rice Lake Weighing Systems dealer for replacement manuals.
WARNING Failure to heed could result in serious injury or death.
- Before opening the unit, ensure the power cord is disconnected from the outlet.
- Do not allow minors (children) or inexperienced persons to operate this unit.
- Do not operate without all shields and guards in place.
- Do not jump on the scale.
- Do not use for purposes other then weight taking.
- Do not place fingers into slots or possible pinch points.
- Do not use any load bearing component that is worn beyond 5% of the original dimension.
- Do not use this product if any components are cracked.
- Do not exceed the rated load limit of the unit.
- Do not make alterations or modifications to the unit.
- Do not remove or obscure warning labels.
- Do not use near water.
- Do not lift scale without ensuring shoulder support screws (Figure 2-1 on page 4) are in installed in each corner (under load cell corner covers).
Scale Overview
| Item | Component | Description |
| A | Junction Box Access Plate | Provides access through deck to junction box |
| B | Junction Box | An electronic device that provides the interface between load cells and indicator. Also facilitates adjustments during corner correction |
| C | Load Cell Cover | A removable cover that protects load cell |
| D | Deck | A removable plate upon which weight is placed; the applied load is transmitted to the load cells |
| F | Load Cell | Electronic force measuring device mounted in a corner of the scale and rigidly fixed to the frame |
| G | Frame | A rigid one piece, welded unit that supports the scale system |
| H | Ramp | A built-in structure with 12° angle to aid in loading and loading of objects |
Operating Requirements
| Requirement | Description |
| Electrical Grounding | For systems where the scale is connected to a 115 VAC circuit, the indicator must be directly connected to an earth ground with a ground interface cable of no more than 3 Ω resistance throughout its length |
| Load Cell Excitation | Rated Excitation: 10 VDC Maximum Excitation: 15 VDC |
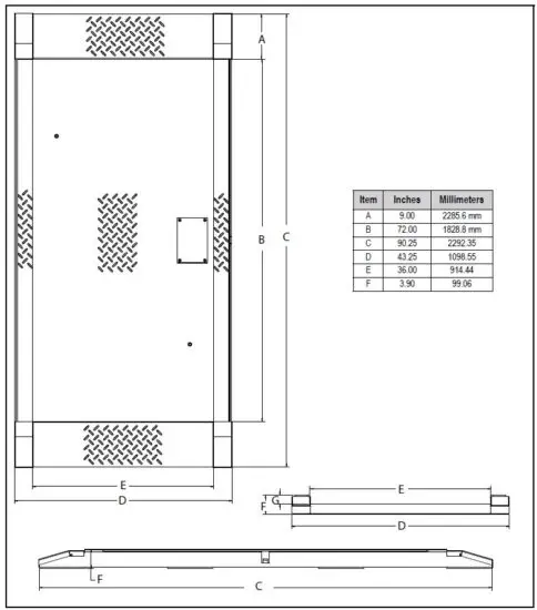
| Grade Level | The supporting surface of the scale must be level within 1/4 in (6.35 mm) of horizontal. Note: Installing shims or adjusting load cups (Section 2.5 on page 9) may aid in leveling the scale |
| Nominal Scale Height | 3.9 in (99.2 mm) |
Dimensions
Installation
There are threaded corner holes (1/2-20 NF) in the deck for removable eye bolts to allow lifting the deck from above with chains. Because of the possibility of damage from forklift tines, the scale should always be lifted from above with chains through the eye bolts.
Standard installation of the RoughDeck LP floor scale consists of the following steps:
Site Preparation
Use the following guidelines for site preparation:
- The scale must not be loaded beyond its capacity, even momentarily. Do not select a site where overweight loads would have to maneuver to avoid crossing the platform.
- Avoid areas where the scale might receive damaging side impacts from wheels or forklift tines, or shock damage from falling objects.
- The interface cable between the scale and the indicator must be protected against crushing, cutting or moisture damage. If necessary, run the cable through conduit or other protection to prevent damage.
For proper operation, the scale must be level within a 1/4 in (6.35 mm). Choose a site where the floor is close to this standard to avoid excessive shimming, or modify the floor at the chosen site to meet this standard.
npacking
Remove all packing material and inspect scale for visible damage caused during shipment. Report any damage to the shipping company and Rice Lake Weighing Systems immediately.
The RoughDeck LP has threaded holes in the deck to allow installation of eye bolts with shoulders for use when lifting the scale with chains or using a spreader bar.
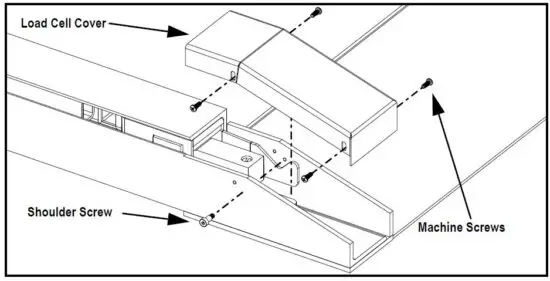
IMPORTANT: Lift the scale only with a properly designed spreader bar as shown in Figure 2-1. Lifting force must be vertical to avoid bending the eye bolts.
WARNING: Lifting should always occur with the top plate facing up and the eye bolts securely attached through the nuts welded to the bottom side of the top plate. In addition, shoulder support screws must be installed securely in each corner (under load cell corner covers) to ensure lower frame is attached to the deck.
Floor Installation
For permanent applications, the scale should be secured to the floor to prevent sideways movement. Each scale frame corner contains an anchor mounting hole under a removable cover. Perform the following to install the scale to the floor:
WARNING: Before proceeding, ensure floor is suitable for anchoring.
- Remove the four Phillips machine screws securing the load cell cover to frame. Retain screws for reuse.
- Pull the cover away from the frame to remove.

- Using the corner 3/4 in (19 mm) anchor hole as template, drill pilot hole into the floor suitable for anchor bolt.
- Bolt the scale frame corner to the floor using an anchor bolt (not included).

- Reinstall load cell cover to frame with four machine screws.
- Repeat steps for remaining corners.
Connecting Indicator Interface Cable
The junction box terminal block (Figure 2-6 on page 7) is used to connect four load cells and the main cable to the indicator. Each scale kit includes 20 ft (6.1 m) of 6-wire cable to connect the junction box to an indicator. The interface cable between the scale and the indicator must be protected against crushing, cutting or moisture damage (Figure 2-7 on page 7). Perform the following to complete junction box connections:
- Remove four hex screws from the junction box access cover. Retain screws for reuse.
- Pull the panel away from the frame to remove.

- Remove six Philips screws from the junction box cover. Retain screws for reuse.
- Pull the cover away from the frame to remove.

- Insert one end of the 20 ft (6.1 m) cable into the junction box through free cord grip.
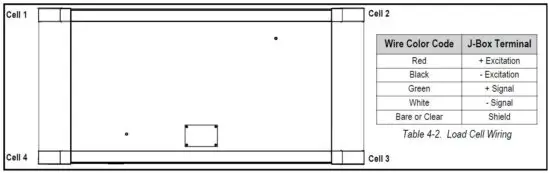
- Connect the wires to the required terminals as indicated in Figure 2-6.
- Pull out excess and tighten strain relief bushing to securely hold the cable.

- While creating a strain relief loop at the scale (to facilitate future lifting of the scale for servicing or cleaning) route the interface cable to the indicator.
- When the interface cable is in position, wire the cable to the indicator. See the indicator manual for correct wiring arrangement.

- When the interface cable is protected and in its final position, check all strain relief fittings for tightness and if necessary trim corners as described in Section 3.1 on page 10.
- Align screw holes in junction box cover with screw holes in junction box and reinstall six Phillips screws.

- Reinstall the access cover with four hex screws.

Scale Leveling
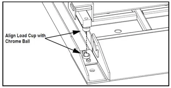
To accommodate minor floor unevenness, turning the load cups under each load cell cover adjusts its vertical position and slightly changes the position of the deck a fraction of an inch. The total load cup adjustment should not exceed 1/4 in.
To adjust the scale perform the following:
- Place a level horizontally on the scale.
- Remove four Phillips machine screws securing each load cell cover to frame.
- Pull each cover away from frame to remove.

- Use slotted screwdriver to change each load cup vertical position until deck is level as possible.

- Reinstall each load cell cover with four Phillips machine screws.
Calibration
Corner Correction
All assembled RoughDeck LP scales are delivered with the junction box corner-trimmed. Corner trimming is only necessary after replacing a load cell. To calibrate the scale, the output from each load cell must be matched by adjusting the signals with potentiometers at the junction box. This process is known as trimming. Perform the following to complete corner correction:
- Remove four hex screws from the junction box access cover. Retain screws for reuse.
- Pull panel away from frame to remove.
- Remove six Philips screws from the junction box cover. Retain screws for reuse.
- Pull junction box cover away from the frame to remove.
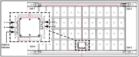
- Identify the load cell terminals corresponding to each corner (for example, CELL 1, CELL 2, CELL 3 and CELL 4)(Figure 3-1.)

- Connect the indicator and calibrate using a test weight. The recommended test weight for RoughDeck LP models is 500 lb (226.80 kg), 25% of 2000 lb (907.20 kg) full scale.
- Ensure there is no weight on the scale and zero the indicator.
- Turn each of the four potentiometers clockwise to increase the reading until there is a clicking sound. This ensures the maximum signal from each load cell (Figure 3-1).
- With all potentiometers at full signal, place the test weight on one corner and record the indicated weight.
- Repeat the process for each of the other three corners.
- Use the corner with the smallest output as a reference. Place the test weight on one of the other three corners and adjust that cell’s potentiometer to match the output of the reference cell.
- Repeat this procedure with the other two high output corners.
- Adjustments are interactive, so adjusting the three higher output corners may affect the reference cell output. Re-zero the indicator and repeat the test until all corners are within ± 1% of the test weight used.
Calibration
See the indicator Technical Manual to determine indicator calibration procedures.
- Load the scale to near capacity two or three times to ensure everything is seated.
- Ensure there is no load on the scale and place the indicator in the calibration mode.
- Perform a zero calibration.
- Place test weights equal to 70% – 80% of the scale capacity on the platform. When using several weights, distribute them evenly around the platform.
- Perform a span calibration.
- Remove the test weights and check the zero reading.
- Repeat the calibration process, if necessary.
Maintenance
Troubleshooting Guide
| Issue | Possible Cause | Solution |
| System does not operate – no display | Power disconnected | Check and reconnect |
| Indicator fuse blown | Replace fuse; check for cause | |
| Interface cable cut or disconnected | Repair | |
| Signal leads incorrectly installed at indicator | Install according to indicator installation manual | |
| Display stays at zero | Indicator faulty | Service indicator |
| Load cell connections faulty | Check cable connections in junction box and at indicator (Section 2.4 on page 6 and Section 4.3 on page 12) | |
| Erratic weights | Vibration near scale | Remove source of vibration or move scale |
| Platform not level to within 1/4 inch | Level scale by adjusting load cups or shimming if necessary (Section 2.5 on page 9) | |
| Load cell or cable water damage | Replace (Section 4.3 on page 12) | |
| Debris under load cells or platform | Clean | |
| Indicator faulty | Use simulator to test indicator for stability; service indicator | |
| Consistently high or low weights | Indicator not properly adjusted to zero | Zero the indicator according to indicator manual |
| Platform binding | Obtain adequate clearance for free platform movement | |
| Indicator not calibrated | Calibrate according to indicator manual and Section 3.2 on page 11 | |
| Load cells faulty | Test and replace load cells if necessary (Section 4.3 on page 12) |
Periodic Maintenance
The space beneath the scale, under the deck, in each corner and around the scale must be periodically cleaned to prevent debris build up.
Load Cell Replacement
Load cells may require replacement for a variety of reasons. Perform the following to install a new load cell:
- Remove four hex screws from junction box access cover. Retain screws for use later.
- Pull panel away from frame to remove.

- Remove six Philips screws from junction box cover. Retain screws for reuse.
- Pull cover away from frame to remove.

- Remove four Phillips machine screws securing load cell cover to frame. Retain screws for reuse.
- Pull cover away from frame to remove.
- Remove hex shoulder screw in corner. Retain screw for reuse.

- Attach eye bolts to (1/2-20) holes in deck corners and lift scale deck with chains.

- Disconnect load cell cable from junction box and pull out of the scale frame channels.
- Detach the two mounting hex bolts from the load cell to remove from deck. Retain bolts for reuse.
- Remove load cup from load cell with slotted screwdriver. Retain load cup for reuse.

- Position the load cell near the corner where it will be installed.
- Route cable from load cell through the channels in the frame and to the junction box according to the wiring diagram in Figure 4-6.

- Check mounting holes for load cell and load cup are free of debris. Use compressed air to blow out holes if necessary.
- Position load cell with alignment arrow pointing up toward the deck and install with two hex bolts.
- Tighten hex bolts to 75 ft-lb (101.70 N-m) with torque wrench.
- Finger tighten load cell cup to load cell then use slotted screwdriver to fully tighten.

- Coil extra cable before it enters the junction box, secure with cable ties, and insert the coils into the channel.
- Insert load cell cable through its cord grip in the junction box.
- Connect each RL32018 load cell to terminals in the junction box according to corner numbering shown in Figure 4-8.

- Lower deck onto scale frame.

- Pull excess cable out of the junction box enclosure and tighten the cord grip dome nuts with a wrench.
- Pull each cable to ensure that they do not slip out of cord grip.
- Reinstall junction box cover with six Phillips screws.

- Reinstall access cover with four hex screws.

- Reinstall hex shoulder support screw into each corner.

- Reinstall each load cell cover with four Phillips machine screws.

- If required, adjust load cups until scale is level as possible (Section 2.5 on page 9).
- Perform correction trimming and calibration (Section 3.1 on page 10 and Section 3.2 on page 11).
Replacement Parts
| Item No. | Part No. | Description | Qty |
| 1 | 49953 | Machine Screw, 8-32NC X 1/2 PPH SST | 16 |
| 2 | 206982 | Corner Load Cell Cover | 4 |
| 3 | 189152 | RL32018 Load Cell, 1000 lb, 20 ft, 3 mv/v, 350 Ohm, NTEP III 5 M Alloy FM WW IP66 | 4 |
| 4 | 70212 | Hex Bolt, 0.50-20 x 1.75 x 1.25-N-SST | 8 |
| 5 | 31911 | Concave Load Cup, SST Hardened | 4 |
| 6 | 18815 | Ball, 5/8 in DIA, Chrome Plated Steel | 4 |
| 7 | 208400 | Shoulder Screw,10-32 Shoulder Diameter, 1/4 in x 3/8 in Shoulder Length, 1/4 Inch Thread Length | 4 |
| 8 | 73428 | EL204 Junction Box | 1 |
| 9 | 14957 | Hex Countersunk Screw, 1/4-20NC x 1/2, Alloy Steel Black Oxide | 4 |
Specifications
- End Load Capacity
100% full scale at 2000 lb (907.20 kg) - Cable Length
20 ft (6.1 m) for connecting junction box to indicator - Threaded Eyebolt
Two holes (1/2-20 NF) - Weighing Surface Dimensions
(W x L x H) 36 in x 72 in x 1.81 in - Scale Dimensions
(W x L x H) 43.25 in x 90.25 in x 3.90 in - Load Cells
Model RL32018 alloy steel, environmentally sealed, IP66 - Warranty (limited)
Two-year limited












































