MONOGRAM ZDP366NTSS 36 Inch Dual-Fuel Professional Range With 6 Burners Instruction Manual

MONOGRAM 36″ DUAL-FUEL PROFESSIONAL RANGE WITH 6 BURNERS ZDP366NTSS (NATURAL GAS)
BURNER PERFORMANCE
Front Left Burner Element 23,000-BTU
Back Left Burner Element 18,000-BTU
Front Middle Burner Element 15,000-BTU
Back Middle Burner Element 15,000-BTU
Front Right Burner Element 23,000-BTU
Back Right Burner Element 18,000-BTU
VERSATILE GAS BURNER CONFIGURATION
Delivering exceptional cooking flexibility, the two 23,000-BTU multi-ring brass burners and dual-stack burners offer a range of heat settings, from gentle simmer to intense flame
3-PIECE GRATES WITH REVERSIBLE WOK FEATURE
Designed to adapt to different cooking styles, these reversible grates are flat on one side and uniquely contoured on the other to perfectly fit round-bottom woks
WIFI MONITORING AND REMOTE CONTROL WITH THE SMARTHQ™ APP
Perfect for a busy lifestyle, built-in WiFi capabilities allow for the remote activation of cooking functions, like preheating the oven, setting timers, activating Chef Connect and more
DYNAMIC OVEN LCD
Functional and stylish, the LCD shows which oven mode is currently in use and other helpful information, like oven temperature, timer and probe temp
CHEF CONNECT
Stay completely connected with Chef Connect, the smart and convenient feature that can effortlessly synchronize a range of kitchen items such as surface lights and even the vent when the burners are on
INDUSTRY EXCLUSIVE—CUSTOM COLOR LED ACCENT LIGHTING
For an elevated level of luxury, use the SmartHQ™ app to customize the accent lighting color and brightness to perfectly match your kitchen décor or dining ambiance
RING-LIT KNOBS
Delivering a modern approach to customization, the SmartHQ™ app allows for the range knobs to be set in any color you choose, indicating when a burner is on and showing the status of the oven
SOLID BRASS BLADES ON PRECISION MACHINED KNOBS
With an unmatched attention to detail, all knobs on the new Monogram Pro ranges and range tops come with solid brass accents
SEAMLESS STAINLESS TOP FRAME
Meticulously crafted from one piece of stainless steel that covers the cooktop and control panel, this seamless and stylish surface is easy to clean and beautiful to look at
SOFT-CLOSE HINGES
Specially designed, soft-close hinges ensure that the oven door always closes smoothly and quietly for a new level of kitchen refinement
3 FULL-EXTENSION, SMOOTH-GLIDE, SELF-CLEAN OVEN RACKS
Self-clean oven racks glide smoothly in and out on stainless steel ball bearings for easy access and are designed to remain in the oven during the self-clean cycle
PRECISION OVEN MODES WITH SMARTHQ APP
Simplify the cooking process with Precision Oven Modes that automatically track progress and make time and temperature adjustments
| SPECIFICATIONS | ||
| Overall Width | 35 7/8″ (91.1 cm) | |
| Overall Height | 35 1/4″ (89.5 cm) | |
| Overall Depth | 28 1/4″ (71.6 cm) | |
| Door Clearance | 48 1/4″ (122.5 cm) | |
| Cutout Width | 36″ (91.4 cm) | |
| Cutout Height | 35 1/4″ – 36 3/4″ (89.5 – 93.3 cm) | |
| Shipping Weight | 462 lbs (209.5 kg) |
ATTENTION ELECTRICIAN:
Electrical requirements: Ranges must be supplied with 208/240V, 60Hz, and connected to an individual, properly grounded branch circuit protected by a circuit breaker or time-delay fuse. Install a 30-amp circuit for 36″ ranges. See installation instructions for further details
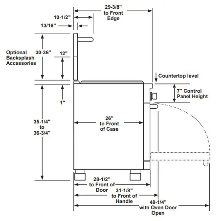
OVERALL DIMENSIONS
SIDE VIEW WITH A BACKSPLASH
DIMENSIONS AND INSTALLATION INFORMATION (IN INCHES)
**As defined in the National Fuel Gas Code (ANSI Z223.1/CSA
B149.1, Current Edition). Clearances from non-combustible materials are not part of the ANSI Z21.1/CSA 1.1 scope and are not certified by CSA. Clearances less than 12” must
be approved by local codes and/or the authority having jurisdiction.
HELPFUL TIPS
All Dual-Fuel Professional Ranges are factory set for natural gas.
NOTE
A propane conversion kit is included with the range. High Altitude kit for operation above 6,000 feet (for Natural and LP gas models), is available at an additional cost. The conversion must be performed by a qualified gas installer at additional cost.
HA NG Service Kit: WB28X39726 HA LP Service Kit: WB28X39727
INSTALLATION INFORMATION
Before installing, consult installation instructions packed with product or online at Monogram.com for current dimensional data. A suitable overhead vent hood is required for models with a grill and is recommended for all other models.
ADVANCE PLANNING
Refer to dimensional drawings for appropriate placement and necessary clearances when planning the installation.
- Working areas adjacent to the range should have 18″ minimum clearance between countertop and cabinet botto
- Clearance between range and side wall or combustible material must be at least 12″ on each
- Installation must conform with local co In the absence of local codes, the range must comply with
WARNING
Installations without a hood require 48″ minimum to combustibles. A custom hood installation with exposed horizontal combustible surfaces must have an Auto-On feature. Refer to hood installation instructions for specific hood clearances.
The surface of the entire back wall above the range and below the hood must be covered with a non-combustible material such as metal, ceramic tile, brick, marble or other stone
DIMENSIONS AND INSTALLATION
INFORMATION (IN INCHES) UTILITY LOCATIONS
Locate gas and electric as shown
12″ min. to combustibles or 0″ to a non-combustible material above the cooking surface
HELPFUL TIPS
GAS PRESSURE REGULATOR
You must use the gas pressure regulator supplied with this rangetop. For proper operations the inlet pressure to the regulator should be as follows: Natural Gas:
Minimum pressure: 6″ of Water Column Maximum pressure: 13″ of Water Column Propane (LP) Gas:
Minimum pressure: 11″ of Water Column Maximum pressure: 13″ of Water Column
See installation instructions for more details
OPTIONAL BACKSPLASH ACCESSORIES
- The range requires a 12″ minimum clearance to a vertical combustible surface at the A backsplash is required for installations with less than 12″ clearance. The following backsplash accessories are available, or a custom, non-combustible backsplash can be used.
- Order one with a 36″-wide range backsplash:
- UX12B36PSS – 12″-height backsplash
- UXADJB36PSS – 30″-36″ adjustable-height backsplash with warming shelf
OPTIONAL STAINLESS STEEL KNOB KITS AVAILABLE
ZXPR36KKTSS – 30″ and 36″ Range ZXPR48KKTSS – 48″ Range


























