THERMOFILM RH180 Slimline Electric Radiant Heater

Product Information
The RH180 Slimline Electric Radiant Heater is designed for both indoor and outdoor use in covered areas such as verandas, patios, garages, and bathrooms. It is a high intensity electric radiant overhead heater with a power rating of 1800W and operates at 230-240 volts with a frequency of 50-60 Hz. It comes with a 1m long 3 core cable of 2.5mm2 with a plug for easy connection to the power source. The heater has a protection rating of IPX4 and can be mounted on the ceiling or wall using the provided brackets. It is designed for use in Australia and New Zealand.
Specifications
- Heater type: High-intensity electric radiant overhead heater
- Power rating: 1800W
- Power connection: 230-240 Volts, 50-60 Hz, Single Phase, 7.5A
- Approval: Australia/NZ
- Mounting height: Minimum 2.1m, Maximum 2.5m
- Mounting options: Ceiling and wall mounting using provided brackets
- Protection rating: IPX4
- Dimensions: 974mm x 170mm x 48.5mm
- Weight: 5kg (6kg packaged)
- Country of assembly: Australia
Installation Requirements
The RH180 Slimline Electric Radiant Heater is ideally mounted on the ceiling directly above the area to be heated. If ceiling mounting is not possible, it can also be mounted on a wall and angled downwards. The recommended mounting height is between 2.3m to 2.4m. The heater should not be mounted higher than 2.5m to ensure optimal heating. Electrical connections/GPO’s should not be located at the back of the heater but outside its physical footprint to minimize heat build-up. The heater can be mounted on an incline, but the electrical connection should be located at the lowest point of the heater.
Product Usage Instructions
- Read all instructions carefully before installation and operation of the heater.
- Ensure that the installation requirements are met, and the heater is mounted properly.
- Connect the heater to a power source using the 1m long 3 core cable provided.
- The heater does not have a room temperature control device, so it is important not to use it in small rooms where people may not be able to leave the room on their own without constant supervision.
- When using the heater, ensure that it is directed towards the area to be heated and not towards the ceiling or any other surfaces.
- Keep the recommended clearances from combustible materials as shown in the installation diagrams.
- Do not use the heater for purposes other than what it is intended for.
- If you encounter any issues with the heater, refer to the warranty terms and conditions for repair or replacement.
Safety
When using the RH180 Slimline Electric Radiant Heater, always follow these safety precautions:
- Do not expose the heater to water or moisture.
- Keep the recommended clearances from combustible materials as shown in the installation diagrams.
- Do not use the heater for purposes other than what it is intended for.
- Ensure that it is directed towards the area to be heated and not towards the ceiling or any other surfaces.
- Do not use the heater in small rooms where people may not be able to leave the room on their own without constant supervision.
Warranty Terms & Conditions
Thermofilm warrants that the RH180 Slimline Electric Radiant Heater is free from defects in materials and workmanship for a period of 12 months from the date of purchase. If products are found to be damaged on arrival, immediately notify the transport company and have them noted on the freight documents. If damage is discovered after unpacking, demand immediate inspection by the transportation company and insist that a record of the damage is made on the freight documentation. The warranty terms and conditions apply for Australia and New Zealand only. For further details, please refer to the warranty terms and conditions section of the user manual.
Electric heater for protected undercover outdoor and indoor areas such as alfresco areas, verandas, patios, garages, bathrooms etc.
Features
- 1800 Watts
- Gentle heat output, slimline design
- Suitable to heat a 3-4m2 area when ceiling mounted
- Anodized alloy construction. Profiled black front panel.
- Nonglowing element
- Supplied with 1m lead & plug and mounting brackets for DIY installation
Specifications
- 1800W, 7.5A
- Dimensions: 1105mm x 165mm x 48mm
- Weight: 6kg
- IPX4 rating
- 12 Month Warranty
| MODEL | RH180 | |
| HEATER TYPE | High-intensity electric radiant overhead heater | |
| POWER | 230-240 Volts Nominal at 50—60 Hertz, Single Phase, 7.5A | |
| CONNECTION | 1m Long 3 Core Cable 2.5mm2, with Plug | |
| APPROVALS | AUSTRALIA/NZ | |
| MOUNTING HEIGHT | MINIMUM RECOMMENDED MAXIMUM | 2.1 m 2.3 m to 2.4 m 2.5 m |
| MOUNTING OPTIONS | Suitable for ceiling and wall mounting using the provided brackets | |
| PROTECTION RATING | IPX4 | |
| DIMENSIONS & WEIGHT | 974mm x 170mm x 48.5mm 5kg (6kg packaged) | |
| COUNTRY OF ASSEMBLY | Australia | |
Installation Requirements
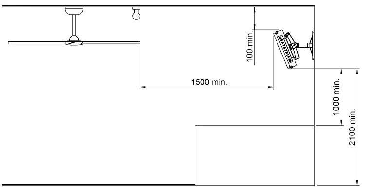
The ideal mounting position for the heater is on the ceiling directly above the area to be heated. If this is not possible, the heater can be mounted on a wall and angled downwards. In this situation, ensure the mounting height is in the range of 2.1m to 2.4m and the table is within 1.0m of the wall. Mounting heights above 2.5m are not recommended. Mounting heights between 2.3m – 2.4m are optimal. Electrical connections/GPO’s should not be located at the back of the heater. They should be located outside the physical footprint of the units to minimize heat build-up behind the units. If the heater is to be mounted on an incline (e.g. vaulted ceiling), ensure the electrical connection is located at the lowest point of the heater

The heating surface must never be directed toward the ceiling
Installation location
the diagrams below provide the minimum recommended clearances in mm
WARNING: This heater is not equipped with a device to control the room temperature. Do not use this heater in small rooms when they are occupied by persons not capable of leaving the room on their own, unless constant supervision is provided
Angled Wall Installation
Ceiling Installation
Angled Ceiling Installation
Table Layout
The approximate number of heaters required to heat a common residential table setting is given below
Safety
- The RH180 has an IP rating of X4. This means it is protected against water splashed from all directions but limited water ingress is permitted.
- The RH180 has undergone extensive testing both in laboratory conditions, in Thermofilm’s manufacturing facility in
- Melbourne and field trials in Australia and overseas. It is this testing that gives the purchaser the confidence of a high quality product.
- Independent laboratory testing has confirmed Thermofilm’s full compliance with Australian and New Zealand standards.
RH180 is Class 1 equipment and must be earthed. - In operation, this heater is VERY HOT— do not touch any part of the heater while it is turned on. Do not touch any part until 30 minutes after it is turned off.
- This appliance is not intended for use by persons (including children) with reduced physical, sensory or intellectual capabilities, or lack of experience and knowledge, unless they have been given supervision or instruction concerning use of the appliance by a person responsible for their safety. Children should be supervised to ensure they do not play with the appliance.
- Do not allow any cables, furnishings, flammable materials or other items come in contact with any surface of the heater.
- If installed in wet areas, the heater switches or controls must be located so that they cannot be touched by persons in the bath or shower.
- The heater needs to be installed as per the installation instructions paying special attention to the minimum clearances.
- The heater needs to be mounted on a rigid bracket or fixing.
- The heater must not be mounted immediately below or in front of a socket outlet.
Warranty Terms & Conditions
The below Warranty Terms and Conditions apply for New Zealand and Australia only.
Thermofilm warrants to the original owner that this product will be free from defects in materials and workmanship for a period of 12 months from the date of purchase in accordance with the following warranty terms and conditions.
Provision of this warranty is subject to:
- The RH180 must be installed in accordance with the Installation Instructions and relevant electrical standards and codes.
- The RH180 must be maintained and cleaned according to the instructions detailed in this manual.
- There is no warranty expressed or implied with regard to capacity requirements. The selection of the unit or units depends entirely upon the system design and capacities as determined by the purchaser.
- The customer has not repaired, opened or altered the product in any unauthorised manner.
- This warranty excludes damage to the product or components arising from circumstances outside the control of Thermofilm, including, but not limited to, where the product is not used for intended purpose; where the product has been rectified in any way; incorrect installation; incorrect power supply; damaged caused during delivery; misapplication, misuse, abuse, vandalism, lack of maintenance or accident.
- Thermofilm’s obligations under this warranty are limited to repair or replacement at Thermofilm’s factory of any components of the product which Thermofilm identifies to its satisfaction to be defective.
- Transportation charges involved in return of the product to the Thermofilm factory (or any other location authorised in writing by Thermofilm) is the sole responsibility of the customer.
- All products are inspected and tested before despatch and are at the risk of the purchaser after the shipment from the Thermofilm factory, if not delivered by Thermofilm to destination.
- No products or components will be supplied in advance of an examination of the faulty product or components by Thermofilm or an authorized representative of Thermofilm.
- Thermofilm does not participate in any site related costs or labour expenses incidental to replacement of parts, repairing, removing, installing, servicing, transportation or handling of parts to complete products, and assumes no liability on parts repaired or replaced without written authorisation. Thermofilm shall not be liable for any default or delay in performance of its warranty obligations caused by any circumstances beyond its control, including, but not limited to, judicial or government restrictions, strikes, fires, floods, abnormal weather conditions, delayed supply ofcomponents.
Should products be determined as damaged on arrival, immediately notify the transport company of the condition and have them noted on the freight documents. If damage is discovered after unpacking, demand immediate inspection by the transportation company and insist that a record of the damage is made on the freight documentation.
The customer warrants using the product in accordance with:
- Any instructions provided by Thermofilm from time to time.
- All government and local regulations, including but not limited to all relevant electrical, environmental laws and regulations governing the installation, storage, use, handling and maintenance of the goods.
- All necessary and appropriate precautions and safety measures relating to the installation, storage, use, handling and maintenance of goods.
Our goods come with guarantees that cannot be excluded under the Australian Consumer Law. You are entitled to a replacement or refund for a major failure and for compensation for any other reasonably foreseeable loss or damage.
You are also entitled to have the goods repaired or replaced if the goods fail to be of acceptable quality and the failure does not amount to a major failure.
All warranty requests for repairs or replacements must be accompanied by a complete “Warranty Claim Form” available from Thermofilm, together with proof of purchase (and where possible, photos of the installation) and the heater returned to the place of purchase.
In the event of a warranty claim, the goods need to be returned to the distributor/retailer for repair/replacement. Contact
Thermofilm Australia Pty Ltd 8 Lakeview Dr Scoresby, Victoria 3179, Australia
Telephone: (03) 9562 3455,
Email: [email protected]




















