
Installation & Owner’s Manual
PRODIRECT™ SERIES Air Handler HAH140*C
Due to updates and constantly improving performance, the information and instructions within this manual are subject to change without notice. Please visit www.mrcool.com/documentation to ensure you have the latest version of this manual.
Version Date: 2-22-21
Thank you for choosing MRCOOL. Please read this manual carefully before installation and keep it for future reference. Copyright © 2021 MRCOOL, LLC
RECOGNIZE THIS SYMBOL AS AN INDICATION OF IMPORTANT SAFETY INFORMATION
WARNING
These instructions are intended as an aid for qualified, licensed service personnel for proper installation, adjustment, and operation of this unit. Read these instructions thoroughly before attempting installation or operation. Failure to follow these instructions may result in improper installation, adjustment, service or maintenance possibly resulting in fire, electrical shock, property damage, personal injury or death.
DO NOT DESTROY THIS MANUAL
Please read carefully and keep in a safe place for future reference by a serviceman.
This document is customer property and needs to remain with this unit. These instructions do not cover all of the different variations between systems, nor does it provide for every possible contingency that can arise during installation. All phases of this installation must comply with NATIONAL, STATE, AND LOCAL CODES. This manual could change without expressed written notice. Visit mrcool.com/documentation for the latest versions.
SAFETY
This is a safety alert symbol. When you see this symbol on labels or in manuals, be alert to the potential for personal injury.
This is an attention alert symbol. When you see this symbol on labels or in manuals, be alert to the potential for personal injury.
WARNING
Disconnect all power to unit before installing or servicing. More than one disconnect switch may be required to de-energize the equipment. Hazardous voltage can cause severe personal injury or death.
WARNING
If removal of the blower assembly is required, all disconnect switches supplying power to the equipment must be de-energized and locked (if not in sight of unit), so the field power wires can be safely removed from the blower assembly. Failure to do so can cause electrical shock, resulting in personal injury or death.
WARNING
Because of possible damage to equipment or personal injury, installation, service, and maintenance should only be performed by trained, qualified service personnel. Consumer service is recommended only for filter cleaning/replacement. Never operate the unit with the access panels removed.
WARNING
These instructions are intended as an aid to qualified, licensed service personnel for proper installation, adjustment, and operation of this unit. Read these instructions thoroughly before attempting installation or operation. Failure to follow these instructions may result in improper installation, adjustment, service or maintenance possibly resulting in fire, electrical shock, property damage, personal injury or death.
WARNING
The unit must be properly and permanently grounded. Failure to do so could result in electrical shock causing personal injury or death.
WARNING
PROPOSITION 65: This appliance contains fiberglass insulation.
All manufacturer products meet current federal OSHA Guidelines for safety. California Proposition 65 warnings are required for certain products, which are not covered by the OSHA standards.
California’s Proposition 65 requires warnings for products sold in California that contain or produce any of the over 900 listed chemicals known to the State of California to cause cancer or birth defects. These include, fiberglass insulation, lead contained in brass, and combustion products from natural gas.
All “new equipment” shipped for sale in California will have labels stating that the product contains and/or produces Proposition 65 chemicals. Although we have not changed our processes, having the same label on all our product facilitates manufacturing and shipping. We cannot always know “when, or if” products will be sold in the California market.
You may receive inquiries from customers about chemicals found in, or produced by, some of our heating and air-conditioning equipment, or found in natural gas used with some of our products. Listed below are those chemicals and substances commonly associated with similar equipment in our industry and other manufacturers.
- Glass Wool (Fiberglass) Insulation
- Carbon Monoxide (CO)
- Formaldehyde
- Benzene
More details are available at the websites for OSHA (Occupational Safety and Health Administration), at www.osha.gov, and the State of California’s OEHHA (Office of Environmental Health Hazard Assessment), at www.oehha.org. Consumer education is important since the chemicals and substances on the list are found in our daily lives. Most consumers are aware that products present safety and health risks, when improperly used, handled and maintained.
WARNING
Make sure the blower motor support is tight, which is secured by 3-motor mount bolts. Then check to see if the wheel is secured to motor shaft before operating unit.

WARNING
The first 3 feet (36 inches) of the supply air plenum and ductwork must be constructed of sheet metal as required by NFPA 90B. The supply air plenum or duct must also have a solid sheet metal bottom directly under the unit with no openings, registers or flexible air ducts located in it. If flexible supply air ducts are used, they can only be located in the vertical walls of the rectangular plenum and must be a minimum of 6 inches from the solid bottom. The metal plenum of the duct may be connected to the combustible floor base, if not, it must be connected to the unit supply duct that is exposed to the supply air opening from the downflow unit. Exposing combustible (non-metal) material to the supply opening of a downflow unit can cause a fire, resulting in property damage, personal injury, or death. Exception warning to downflow: Installations on a concrete floor slab, with supply air plenum and ductwork completely encased, must use at least 2 inches of concrete (See NFPA 90A).
GENERAL
The unit can be positioned for bottom return air in the upflow position, left and right return in the horizontal position, or top return in downflow position. This Air Handler provides the flexibility for installation in any upflow, downflow, or horizontal application. The direct drive motors provide a selection of air volumes to match any application. The 3-Speed motors can be adjusted to provide air flow to meet desired applications. Top and side power control wiring, and accessible screw terminals for control wiring, all combine to make the installation easy, and minimize installation cost. Please contact your local distributor (Refer to Fig.1). The appliance is only intended to supply conditioned air to one room.
UNIT DIMENSIONS
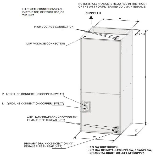
Fig.1 DIMENSIONS
DIMENSIONAL DATA
| MODEL SIZE | Dimensions inch[mm] | |||||||
| UNIT HEIGHT “H” IN [nun] | UNIT WIDTH “W” IN.[mm] | UNIT LENGTH ‘D” IN. [mm] | SUPPLY DUCT “A” IN [mm] | LIQUID LINE/ VAPOR LINE IN | ||||
| 18K | 45-3/4″[1162] | 19-5/8″[500] | 22″[560] | 17-7/8″[454] | 3/8″ / 3/4″ | |||
| 24K | 45-3/4″r11621 | 19-5/815001 | 2215601 | 17-7/81-4541 | 3/8″ / 3/4″ | |||
| 30K | 45-3/4″[1162] | 19-5/8″[500] | 22″[560] | 17-7/8″[454] | 3/8″ / 3/4″ | |||
| 36K | 45-3/4″[1162] | 19-5/8″[500] | 22″[560] | 17-7/8″[454] | 3/8″ / 3/4″ | |||
| 42K | 45-3/4″[1162] | 19-5/8″[500] | 22″[560] | 17-7/8″[454] | 3/8″ / 3/4″ | |||
| 48K | 53-1/8″[1350] | 22″[560] | 24-1/2″[623] | 19-1/2″[496] | 3/8″ / 7/8″ | |||
| 60K | 53-1 /8″r1350-1 | 2215601 | 24-1/216231 | 19-1/21-4961 | 3/8″ / 7/8″ | |||
Table 1
VERTICAL UPFLOW
- Vertical Upflow configuration is the factory set on all models (see Fig 1)
- If a side return air opening is required, field fabricate a return air plenum with an opening large enough to supply unit and strong enough to support unit weight.
- If return air is to be ducted, install duct flush with floor. Use fireproof resilient gasket 1/8 in. to 1/4 in. thick between the ducts, unit, and floor. Set unit on the floor over the opening.
IMPORTANT NOTE
Torque applied to drain connections should not exceed 15 ft. lbs. (Refer to Fig.1 & 2).

Fig.2 DIMENSIONS FOR FRONT CONNECT COIL
VERTICAL DOWNFLOW
Conversion to Vertical Downflow: A vertical upflow unit may be converted to vertical downflow. Remove the door and indoor coil and reinstall 180 degrees from its original position (Refer to Fig. 3).
IMPORTANT: To comply with certification agencies and the National Electric Code for horizontal right application, the circuit breaker(s) on field-installed electric heater kits must be re-installed, per the procedure below, so that the breaker switch “on” position and marking is up and, “off” position and marking is down.
To rotate breaker(s): Rotate one breaker set (circuit) at a time, starting with the one on the right. Loosen both lugs on the load side of the breaker (make sure that wires are identified and are reinstalled into proper breaker). Wires are bundled with wire ties, one bundle going to the right lug and one bundle going to the left lug.
- Using a screwdriver, lift the blue plastic tab with hole away from breaker until breaker releases from mounting opening.
- With breaker held in hand, rotate breaker so that the “on” position is up, and “off” position is down (with unit in planned vertical mounting position). Insert right wire bundle into top right breaker lug, ensuring all strands of all the wires are inserted fully into lug, and no wire insulation is
- Tighten lug as tight as possible while holding circuit breaker. Check wires and make sure each wire is secure and none are loose. Repeat for left wire bundle in left top circuit breaker lug.
- Replace breaker by inserting the breaker mounting tab, opposite of the white pull tab in opening, hook mounting tab over edge in opening.
- Using a screwdriver, pull the blue tab with hole away from breaker while setting that side of breaker into the the opening. When breaker is in place, release tab, which will lock circuit breaker into location in opening.
- Repeat above operation for remaining breaker(s) (if more than one is provided).
- Replace single point wiring jumper bar, if it is used, on line side of breaker and tighten securely.
- Double check wires and lugs to make sure all are secure and tight. Check to make sure unit wiring to circuit breaker load lugs match that shown on the unit wiring diagram.
CAUTION
When using the unit with the electrical heater, the switch on the front of the panel is only used for the electrical heater.
HORIZONTAL
Horizontal right is the default factory configuration for the units.
Conversion to Horizontal: A vertical upflow unit may be converted to horizontal left by removing indoor coil assembly and reinstalling coil as shown for left hand air supply. And reinstall coil in unit as shown for left hand air supply.
- Rotate unit into the downflow position, with the coil compartment on top and the blower compartment on bottom (Refer to Fig. 3).
- Reinstall the indoor coil 180° from the original position. Ensure the retaining channel is fully engaged with the coil rail (Refer to Fig. 3).
- Secondary drain pan kits are recommended when the unit is configured for the horizontal position over a finished ceiling and/or living space.
CAUTION
Horizontal units must be configured for right-hand air supply or left-hand air supply. Horizontal drain pan must be located under indoor coil. Failure to use the drain pan can result in property damage.
Conversion in Horizontal Direction: Horizontal right-hand supply can be changed to horizontal left-hand supply by removing the indoor coil and reinstalling 180 ° from the original position.


| 14SEER AHU | ||||||||
| Market Model | HAH14018 | HAH14024 | HAI-114030 | HAH14036 | HAH14042 | HAH14048 | HAH14060 | |
| Indoor external static pressure | InWC | 0.10 | 0.10 | 0.15 | 0.15 | 0.15 | 0.20 | 0.20 |
| Indoor air flow | CFM(hi/mi/lo) | 723/610/500 | 938/804/738 | 1204/1060/919 | 1376/1235/1161 | 1562/1385/1208 | 1695/1574/1434 | 1695/1574/1434 |
| Indoor external static pressure | InWC | 0.18 | 0.18 | 0.23 | 0.23 | 0.23 | 0.28 | 0.28 |
| Indoor air flow | CFM(hi/mi/lo) | 1364/1229/849 | 1595/1366/1256 | 2046/1955/1562 | 2340/2100/1974 | 2480/2430/2074 | 2882/2676/2437 | 2882/2676/2437 |
Table 2
ELECTRICAL WIRING
Field wiring must comply with the National Electric Code and any applicable local ordinance.
WARNING
Disconnect all power to unit before installing or servicing. More than one disconnect switch may be required to de-energize the equipment. Hazardous voltage can cause severe personal injury or death.
POWER WIRING
It is important that proper electrical power is available for connection to the unit model being installed. Please refer to the unit nameplate, wiring diagram, and electrical data in the installation instructions.
- If required, install a branch circuit disconnect of adequate size, located within sight of, and readily accessible to the unit.
- IMPORTANT: After the Electric Heater is installed, units may be equipped with one, two, or three 30/60 amp. circuit breakers. These breaker(s) protect the internal wiring in the event of a short circuit and also serve as a disconnect. Circuit breakers installed within the unit do not provide overcurrent protection of the supply wiring and therefore may be sized larger than the branch circuit protection.
- Supply circuit power wiring must be 167°F (75°C) minimum copper conductors only. Refer to the Electrical Data In this section for ampacity, wire size, and circuit protector requirement. Supply circuit protective devices may be either fuses or “HACR” type circuit breakers.
- Power wiring may be connected to either the right side, left side, or top. Concentric knockouts are provided for connection of power wiring to unit.
- Power wiring is connected to the power terminal block in unit electric cabinet.
CONTROL WIRING
IMPORTANT: Class 2 low voltage control wiring should not be run in conduit with main power wiring and must be separated from power wiring, unless class 1 wire of proper voltage rating is used.
- Low voltage control wiring should be 18 Awg. color-coded. For lengths longer than 100 ft., 16 Awg. wire should be used.
- See wiring diagrams attached to indoor and outdoor sections to be connected.
- Make sure, after installation, separation of control wiring and power wiring has been maintained.
GROUNDING
WARNING
The unit must be properly and permanently grounded. Failure to do so can result In electrical shock causing personal injury or death.
- Grounding may be accomplished by grounding metal conduit when installed in accordance with electrical codes to the unit cabinet.
- Grounding may also be accomplished by attaching ground wire(s) to ground lug(s) provided in the unit wiring compartment.
- Ground lug(s) are located close to wire entrance on left side of the unit (upflow). Lug(s) may be moved to marked locations near wire entrance on right side of the unit (upflow). If alternate location is more convenient.
- Use of multiple supply circuits require grounding of each circuit to lug(s) provided in unit.
ELECTRICAL DATA
| MODEL | VOLTAGE | HERTS | HP | RPM | SPEEDS | CIRCUIT AMPS. | MAXIMUM CIRCUIT PROTECTOR |
| 18K 208/230 | 60 | 1/7 | 470 | 3 | 0.73 | 5(A) | |
| 24K 208/230 | 60 | 1/6 | 530 | 3 | 0.8 | 5(A) | |
| 30K 208/230 | 60 | 1/4 | 640 | 3 | 1. | 5(A) | |
| 36K 208/230 | 60 | 2/7 | 730 | 3 | 2. | 5(A) | |
| 42K 208/230 | 60 | 3/8 | 840 | 3 | 2. | 5(A) | |
| 48K 208/230 | 60 | 2/5 | 820 | 3 | 2. | 5(A) | |
| 60K 208/230 | 60 | 2/5 | 920 | 3 | 3. | 15(A) | |
Table 3
Applicable to 13-14SEER
The air distribution system has the greatest effect on airflow. The duct system is totally controlled by the contractor. For this reason, the contractor should use only industry-recognized procedures. Heat pump systems require a specified airflow. Each ton of cooling requires between 350 and 450 cubic feet of air per minute (CFM), or 400 CFM nominally. Duct design and construction should be carefully done. System performance can be lowered dramatically through bad planning or workmanship. Air supply diffusers must be selected and located carefully. They must be sized and positioned to deliver treated air along the perimeter of the space. If they are too small for their intended airflow, they become noisy. If they are not located properly, they can create drafts. Return air grilles must be properly sized to carry air back to the blower. If they are too small, they also cause noise. The installers should balance the air distribution system to ensure proper, quiet airflow to all rooms in the home. This ensures a comfortable living space. An air velocity meter or airflow hood can give a reading of system CFM.
REFRIGERANT CONNECTIONS
Keep the coil connections sealed until refrigerant connections are made. See the Installation Instructions for the outdoor unit for details on line sizing, tubing installation, and charging information. Coil is shipped with “No charge”. Evacuate the system before charging with refrigerant. Install refrigerant tubing so that it does not block service access to the front of the unit. Nitrogen should flow through the refrigerant lines while brazing. Use a brazing shield to protect the cabinet’s paint, and a wet rag to protect the rubber grommet from being damaged by torch flames. After the refrigerant connections are made, seal the gap around the connections with a pressure sensitive gasket.
EXPANSION VALVE + PISTON INFORMATION

| Thermal Expansion Valve (14 SEER Heat Pump) Unit:mat | |||||||||||||
| NO. | BOM | Model | A | B | C | D | E | F | G | H | L1 | L2 | Remark |
| 1 | 801600400099 | 18/24/30/36/42K | 13. | 10. | 24 | 33. | 42 | 42 | 18 | 27 | 800 | 800 | Emerson NCE3ZAA ODF |
| 2 | 8016004000101 | 48/60K | 13. | 10. | 24 | 33. | 42 | 42 | 18 | 27 | 800 | 800 | Emerson NCE5ZAA ODE |
A: Outlet inner diameter
B: Inlet diameter
C: Length from outlet center to bottom of valve body
D: Length from inlet center to bottom of valve body
E: Length from outlet center to valve body center
F: Length from inlet center to valve body center
G: Length between the center of the adjustable screw and the back of the valve body
H: Length between the center of valve body and bottom of valve body
L1:Balance tube length
L2:Warm wire length

| Piston (14 SEER Heat Pump) | |||
| Model | Piston | BOM | |
| 18K | 36 | 801600300100 | One Way Valve |
| 24K | 45 | 801600300085 | One Way Valve |
| 30K | 55 | 801600300102 | One Way Valve |
| 36K | 45 | 801600300085 | One Way Valve |
| 42K | 55 | 801600300102 | One Way Valve |
| 48K | 65 | 801600300088 | One Way Valve |
| 60K | 75 | 801600300089 | One Way Valve |
CONDENSATE DRAIN TUBING
Consult local codes for specific requirements.

IMPORTANT
- When making drain fitting connections to the drain pan, use a thin layer of Teflon paste, silicone, or Teflon tape and install. Hand-tighten the fittings.
- When making drain fitting connections to drain pan, do not overtighten. Over tightening fittings can split pipe connections on the drain pan.
(Continued on next page)
- Install drain lines so they do not block service access to front of the unit. A minimum clearance of 2 feet (24 inches) is required for filter, coil or blower removal, and service access.
- Make sure unit is level or pitched slightly toward primary drain connection so that water will drain completely from the pan (Refer to Fig. 5)
- Use a drain line sized properly to match size of condensate drain pan.
- All drain lines must be pitched downward and away from the unit with a minimum of 1/8 in. per foot of line to ensure proper drainage.
- Do not connect condensate drain line to a closed or open sewer pipe. Run condensate to an open drain or run line to a safe outdoor area.
- The drain line should be insulated where necessary to prevent sweating and damage from condensate forming on the outside surface of the line.
- Make provisions for disconnecting and cleaning of the primary drain line should it become necessary. Install a 3 inch trap in the primary drain line as close to the unit as possible. Make sure that the top of the trap is below the connection to the drain pan to allow complete drainage of pan (Refer to Fig. 5).
- Auxiliary drain line should be run to a place where it will be noticeable if it begins to drain. Homeowner should be warned that a problem exists if water should begin running from the auxiliary drain line.
- Plug the unused drain connection with the plugs provided in the parts bag, using a thin layer of teflon paste, silicone, or teflon tape to form a water tight seal.
- Test condensate drain pan and drain line after installation is complete. Pour water into drain pan, enough to fill drain trap and line. Check to make sure drain pan is draining completely, no leaks are found in drain line fittings, and water is draining from the termination of the primary drain line.
AIR FILTER (NOT FACTORY-INSTALLED)
- An external filter, or other means of filtration, is required. Units should be sized for a maximum of 300
feet/min. air velocity, or what is recommended for the filter type installed.
Filter application and placement are critical to airflow, which may affect the heating and cooling system performance. Reduced airflow can shorten the life of the system’s major components, such as motor, limits, elements, heat relays, evaporator coil, or compressor. Consequently, we recommend that the return air duct system have only one filter location. For systems with a return air filter grill or multiple filter grills, they can have a filter installed at each of the return air openings.
If adding high efficiency filters or electronic air filtration systems, it is very important that the air flow is not reduced. If air flow is reduced, the overall performance and efficiency of the unit will be reduced. It is strongly recommended that a profesional installation technician is contacted to ensure these filtration systems are installed correctly.
IMPORTANT: DO NOT DOUBLE FILTER THE RETURN AIR DUCT SYSTEM. DO NOT FILTER THE SUPPLY AIR DUCT SYSTEM. THIS WILL CHANGE THE PERFORMANCE OF THE UNIT AND REDUCE AIRFLOW.
WARNING
Do not operate the system without filters. A portion of the dust entrained in the air may temporarily lodge in the duct runs and at the supply registers. Any circulated dust particles could be heated and charred by contact with the air handler elements. This residue could soil ceilings, walls, drapes, carpets, and other articles in the house. Soot damage may occur with filters in place, when certain types of candles, oil lamps, or standing pilots are burned.
FILTER INSTALLATION DIMENSIONS

Fig.6 EXTERNAL FILTER BASE
DIMENSIONAL DATA
| MODEL | FILTER SIZE IN[mm] |
| 18/24/30/36/42 | 18×20[457x 508] |
| 48/60 | 20×22[508x 559] |
Table 4
AIR FILTER REMOVAL
- Tear down the two bolts marked A and B, remove the cover for air filter (Refer to Fig. 6).
- Hold the edge of the air filter and extract out .
- Clean the air filter. A vacuum cleaner or pure water may be used to clean the air filter. If the dust
accumulation is too heavy, use soft a brush and mild detergent to clean it and allow it to dry out in cool place.

WIRING DIAGRAMS
Thermostat Wiring – 6 Conductor | 18 Guage | Low Voltage
Control Wiring for A/C Systems only
Control wiring for A/C Systems.
Control Wiring for Heat Pump Systems

Control wiring for H/P Systems.
High Voltage Wiring
- To avoid the electrical shock, please connect the air conditioner with the ground lug. The main power plug in the air conditioner has been joined with the ground wiring, please do not change it freely.
- Use a dedicated circuit.
- Do not pull the power wiring hard.
- When connecting the air conditioner with the ground, observe the local codes.
- If necessary, use the power fuse, circuit breaker, or the corresponding scale ampere.
Applicable to 18k, 24k, 30k, 36k, 42k of 13-14 SEER
Applicable to 48K of 13-14 SEER
Applicable to 60K of 13-14 SEER
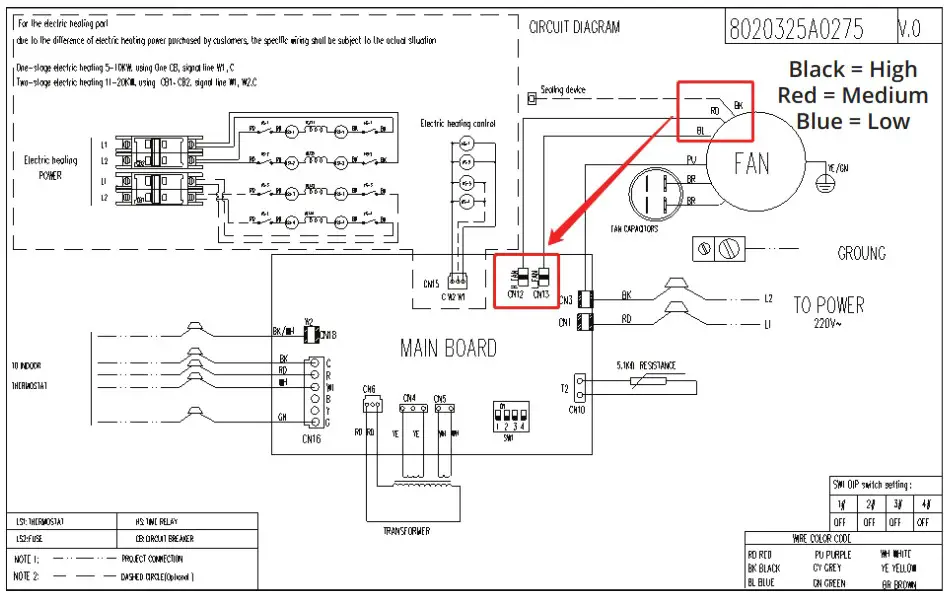
Wiring Diagram to Adjust Blower Volume Speed
To adjust blower speed, use the diagram below to wire according to the desired speed: CN12 is the air volume output port. The air volume is adjusted by connecting the wires with different speeds for the motor to the port CN12. Regardless of the high, medium or low wind speeds, it is only connected to CN12. Do not adjust CN13.

ELECTRIC WIRING GAUGE
NOTE: The cross-section areas of wires or lines should not be less than the corresponding line measurements listed in the table below; Besides, if the power wires from the unit are quite long, please choose the windings with larger cross-section area to guarantee the normal power supply.
Table 5
| Model (cooling only type ) | 18K | 24K | 30K | 36K | 42K | 48K | 60K | ||
| Line Gauge | Indoor Unit Power Line | Line Quantity | 3 | 3 | 3 | 3 | 3 | 3 | 3 |
| Line Diameter(AWG) | 16 | 16 | 16 | 16 | 16 | 16 | 16 | ||
| Outdoor Unit Power Line | Line Quantity | 3 | 3 | 3 | 3 | 3 | 3 | 3 | |
| Line Diameter(AWG) | 14 | 14 | 12 | 12 | 10 | 10 | 10 | ||
| Outdoor- Indoor Signal Line | Line Quantity | NI | 2 | 2 | 2 | 2 | 2 | 2 | |
| Line Diameter(AWG) | 18 | 18 | 18 | 18 | 18 | 18 | 18 | ||
| Thermostat Signal Line | Line Quantity | 4 | 4 | 4 | 4 | 4 | 4 | 4 | |
| Line Diameter(AWG) | 18 | 18 | 18 | 18 | 18 | 18 | 18 | ||
Table 6
| Model ( cooling & heating type ) | 18K | 24K | 30K | 36K | 42K | 48K | 60K | ||
| Line Gauge | Indoor Unit Power Line | Line Quantity | 3 | 3 | 3 | 3 | 3 | 3 | 3 |
| Line Diameter(AWG) | 16 | 16 | 16 | 16 | 16 | 16 | 16 | ||
| Outdoor Unit Power Line | Line Quantity | 3 | 3 | 3 | 3 | 3 | 3 | 3 | |
| Line Diameter(AWG) | 14 | 14 | 12 | 12 | 10 | 10 | 10 | ||
| Outdoor- Indoor Signal Line | Line Quantity | 2 | 2 | 2 | 2 | 2 | 2 | 2 | |
| Line Diameter(AWG) | 18 | 18 | 18 | 18 | 18 | 18 | 18 | ||
| Thermostat Signal Line | Line Quantity | 6 | 6 | 6 | 6 | 6 | 6 | 6 | |
| Line Diameter(AWG) | 18 | 18 | 18 | 18 | 18 | 18 | 18 | ||
ELECTRIC HEAT KIT INSTALLATION (OPTIONAL)
CAUTION
- Ensure that all power supply is disconnected prior to installing the heat kit.
- A means of strain relief and conductor protection must be provided at the supply wire entrance into cabinet.
- Only use copper conductors.
- Installation must follow National Electric Code (NEC) and other applicable codes.
- If this appliance is installed in an enclosed area such as a garage or utility room with any carbon monoxide-producing appliance, ensure the area is properly ventilated to the outside.
- A filter dryer is recommended for installation based on nominals tonnage. One should be included and zip-tied to the condenser.
- Use 0.96 as approximate SCFM correction factor for wet coil.

- Refer to the Table below for the appropriate optional heat kit.
- Check for any physical damage; do not install a damaged heat kit.
- Remove the upper side panel from air handler.
- Remove the air duct sealing plate from the air handler.
- Knock out the hole on the front panel. Air Duct Sealing Plate
- Install the heating bracket by sliding it into the air duct hole that you removed the plate from in the previous steps. Align the 4 prongs at the end of the heat kit with the 4 corresponding holes on the opposite side of the air duct hole.
- Install the electrical board bracket and screw it into place. Then, position and install and fasten the electrical board on the bracket which also screws into place.
NOTE: When installing the electrical boards, make sure the indoor unit power cable does not snag or come in contact with any of the sharp edges of the sheet metal. - Insert the signal wire into the electronic control main board on the air handler
- Reinstall the upper side panel to the air handler and check operation.
NOTE: For more detailed information on how to install the electric heat kit, please refer to the instruction manual provided with the kit. Compatible Heat Kit
Compatible Heat Kits
| Kit #. | Description | Unit Capacity Compatibility |
| PHK05H | 5kW heat strip | 18K/24K/30K/36K/42K/48K/60K |
| PHK07H | 7.5kW heat strip | 18K/24K/30K/36K/42K/48K/60K |
| PHK10H | 10kW heat strip | 24K/30K/36K/42K/48K/60K |
| PHK15H | 15kW heat strip | 36K/42K/48K/60K |
| PHK20H | 20kW heat strip | 48K/60K |
IMPORTANT
You must use a compatible heat kit listed in the above chart. Using an incorrect size could cause the unit to overheat and/or cause equipment damage.
TROUBLESHOOTING INDOOR UNIT
| Display mode | Status description |
| Green light always on | No system alarm and error, normal standby |
| Red light always on | Evaporator temperature sensor (T2) failure |
| Green light always on & | Evaporator high and low |
| yellow light flashing | temperature protection |
| Green light flashing | system is in normal operating status |
T2 Evaporator temperature sensor failure

Evaporator high temperature protection (for heating mode)

Evaporator low temperature protection (for cooling mode)


PRODIRECT™ Series
The design and specifications of this product and/or manual are subject to change without prior notice. Visit www.mrcool.com for the latest documentation.


















