IKEA AVKYLD, HUTTRA, FRYSA Fridge Freezer
Product Information
The product is a cooling and freezing appliance with the brand name “AVKYLD”. It is designed for household and similar applications, including staff kitchen areas in shops, offices, and other working environments, farm houses, hotels, motels, bed & breakfast, and other residential environments. The appliance is not intended for professional use and should not be used outdoors. The appliance uses a specific bulb designed for domestic appliances, which is not suitable for general room lighting. It operates within specified ambient temperature ranges according to the climatic class indicated on the rating plate. The refrigerant circuit of the appliance does not contain CFCs and uses R600a (HC) as the refrigerant.
Important safety warnings include not operating the appliance with an external switching device or separate remote-controlled system. It is essential to ensure the ventilation openings in the appliance enclosure or built-in structure are clear of obstruction.Mechanical, electric, or chemical means other than those recommended by the manufacturer should not be used to speed up the defrost process. Only use electrical devices authorized by the manufacturer inside the appliance compartments. For appliances with ice makers and/or water dispensers, it is important to connect them to a water supply that delivers potable water only, with mains water pressure between 0.17 and 0.81 MPa (1.7 and 8.1 bar). Explosive substances, gasoline, or other flammable materials should not be stored or placed near the appliance. The contents of ice packs should not be swallowed, and ice cubes or lollies taken out of the freezer should not be consumed immediately to avoid cold burns.
For models that use an air filter, the filter must always be in position when the appliance is in function.
Product Usage Instructions
- Before using the appliance, read and familiarize yourself with the safety instructions provided in the user manual.
- Ensure that the appliance is placed in a suitable location indoors and away from direct sunlight or heat sources.
- Check the ambient temperature range specified on the rating plate and ensure the appliance operates within this range.
- Do not use external switching devices or separate remote-controlled systems to operate the appliance.
- Keep the ventilation openings of the appliance clear of any obstructions to ensure proper airflow.
- Avoid damaging the refrigerant circuit pipes of the appliance.
- Use only recommended methods by the manufacturer to defrost the appliance; do not use mechanical, electric, or chemical means to speed up the process.
- Only use electrical devices authorized by the manufacturer inside the appliance compartments.
- If the appliance has ice makers and/or water dispensers, connect them to a potable water supply with the specified water pressure range.
- Do not store explosive substances, gasoline, or other flammable materials near the appliance.
- Do not swallow the contents of ice packs or consume ice cubes/lollies immediately after taking them out of the freezer to avoid cold burns.
- For models with air filters, ensure that the filter is always in position when the appliance is in function.
Safety Information
Before using the appliance, read these safety instructions. Keep them nearby for future reference. These instructions and the appliance itself provide important safety warnings, to be observed at all times. The manufacturer declines any liability for failure to observe these safety instructions, for inappropriate use of the appliance or incorrect setting of controls. Very young children (0-3 years) should be kept away from the appliance. Young children (3-8 years) should be kept away from the appliance unless continuously supervised. Children from 8 years old and above and persons with reduced physical, sensory or mental capabilities or lack of experience and knowledge can use this appliance only if they are supervised or have been given instructions on safe use and understand the hazards involved. Children must not play with the appliance. Cleaning and user maintenance must not be carried out by children without supervision. Children aged from 3 to 8 years are allowed to load and unload refrigerating appliances.
PERMITTED USE
- CAUTION: The appliance is not intended to be operated by means of an external switching device, such as a timer, or separate remote controlled system.
- This appliance is intended to be used in household and similar applications such as: staff kitchen areas in shops, offices and other working environments; farm houses; by clients in hotels, motels, bed & breakfast and other residential environments.
- This appliance is not for professional use. Do not use the appliance outdoors.
- The bulb used inside the appliance is specifically designed for domestic appliances and is not suitable for general room lighting within the home (EC Regulation 244/2009).
- The appliance is designed for operation in places where the ambient temperature comes within the following ranges, according to the climatic class given on the rating plate.
- The appliance may not work properly if it is left for a long time at a temperature outside the specified range.
- Climatic class ambient temperatures:
- SN: From 10°C to 32°C;
- N: From 16°C to 32°C
- ST: From 16°C to 38°C;
- T: From 16°C to 43°C
- This appliance does not contain CFCs. The refrigerant circuit contains R600a (HC). Appliances with Isobutane (R600a): isobutane is a natural gas without environmental impact, but is flammable. Therefore, make sure the refrigerant circuit pipes are not damaged, especially when emptying the refrigerant circuit.
- WARNING: Do not damage the appliance refrigerant circuit pipes.
- WARNING: Keep ventilation openings, in the appliance enclosure or in the built-in structure, clear of obstruction.
- WARNING: Do not use mechanical, electric or chemical means other than those recommended by the Manufacturer to speed up the defrost process.
- WARNING: Do not use or place electrical devices inside the appliance compartments if they are not of the type expressly authorised by the Manufacturer.
- WARNING: Ice makers and/or water dispensers not directly connected to the water supply must be filled with potable water only.
- WARNING: Automatic ice-makers and/or water dispensers must be connected to a water supply that delivers potable water only, with mains water pressure between 0,17 and 0,81 MPa (1,7 and 8,1 bar).
- Do not store explosive substances such as aerosol cans and do not place or use gasoline or other flammable materials in or near the appliance.
- Do not swallow the contents (non-toxic) of the ice packs (provided with some models). Do not eat ice cubes or ice lollies immediately after taking them out of the freezer since they may cause cold burns.
- For products designed to use an air filter inside an accessible fan cover, the filter must always be in position when the appliance is in function.
- Do not store glass containers with liquids in the freezer compartment since they may break. Do not obstruct the fan (if included) with food items.
- After placing the food check that the freezer door closes properly.
- Damaged gaskets must be replaced as soon as possible.
- Use the refrigerator compartment only for storing fresh food and the freezer compartment only for storing frozen food, freezing fresh food and making ice cubes.
- Avoid storing unwrapped food in direct contact with internal surfaces of the refrigerator or freezer compartments. Appliances could have special compartments (Fresh Food Compartment, Zero Degree Box,…).
- Unless differently specified in the specific booklet of product, they can be removed, maintaining equivalent performances.
- C-Pentane is used as blowing agent in the insulation foam and it is a flammable gas.
- The most appropriate compartments
of the appliance where specific types of food are to be stored, taking into account different temperature distribution in different compartments in the appliance, are as follows:- Refrigerator compartment:
- The upper area of the refrigerator compartment & door – temperature zone: Store tropical fruit, cans, drinks, eggs, sauces, pickles, butter, jam
- The middle area of the refrigerator compartment – cool zone: Store cheese, milk, dairy food, deli food, yoghurt
- The lower area of the refrigerator compartment – coldest zone: Store cold cuts, desserts, meat and fish, cheesecake, fresh pasta, sour cream, pesto/salsa, home-cooked food, pastry cream, pudding and cream cheese
- Fruit & vegetable drawer at the bottom of the refrigerator compartment: Store vegetables and fruits (excluding tropical fruits)
- Chiller compartment: Only store meat and fish in the coldest drawer To avoid food contamination, please observe the following:
- Opening the door for long periods can cause a significant increase of the temperature in the compartments of the appliance.
- Regularly clean surfaces that may come into contact with food and accessible drainage systems.
- Clean water tanks if they have not been used for 48 h; flush the water system connected to a water supply if water has not been drawn for 5 days.
- Store raw meat and fish in suitable containers in the refrigerator, so that it does not come into contact with or drip onto other food.
- Two-star frozen food compartments are suitable for storing pre-frozen food, storing or making ice cream and ice cubes.
- Do not freeze fresh food in one, two or three-star compartments.
- If the refrigerating appliance is left empty for long periods, switch off, defrost, clean, dry, and leave the door open to prevent mould developing inside the appliance.
- Refrigerator compartment:
INSTALLATION
The appliance must be handled and installed by two or more persons – risk of injury. Use protective gloves to unpack and install – risk of cuts. Installation, including water supply (if any), electrical connections and repairs must be carried out by a qualified technician. Do not repair or replace any part of the appliance unless specifically stated in the user manual. Keep children away from the installation site. After unpacking the appliance, make sure that it has not been damaged during transport. In the event of problems, contact the dealer or your nearest Aftersales Service. Once installed, packaging waste (plastic, styrofoam parts etc.) must be stored out of reach of children – risk of suffocation. The appliance must be disconnected from the power supply before any installation operation – risk of electric shock. During installation, make sure the appliance does not damage the power cable – risk of fire or electric shock. Only activate the appliance when the installation has been completed.\ Be careful not to damage the floors (e.g. parquet) when moving the appliance. Install the appliance on a floor or support strong enough to take its weight and in a place suitable for its size and use. Make sure the appliance is not near a heat source and that the four feet are stable and resting on the floor, adjusting them as required, and check that the appliance is perfectly level using a spirit level. Wait at least two hours before switching the appliance on, to ensure that the refrigerant circuit is fully efficient.
- WARNING: When positioning the appliance, ensure the supply cord is not trapped or damaged.
- WARNING: To avoid a hazard due to instability, positioning or fixing of the appliance must be done in accordance with the manufacturer instructions. It’s forbidden to place the refrigerator in such way that the metal hose of gas stove, metal gas or water pipes, or electrical wires are in contact with the refrigerator back wall (condenser coil). All dimensions and spacing needed for installation of the appliance are in the Installation Instruction booklet.
ELECTRICAL WARNINGS
- It must be possible to disconnect the appliance from the power supply by unplugging it if plug is accessible, or by a multi-pole switch installed upstream of the socket in accordance with the wiring rules and the appliance must be earthed in conformity with national electrical safety standards.
- Do not use extension leads, multiple sockets or adapters. The electrical components must not be accessible to the user after installation. Do not use the appliance when you are wet or barefoot. Do not operate this appliance if it has a damaged power cable or plug, if it is not working properly, or if it has been damaged or dropped.
- If the supply cord is damaged, it must be replaced with an identical one by the manufacturer, its service agent or similarly qualified persons in order to avoid a hazard – risk of electric shock.
- WARNING: Do not locate multiple portable socket-outlets or portable power supplies at the rear of the appliance.
CLEANING AND MAINTENANCE
- WARNING: Ensure that the appliance is switched off and disconnected from the power supply before performing any maintenance operation. To avoid risk of personal injury use protective gloves (risk of laceration) and safety shoes (risk of contusion); be sure to handle by two persons (reduce load); never use steam cleaning equipment (risk of electric shock).
- Non-professional repairs not authorized by the manufacturer could result in a risk to health and safety, for which the manufacturer cannot be held liable. Any defect or damage caused from non-professional repairs or maintenance will not be covered by the guarantee, the terms of which are outlined in the document delivered with the unit.
- Do not use abrasive or harsh cleaners such as window sprays, scouring cleansers, flammable fluids, cleaning waxes, concentrated detergents, bleaches or cleansers containing petroleum products on plastic parts, interior and door liners or gaskets. Do not use paper towels, scouring pads, or other harsh cleaning tools.
Environmental concerns
Disposal of packaging materials
The packaging material is 100% recyclable and is marked with the recycle symbol . The various parts of the packaging must therefore be disposed of responsibility and in full compliance with local authority regulations governing waste disposal.
Disposal of household appliances
This appliance is manufactured with recyclable or reusable materials. Dispose of it in accordance with local waste disposal regulations. For further information on the treatment, recovery and recycling of household electrical appliances, contact your local authority, the collection service for household waste or the store where you purchased the appliance. This appliance is marked in compliance with European Directive 2012/19/EU, Waste Electrical and Electronic Equipment (WEEE). By ensuring this product is disposed of correctly, you will help prevent negative consequences for the environment and human health. The symbol on the product or on the accompanying documentation indicates that it should not be treated as domestic waste but must be taken to an appropriate collection center for the recycling of electrical and electronic equipment.
Energy saving tips
To guarantee adequate ventilation follow installation instructions. Insufficient ventilation at the back of the product increases energy consumption and decreases cooling efficiency. Frequent door opening might cause an increase in Energy Consumption. The internal temperature of the appliance and the Energy Consumption may be affected also by the ambient temperature, as well as location of the appliance. Temperature setting should take into consideration these factors. Reduce door opening to minimum. When thawing frozen food, place it in the refrigerator. The low temperature of the frozen products cools the food in the refrigerator. Allow warm food and drinks to cool down before placing in the appliance. Positioning of the shelves in the refrigerator has no impact on the efficient usage of energy. Food should be placed on the shelves in such way to ensure proper air circulation (food should not touch each other and distance between food and rear wall should be kept). You can increase storage capacity of frozen food by removing baskets and, if present, Stop Frost shelf. Do not worry about noises coming from the compressor which are normal operation noises.
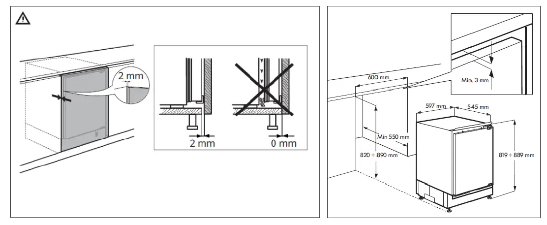
DIMENSION
HUTRA
AVKYLD
FRYSA
Manufacturer
Ikea of Sweden AB – SE – 343 81 Älmhult, Sweden
IKEA GUARANTEE
- How long is the IKEA guarantee valid?
- This guarantee is valid for five years from the original date of purchase of your appliance at IKEA. The original sales receipt, is required as proof of purchase. If service work is carried out under guarantee, this will not extend the guarantee period for the appliance.
- Who will execute the service?
- IKEA service provider will provide the service through its own service operations or authorized service partner network.
- What does this guarantee cover?
- The guarantee covers faults of the appliance, which have been caused by faulty construction or material faults from the date of purchase from IKEA. This guarantee applies to domestic use only.
- The exceptions are specified under the headline “What is not covered under this guarantee?”
- Within the guarantee period, the costs to remedy the fault e.g. repairs, parts, labour and travel will be covered, provided that the appliance is accessible for repair without special expenditure. On these conditions the EU guidelines (Nr. 99/44/EG) and the respective local regulations are applicable. Replaced parts become the property of IKEA.
- What will IKEA do to correct the problem?
- IKEA appointed Service Provider will examine the product and decide, at its sole discretion, if it is covered under this guarantee. If considered covered, IKEA Service Provider or its authorized service partner through its own service operations, will then, at its sole discretion, either repair the defective product or replace it with the same or a comparable product.
- What is not covered under this guarantee?
- Normal wear and tear.
- Deliberate or negligent damage, damage caused by failure to observe operating instructions, incorrect installation or by connection to the wrong voltage, damage caused by chemical or electrochemical reaction, rust, corrosion or water damage including but not limited to damage caused by excessive lime in the water supply, damage caused by abnormal environmental conditions.
- Consumable parts including batteries and lamps.
- Non-functional and decorative parts which do not affect normal use of the appliance, including any scratches and possible color differences.
- Accidental damage caused by foreign objects or substances and cleaning or unblocking of filters, drainage systems or soap drawers.
- Damage to the following parts: ceramic glass, accessories, crockery and cutlery baskets, feed and drainage pipes, seals, lamps and lamp covers, screens, knobs, casings and parts of casings. Unless such damages can be proved to have been caused by production faults.
- Cases where no fault could be found during a technician’s visit.
- Repairs not carried out by our appointed service providers and/or an authorized service contractual partner or where non-original parts have been used.
- Repairs caused by installation which is faulty or not according to specification.
- The use of the appliance in a non-domestic environment i.e. professional use.
- Transportation damages. If a customer transports the product to his home or another address, IKEA is not liable for any damage that may occur during transport. However, if IKEA delivers the product to the customer’s delivery address, then damage to the product that occurs during this delivery will be covered by IKEA.
- Cost for carrying out the initial installation of the IKEA appliance.
- However, if an IKEA appointed Service Provider or its authorized service partner repairs or replaces the appliance under the terms of this guarantee, the appointed Service Provider or its authorized service partner will reinstall the repaired appliance or install the replacement, if necessary.
- This does not apply within Ireland, customer should contact the local IKEA dedicated after sales line or the appointed Service Provider for further information.
(just for GB) These restrictions do not apply to fault-free work carried out by a qualified specialist using our original parts in order to adapt the appliance to the technical safety specifications of another EU country.
- How country law applies
- The IKEA guarantee gives you specific legal rights, which cover or exceed all the local legal demands. However these conditions do not limit in any way consumer rights described in the local legislation.
- Area of validity
- For appliances which are purchased in one EU country and taken to another EU country, the services will be provided in the framework of the guarantee conditions normal in the new country.
- An obligation to carry out services in the framework of the guarantee exists only if the appliance complies and is installed in accordance with:
- the technical specifications of the country in which the guarantee claim is made;
- the Assembly Instructions and User Manual Safety Information.
- The dedicated AFTER SALES for IKEA appliances
Please don’t hesitate to contact IKEA appointed Authorized Service Centre to:- make a service request under this guarantee;
- ask for clarifications on installation of the IKEA appliance in the dedicated IKEA kitchen furniture;
- ask for clarification on functions of IKEA appliances. To ensure that we provide you with the best assistance, please read carefully the Assembly Instructions and/or the User Manual before contacting us.
How to reach us if you need our service
Please refer to the last page of this manual for the full list of IKEA appointed Authorized Service Centre and relative national phone numbers.
- In order to provide you a quicker service, we recommend to use the specific phone numbers listed on this manual. Always refer to the numbers listed in the booklet of the specific appliance you need an assistance for. Please also always refer to the IKEA article number (8 digit code) and 12 digit service number placed on the rating plate of your appliance.
- SAVE THE SALES RECEIPT!
It is your proof of purchase and required for the guarantee to apply. The sales receipt also reports the IKEA name and article number (8 digit code) for each of the appliances you have purchased.
Do you need extra help?
For any additional questions not related to After Sales of your appliances please contact your nearest IKEA store call centre. We recommend you read the appliance documentation carefully before contacting us.
Spare parts information
- The following spare parts: thermostats, temperature sensors, printed circuit boards and light sources, will be available to professional repairers for a minimum period of seven years, after placing the last unit of the model on the market.
- The following spare parts: door handles, door hinges, trays and baskets will be available to professional repairers and end users for a minimum period of seven years, and door gaskets for a minimum period of 10 years, after placing the last unit of the model on the market.
The spare parts can be found:
https://parts-selfservice.whirlpool.com/en/landing




















