Mircom RAX-LCD Remote FX-2000 Annunciator Panel

Introduction
Mircom’s FX-2000’s remote shared display is the RAX-LCD. The RAX-LCD shared display provides an exact replica (less 16 zone LEDs) of the main FX-2000 Fire Alarm Panel display at a remote location. It is equipped with a large 4 line x 20 character back-lit alphanumeric LCD display that uses a simple menu system complete with a directional keypad and switches for Enter, Menu Cancel and Info. The display expands with up to a total of four RAX-1048TZ Adder Annunciator or six IPS-2424 Programmable Input Switches Modules. There are five types of enclosure available: the BB-1001, BB-1002, BB-1003, BB-1008, and BB-1012 which can take 1,2,3,8,12 chassis respectively. It may also be mounted in the BB-5008 and the BB-5014.
Contact Us

For General Inquiries, Customer Service and Technical Support you can contact us Monday to Friday 8:00 A.M. to 5:00 P.M. E.S.T.
General Inquiries
- Toll Free 1-888-660-4655 (North America Only)
- Local 905-660-4655
- Email [email protected]
Customer Service
- Toll Free 1-888-MIRCOM5 (North America Only)
- Local 905-695-3535
- Toll Free Fax 1-888-660-4113 (North America Only)
- Local Fax 905-660-4113
- Email [email protected]
Technical Support
- Toll Free 1-888-MIRCOM5 (North America Only) 888-647-2665
- International 905-647-2665
- Email [email protected]
Website
Installation Instructions
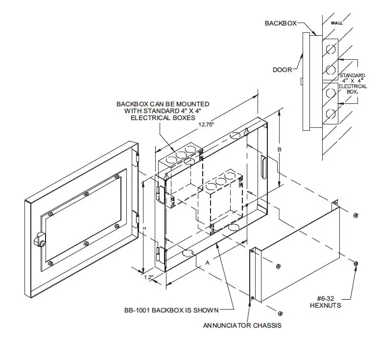
Table 1 Backboxes
| Backbox | Height H (in.) | Mounting A (in.) | Mounting B (in.) |
| BB-1001 | 9.0” | 9.95” | 7.5” |
| BB-1002 | 18.0” | 9.95” | 16.5” |
| BB-1003 | 26.5” | 9.95” | 24.9” |
| BB-1008 | 33.0” | 20.9” | 35.2” |
| BB-1012 | 45.0” | 20.9” | 52.0” |

Mechanical Assembly Diagram
The RAX-1048 is supplied with the NP-681 Blank Laser Printable Label Sheet.
Note: The RAX-1048 normally displays Initiating circuit status (no individual circuit troubles); however, model RAX-1048TZ will allow individual circuit trouble indication as well. Indicating and relay circuits are not remotely displayed. For more details, see the fire alarm control panel manual that the annunciator is connected to.
Wiring Instructions
The RS-485 wiring to the RAXLCD Display Module is recommended to be twisted shielded pair as shown in the diagram to the right. The wire gauge may be:
- 22 AWG up to 2000 ft.
- 20 AWG up to 4000 ft.
The RS-485 wiring from the fire alarm control panel to the annunciator(s) must be point-to-point from the fire alarm panel to the first annunciator, then to the next annunciator, and so on. No star wiring or T-tapping isallowed. Each RAX-LCD Shared Display has a 120-ohm end-of-line resistor on its RS-485 output terminals. This is removed on all except the last wired module. The 24 VDC field wiring needs to be of an appropriate gauge for the number of annunciators and the total wiring run length. Use the Current Drain for Battery Calculations on page 16 to calculate the maximum current for all annunciators summed together.
- Note: All circuits are power limited and must use type FPL, FPLR, or FPLP power limited cable.
Attention: Accidentally connecting any of the 24 VDC wires to the RS-485 wiring will result in damage to the annunciator and/or to the fire alarm control panel to which it is connected.
Maximum Wiring Run to Last Annunciator
| Max for all Annunciators | Max Loop Resistance | ||||||||
| 18AWG | 16AWG | 14AWG | 12AWG | ||||||
| Amperes | ft | m | ft | m | ft | m | ft | m | Ohms |
| 0.12 | 1180 | 360 | 1850 | 567 | 3000 | 915 | 4250 | 1296 | 15 |
| 0.30 | 470 | 143 | 750 | 229 | 1200 | 366 | 1900 | 579 | 6 |
| 0.60 | 235 | 71 | 375 | 114 | 600 | 183 | 850 | 259 | 3 |
| 0.90 | 156 | 47 | 250 | 76 | 400 | 122 | 570 | 174 | 2 |
| 1.20 | 118 | 36 | 185 | 56 | 300 | 91 | 425 | 129 | 1.5 |
| 1.50 | 94 | 29 | 150 | 46 | 240 | 73 | 343 | 105 | 1.2 |
| 1.70 | 78 | 24 | 125 | 38 | 200 | 61 | 285 | 87 | 1.0 |
DIP Switch Settings
Each RAX-LCD Shared Display Annunciator needs to be assigned a unique address via the switch SW1.
The RAX-LCD DIP switches are set as:
- SW1-1 = Address A0
- SW1-2 = Address A1
- SW1-3 = Address A2

- SW1-4 = Address A3
- SW1-5 = Address A4
- SW1-6 = Address A5(OFF)
- SW1-7 = not used Put in “OFF” position for firmware restore
- SW1-8 = during power up. At all other times put in “ON” state.
DIP switches are for assigning an address to the RAX-LCD. Binary addresses 33 to 63 are available with the least significant bit being switch SW-1 and the most significant bitbeing SW-6. The OFF setting is active binary. DIP switches SW1-7 and SW1-8 are not used. For example, address 33 is set by setting SW1-6 and SW1-1 OFF and all the other DIP switches are ON.
The OFF setting is active. The addresses available for the RAX-LCD are 33 to 63. Set the address as follows in the table below:
Annunciator “Address” Settings
| Address | SW1-1 | SW1-2 | SW1-3 | SW1-4 | SW1-5 | Address | SW1-1 | SW1-2 | SW1-3 | SW1-4 | SW1-5 |
| 33 | OFF | ON | ON | ON | ON | 49 | OFF | ON | ON | ON | OFF |
| 34 | ON | OFF | ON | ON | ON | 50 | ON | OFF | ON | ON | OFF |
| 35 | OFF | OFF | ON | ON | ON | 51 | OFF | OFF | ON | ON | OFF |
| 36 | ON | ON | OFF | ON | ON | 52 | ON | ON | OFF | ON | OFF |
| 37 | OFF | ON | OFF | ON | ON | 53 | OFF | ON | OFF | ON | OFF |
| 38 | ON | OFF | OFF | ON | ON | 54 | ON | OFF | OFF | ON | OFF |
| 39 | OFF | OFF | OFF | ON | ON | 55 | OFF | OFF | OFF | ON | OFF |
| 40 | ON | ON | ON | OFF | ON | 56 | ON | ON | ON | OFF | OFF |
| 41 | OFF | ON | ON | OFF | ON | 57 | OFF | ON | ON | OFF | OFF |
| 42 | ON | OFF | ON | OFF | ON | 58 | ON | OFF | ON | OFF | OFF |
| 43 | OFF | OFF | ON | OFF | ON | 59 | OFF | OFF | ON | OFF | OFF |
| 44 | ON | ON | OFF | OFF | ON | 60 | ON | ON | OFF | OFF | OFF |
| 45 | OFF | ON | OFF | OFF | ON | 61 | OFF | ON | OFF | OFF | OFF |
| 46 | ON | OFF | OFF | OFF | ON | 62 | ON | OFF | OFF | OFF | OFF |
| 47 | OFF | OFF | OFF | OFF | ON | 63 | OFF | OFF | OFF | OFF | OFF |
| 48 | ON | ON | ON | ON | OFF |
The RAX-1048 Adder Annunciator Chassis
- P1: Connects to the main annunciator chassis, or to the previous RAX-1048TZ or IPS-2424.
- P2: Connects to the next RAX-1048TZ or\ IPS-2424.

The IPS-2424 Programmable Input Switches Module
- P1: Connects to the main annunciator chassis, or to the previous RAX-1048TZ or IPS-2424.
- P2: Connects to the next RAX-1048TZ or IPS-2424.
The RAX-LCD Shared Display Chassis
- P1: Connects to the first RAX-1048TZ or IPS-2424.
- P2: BDM port.
- Terminals: See Wiring Instructions on page 10 for details.
- SW1: See above for details.
Note: The last annunciator must have 120 ohm E.O.L. resistor connected to RS-485 output terminals.
Specifications and Features
Enclosure Models
The finish of all enclosures is painted semi-gloss off white. For enclosure dimensions see 4.0 DIP Switch Settings
Enclosure Model Descriptions
| Modle Number | Material | Description |
| BB-1001 | 18 GA. (0.048″) thick CRS | Backbox for one annunciator chassis with keylock door |
| BB-1002 | 18 GA. (0.048″) thick CRS | Backbox for one annunciator chassis with keylock door |
| BB-1003 | 18 GA. (0.048″) thick CRS Door is 16 GA (0.060”) | Backbox for one annunciator chassis with keylock door |
| BB-1008 | 16 GA. (0.060″) thick CRS Door is 14 GA (0.075”) | Backbox for one annunciator chassis with keylock door |
| BB-1012 | 16 GA. (0.060″) thick CRS Door is 14 GA (0.075”) | Backbox for one annunciator chassis with keylock door |
Module Models
RAX-LCD Remote FX-2000 Shared Display LCD Annunciator
- 24V DC nominal, range of 20 to 39V DC.
- Interconnects via one ribbon cable (or wiring) to the FX-2000 Fire Alarm Panel or to previous RAX-LCD.
- Provides exact functions as the FX-2000 main display.
- Standby: 100 mA Max., All LED’s “On”: 150 mA Max.
RAX-1048TZ Adder Annunciator Chassis (48 Display Points)
- Interconnect via one ribbon cable from RAX-LCD or to previous RAX-1048TZ or IPS- 2424 to the next RAX-1048TZ or IPS-2424.
- Annunciation of up to 48 additional points.
- Standby: 15 mA Max., All LEDs On: 100 mA Max.
Current Drain for Battery Calculations
The following are the currents for the RAX-LCD to which is added the number of RAX-1048TZ and/or IPS-2424 used:
- Normal Standby Current = 1000 mA+ ________ X 15 mA = ________ X 10mA =_______ (number of RAX-1048TZ)(number of IPS-2424)
- Maximum = 150 mA+ ___________ X 15 mA= _________ X 144mA = __________ (number of RAX-1048TZ)(number of IPS-2424)
Use the “normal standby current” for battery size calculations (see the fire alarm control panel manual for battery calculations) and includes the current drain for the Trouble Buzzer, Trouble LED, and one alarm LED. Use the “maximum current” to calculate the wire size (see Wiring Instructions on page 12).
Environmental Specifications
This annunciator is intended for indoor use only.
Warranty and Warning Information
Warning Please Read Carefully
Note to End User i sThis equipment is subject to terms and conditions of sale as follows:
Note to Installers
This warning contains vital information. As the only individual in contact with system users, it is your responsibility to bring each item in this warning to the attention of the users of this system. Failure to properly inform system end-users of the circumstances in which the system might fail may result in over-reliance upon the system. As a result, it is imperative that you properly inform each customer for whom you install the system of the possible forms of failure.
System Failures
This system has been carefully designed to be as effective as possible. There are circumstances, such as fire or other types of emergencies where it may not provide protection. Alarm systems of any type may be compromised deliberately or may fail to operate as expected for a variety of reasons. Some reasons for system failure include:
Inadequate Installation
A Fire Alarm system must be installed in accordance with all the applicable codes and standards in order to provide adequate protection. An inspection and approval of the initial installation, or, after any changes to the system, must be conducted by the Local Authority Having Jurisdiction. Such inspections ensure installation has been carried out properly.
Power Failure
Control units, smoke detectors and many other connected devices require an adequate power supply for proper operation. If the system or any device connected to the system operates from batteries, it is possible for the batteries to fail. Even if the batteries have not failed, they must be fully charged, in good condition and installed correctly. If a device operates only by AC power, any interruption, however brief, will render that device inoperative while it does not have power. Power interruptions of any length are often accompanied by voltage fluctuations which may damage electronic equipment such as a fire alarm system. After a power interruption has occurred, immediately conduct a complete system test to ensure that the system operates as intended.
Failure of Replaceable Batteries
Systems with wireless transmitters have been designed to provide several years of battery life under normal conditions. The expected battery life is a function of the device environment, usage and type. Ambient conditions such as high humidity, high or low temperatures, or large temperature fluctuations may reduce the expected battery life. While each transmitting device has a low battery monitor which identifies when the batteries need to be replaced, this monitor may fail to operate as expected. Regular testing and maintenance will keep the system in good operating condition.
Compromise of Radio Frequency (Wireless) Devices
Signals may not reach the receiver under all circumstances which could include metal objects placed on or near the radio path or deliberate jamming or other inadvertent radio signal interference.
System Users
A user may not be able to operate a panic or emergency switch possibly due to permanent or temporary physical disability, inability to reach the device in time, or unfamiliarity with the correct operation. It is important that all system users be trained in the correct operation of the alarm system and that they know how to respond when the system indicates an alarm.
Automatic Alarm Initiating Devices
Smoke detectors, heat detectors and other alarm initiating devices that are a part of this system may not properly detect a fire condition or signal the control panel to alert occupants of a fire condition for a number of reasons, such as: the smoke detectors or heat detector may have been improperly installed or positioned; smoke or heat may not be able to reach the alarm initiating device, such as when the fire is in a chimney, walls or roofs, or on the other side of closed doors; and, smoke and heat detectors may not detect smoke or heat from fires on another level of the residence or building.
Software
Most Mircom products contain software. With respect to those products, Mircom does not warranty that the operation of the software will be uninterrupted or error-free or that the software will meet any other standard of performance, or that the functions or performance of the software will meet the user’s requirements. Mircom shall not be liable for any delays, breakdowns, interruptions, loss, destruction, alteration or other problems in the use of a product arising our of, or caused by, the software.
Every fire is different in the amount and rate at which smoke and heat are generated. Smoke detectors cannot sense all types of fires equally well. Smoke detectors may not provide timely warning of fires caused by carelessness or safety hazards such as smoking in bed, violent explosions, escaping gas, improper storage of flammable materials, overloaded electrical circuits, children playing with matches or arson. Even if the smoke detector or heat detector operates as intended, there may be circumstances when there is insufficient warning to allow all occupants to escape in time to avoid injury or death.
Alarm Notification Appliances
Alarm Notification Appliances such as sirens, bells, horns, or strobes may not warn people or waken someone sleeping if there is an intervening wall or door. If notification appliances are located on a different level of the residence or premise, then it is less likely that the occupants will be alerted or awakened. Audible notification appliances may be interfered with by other noise sources such as stereos, radios, televisions, air conditioners or other appliances, or passing traffic. Audible notification appliances, however loud, may not be heard by a hearing-impaired person.
Telephone Lines
If telephone lines are used to transmit alarms, they may be out of service or busy for certain periods of time. Also the telephone lines may be compromised by such things as criminal tampering, local construction, storms or earthquakes.
Insufficient Time
There may be circumstances when the system will operate as intended, yet the occupants will not be protected from the emergency due to their inability to respond to the warnings in a timely manner. If the system is monitored, the response may not occur in time enough to protect the occupants or their belongings.
Component Failure
Although every effort has been made to make this system as reliable as possible, the system may fail to function as intended due to the failure of a component.
Inadequate Testing
Most problems that would prevent an alarm system from operating as intended can be discovered by regular testing and maintenance. The complete system should be tested as required by national standards and the Local Authority Having Jurisdiction and immediately after a fire, storm, earthquake, accident, or any kind of construction activity inside or outside the premises. The testing should include all sensing devices, keypads, consoles, alarm indicating devices and any other operational devices that are part of the system.
Security and Insurance
Regardless of its capabilities, an alarm system is not a substitute for property or life insurance. An alarm system also is not a substitute for property owners, renters, or other occupants to act prudently to prevent or minimize the harmful effects of an emergency situation.
IMPORTANT NOTE: End-users of the system must take care to ensure that the system, batteries, telephone lines, etc. are tested and examined on a regular basis to ensure the minimization of system failure.
Limited Warranty
Mircom Technologies Ltd. together with its subsidiaries and affiliates (collectively, the “Mircom Group of Companies”) warrants the original purchaser that for a period of three years from the date of shipment, the product shall be free of defects in materials and workmanship under normal use. During the warranty period, Mircom shall, at its option, repair or replace any defective product upon return of the product to its factory, at no charge for labor and materials. Any replacement and/or repaired parts are warranted for the remainder of the original warranty or ninety (90) days, whichever is longer. The original owner must promptly notify Mircom in writing that there is defect in material or workmanship, such written notice to be received in all events prior to expiration of the warranty period.
International Warranty
The warranty for international customers is the same as for any customer within Canada and the United States, with the exception that Mircom shall not be responsible for any customs fees, taxes, or VAT that may be due.
Conditions to Void Warranty
This warranty applies only to defects in parts and workmanship relating to normal use. It does not cover:
- damage incurred in shipping or handling;
- damage caused by disaster such as fire, flood, wind, earthquake or lightning;
- damage due to causes beyond the control of Mircom such as excessive voltage, mechanical shock or water damage;
- damage caused by unauthorized attachment, alterations, modifications or foreign objects;
- damage caused by peripherals (unless such peripherals were supplied by Mircom);
- defects caused by failure to provide a suitable installation environment for the products;
- damage caused by use of the products for purposes other than those for which it was designed;
- damage from improper maintenance;
- damage arising out of any other abuse, mishandling or improper application of the products.
Warranty Procedure
To obtain service under this warranty, please return the item(s) in question to the point of purchase. All authorized distributors and dealers have a warranty program. Anyone returning goods to Mircom must first obtain an authorization number. Mircom will not accept any shipment whatsoever for which prior authorization has not been obtained.
NOTE: Unless specific pre-authorization in writing is obtained from Mircom management, no credits will be issued for custom fabricated products or parts or for complete fire alarm system. Mircom will at its sole option, repair or replace parts under warranty. Advance replacements for such items must be purchased.
Note: Mircom’s liability for failure to repair the product under this warranty after a reasonable number of attempts will be limited to a replacement of the product, as the exclusive remedy for breach of warranty.
Disclaimer of Warranties
This warranty contains the entire warranty and shall be in lieu of any and all other warranties, whether expressed or implied (including all implied warranties of merchantability or fitness for a particular purpose), And of all other obligations or liabilities on the part of Mircom neither assumes nor authorizes any other person purporting to act on its behalf to modify or to change this warranty, nor to assume for it any other warranty or liability concerning this product. This disclaimer of warranties and limited warranty are governed by the laws of the province of Ontario, Canada.
Warranty Repairs
Mircom will at its option repair or replace out-of-warranty products which are returned to its factory according to the following conditions. Anyone returning goods to Mircom must first obtain an authorization number. Mircom will not accept any shipment whatsoever for which prior authorization has not been obtained. Products that Mircom determines to be repairable will be repaired and returned. A set fee which Mircom has predetermined and which may be revised from time to time, will be charged for each unit repaired. Products that Mircom determines not to be repairable will be replaced by the nearest equivalent product available at that time. The current market price of the replacement product will be charged for each replacement unit. The preceding information is accurate as of the date of publishing and is subject to change or revision without prior notice at the sole discretion of the Company.
WARNING: Mircom recommends that the entire system be completely tested on a regular basis. However, despite frequent testing, and due to, but not limited to, criminal tampering or electrical disruption, it is possible for this product to fail to perform as expected.
NOTE: Under no circumstances shall Mircom be liable for any special, incidental, or consequential damages based upon breach of warranty, breach of contract, negligence, strict liability, or any other legal theory. Such damages include, but are not limited to, loss of profits, loss of the product or any associated equipment, cost of capital, cost of substitute or replacement equipment, facilities or services, downtime, purchaser’s time, the claims of third parties, including customers, and injury to property. MIRCOM MAKES NO WARRANTY OF MERCHANTABILITY OR FITNESS FOR A PARTICULAR PURPOSE WITH RESPECT TO ITS GOODS DELIVERED, NOR IS THERE ANY OTHER WARRANTY, EXPRESSED OR IMPLIED, EXCEPT FOR THE WARRANTY CONTAINED HEREIN.
CANADA – Main Office 25 Interchange Way Vaughan, ON L4K 5W3 Tel: (888) 660-4655 (905) 660-4655 Fax: (905) 660-4113 U.S.A 4575 Witmer Industrial Estates Niagara Falls, NY 14305 Tel: (888) 660-4655 (905) 660-4655 Fax: (905) 660-4113
TECHNICAL SUPPORT
North America Tel: (888) Mircom5 (888) 647-2665 International Tel: (905) 647-2665 Mircom 2011 Printed in Canada Subject to change without prior notice www.mircom.com



















