NOTIFIER Automatic Fire Alarm Warden Station Installation

Automatic Fire Alarm Warden Station Series
TRIM RING, PLATE, DOOR and BACKBOX PRODUCT INSTALLATION DRAWING
Document 50766 Revision A
ECN 97-139 10/23/97
Installation Instructions for Trim Ring, Plate, Door and Backbox
- Install plate as follows:
- Slide plate into the two slots near the top of the trim ring (see Figure 1a).Front of plate should face front of door.
- Push the plate down into the slot and toward the trim ring (see Figure 1b) until it sits firmly in the slots (see Figure 1c).

- Install trim ring on backbox with 6-32 wing nuts (see Figure 2 for hole positions). Do not tighten.

- Slide door assembly into the space between the trim ring and backbox (see Figure 3).
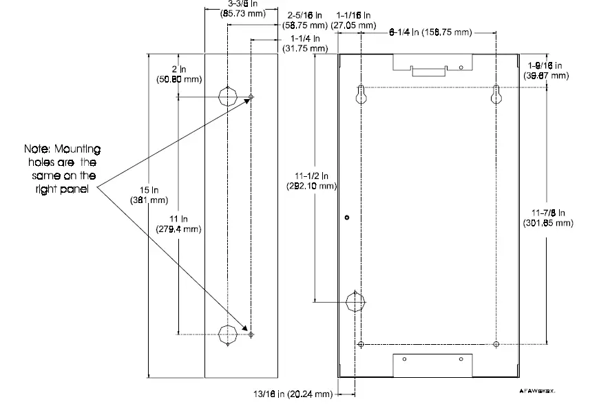
The two slots at the bottom of the door should slide over the trim ring studs, and the hinge knuckle should rest on the trim ring. Tighten wing nuts. - Mount the assembled box in a readily-accessible area approximately five feet above the floor using the holes on the back wall of the box. Refer to Figure 4 for backbox dimen-sions.


Figure 4 Backbox Dimensions



The two slots at the bottom of the door should slide over the trim ring studs, and the hinge knuckle should rest on the trim ring. Tighten wing nuts.


















