ACV HeatMaster 120 TC Evo Combined Gas Fired Condensing Boiler and Water Heater

INSTALLATION
Combined gas-fired condensing boiler & water heater with stainless steel heat exchanger.

- Heating and hot water from one unit saves space, reduces energy use and speeds up installation
- Operates in most efficient mode (condensing) for both heating and hot water
- Low maintenance with no anode protection required
- Reduces legionella risk due to water stored at > 60°C
- Corrosion-resistant stainless steel heat exchanger and tank reduces maintenance and increases system lifespan
- Suited to high demand and critical hot water premises such as hotels and hospitals
- Easy to use standardised controls using ACVMax control system
- Combine with Prestige® heat only boilers or Smart cylinder for highly efficient heating and hot water performance all from one manufacturer
- Suitable for vented or unvented systems (optional Systempak 3 unvented kit required. Kit includes 25l expansion vessel, T&P relief valve, tundish, pressure control valve, combined pressure reducing valve and mounting bracket)
- Supplied with LPG kit for simple on-site conversion
- Supplied with factory fitted T&P relief valve
- Improved access for service and maintenance
- 5-year warranty
Tank-in-tank technology
- Fast heat up
- Rapid recovery
- Reduced footprint
- Reduced scale
- Low storage required
- Minimal heat loss
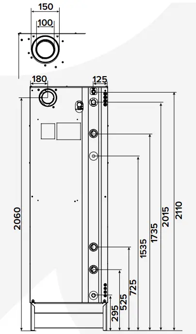
Technical data and dimensions

| Type | Unit | HM120TC Evo |
| Part number | XB550006 | |
| Input max (heating) HCV | kW | 127.7 |
| Input min (heating) | kW | 25 |
| Output power min (80/60°C) G20 | kW | 22.9 |
| Output power max (80/60°C) | kW | 111.6 |
| Output at 100% (50/30°C) G20 | kW | 121.7 |
| Efficiency at 100% load (80/60) | % | 97.0 |
| Efficiency at 100% load (50/30°C) | % | 103.9 |
| Efficiency at 30% load (EN15502-1) – nett | % | 109.0 |
| Seasonal space heating efficiency | % | 95.8 |
| Capacity (total) | L | 315 |
| Capacity (DHW) | L | 190 |
| Connection – heating | Ø” | 1 ½ F |
| Connection – DHW | Ø” | 1 M |
| Connection – gas | Ø” | 3/4 M |
| Flue connection | Ømm | 100/150 |
| Water pressure drop boiler at Δt = 20°C | mbar | 27 |
| Gas flow rate (max output) | m³/h | 12 |
| Weight (empty) | kg | 299 |
| Max operating temperature | °C | 87 |
| Max service pressure heating (primary) | bar | 3 |
| Max service pressure (DHW) | bar | 8.6 |
| Voltage | V | 230 |
| Pre-heating time from 10 to 80°C (Heat source: boiler) | min | 23 |
| Standby loss ΔT 30K | kWh/day | 2.64 |
| Standby loss ΔT 45K | kWh/day | 3.94 |
| Standby loss ΔT 30K | W | 110 |
| Standby loss ΔT 45K | W | 164 |
| Declared load profile | XXL | |
| Water heating energy efficiency class | A | |
| Space heating energy efficiency class | A | |
| NOx class (EN15502) | 6 | |
| NOx weighted (GCV) (EN15502) | mg/kWh | 39.8 |
| Sound power level indoors LWA (BSEN15036-1) | dB | 62 |
Domestic hot water performance

| Type | Unit | HM120TC Evo |
| Peak flow at 40°C | L/10’ | 900 |
| Peak flow 1st hour at 40°C | L/60’ | 3620 |
| Continuous flow at 40°C | L/h | 3402 |
| Peak flow at 45°C | L/10’ | 676 |
| Peak flow 1st hour at 45°C | L/60’ | 3098 |
| Continuous flow at 45°C | L/h | 2928 |
| Peak flow at 60°C | L/10’ | 440 |
| Peak flow 1st hour at 60°C | L/60’ | 1847 |
| Continuous flow at 60°C | L/h | 1754 |
All dimensions in mm.
| Clearances | (minimum) |
| Top | 300mm |
| Left side | 600mm |
| Right side | 250mm |
| Rear | 400mm |
ACV UK Ltd
St. David’s Drive, St. David’s Business Park, Dalgety Bay, Fife, KY11 9PF
[email protected] | acv.com
*Terms & conditions available at www.acv.com/gb/warranties.
Every effort has been taken to ensure the details are accurate. ACV UK Limited does not, however, guarantee the accuracy or completeness of any information nor does it accept liability for any errors or omissions in the information. ACV UK Limited reserves the right to make changes and improvements which may necessitate alteration to product specification without prior notice.


















