Trane Electric Unit Heaters Product Catalog

Introduction
Electric unit heaters have been a traditional means of heating hard-to-warm spaces for many years. Their uncomplicated approach in auxiliary heating make them easy to install and maintain. Their versatile characteristics allow Trane’s electric unit heaters to fill nearly every heating application gap, while their structural integrity makes them a reliable heat source to blend into today’s building décor. Trane’s electric unit heaters are available in 6 variations. The following chart presents a brief overview of the different electric unit heater models Trane offers.


Copyright
This document and the information in it are the property of Trane, and may not be used or reproduced in whole or in part without written permission. Trane reserves the right to revise this publication at any time, and to make changes to its content without obligation to notify any person of such revision or change.
Trademarks
All trademarks referenced in this document are the trademarks of their respective owners.
Revision History
Updated the Model UHEC, Model UHEC, Model UHAA, Model UHRA, Model UHXA, Model UHCA data in the following chapters:
- Features and benefits
- Model number description
- General data
- Control wiring
- Dimensional data
- Options
- Mechanical specifications
Features and Benefits
Model UHEC
Electric Unit Heaters
- Forty-nine models to choose from ranging from 3.3 to 100 kW. Available for 208, 240/208, 277 or 480-volt operation.
- One unit can be used for either horizontal or vertical discharge.
- Specially designed inlet louvers, venturi and outlet diffuser provide uniform air temperature and throw characteristics.
- Single-phase units, easily converted to three-phase power, are available in 3.3 to 10 kW for 208 and 240-volt operation.
- Two-speed fan operation standard on 25 kW through 50 kW units. 60 kW through 100 kW are single speed fan only.
- ETL listed to meet all requirements of UL listing standards when installed as directed.
UHEC electric unit heaters are ideal for applications ranging from new construction to auxiliary heat to renovation. They are available in 37 models ranging from 3.3 kW to 100 kW. In addition to a wide capacity range, each compact, attractive unit can be mounted in either a horizontal or vertical discharge arrangement.
Flexibility
The Trane electric unit heater shows its flexibility in installation and operation. Intended for industrial, commercial or institutional use, the Trane electric unit heater is available for 208 to 480-volt, single or three-phase operation. Units from 3.3 to 10 kW for 208 and 240-volt operation may be converted easily from single to three-phase operation in the field. Single speed fan on 3.3 to 20 kW. Two-speed fan operation is available on 25 kW through 50 kW. Single speed only available on 60 kW through 100 kW units.
Uniform Air Distribution
The Trane unit heater uniformly directs the air to exactly where it’s needed. A specially designed deep-drawn venturi assures uniform air distribution. The outward-drawn venturi channels the air forward for maximum, uniform air throw. Outlet diffusers are provided to properly direct the heated discharge air.
In order to minimize the potential for hot spots on the heating coil, inlet louvers evenly distribute intake air over the entire heating element.
Trane electric unit heaters are designed with totally enclosed, permanently lubricated industrial motors. The air-over-motor design reduces operating temperatures, promoting long motor life. Thermal overloads provide additional protection for major circuits, in case normal operating temperatures are exceeded.
Quick and Easy Low-Cost Installation
Installation time and costs are minimized. Compact and completely factory wired, the Trane electric unit heater requires only a single-source power supply connection. The units are available with factory installed 24-volt control transformers and contactors.

Mounting the unit is easily accomplished with the use of hanger rods connected to weld nuts on the unit casing. An accessory mounting bracket is available for single-point mounting. Field installed accessories such as built-in thermostats, disconnect switches and summer fan switches are provided with spade terminals for easy installation to a single- point terminal board.
Reliable Operation
Trane electric UHEC unit heaters operate reliably when installed and operated as directed. All units are ETL listed. One-year warranty.
Easy Access
In the event that service is required, easy access to the control components is provided with a full-length access panel secured by quarter-turn fasteners. For added convenience, unit wiring diagrams are located inside the access panel for easy reference during installation and servicing.

Model UHRA
Hose-Down Electric Unit Heaters Trane UHRA hose-down electric unit heaters are constructed for use in areas that require washing or hosing of equipment due to a dirty or dusty industrial environment in non- hazardous locations. The totally enclosed, watertight casing made with corrosion-resistant material, makes the unit ideal for industrial heating applications. All controls are built-in and the safety temperature controls are wired in a nonmetallic NEMA 4x control panel with single-point power connections.

Standard Features
- Heavy-duty 304 stainless steel casing
- NEMA 4x nonmetallic control panel
- 24-volt transformer and control circuit
- Three-position switch (off – heat – fan)
- Disconnect switch with enclosure interlock
- Capillary thermostat with stainless steel sensor
- Automatic reset thermal cutout
- Totally enclosed UL listed motor
- Pilot light (power on indicator)
- Chrome-plated finned tubular element
- Control panel on bottom of unit for ease of installation and service
Control Enclosure
- Single-point power connection
- Meets all UL, NEC and OSHA requirements (when installed as directed)
- Corrosion-resistant in high humidity and water-saturated areas (for areas where corrosion-resistance is needed in non-hazardous areas).

Model UHXA
Trane Explosion-Proof Electric Unit Heaters

Designed for rugged industrial applications in hazardous locations where the possibility of explosion or fire exists due to the presence of certain flammable gases, vapors, powdered metals or dusts.
- Permanently sealed, liquid to air, finned tube heat exchanger core.
- Ethylene glycol water mixture used as heat transfer fluid in the heater core, providing -45°C, (-49°F) freeze damage protection.
- High-performance electric motor driven fan blows air across finned tubes to effect uniform heat transfer and area heat distribution.
- Automatic reset capillary type high limit provides high temperature regulation and is rated for 100,000 cycles of service.
- Stainless steel and aluminum pressure relief valve handles any over-pressure.
- 14-gauge steel cabinet contains heater core, motor and fan assembly.
- Narrow gap safety fan guard shields all moving parts.
- Adjustable louvers allow directional control of air.
- Copper conductor wires enclosed in rigid metal conduits carry all electrical power.
- Box lugs are furnished for field connections within an approved enclosure.
Optional accessories available for the UHXA models:
- Integral thermostat – field adjustable thermostat mounted in the face of the NEMA 7 control enclosure.
- Disconnect switch – disconnect switch for single point connection of electric power mounted in NEMA 7 enclosure and factory wired.
- Pilot light – pilot light to indicate manual reset tripped in the event of safe operating temperatures exceeded. Factory wired and located on the NEMA 7 control enclosure.
- Mounting kits – kits for wall, pipe and joist mounting are available for field installation and mounting of heaters.
- Wall thermostat – hazardous location thermostat for field mounting.

Model UHWA Series 20 and 50
Heavy-Duty Wall Heaters
Trane heavy-duty wall mounted electric forced-air unit heaters are architecturally styled in a vandal-resistant design for all commercial, institutional and many industrial applications. They are particularly suited for schools, office buildings, dormitories, stores, hospitals and other public buildings.
The high capacity and wide range of voltage/phase and control systems provides application versatility to meet most installation requirements. A wide selection of built-in factory installed and wired, pre-engineered control systems minimizes system design and installation time.
All units are equipped with manual reset limit control thermal cut-outs for overheat protection and a totally enclosed, permanently lubricated motor. Optional circuit breaker, control transformer and a selection of integral or wall-mounted thermostat controls are part of the unit package.
Solid Construction and Dependable Components


- Architecturally styled and vandal- resistant for schools, churches, stores, office buildings, transportation terminals, dormitories, hospitals.
- Use in vestibules, entrance ways, lobbies, corridors, stairways, reception rooms, rest rooms, offices.
- Simple application design — wide selection of built-in, factory installed and wired, pre-engineered control systems. Saves design and on-the-job time.
- Versatile application — higher capacity and wider range of voltage/phase and control systems than any similar heaters previously available.
- Heater front withstands with less than 1/16” (1.6 mm) permanent distortion, 10.8 ft lbs (324 pounds) impact and 400 lbs (181.4 kg) static force applied to an 8 sq. in. (5160 sq. mm) area at center grille location.
Model UHCA Series 70 and 80
Commercial and Industrial Ceiling – Mounted Fan Forced Heaters

Series 80 Recess mounted for 2’ (609.6 mm) x 2’ (609.6 mm) “T” bar or plaster ceilings
Mounting Bracket — features swing up installation on surface mounted 70 Series. Bracket center notched to accept screws of ceiling outlet box (installed by others). Recessed heater 80 Series has junction box attached to heater can.
Motor — heavy-duty unit bearing, permanently lubricated, totally enclosed, impedance protected.
Blade — highly efficient, space-saving blade over motor design, individually balanced.
Thermal Cut-Out — manual reset over temperature limit in the event that normal operating temperatures are exceeded.
Element — totally enclosed and corrosion resistant. Maximum finning for lower operating temperatures and long life. Will not become dust clogged. (No filter required.)
Discharge Venturi — bull’s-eye design permitting heated air to leave in uniform pattern.
Plaster Trim — optional plaster trim for recessed mounted heaters (series 80) only. Provides finished ceiling appearance.
Low voltage — all units standard with 24 volt transformer and contactor for low voltage control and an internal fan purge to dissipate residual heat on shutdown.
Series 70 and 80 Features
- Crisp, unique styling to blend into any architectural design — unit designed for long life and warranted for five years.
- Higher velocity ceiling-mounted heater gets air down to warm those hard to heat areas where public accessibility is not desired or where wall area is restricted.
- Single or multiple installations at a fraction of the cost of cabinet unit heaters.
- One-year warranty.
- 2,000 to 5,000 watts.
- 208, 204 V single and three-phase. 277 V single-phase.
- ETL listed.
Optional built-in accessories on all 70 and 80 series units:
- Disconnect switch – optional disconnect is factory installed and wired for single point incoming power connections.
- Thermostat – optional built in single pole thermostat in low voltage circuit. Thermostat can be adjusted through the front grill and is tamper proof design (1-110 degree F range).
- Night setback – relays factory installed and wired to be field wired to bas for night setback energy conservation.
Commercial and Institutional Applications
- Use in vestibules, entrance ways, lobbies, restrooms and small office and guard building applications.
- A unique design offers surface and recessed applications with higher wattage capacity and wider range of voltage and phase capabilities than other heaters of this type.

Model UHAA Series 3320
Architectural Quality
- Built – in tamper resistant thermostat
- Built – in tamper resistant disconnect switch
- Richly styled, rugged grille
- Whisper-quiet sound level
- Fan delay
- Decorator designed for functional beauty and versatility.
- One-year warranty
- ETL listed
Optional Accessories
3320EX33 = Surface Mounting Adapter
Factory-Installed Accessories
Suffix R = Day/Night Relay
Rugged Grille — grille made of 18 gauge (1.2 mm thickness) steel painted with a dark brown baked enamel finish.
Richly Styled Grille — grille is highlighted by a snap-on, 14-gauge (1.9 mm thickness) aluminum frame, secured to the heater with an inconspicuous fastener.
Element — steel sheath with plate heat exchanger.
Fan Delay Switch — to allow the fan to continue to run for a short period after the thermostat is satisfied, to expel warm air from inside the heater. Also delays fan on start up to insure delivery of heated air. This switch also prolongs element life.
“Unique” Vane Axial Fan Wheel — draws in large volumes of air then quietly and gently discharges 175 cfm (82.6 l/s) of heated air downward into the room.

Application Considerations
Model UHXA
Abbreviated descriptions of UL classes, groups and divisions. Before selecting any heater for a particular application, refer to Article 500 as well as other standards referenced in the National Electric Code.
- Class I: Equipment does not have surface operating temperature in excess of the ignition temperature of the specific gas or vapor.
- Class II: Equipment does not have surface temperature greater than the ignition temperature of the specified dust.
- Group D: Atmospheres such as but not limited to acetone, alcohol, gasoline, lacquer solvent vapors, natural gas, propane or other gases or vapors of equivalent hazard.
- Group E: Atmospheres containing combustible metal dust regardless of resistivity, or other combustible dust of similar hazard characteristics having resistivity of less than 105 ohm-centimeter.
- Group F: Atmospheres containing carbon black, charcoal, coal or coke dust.
- Group G: Atmospheres containing combustible dust having resistivity of 105 ohm-centimeter or greater.
- Division I: A location in which ignitable concentrations of flammable material exist under normal operating conditions.
- Division II: Locations in which flammable materials will normally be confined within closed containers and escape only in the case of accidental rupture, breakdown or during maintenance operations. Any equipment approved for Division I is automatically also approved for Division II.
Selection and application of electric unit heaters should consider the location, classification and properties of flammable vapors, liquids, gases, dusts and fibers which may be present. Each room, section or area should be considered individually.
For further information consult National Electric Code and National Fire Prevention Association (ANSI) standards. All models conform to OSHA requirements when mounted at any height.
Installation Conditions
- Refer to owner’s manual.
- The Trane explosion-proof electric unit heaters have been ETL listed for maximum surface temperatures. Use only in atmospheres having an ignition temperature higher than 165°C (T3B) for Class I and Class II operation.
- Altitude restrictions — see specification table.
- Heater must be installed in permanently mounted upright position and connected to fixed power supply.
- Do not operate in atmospheres corrosive to steel and aluminum.
Selection Procedure
Model UHEC, UHRA, UHXA, UHWA, UHCA, UHAA
Calculate the heating loads using the NEMA, ASHRAE, or other accepted heating load calculation method. Determine the quantity and size of unit heaters to be used. To maintain uniform temperature and recommended air circulation, it is suggested that cfm should be adequate to accomplish three air changes per hour.
For maximum comfort, the use of smaller units with lower airflows is suggested to provide more uniform temperature and even airflow. In warehouses and storage areas where uniform heat distribution and temperature control is of lesser importance, it is desirable to use fewer units with greater capacity.
Unit heaters mounted in the horizontal discharge position are most effective when heat is directed along the perimeter of the building wall with the airflow of each unit supporting the airflow of the other units to create a constant flow of warm air.
Model UHEC and Model UHRA
Unit heaters in the vertical position are ideal for use in high ceiling areas and areas where low mounting heights would interfere with personnel or equipment activity. Units mounted in the vertical discharge position should not be mounted higher than the unit’s published maximum mounting height ratings. When unit heaters are used to temper areas such as loading dock doors, one or more units should be arranged to blanket the exposed opening.
Model Number Descriptions


General Data
Model UHEC
Table 1. Model UHEC



Note:
- Maximum amp rating indicates single-phase on those units suitable for both single and three-phase.
- 25 through 50 kW models are wired for two-stage, low voltage control. These units are also equipped with two-speed motors for Hi-Lo fan operation with addition of fan switch option.
- Dual voltage unit ratings indicate highest voltage performance.
- 1 kW equals 3,413 BTU.
- Amp Rating for three-phase operation.
- Supply wire on these models should have insulation rated 75°C minimum.
Table 2. Model UHEC — Metric

Notes:
- 25 through 50 kW models are equipped with two-speed motors for Hi-Lo fan operation with addition of fan switch option
- 60 through 100 kW units have single speed motor with multiple stages available.
Model UHRA
Table 3. Model UHRA


Table 4. Air delivery data


Table 5. Air delivery characteristics

Table 6. Air delivery characteristics

Table 7. Unit electrical data

Model UHXA
Table 8. Model UHXA

Notes:
- 1 watt equals 3.413 Btu.
- 1 kW equals 3,413 Btu.
- 24 volt control voltage is standard and includes built-in contactor and 24 volt control transfer.
(a) Supply conductors must be suitable for 90°C
Table 9. Model UHXA with 120 volt control voltage

Notes:
- 120 volt control voltage is standard and includes built-in contactor and 120 volt control transformer.
- Not available for 600 volt heaters.
(a) Supply conductors must be suitable for 90°C.
Table 10. Model UHXA with 208 or 240 volt control voltage


Note: Not available for 480 and 600 volt heaters.
(a) Supply conductors must be suitable for 90°C.
Table 11. Model UHXA


Model UHWA Series 20 and 50
Table 12. Electric wall-mounted unit heaters — series 20

Note: ONLY thermostat and/or contactor may be built-in on Series 20 wall heaters.
Table 13. Electric wall-mounted unit heaters — series 50

Table 14. Series 70 electric ceiling surface heaters

Notes:
- Surface Mounted Ceiling Heaters — Series 70 designed to be mounted to standard 4 inch (101.6 mm) ceiling box furnished and installed by others. Approximate weight 32 lbs (14.5 kg) packed and shipped as complete.
- Throw designed for 8 foot (2438.4 mm) to 12 foot (3657.6 mm) ceilings. DB RE 10-12 WATT = 63.9
(a) Degree F (c) air rise measured at 710 fpm (3606.8 mm/s) and 425 cfm (201 l/s).
Table 15. Series 80 electric ceiling recessed heaters

Notes:
- Recessed Mounted Ceiling Heaters — Series 80 packed as a complete unit. Contains junction box, heater box and grille. For finished ceiling application, use plaster trim (PT3480) which is an optional accessory. Approximate weight 35 lbs (15.9 kg) for use with 2’ (609.6 mm) x 2’ (609.6 mm) T-bar or hard surface.
- Use PT3480 plaster trim for Series 80 when recessed in a hard finished ceiling. Option Accessory.
(a) Degree F (c) air rise measured at 710 fpm (3606.8 mm/s) and 425 cfm (201 l/s).
Model UHAA Series 3320
Table 16. Electrical specifications and ordering information

Notes:
- 1 watt equals 3.413 btu.
- 1000 Watts Equals 1 kW.
Control Wiring
Model UHXA
The Trane heaters have been designed for explosion-proof service with single and 3-phase inputs of 208, 240, 480 and 600 volts. They meet stringent UL requirements. However, it is essential that correct installation procedures be followed to eliminate all potential hazards arising from faulty installation.

Model UHCA Series 70 and 80
Optional Control Systems
- Heaters operated from wall mounted, line voltage, heavy-duty thermostats.
- Direct Line Voltage. More than one heater may be controlled from one thermostat providing total amperage of heaters does not exceed thermostat rating.
- Single-Phase Heaters. Use any good quality single pole thermostat of sufficient ampacity. Use double pole thermostat if positive off is desired. Knob operated and tamper resistant type available.
- Three-Phase Heaters. Use TW1512. Makes and breaks two poles simultaneously.
- Control Panels. For control of one or more single or three-phase ceiling heaters from one 24V or 120V thermostat. Panels are in NEMA 1 enclosures and have one or more 30 amp, three-pole, 600 VAC contactor(s), operating voltage to control voltage transformer and transformer fusing. (User must provide separate circuit for each contactor.)
Optional
Unit Mounted Controls for Series 80 Recessed Ceiling Heater only shall be factory installed and wired on the Heater
T2 = Thermostat option to be factory mounted with tamper proof access through the front grill
S = Disconnect switch option to be factory mounted with tamper proof access through the front grill
R1 = Internal relay 24 volt for night setback or external control.
R = Internal relay same voltage as the incoming power for night setback or external control
R2 = Internal relay 120 volt for night setback or external control
- Three-phase heaters shall be used with a control panel when controlled by a low voltage (24V or 120V) thermostat.
- Low Voltage Thermostat (Wall Mounted). Heaters operated from wall mounted, low voltage thermostats.
- Thermal Relay With Built-In Line Voltage/24 Volt Transformer. Relay with built-in line volt/24 V transformer are provided for use with wall mounted low voltage thermostat. For remote mounting only.
- Fan purge (off delay to dissipate residual heat on shut off) supplied as a standard control on heaters with factory installed options.
Figure 1. Model UHCA – Typical single phase and three phase wiring diagram

Controls
Model UHWA Series 20 and 50
Table 17. Control systems

Notes:
- Transformer with 24 V secondary (A1) available on all models.
- Transformer with 120 V secondary (A2) available on following models only:
- All three-phase models
- 277 V one-phase up to 4000 watts
- 208 and 240 V one-phase up to 3000 watts
(a) If built-in circuit breaker and/or built-in transformer are desired, 50 Series must be ordered.
Accessories
For Accessory Built-in Controls:
T = Built-in thermostat breaks all ungrounded conductors in OFF position.
C = Circuit breaker (Series 50 only) arranged to be disconnected before removal of front with line side terminals covered for safe maintenance. Additional control circuit switch installed if required.
R = Built-in contactor holding coil same as heater voltage.
R1 = Built-in contactor 24V holding coil. R2 Built-in contactor 120V holding coil. A1 Built-in control transformer, (Series 50 only) 24V secondary.
A2 = Built-In control transformer, (Series 50 only) 120V secondary available on all three-phase heaters, up to 3000 watts on 208 and 240V, one – phase and up to 4000 watts on 277V, 1-phase.
For Semi-recessed and Surface Mounting:
20 Series
20 EX 34 = Extension sleeve for full surface mounting. 20 EX 16 Extension sleeve for extending front additional 2” (50.8 mm) from finished wall. Heater recesses 2 1/4” (57.2 mm).
20 EX 8 = Extension sleeve for extending front additional 1” (25.4 mm) from finished wall. Heater recesses 3 1/4” (82.6 mm).
20 Box = Must be used on all heater installations.
50 Series
50 EX 34 = Extension sleeve for full surface mounting. 50 EX 16 Extension sleeve for extending front additional 2” (50.8 mm) from finished wall. Heater recesses 2 1/4” (57.2 mm).
50 EX 8 = Extension sleeve for extending front additional 1” (25.4 mm) from finished wall. Heater recesses 3 1/4” (82.6 mm).
50 Box = Must be used on all heater installations.
Dimensional Data
Model UHEC



Model UHRA

Model UHXA

Model UHWA Series 20 and 50

Model UHCA Series 70 and 80

Model UHAA Series 3320

Options
Model UHEC
Table 24. Dust shield

Stratification Control Option
Electric UHEC unit heaters are an efficient way to provide quick, efficient heat when and where it’s required. A wall thermostat with an optional stratification thermostat makes the Trane unit heater even more energy efficient. The stratification thermostat recovers trapped ceiling heat, saving electrical energy. When ceiling temperatures are high, the stratification thermostat allows the fan to operate without energizing the heating element. Recovering this otherwise wasted heat assures substantial energy savings.

Diffuser Options
Optional diffusers lend added air pattern versatility to individual vertical down blown installations as shown in illustrations.
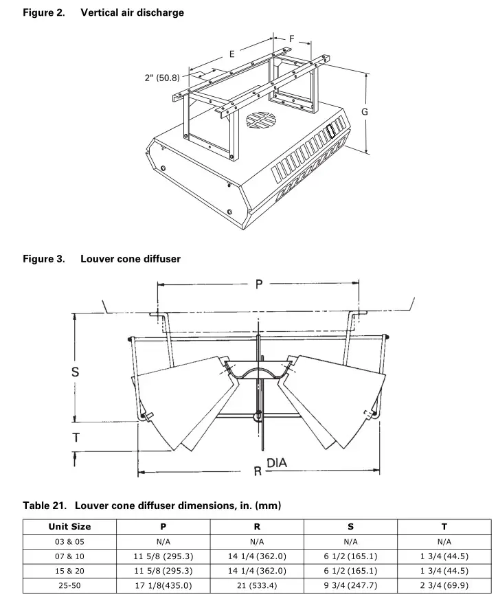
Table 25. Diffuser options

Note: STD= Standard N/R= None Required N/A= Not Applicable
Model UHEC & Model UHRA
Model UHEC
Unit-Mounted Room and Stratification Thermostats
Unit-mounted thermostats for field installation are available in low voltage (24V) for either single or two-stage operation, and line voltage (up to 277V) for single-stage operation. All room thermostats have an adjustable temperature setting range of 50°F (10°C) to 90°F (32.2°C); and the stratification thermostat has a range of 70°F (21.1°C) to 140°F (60°C).
Low voltage thermostats should only be used with units provided with contactors and a low voltage control transformer. Line voltage thermostats can be used with all units provided the thermostat’s maximum amp and voltage ratings are not exceeded. Line voltage thermostats have a maximum amp rating of 25 amps, and maximum voltage rating of 277V. Two-stage thermostats can be used on unit sizes 25 kW and above to provide automatic two-stage heating operation.
Unit and Wall Mounted Summer-Fan Switches
Unit mounted and wall mounted summer fan switches are available for line voltage (up to 277V) and low voltage (24V). Summer fan switches allow fan only operation without energizing the unit’s heating element. During the non-heating season, the summer fan switch will allow the unit’s fan to provide air circulation without providing heat.
Table 26. Dust shield chart

Model UHRA
- Remote 24-volt thermostat
- Stainless steel wall/ceiling mounting bracket (3.3-15 kW)
- Cast iron painted mounting bracket available on all units for wall/ceiling or pipe mounting
- Hanging bracket for use with threaded rod.
Wall-Mounted Room Thermostat
Wall-mounted thermostats are available in low voltage (24V) for either single or two-stage operation, and line voltage (up to 277V) for single-stage operation. All Line voltage thermostats have an adjustable temperature setting range of 50°F (10°C) to 90°F (32.2°C).
Single stage low voltage thermostats have a range of 50°F (10°C) to 90°F (32.2°C), and two-stage low voltage thermostats have a range of 40°F (4.44°C) to 90°F (32.2°C).
The same guidelines for the application of unit-mounted thermostats are also applicable to wall-mounted thermostats.
Unit and Wall Mounted Power Disconnect Switches
Unit and wall mounted power disconnect switches are available to provide a positive disconnect of the unit from the power supply. Two-pole and three-pole power disconnect switches are available with voltage ratings from 25 to 63 amps.

Model UHXA
Mounting Bracket Kits
Trane makes three mounting kits available — the HLPM Pipe Mounting Bracket, the HLHM Ceiling Mounting Bracket, and the HLWM Wall Mounting Bracket. Each of these is illustrated and described on page 20 of this brochure. To order, specify the type of bracket with the heater model desired.
Hazardous Location Thermostat
Specifications
- TW161 Single Pole
- Cast Steel Metal Enclosure
- 22 Amps 125-277 VAC
- 3/4 Hp 125 VAC
- 11/2 Hp 250-277 VAC
- 51/2” H x 51/2” W x 43/4” D
- Can be used for heating or cooling applications

Built-In Hydraulic Thermostat, Disconnect and Pilot Light, Optional On All Models
- Stainless steel bulb and capillary
- 125 VA pilot duty
- Used on 24 volt, 120 volt or 208-240 volt line voltage control
- 60°F to 90°F temperature range
- Adjustable from front of unit with screwdriver.

Mechanical Specifications
Model UHEC
Heaters shall be installed and wired in accordance with the manufacturer’s recommendations and applicable national and local codes.
Casing
Casings fabricated of die-formed, heavy gauge steel and finished in high gloss, baked enamel. Supply air shall be drawn through a stamped louver periphery evenly across the heating element, and discharged through an outward drawn venturi. Adjustable discharge louvers shall be provided to control the direction of airflow. A large, hinged access door shall extend the width of the heater and locked in position by quarter-turn fasteners. Heater and supply wiring diagram shall be permanently attached to the inside of the access door.
Elements
Elements shall be high mass, all steel tubular finned type, copper brazed. Centrally located and installed in fixed element banks.
Motors
Motors shall be totally enclosed, all angle industrial rated. All units 3.3 through 20 kW will utilize sealed bearings to assure permanent lubrication. 25 through 50 kW units are provided with a two-speed, permanent capacitor-type.
Fan Blades
Fan blades shall be of the axial flow type designed for quiet efficient operation. Fan speed does not exceed 1,600 rpm (26.7 R.P.S.).
Wiring
Heaters designed for a single circuit, with elements, motor and control circuits subdivided with factory wired fuses to conform to the National Electric Code and Underwriter’s Laboratory, Inc., Standard 1278. All three-phase heaters shall have balanced phases.
Thermal Overload Protection
All heaters shall be equipped with automatic reset thermal overloads which shut down the element and motor if safe operating temperatures are exceeded.
Fusing
Element, motor and transformer primary fusing are factory installed and wired where required by NEC. Branch circuit fusing is installed where required (48 amps and up).
Control
Contactors and control circuit transformers where required are factory installed and wired. Only direct line supply and thermostat connections in the field are required. Two-stage operation is standard on all units 25 kW and larger with use of two-stage thermostats. Built- in fan override is provided to purge unit casing of excess heat after unit shutdown. The units are listed under the Reexamination Service of Underwriter’s Laboratories, Inc. Units are warranted to be free from defective material and workmanship for a period of one year with the exception of the heating elements which are warranted for five years.
Control Options
- Integral power disconnects (where applicable) — supplied to disconnect all ungrounded connectors in the “Off” position. Disconnect is isolated from unit wiring by use of a metal plate and fisch paper.
- Thermostats (unit-mounted); (wall- mounted) — heavy-duty hydraulic actuating-type. Thermostat range 45°F (7.2°C) to 90°F (32.2°C). Unit-mounted thermostat can be rendered tamper proof by removing the temperature adjustment knob.
- Independent fan operation for summer air circulation — provided from a line or low voltage (unit- mounted) (wall- mounted) fan switch.
- Combination low voltage wall thermostat and fan switch — provided to give wall mounted control of element and fan.
- Stratification thermostat with a range of 70°F (21.1°C) to 130°F (54.4°C) — provided for units mounted in the vertical discharge position to provide an energy saver cycle recovering warm stratified air.
Optional Dust Shield
- For use on horizontal units with wall brackets only, to protect from dust and other particles falling inside the unit heater.
Optional Diffusers
- Louver Cone Diffuser — shall have individually adjustable blades to permit increased floor coverage at 45 degrees open. Additional throw is accomplished when blades are 90 degrees vertical, allowing higher mounting height.
- Anemostat Diffuser — for applications where draft restriction is required at a lower unit mounting height.
Quiet Operation
The heater’s air chute is specifically designed with an outward deep-drawn venturi to provide the maximum throw of warm air forward in either the horizontal or vertical mounting position.
Table 27. OSHA fan guards – optional

Notes:
- For units with existing holes in louver frame, the fan guard snaps into place.
- To retrofit the fan guard, holes must be drilled 1/8″ (3.2 mm) diameter.
- OSHA approved
Table 28. Sound ratings of free field

Model UHRA
Heaters shall be installed and wired in accordance with the manufacturers recommendations and applicable national and local codes.
Casing
The casing that houses the heating elements shall be fabricated from 16-gauge 304 stainless steel with a 304 stainless steel outlet protective grille and angled outlet louvers to insure uniform air flow and delivery temperature across the entire face of the heater. The inlet grille shall be chrome plated. The control enclosure compartment factory installed to the bottom of the heater shall be NEMA 4x nonmetallic provided with a hinged and latched access door that opens from the bottom to simplify wiring installation and maintenance. A single point line voltage connection is provided for 208, 240, 277, 480 and 600 volt service.
Elements
Heavy duty heating elements shall be manufactured from rugged finned tubular steel and chrome-plated for corrosion resistance. Factory wired and sealed for wash down applications.
Motors
Motors shall be totally enclosed permanently lubricated manufactured with corrosion resistant windings to resist moisture and corrosion, factory wired to NEMA 4x enclosure and UL Listed. Both the motor and fan blade shall be factory installed within the heaters casing on rubber isolators to minimize vibration and noise.
Motors specification: 60 – 100 kW units are provided with single speed motor.
Fan Blades
Fan Blades shall be manufactured from anodized aluminum and finished with an epoxy coating.
Thermal Overload Protection
All heaters equipped with corrosion resistant auto reset thermal overloads shall be sealed to prevent moisture to enclosure. Shuts down the element and motor if safe operating temperatures are exceeded.
Controls
All heaters shall be provided as standard with 24-volt transformer and control circuit, fusing (NEC required), pilot light (power-on indicator), thermostat with stainless steel capillary sensor and three-position switch (heat- off-fan) factory installed and wired in the control enclosure compartment to the terminal block for ease of wiring.
Controls specification: 60 – 100 kW units are standard with 4 stages of heat. 4 stages can be controlled individually or grouped to controller with a field supplied thermostat or building automation control. A built in 4 stage electronic step controller is optional to connect units to building management controls or to 0 – 10 VDC input field supplied signal or factory optional wall thermostat.
- Fan delay relay shall be provided as standard factory installed and wired in the control enclosure to maintain fan operation for approximately 21/2 minutes (150 S) after the heating cycle has ended.
- Disconnect switch with control enclosure compartment door interlock shall be furnished as standard factory installed and wired.
Installation
All heaters shall be used in (non- hazardous) locations with corrosive atmospheres where humidity, incidental water, water-saturated or direct spray of water is the normal condition.
Supply Connections
Supply connections shall meet all local and NEC requirements and shall be suitable for use in WET or CORROSIVE atmospheres and locations.
Wiring Instructions
The heaters wiring diagram for field connections shall be located inside the control enclosure and all field wiring connections shall terminate in coded terminal blocks. Terminal blocks shall be suitable for either copper or aluminum field wiring. A single power supply circuit shall be provided for all voltages thru 48 kW size heaters.
UL, NEC and OSHA
Heaters shall meet all UL, NEC and OSHA requirements when installed as directed per Installation Operation Maintenance Manual (UHRA-IOM-1) dated March 1994.
Mounting Bracket Kits
Wall Mounting Bracket Kits — Model A5520 shall be manufactured from stainless steel and epoxy coated. Models W5520, W5550, H5550, P5520 and P5550 shall be manufactured from epoxy coated steel.
Model UHXA
Heaters shall be installed and wired in accordance with the manufacturer’s recommendations and applicable national and local codes for use in hazardous classified locations and shall be ETL listed.
ETL Classes
For Class I, Group D, Divisions 1 and 2 and Class II, Groups E, F and G, Divisions 1 and 2. Abbreviated descriptions of UL classes, groups and divisions.
Before selecting any heater for a particular application, refer to Article 500 as well as other standards referenced in the National Electric Code.
- Class I: Equipment does not have surface operating temperature in excess of the ignition temperature of the specific gas or vapor.
- Class II: Equipment does not have surface temperature greater than the ignition temperature of the specified dust.
- Group D: Atmospheres such as but not limited to acetone, alcohol, gasoline, lacquer solvent vapors, natural gas, propane or other gases or vapors of equivalent hazard.
- Group E: Atmospheres containing combustible metal dust regardless of resistivity, or other combustible dust of similar hazard characteristics having resistivity of less than 105 ohm- centimeter.
- Group F: Atmospheres containing carbon black, charcoal, coal or coke dust.
- Group G: Atmospheres containing combustible dust having resistivity of 105 ohm-centimeter or greater.
- Division I: A location in which ignitable concentrations of flammable material exist under normal operating conditions.
- Division II: Locations in which flammable materials will normally be confined within closed containers and escape only in the case of accidental rupture, breakdown or during maintenance operations. Any equipment approved for Division I is automatically also approved for Division II.
ETL Temperature Codes
The ETL temperature code is T3B 165°C (329°F) for Class 1 and Class 2, indicating maximum operating surface temperatures.
Cabinet
Cabinet fabricated of 14-gauge (1.9 mm thickness) cold rolled steel, with individually adjustable louvers, epoxy coated. A wire fan guard chrome-plated with less than 1/4” (6.4 mm) spacing conforms to NEMA requirements and shields all moving parts to meet OSHA requirements. Zinc plated fasteners, conduit made of cadmium-plated seamless steel tubing, cast aluminum control box with opening and 25/8” (16 mm) NC top hanger connections.
Heat Exchanger. Heat exchanger double walled, liquid filled with three low watt density immersion type copper sheathed elements hermetically sealed into the core made of steel with aluminum fins. Heat transfer fluid of ethylene-glycol solution protected to -45°C (-49°F).
Motors
Motors PSC, explosion-proof, permanently lubricated, ball bearing type, 1725 rpm (29 rps). Motor voltage/phase same as element.
Fan Blade
Fan blades are made of aluminum designed for quiet efficient operation.
Controls Factory Installed
Contactors shall be built-in and pre- wired into an explosion-proof enclosure. Contactors shall be heavy duty and break all ungrounded conductors and be rated for 100,000 cycles at all full load. Control transformers where required shall be built-in and pre-wired. Control circuits shall be 24 volts on 208, 240, 480 and 600 volt heaters or 120 volts on 208, 240 and 480 volt heaters or 208 volts on 208 volt heaters or 240 volts on 240 volt heaters.
Thermal Overload Protection
All heaters equipped with automatic reset thermal overload switch capillary type rated for 100,000 cycles of reliable service for temperature regulation.
Relief Valve
Over-pressure arising from excessive external temperature is relieved by a pressure relief valve factory installed in the top header tank. Made of stainless steel opens @ 200 psi (1379 kPa).
Control Options:
- Built-in hazardous location hydraulic thermostat built into the NEMA 7 control enclosure. Adjustable from front of panel with screw driver slot 45 degrees F (7.5 C) to 90 degrees F (32.2 C) 125 VA pilot duty
- Disconnect switch factory installed and wired built into NEMA enclosure and mounted on heater. Single point power input to disconnect
- Pilot light mounted in NEMA 7 enclosure indicates power on to the heater
- Hazardous location wall mounted thermostat SPST 40 degrees F (4.4 C) to 90 degrees F (32.2 C) 22 amps @ 125 – 277 VAC plastic front and knob with bi-metal sensor
- Hazardous location wall mounted thermostat SPST 40 degrees F (4.4 C) to 90 degrees F (32.2 C) 22 amps @ 125 – 277 VAC all steel enclosure with bulb and capillary sensor
- Explosion-proof thermostat (wall- mounted) – SPST 40°F (4.4°C) – 90°F (32.2°C) 22 amps, 125-277 VAC, 3/4 HP (559 W) @ 125 VAC, 11/2 hp (1119 W) @ 250-277 VAC.
- Explosion-proof thermostat (wall- mounted) – DPST 40°F (4.4°C) – 90°F(32.2°C) 22 amps, 125-277 VAC, 3/4 hp (559 W) @ 125 VAC, 11/2 hp (1119 W) @ 250-277 VAC.
- Explosion-proof hydraulic thermostat (built-in) — 45°F (7.2°C) -90°F (32.2°C) 125VA pilot duty.
Mounting Bracket Kits:
- Wall mounting bracket, ideal for use in buildings that have substantial walls. Note the arm only can be bolted directly to structural steel.
- Ceiling mounting bracket, must have adequate overhead structure to mount to. Note 1/2” (12.7 mm) pipe, cut and threaded and supplied by others is required.
- Floor mounting bracket should be used in buildings with insufficient strength to use other types of mounting brackets. To be used with 31/2” (88.9 mm) schedule 40 pipe 4” (101.6 mm) OD supplied by others.
Model UHWA Series 20 and 50
Contractor shall supply and install heavy-duty, wall-mounted forced-air electric unit heaters of the wattage, voltage and phase as indicated on the plans. The heater is designed to provide an even distribution of heated air to the space by drawing return air in the periphery of the heater across the element, which shall then be discharged from the center section of the heater by means of an electric motor and axial flow fan blade.
Heaters are recessed to extend no more than 1 1/2” (38.1 mm) from the finished wall, surface mounted to extend no more than 5 3/4” (146.1 mm) from the finished wall or semi-recessed to extend no more than 2 1/2” (63.5 mm) from the finished wall.
Enclosure
Heater front can withstand, with less than 1/16” (1.6 mm) permanent distortion, 10.8 ft. lbs (324 poundals) impact and 400 lbs. (181.4 kg) static force applied to an 8 sq. in. (5160 sq mm) area at center grille location.
The combination return and supply grille assembly are constructed of 1/16” (1.6 mm) x 3/8” (9.5 mm) rounded edge horizontal steel. Louvers are spaced for maximum opening of 1/4” (6.4 mm).
Louvers are welded at every intersection to three evenly spaced 1/16” (1.6 mm) diameter vertical members and completely framed in a heavy – gauge natural anodized aluminum extrusion. Front assembly are be attached to the chassis by hidden tamper-resistant (Allen-head) machine screws. All other parts are 16-gauge (1.5 mm thickness) steel zinc coated both sides painted in a high gloss bronze colored baked enamel finish.
Motor
Motors are permanently lubricated unit bearing, totally enclosed, shaded pole type with impedance protection. Motors will operate at no more than 1400 rpm (23.3 rps) and are the same voltage as the heater. A protective shield shall surround the motor to separate return air from heated air.
Performance
Heaters have a rating of 245 cfm (115.6 l/s) at 660 fpm (3352.8 mm/s) with a maximum temperature rise of 73 F (40.6 C).
Elements
Element assemblies consist of two or three corrosion-resistant steel sheathed type elements mechanically bonded to common corrosion-resistant steel fins. Each sheathed element consist of helically coiled nickel chromium alloy- resistant wire completely embedded in and surrounded by magnesium oxide, enclosed and wedged into corrosion- resistant steel sheaths. Elements have 2” (50.8 mm) cold conductor pins extending into the sheath and have a density of no more than 60 watts per inch (25.4 mm).
Thermal Overload
Heaters are equipped with manual reset thermal limit control that disconnects elements and motor in the event normal operating temperatures are exceeded. For safety, if opened due to abnormal temperatures, thermal overload will remain open until manually reset by turning heater off for five minutes. Automatic reset thermal overloads which allow the element to continue to cycle under abnormal conditions will not be accepted.
Warranty
Heaters have a one-year warranty
Approval
Heaters are ETL listed. Heaters are conform to Underwriters’ Laboratories, Inc. Standard 1025, Paragraphs 31.20, 31.21, 31.22 and 31.23. Heaters not conforming to these paragraphs will not be acceptable.
Optional Control Systems
Heaters are operated from wall – mounted, line voltage, heavy-duty (tamper-resistant) thermostats. Heaters with built-in, pre-wired contactors are operated from wall – mounted, line voltage, pilot duty (tamper-resistant) thermostats.
Heaters with built-in, pre-wired contactors (and control transformers) will be operated from wall-mounted, pilot duty (24 V) or (120 V) wall- mounted tamper-resistant thermostats.
Heaters are controlled by integrally mounted thermostats. Thermostats are heavy-duty, hydraulic type with a range of 40 F (4.4 C) to 80 F (26.7 C) and with remote sensing bulb placed in the return air. Thermostats shall be electrically rated at least 125 percent of heater rating. Thermostats also act as a disconnect by breaking all ungrounded conductors in the OFF position. (Thermostat control knob is covered by a 16-gauge (1.5 mm thickness) tamper- resistant access plate to prevent adjustment by unauthorized personnel.)
Contactors
Where required, heaters are equipped with heavy-duty, definite purpose contactors with flame path separators and dust covers. Contactors will cycle all ungrounded conductors. Contactors have holding coils (of the same voltage as the heater), or 120 volts or 24 volts. Contactors are be rated at least 125 percent of heater rating and are UL approved for 250,000 cycles.
Control Transformers
Heater are equipped with a Class 2 control transformer, sealed rating of 20VA, to supply control circuits of 24 volts or 120 volts. (120 volt secondaries not available in single phase heaters over 3 kW.)
Circuit Breakers
Heaters equipped with built-in circuit breakers in order to allow the heaters to be supplied from feeder taps. A separate switch providing a positive off for control circuits are included where required. Circuit breakers and control switches are arranged so that all line side conductors will be separately enclosed when heater front is removed for servicing so that no current-carrying parts are accessible without the use of additional tools.
Model UHCA Series 70 and 80
Contractor shall supply and install heavy duty ceiling-mounted forced-air electric heater(s) of the wattage, voltage and phase as indicated on the plans. The heater is designed to provide an even distribution of heated air to the space to be heated by drawing return air in the periphery of the heater, across and through the element and be discharged from the center section of the heater by means of an electric motor and axial flow fan blade.
Heaters that are recessed type and mounted flush with the finished ceiling or surfaced mounted to extend no more than 8 9/16” (217.5 mm) from the finished ceiling.
Enclosure — Recessed
The return grille assembly is constructed of a one piece heavy gauge steel with 1/4” (6.4 mm) sq. slots for return air and concentric rings for uniform air discharge. Grille assembly is attached to the chassis by tamper- resistant (Allen head) machine screws. All parts of enclosure are heavy gauge steel, zinc coated both sides and finished in neutral, off-white colored, baked enamel.
Surface Mounted
Enclosure are constructed of 1/16” (1.6 mm) x 3/8” (9.5 mm) rounded edge horizontal steel louvers which are spaced for maximum opening of 5/16” (7.9 mm). Louvers are welded at every intersection to evenly spaced 1/8” (3.2 mm) diameter vertical members. Discharge grille to have concentric rings for uniform air discharge. Grille assembly are attached to chassis by tamper-resistant (Allen head) machine screws. All parts of enclosure are heavy gauge steel, zinc coated both sides and finished in neutral, off- white colored, baked enamel.
Motor
Motors are permanently lubricated, unit bearing, totally enclosed shaded pole type with impedance protection. Motors operate at no more than 1,300 rpm (21.7 RPS) and are the same voltage as the heater.
Performance
Heaters have a rating of 425 cfm (200.6 l/s) at 710 fpm (3606.8 mm/s) with a maximum temperature rise of 44 F (24.4 C) and 63.9 DB RE 10-12 watt.
Elements
Element assemblies consist of two or three corrosion-resistant, steel- sheathed type elements mechanically bonded to common corrosion-resistant steel fins. Each sheathed element consist of helically coiled nickel chromium alloy resistant wire completely embedded in and surrounded by magnesium oxide, enclosed and wedged into corrosion resistant steel sheaths. Elements have 2” (50.8 mm) cold conductor pins extending into sheath and have a density of no more than 60 watts per inch (25.4 mm).
Thermal Overload
Heaters are be equipped with manual reset thermal limit control that disconnects elements and motor in the event normal operating temperatures are exceeded. For safety, if opened due to abnormal temperatures, thermal overload will remain open until manually reset by turning heater off for five minutes. Automatic reset thermal overloads which allow the element to continue to cycle under abnormal conditions will not be accepted.
Approval
Heaters are ETL listed. Heaters conform to Underwriters’ Standard 1025.
Model UHAA Series 3320
Furnish and install heavy-duty forced air wall heaters, Series 3320 where specified. Heaters are architectural styled, constructed of a 18-gauge (1.2 mm thickness) steel housing with a 14-gauge (1.9 mm thickness) extruded aluminum frame. The rugged steel grille and heater box are painted with a rust resistant dark brown baked enamel color finish. Rough-in dimensions of 19 3/16” (487.4 mm) high x 14 3/16” (360.4 mm) wide x 4” (101.6 mm) deep. Power wiring is connected through two 1/2” (12.7 mm) knockouts in the top of the heater and one 1/2” (12.7 mm) knockout on the bottom of the heater. Units are available in ratings from 1500 to 4800 watts at 240, 208 and 277 volts and 1500 watts at 120 volts. The heaters have a low-speed 600 rpm (10 rps), four-pole motor which drives a vane axial blower to deliver a quiet 175 cfm (82.6 l/s) of down flow air.
The heating element are of the sealed tubular type with large, parallel steel fins for quick heat transfer.
Unit’s have as standard, thermal overload cut-off for added safety, fan delay switch, manual tamper resistant disconnect switch and a tamper resistant thermostat which are calibrated to provide a range of 55 F (12.8 C) to 85 F (29.4 C). All items factory installed and wired.
Optional accessories include a surface mounting adapter and day-night relays. All heaters are listed by ETL listed. The heating element are supplied with a manufacturer’s one – year limited warranty.

Trane – by Trane Technologies (NYSE: TT), a global climate innovator – creates comfortable, energy efficient indoor environments for commercial and residential applications. For more information, please visit trane.com or tranetechnologies.com.
Trane has a policy of continuous product and product data improvement and reserves the right to change design and specifications without notice. We are committed to using environmentally conscious print practices.
UH-PRC003D-EN 19 Mar 2020
Supersedes UH-PRC003C-EN (May 2019)
©2020 Trane
Trane Electric Unit Heaters Product Catalog – Optimized File
Trane Electric Unit Heaters Product Catalog – Original File
















