Economizer Automatic Round Damper (EARD)

This is a legacy product document supported by Resideo. This product is no longer manufactured.
APPLICATION
The EARD is a round damper with a 24 Vac powered-open/ spring-closed motor. It is used for fresh air intake for ventilation or for combustion makeup air.
INSTALLATION INSTRUCTIONS
FEATURES
- Adjustable damper position range stops.
- Single-blade damper.
- Shipped as power open/spring return closed damper.
- Galvanized steel.
- Quiet operation.
- Can be field-converted to power closed/spring return open damper.
- Blade closes off tightly against gasket for minimal leakage.
- Rated to operate up to 1 in. wc.
- Male (crimped) and female (uncrimped) ends to connect to any rigid or flexible round duct.
SPECIFICATIONS
IMPORTANT
The specifications given in this publication do not include normal manufacturing tolerances. Therefore, this unit may not exactly match the listed specifications.
Also, this product is tested and calibrated under closely controlled conditions, and some minor differences in performance can be expected if those conditions are changed.
Available Damper Sizes: Available in 5-, 6-, 7-, and 8-in.
diameter sizes.
Motor Electrical Rating: 24 Vac, 60 Hz, 6 VA nominal.
Motor Electrical Connection: 4 in. leadwire.
Motor Nominal Angular Rotation: 90°.

Motor Torque: Minimum 60 in.-oz. (423 milli-newton meters) output torque available when motor is energized and device is at the spring-return initial start position.
Nominal Motor Timing at 77°F (25°C) Ambient: Energized at rated load: 30 seconds.
De-energized (spring return):10 seconds.
Motor Ambient Temperature Rating: 40° to 140°F (5° to 60°C) non-condensing.|
Motor Finish: Zinc-plated steel, anodized aluminum.
Motor Shaft Rotation Direction: Clockwise, when energized and viewed from base or shaft end.
Motor Mounting Means: Direct connection to damper shaft.
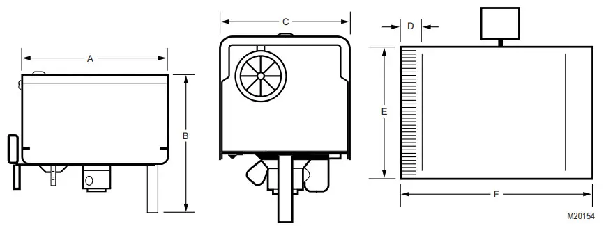
Motor and Damper Dimensions: See Fig. 1.
Fig. 1. Motor dimensions in in. (mm).
| A | B | C | D | E | F | |
| in. | 3-1/2 | 3-3/8 | 2-3/8 | 1-1/2 | * | ** |
| mm | 88 | 85. | 60 | 38 | * | ** |
* Diameter is derived from the part number, i.e. EARD6 has a diameter of 6 in. (152 mm).
**Length is equal to the diameter plus 2 in. (51 mm).
INSTALLATION
Before Installing this Product…
- Read all instructions before installing this product. Failure to follow the instructions can damage the product or cause a hazardous condition.
- Check the ratings given in the instructions and on the product to make sure the product is suitable for your application.
- Installer must be a trained, experienced service technician.
- Install the product in an area that is easily accessible for checkout and service.
- After completing installation, use these instructions to check out the product operation.
ORDERING INFORMATION
When purchasing replacement and modernization products from your TRADELINEfi wholesaler or distributor, refer to the TRADELINEfi Catalog or price sheets for complete ordering number.
If you have additional questions, need further information, or would like to comment on our products or services, please write or phone:
- Your local Honeywell Automation and Control Products Sales Office (check white pages of your phone directory).
- Honeywell Customer Care
1885 Douglas Drive North
Minneapolis, Minnesota 55422-4386
In Canada Honeywell Limited/Honeywell LimitØe, 35 Dynamic Drive, Toronto, Ontario M1V 4Z9.
International Sales and Service Offices in all principal cities of the world. Manufacturing in Australia, Canada, Finland, France, Germany, Japan, Mexico, Netherlands, Spain, Taiwan, United Kingdom, U.S.A.
Installing the Round Damper
- Insert the crimped end of the EARD into the uncrimped end of the rigid round duct and secure with sheet metal screws (not provided). When using flexible duct, slip the duct over the end of the EARD and secure it with duct straps (not provided).
- When installing the damper in a horizontal application, make sure the motor actuator is located on the side or top of the damper. Do not locate the motor on the bottom of the damper. The damper can be mounted in a vertical duct.
- Check and verify that the air flow indicator is pointing in the direction of the air flow duct.
WIRING
CAUTION
Personal Electrical Shock Hazard.
Can cause electrical shock or equipment damage.
Disconnect power before beginning installation.
The damper motor has a 24 Vac, 50/60 cycle, 6 VA rating. The spring-return EARD damper requires 24 Vac to the two motor leads to power the damper. The damper then returns to its normal, closed, position.
NOTE: Multiple EARD can be wired in parallel.
See Fig. 3 for ventilation control using the W8150 and Fig. 4 for use with the VisionPROfi IAQ thermostat. See Fig. 5 for hookup to the W8835 EnviraZone panel.
Replacing a Motor
- Disconnect the motor wiring.
- Loosen the large Allen setscrew located between the faceplate and the motor coupling.
- Remove the motor.
- Ensure damper blade is in closed position with the setscrew pointing toward the closed position on the label. Attach the new motor to the coupling; be sure the standoff on the motor is positioned in the grommet on the faceplate and the setscrew is aligned with the motor shaft hole.
- Tighten the setscrew.
Adjusting a Motor
- When viewed on end, the lower lever is normally positioned to the extreme left and the upper lever is to the extreme right. See Fig. 2.
This position provides complete shutoff when the damper is de-energized and complete opening when the damper is energized. - To prevent complete closure of the damper, loosen (do not remove) the wing nut on the bottom of the motor and move the lower lever to the right until the desired position is reached. Tighten the wing nut.
- To prevent complete opening, loosen (do not remove) the wing nut and move the upper lever to the left until the desired position is reached. Tighten the wing nut.
- If this damper was converted to power-closed, spring-open, reverse the function of the upper and lower levers.

Wiring an EARD to a W8150

Wiring an EARD to a VisionPROfi IAQ Thermostat



Changing EARD Power Closed to Power Open
- Remove power to motor (damper blade in open position).
- Loosen Allen set screw and remove motor.
- Pinch and push grommet (with hole) to remove.
- Push out plastic plug.
- Exchange the positions of the grommet and the plug.
- Manually place damper blade in closed position.
- Place motor on opposite side of damper. (This side should now have the grommet with the hole.)
- Tighten the Allen screw. (Make sure the blade is in the closed position.)
- If using a zoning panel, change the power wires from M1 and M6 to M1 and M4.
Changing EARD Power Open to Power Closed
- Disconnect the motor wiring (damper blade in closed position).
- Loosen Allen set screw and remove motor.
- Pinch and push grommet (with hole) to remove.
- Exchange the positions of the grommet and the plug.
- Manually place damper blade to open position.
- Place motor on opposite side of damper. (This side should now have the grommet with the hole.)
- Tighten the Allen screw. (Make sure the blade is in the open position.)
- If using a zoning panel, change the power wires from M1 and M4 to M1 and M6.
CHECKOUT
To check out the EARD:
- With 24 Vac applied to the motor leads, observe the motor powering the damper to the open position.
- When energized, verify that the actuator connection coupling rotates in a clockwise direction (as viewed from the operator base end) and that the damper shaft turns with the coupling.
- With power removed, observe the damper returning to the normally-closed position.
NOTE: To remove power, disconnect one wire from the motor. - If the motor does not operate smoothly and without hesitation throughout the complete opening and closing stroke, examine the damper and the shaft for free rotation within the duct.
- If the full opening and closing is not achieved, check that the lower adjustment lever is to the extreme left and the upper lever is to the extreme right. See Fig. 2.
ECONOMIZER AUTOMATIC ROUND DAMPER (EARD)

Automation and Control Solutions
Honeywell International Inc.
1985 Douglas Drive North
Golden Valley, MN 55422
customer.honeywell.com
fi U.S. Registered Trademark
‘ 2006 Honeywell International Inc.
68-0266—1 M.S. Rev. 08-06
Honeywell Limited-Honeywell LimitØe
35 Dynamic Drive
Toronto, Ontario M1V 4Z9
Printed in U.S.A. on recycled paper containing at least 10% post-consumer paper fibers.



















