Polhus P4328-28 Karin Garden House 
Product Information
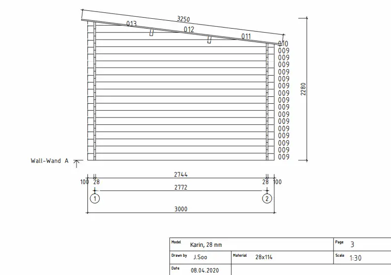
The product is a wooden shed with the model name Karin. It has a dimension of 28mm and comes with various components such as Purlin, Roof board, Eave Board, Facia Board, Storm Brace, Double Door Set, Nail, Ventilation Panel, Wood Bolt set for Storm Brace, Door Glazing Bar, and Wall-Wand.
Specification
The profile length of the shed ranges from 28x57mm to 44x144mm and the total area covered by the shed is 11.57m². The wood used for the shed is 2 8 X 114 material.
Usage Instructions
- Ensure that you have all the components listed in the user manual before starting the assembly process.
- Identify the location where you want to install the shed and make sure it is level and stable.
- Start by assembling the wall-wand components labeled A, B, and C as per the instructions provided in the user manual.
- Once the wall-wand components are assembled, start assembling the purlin, roof board, eave board, facia board, and storm brace components as per instructions provided in the user manual.
- After the above components are assembled, start assembling the double door set and fix it to the location as required.
- Once all the components are assembled, fix the ventilation panel set to allow proper air circulation inside the shed.
- Lastly, fix the door glazing bar to complete the assembly process.
Note: Follow all safety precautions mentioned in the user manual while assembling the shed.























