GE Healthcare 5845893-1EN Starguide Molecular Imaging Installation Guide
DISCLAIMER
GENERAL SPECIFICATIONS
- GE is not responsible for the installation of developers and associated equipment, lighting, cassette trays and protective screens or derivatives not mentioned in the order.
- The final study contains recommendations for the location of GE equipment and associated devices, electrical wiring and room arrangements. When preparing the study, every effort has been made to consider every aspect of the actual equipment expected to be installed.
- The layout of the equipment offered by GE, the dimensions given for the premises, the details provided for the pre-installation work and electrical power supply are given according to the information noted during on-site study and the wishes expressed by the customer.
- The room dimensions used to create the equipment layout may originate from a previous layout and may not be accurate as they may not have been verified on site. GE cannot take any responsibility for errors due to lack of information.
- Dimensions apply to finished surfaces of the room.
- Actual configuration may differ from options presented in some typical views or tables.
- If this set of final drawings has been approved by the customer, any subsequent modification of the site must be subject to further investigation by GE about the feasibility of installing the equipment. Any reservations must be noted.
- The equipment layout indicates the placement and interconnection of the indicated equipment components. There may be local requirements that could impact the placement of these components. It remains the customer’s responsibility to ensure that the site and final equipment placement complies with all applicable local requirements.
- All work required to install GE equipment must be carried out in compliance with the building regulations and the safety standards of legal force in the country concerned.
- These drawings are not to be used for actual construction purposes. The company cannot take responsibility for any damage resulting therefrom.
CUSTOMER RESPONSIBILITIES
- It is the responsibility of the customer to prepare the site in accordance with the specifications stated in the final study. A detailed site readiness checklist is provided by GE. It is the responsibility of the customer to ensure all requirements are fulfilled and that the site conforms to all specifications defined in the checklist and final study. The GE Project Manager of Installation (PMI) will work in cooperation with the customer to follow up and ensure that actions in the checklist are complete, and if necessary, will aid in the rescheduling of the delivery and installation date.
- Prior to installation, a structrual engineer of record must ensure that the floor and ceiling is designed in such a way that the loads of the installed system can be securely borne and transferred. The layout of additional structural elements, dimensioning and the selection of appropriate installation methods are the sole responsibility of the structural engineer. Execution of load bearing structures supporting equipment on the ceiling, floor or walls are the customer’s responsibility.
RADIO-PROTECTION
- Suitable radiological protection must be determined by a qualified radiological physicist in conformation with local regulations. GE does not take responsibility for the specification or provision of radio-protection.
ENVIRONMENT
ALTITUDE
- Operating altitude: from -150 m [-492 ft] to 3000 m [9,843 ft].
MAGNETIC FIELD SPECIFICATIONS
- In order to avoid interference on the system, the static field limits from the surrounding environment must be less than 1 Gauss in both the scan and the operator rooms.
- The ambient static magnetic field in the system location must be less than 1 Gauss.
- The ambient AC magnetic fields must be below 0.01 Gauss peak.
- The system must be installed in an x-ray protected room providing an attenuation of at least 12 db for radio disturbances from 30 MHz to 1 GHz.
MAXIMUM GANTRY AUDIBLE NOISE LEVEL
- The system creates acoustic noise. In compliance with IEC 601-1-1 standard the measured noise (at 1 m [3.3 ft] distance away from the system) is less than 70 db. It is recommended that the wall and ceiling surface is of a sound dampening material to avoid noise reverberation and amplification.
- Take into account that the system includes an intercom communication system connecting the Operator room and the Scan room, to enable the operator to give the patient instructions during the examination.
VIBRATION SPECIFICATIONS
- The system components are sensitive to vibration in the frequency range of 0.5 to 20 Hz, depending on the amplitude of the vibration. It is the customer’s responsibility to contract a vibration consultant or qualified engineer to verify that these specifications are met and implement an appropriate solution.
- To minimize vibrations, the system must be installed on a solid floor, as far as possible from vibration sources (parking lots, roadways, subways, heliports, trains, hallways, elevators, hospital power plants… etc).
CUSTOMER SITE READINESS REQUIREMENTS
- Any deviation from these drawings must be communicated in writing to and reviewed by your local GE healthcare installation project manager prior to making changes.
- Make arrangements for any rigging, special handling, or facility modifications that must be made to deliver the equipment to the installation site. If desired, your local GE healthcare installation project manager can supply a reference list of rigging contractors.
- New construction requires the following;
- Secure area for equipment,
- Power for drills and other test equipment,
- Capability for image analysis,
- Restrooms.
- Provide for refuse removal and disposal (e.g. crates, cartons, packing)
- For CT, MR, PET/CT, and SPECT systems it is required to minimize vibrations within the scan room. It is the customer’s responsibility to contract a vibration consultant/engineer to implement site design modifications to meet the GE vibration specification. Refer to the system preinstallation manual for vibration specifications.
RADIOACTIVE ISOTOPES
USING RADIOACTIVE ISOTOPES
Since the system involves the use of radioactive isotopes, compliance with Nuclear Regulatory Commission regulations, or similar regulatory requirements (depending on the country), must be adhered to and all permissions obtained well in advance. It is recommended that regulatory compliance is arranged early in the site planning process. It is essential that all preparations are completed so that required source materials can be obtained prior to installation, including calibration sources. Take into consideration that these sources may have fairly long delivery lead times, yet may also have a short half life, so that it may not be advisable to store them over long periods of time.
RADIOACTIVE ISOTOPES FOR SYSTEM CALIBRATION
| DESCRIPTION | |
| Basic calibration | Site has license for Tc99m |
| Tc99m will be available during installation | |
| Isotopes to be used at site are available for installation. Note: Specify age and strength | Co57 (Line Source) |

| BY | ITEM | DESCRIPTION | OUTPUT | (lbs) | OUTPUT | (kg) |
| (btu) | (W) | |||||
| A | 1 | Starguide Gantry | 20703 | 7032 | 5700 | 3240 |
| A | 2 | Patient Table | 682 | 1228 | 200 | 557 |
| A | 3 | Power Distribution Unit | 5118 | 815 | 1500 | 370 |
| A | 4 | Operators Console | 8189 | 143 | 2400 | 65 |
| A | 5 | NM Acquisition Station | 256 | 25 | 75 | 11 |
| A | 6 | SmartConsole | 257 | 25 | 75 | 11 |
| A | 7 | Image Generator Console | 510 | 49 | 150 | 22 |
| B | 8 | Main Disconnect Panel | – | 115 | – | 52 |
| A/D | 9 | Partial UPS (14 kVA) | 5122 | 619 | 1501 | 281 |
| A/D | 10 | Service Cabinet (including tools) | – | 287 | – | 130 |
| A/D | 11 | Operators Chair | – | – | – | – |
| A/D | 12 | Injector – ceiling mounted | – | 79 | – | 36 |
| A/D | 13 | Injector Control and Electronics | 320 | 22 | 94 | 10 |
| A/D | 14 | Xeleris workstation | 256 | 25 | 75 | 11 |
| C | 15 | Counter top for equipment |

RADIATION PROTECTION LAYOUT
| SHIELDING REQUIREMENTS SCALING | |
| CHANGED PARAMETER (mAs) | MULTIPLICATION FACTOR(new mAs/100) |
| 80 kV | 0.21 |
| 120 kV | 0.71 |
| 140 kV | 1.00 |
| 16×0.625 LD/8×1.25 LD/4×2.5 LD/Fluoro 5 mm | 0.59 |
| 4×1.25 LD/5 mm (1i)/Fluoro 2.5 mm | 0.40 |
| 1×1.25 mm images/2×0.625 LD/1×1.25 | 0.20/0.10 |
| 4×3.75 mm images | 0.82 |
SHIELDING REQUIREMENTS:
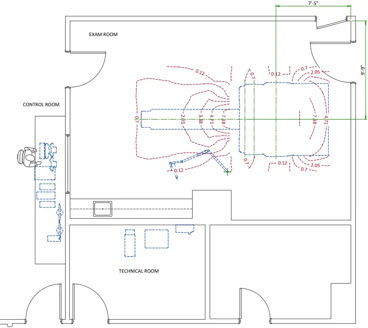
Radiation shielding regulations differ from one country or state to another. It is the customer’s responsibility to ensure that radiation protection and shielding comply with such regulations and requirements during site preparation and system installation and operation. The system produces x-ray radiation and involves the use and storage of radionuclides. Appropriate barriers such as walls, lead-shielded glass, lead shields, etc. can be installed to protect staff from unnecessary exposure to radiation. Patients become significant sources of radioactivity; therefore consideration should be given to maximize the distance between the patient and operator during the uptake and acquisition phases of scan procedures. Scatter-room shielding requirements must be reviewed by a qualified radiological health physicist taking into consideration:
- Scatter radiation levels within the scan room
- Equipment placement
- Weekly projected workloads (#patient/day technique (kvp*ma))
- Materials used for construction of walls, floors, ceiling, doors, and windows
- Access to areas surrounding the Scan Room
- Equipment in areas surrounding the Scan Room (for example: film developer, film storage)
RADIATION SCATTER – BODY PHANTOM


RADIATION SCATTER – HEAD PHANTOM


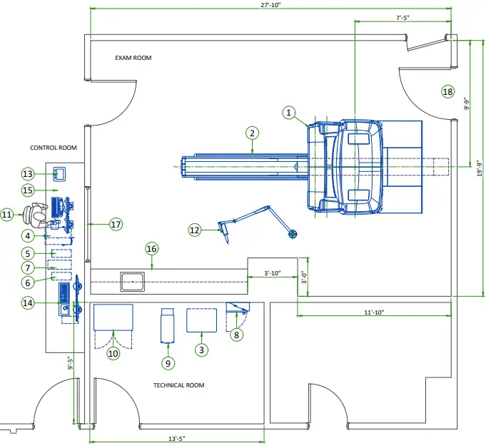
GANTRY WITH PATIENT TABLE


CUSTOMER SUPPLIED TABLE AND CONSOLES


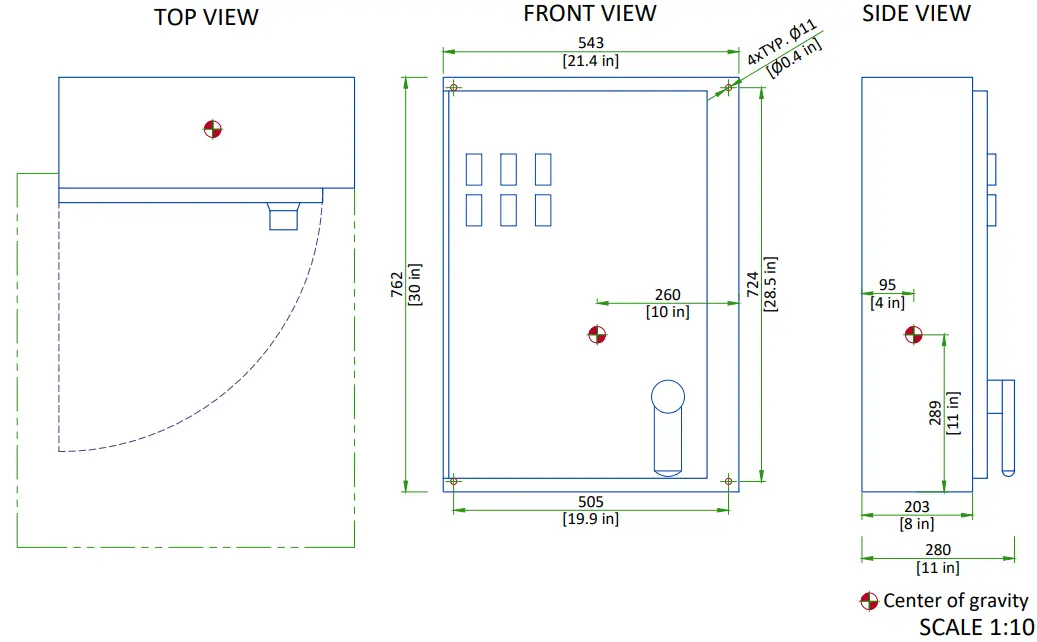
POWER DISTRIBUTION UNIT (PDU)

MAIN DISCONNECT PANEL

UNINTERRUPTIBLE POWER SUPPLY

DELIVERY DETAILS
THE CUSTOMER/CONTRACTOR SHOULD:
- Provide an area adjacent to the installation site for delivery and unloading of the GE equipment.
- Ensure that the dimensions of all doors, corridors, ceiling heights are sufficient to accommodate the movement of GE equipment from the delivery area into the definitive installation room.
- Ensure that access routes for equipment will accommodate the weights of the equipment and any transportation, lifting and rigging equipment.
- Ensure that all necessary arrangements for stopping and unloading on public or private property not belonging to the customer have been made.

STRUCTURAL NOTES
- All units that are wall mounted or wall supported are to be provided with supports where necessary. Wall supports are to be supplied and installed by the customer or his contractors. See plan and detail sheets for suggested locations and mounting hole locations.
- Floor slabs on which equipment is to be installed must be flat and level to specifications.
- Dimensions are to finished surfaces of room.
- For seismic regions ensure supports span three members.
- Customers contractor must provide all penetrations in post tension floors.
- Customers contractor must provide and install any non-standard anchoring. Documents for standard anchoring methods are included with GE equipment drawings for geographic areas that require such documentation.
- Customers contractor must provide and install hardware for “through the floor” anchoring and/or any bracing under access floors. This contractor must also provide floor drilling that cannot be completed because of an obstruction encountered while drilling by the GE installer such as rebar etc.
- It is the customer’s responsibility to perform any floor or wall penetrations that may be required. The customer is also responsible for ensuring that no subsurface utilities (e.g., electrical or any other form of wiring, conduits, piping, duct work or structural supports (i.e. post tension cables or rebar)) will interfere or come in contact with subsurface penetration operations (e.g. drilling and installation of anchors/screws) performed during the installation process. To ensure worker safety, GE installers will perform surface penetration operations only after the customer’s validation and completion of the “GE surface penetration permit

- Floor contact area for discovery gantry and patient table. See detail on sheet S3 for more information.
- Structural supports for fastening the overhead counterpoised suspension. Support should run continuous with no fittings extending below face of channel, be parallel, square, and in the same horizontal plane, above finished ceiling. Ensure mounting surface is installed level or plumb within +/- 1 degree, and is structurally sufficient to maintain a level or plumb condition under 110 lb (50kg) system load and maximum system moment of 4400 in-lb (500n-m). Methods of support that will permit attachment to structural steel or through bolts in concrete construction should be favored. Do not use screw anchors in direct tension. 14″ x 14″ x 1/2″ thick steel plate provided by manufacturer. See detail on structural detail sheets.
- Support Backing, locate as shown
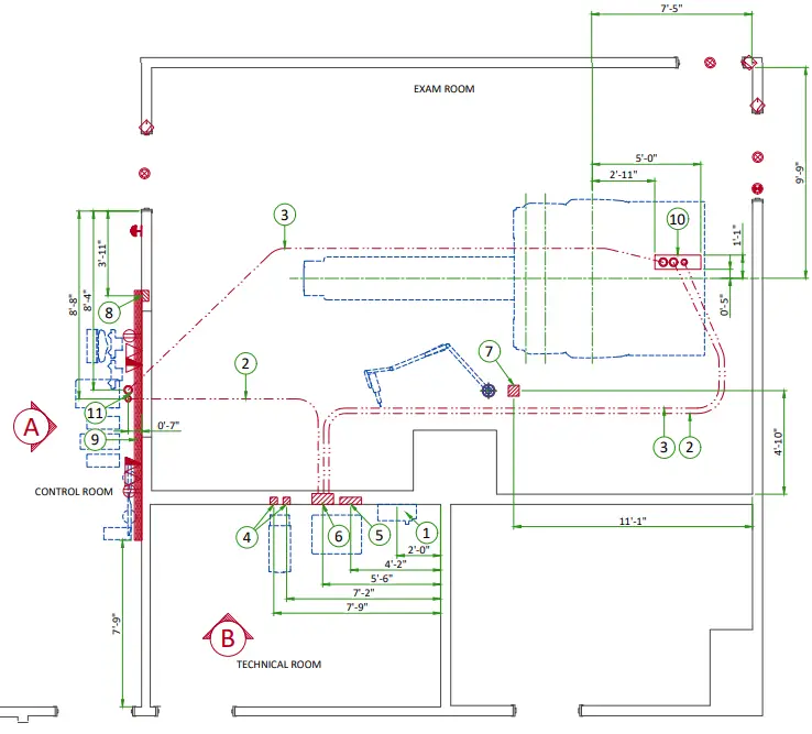
ANCHORING/LOADING DISTRIBUTION TO THE FLOOR

- CT Scan Line
- NM FOV
- Longitudinal Axis
- Cable inlet coring Ø200 [Ø7.9 in] or 200×80 [7.9×3.1 in] deep flush floor duct in this area
- Alternative locations for gantry cables inlet
- CT Gantry transporter anchor points 8×HILTI-HSL-3-M10/20 anchors – Long and short plates
- CT Service Lead Screw brackets 4xHILTI-HSL-3 M10/20
- CT Service Plates 4xHILTI-HSL-3-M10/20
- Table mounting anchor points 9×HILTI-HSL-3-M10/40 anchors
- NM Gantry anchor points
4×HST3-M16x260 160/140 anchors Main anchoring points Alternative anchoring points Center of gravity
FLOOR SPECIFICATIONS

- Floor leveling area: 537 cm x 217 cm [17.6 ft x7.2 ft] (covering the entire planned area of table and gantry surface)
- Slope less than 7 mm [0.28 in] over 1000 mm [39.37 in]
- Flatness: the surface must be smooth, with deviations of no more than 5 mm [0.2 in] over 1500 mm [59 in] in any direction
- Floor surface: a single poured surface
- Floor strength: in order to enable mounting of the system floor anchors, concrete floors must have a minimum cube strength of fc=4350 psi. (30 MPa) at 28 days (curing time) for 25/30 concrete
- Floor thickness: the system’s floor anchors are designed for use only on concrete floors that meet the minimal 140 mm [6.5 in] concrete floor requirements
- It is the customer/contractor responsibility to have appropriate tests performed to determine and measure concrete strength
CUSTOMER/CONTRACTOR SUPPLIED MOUNTING PLATE

SUSPENSION COLUMN LENGTHS AND INSTALLATION DETAILS

PORTEGRA2 COLUMN ASSEMBLY

MOUNTING DETAILS FOR CEILING MONITOR

MOUNTING DETAILS FOR CEILING MONITOR

TEMPERATURE AND HUMIDITY SPECIFICATIONS
| EXAM ROOM | CONTROL ROOM | TECHNICAL ROOM | |||||||
| Temperature | Min | Recommended | Max | Min | Recommended | Max | Min | Recommended | Max |
| 18°C [64°F] | 22°C [72°F] | 26°C [79°F] | 18°C [64°F] | 22°C [72°F] | 26°C [79°F] | 18°C [64°F] | 22°C [72°F] | 26°C [79°F] | |
| Temperature gradient | ≤ 3°C/h [≤ 5°F/h] | ≤ 3°C/h [≤ 5°F/h] | ≤ 3°C/h [≤ 5°F/h] | ||||||
| Relative humidity (1) | 30% to 60% | 30% to 60% | 30% to 60% | ||||||
| Humidity gradient | ≤ 5%/h | ≤ 5%/h | ≤ 5%/h | ||||||
CT STORAGE CONDITIONS
| Temperature | -20°C to +70°C |
| -4°F to +158°F | |
| Temperature gradient | ≤ 3°C/h (≤ 5°F/h) |
| Relative humidity (1) | 20% to 95% |
| Atmospheric pressure | 50kPa to 106kPa |
| Humidity gradient | ≤ 5%/h |
CONNECTIVITY REQUIREMENTS
NETWORK REQUIREMENTS
The system requires the following network connections:
- Broad-Band Network Connection (BBNC) (reuired)
- Local Area Network (LAN (required)
- Wide Area Network (WAN) (optional)
ELECTRICAL NOTES
- All wires specified shall be copper stranded, flexible, thermo-plastic, color coded, cut 10 foot long at outlet boxes, duct termination points or stubbed conduit ends. All conductors, power, signal and ground, must be run in a conduit or duct system. Electrical contractor shall ring out and tag all wires at both ends. Wire runs must be continuous copper stranded and free from splices.
- Aluminum or solid wires are not allowed.
- Wire sizes given are for use of equipment. Larger sizes may be required by local codes.
- It is recommended that all wires be color coded, as required in accordance with national and local electrical codes.
- Conduit sizes shall be verified by the architect, electrical engineer or contractor, in accordance with local or national codes.
- Convenience outlets are not illustrated. Their number and location are to be specified by others. Locate at least one convenience outlet close to the system control, the power distritbution unit and one on each wall of the procedure room. Use hospital approved outlet or equivalent.
- General room illumination is not illustrated. Caution should be taken to avoid excessive heat from overhead spotlights. Damage can occur to ceiling mounting components and wiring if high wattage bulbs are used. Recommend low wattage bulbs no higher than 75 watts and use dimmer controls (except MR). Do not mount lights directly above areas where ceiling mounted accessories will be parked.
- Routing of cable ductwork, conduits, etc., must run direct as possible otherwise may result in the need for greater than standard cable lengths (refer to the interconnection diagram for maximum usable lengths point to point).
- Conduit turns to have large, sweeping bends with minimum radius in accordance with national and local electrical codes.
- A special grounding system is required in all procedure rooms by some national and local codes. It is recommended in areas where patients might be examined or treated under present, future, or emergency conditions. Consult the governing electrical code and confer with appropriate customer administrative personnel to determine the areas requiring this type of grounding system.
- The maximum point to point distances illustrated on this drawing must not be exceeded.
- Physical connection of primary power to GE equipment is to be made by customers electrical contractor with the supervision of a GE representative. The GE representative would be required to identify the physical connection location, and insure proper handling of GE equipment.
- GEHC conducts power audits to verify quality of power being delivered to the system. The customer’s electrical contractor is required to be available to support this activity.

POWER DISTRIBUTION
| Feeder Table | ||||||
| The information below assumes the use of copper wire, rated 75 C and run in steel conduit. All ampacity is determined in accordance with the National Electrical Code (NFPA 70), Table 310-16 (2002). The ampacity of the circuit protection device listed above determines theminimum feeder size, except where total source regulation limits require a larger size. | ||||||
| Feeder length from Power Substation to MDP – ft (m) | Minimum Wire Size, AWG or MCM (mm²)/VAC | |||||
| 380 VAC | 400 VAC | 420 VAC | 440 VAC | 460 VAC | 480 VAC | |
| 50 (15) | 2 (35) | 2 (35) | 3 (30) | 3 (30) | 3 (30) | 3 (30) |
| 100 (30) | 2 (35) | 2 (35) | 3 (30) | 3 (30) | 3 (30) | 3 (30) |
| 150 (46) | 2 (35) | 2 (35) | 3 (30) | 3 (30) | 3 (30) | 3 (30) |
| 200 (61) | 2 (35) | 2 (35) | 3 (30) | 3 (30) | 3 (30) | 3 (30) |
| 250 (76) | 1 (45) | 1 (45) | 2 (35) | 2 (35) | 2 (35) | 3 (30) |
| 300 (91) | 1/0 (55) | 1/0 (55) | 1 (45) | 1 (45) | 2 (35) | 2 (35) |
| 350 (107) | 2/0 (70) | 1/0 (55) | 1/0 (55) | 1 (45) | 1 (45) | 1 (45) |
| 400 (122) | 2/0 (70) | 2/0 (70) | 1/0 (55) | 1/0 (55) | 1/0 (55) | 1 (45) |
| Sub-Feeder length from MDP to PDU – ft (m) | ||||||
| 32 (9.7536) | 2 (35) | 2 (35) | 3 (30) | 3 (30) | 3 (30) | 3 (30) |
| Grounding | ||||||
| Run a dedicated 1/0 [50 mm²] or larger insulated copper ground wire from the power source to the MDP and from MDP to the PDU. Run the ground wire in the same raceway with the three-phase wires. | ||||||
TYPICAL CABLE MANAGEMENT

SCAN ROOM WARNING LIGHT AND DOOR INTERLOCK

INTERCONNECTIONS




















