![]()
PRELIMINARY SPECIFICATION GUIDE

OVERVIEW
Our built-under DishDrawer™ Dishwashers are installed flush under the countertop with the option of a custom kickstrip, ensuring minimal gaps. Designed to match the Fisher & Paykel family of kitchen appliances with recessed handles for a streamlined look. With a combination of clever technology and simple mechanics, this series 7 DishDrawer™Dishwasher ensures greater reliability and better wash performance.
* Energy and water rating to be confirmed
* Noise subject to change
MODELS
Recessed Handle Double DishDrawer 60cm,
Stainless Steel door panel, Front User Interface
DD24DT2NX9
SERIES & STYLE
Series 7
Contemporary
SPECIFICATIONS
| Model No. | DD24DT2NX9 |
| Dimensions | H 34″ – 36 3/8″ W 23 9/16″ D 22 9/16″ |
| Weight | 139lbs |
| Electrical | |
Supply | 110 – 120VAC, 60Hz |
Service | 9.6A |
Outlet | 3-prong grounding type |
| Plumbing | |
Supply | Supplied hose to suit 3/8″ (9mm) male compression fitting |
Pressure | Max. 1 MPa (145psi), min. 0.03 MPa (4.3psi) Max hot water temperature 140ºF/60ºC |
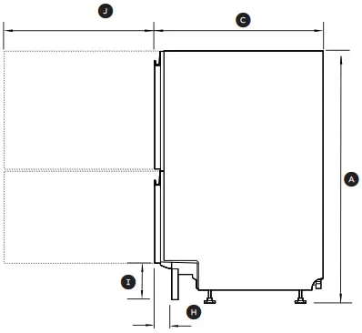
PRODUCT DIMENSIONS

ISO VIEW PROFILE VIEW
| inch | |
| A Overall height* | 34 – 36 3/8 |
| B Overall width | 23 9/16 |
| C Overall depth** | 22 9/16 |
| D Height of upper front panel | 17 3/8 |
| E Height of lower front panel | 12 3/16 |
| F Depth of front panels | 13/16 |
| G Width of front panel | 23 7/16 |
| H Depth of toe kick recess | 1 9/16 – 2 3/16 |
| I Height from floor to front panel base* | 3 15/16 – 6 5/16 |
| J Depth of open drawer | 21 9/16 |
*depending on adjustment of levelling feet
**Including front door panel
DOUBLE DISHDRAWER™ DISHWASHER, TALL

FEATURES
1 Designed to be installed under the countertop, with recessed handles for a seamless look
2 Flush fit with cabinetry with the option to add a custom kickstrip, ensuring minimal gaps
3 Intuitive control panel with capacitive touch controls
4 Each drawer operates independently and holds a true half load for small, fast washing
5 Seven wash programs, as well as additional Quick, Sanitize and Dry+ modifiers
6 Running at a low decibel rating, this dishwasher does the job without making a fuss
7 Flexible racking allows for shelf customisation to suit
8 Sanitize option provides extra protection, killing 99.9% of bacteria in the final rinse
9 Wi-Fi enabled and works with the SmartHQ™ app for remote control and notifications
ACCESSORIES
1 Cutlery basket included


REAR VIEW ISO VIEW
Service outlet at rear extends both sides, hoses and cords can be routed to either or both sides. Units shown in inch.
*depending on adjustment of leveling feet
CAVITY DIMENSIONS: STANDARD INSTALLATION

ISO VIEW
| inch | |
| A Overall height* | min 34 |
| B Overall width | 23 5/8 |
| C Overall depth | min 22 1/16 |
*depending on adjustment of levelling feet
90002730 Date: 11.11.2022 | The models shown in this Preliminary Specification Guide (PSG) may not be available in all markets and are subject to change at any time. Product specifications may vary from those shown. This PSG is superseded and will become obsolete upon launch of the product. This PSG should not be used as installation guidance for any product. Further information is required to safely and correctly install the products featured here. Specific installation guidance will be available with the product on delivery and on our website fisherpaykel.com



















