SKYLINE 2810HR Hole Reinforcer

2810HR Hole Reinforcer Installation Instructions
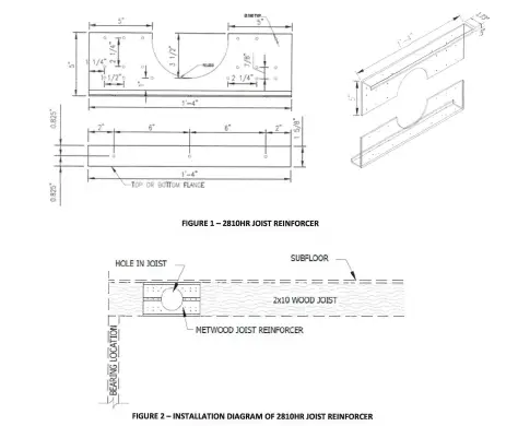
Use the 2810HR Joist Reinforcer to allow placement of up to 6” holes in 2” x 10” wood joists and 4” holes in 2” x 8” joists. The 2810HR Joist Reinforcer has 2 identical pieces which are simultaneously attached to a joist to accommodate a hole in the joist which may have pipes, conduit, wires, etc., already in place.
**CCRR-0279 covers use on 2×10 solid sawn described in Section 6.3. All other species and sizes will require an engineered letter.
Installation Instructions
- Locate position of desired hole in joist, place the 2810HR halves in the orientation shown in the sketch below on the joist, and, using the hole in the 2810HR as a template, mark the opening onto the Keep the bottom half flush with the bottom of the joist and the upper half positioned with the alignment holes (see sketch) aligned. There are 4 alignment holes used on a 2” x 10” and 8” on a 2” x 8”. Take away the 2810HR halves and cut the hole in the joist as marked.
- Place the lower piece onto the bottom of the joist and attach it to the joist below the alignment holes with screws supplied with the 2810HR, leaving the alignment holes open. Drive the screws tight against the metal.
- Place the upper half onto the joist, lapping over the lower half with the alignment holes aligned. Drive screws through alignment holes, through both halves, into the joist, 6 screws in the 2” x 10”, 12 screws in the 2” x 8”. Then drive screws through the remaining holes, into the joist. Total number of screws in a 2” x 10” is 30 and 24 in a 2” x 8”. the finished installation must have a skew in every hole

Installation Limitations
- Hole size: Hole sizes may not exceed 6” diameter in 2×10’s and 4” in 2×8’s
- Number of 2810HR’s: One may be applied per joist.
- Non-compliant Installations: It is often possible to use a 2810HR in conditions no complying with these limitations. Contact
- Skyline Joist Repair for additional product and engineering support
Patents: 5,519,997 | 7,347,031 | Patent Pending
DIVISION: 06 00 00 – WOOD, Plastics, AND COMPOSITES
Section: 06 05 23 – Wood, Plastic, and Composite Fastenings
- REPORT HOLDER:
- METWOOD, INC.
- 819 Naff Road
- Boones Mill, VA 24065
- 540-334-4294
- www.metwood.com
REPORT SUBJECT:
2810HR Joist Reinforcer
SCOPE OF EVALUATION
This Research Report addresses compliance with the following Codes:
- 2021, 2018, 2015 International Building Code® (IBC)
- 2021, 2018, 2015 International Residential Code® (IRC)
NOTE: This report references 2021 Code sections with (2018, 2015] Code sections shown in brackets where they differ.
Met wood Joist Reinforcers have been evaluated for the following properties:
- Structural Properties
- Corrosion Protection
Met wood Joist Reinforcers have been evaluated for the construction in accordance with the IRC and Type VB of the IBC.
STATEMENT OF COMPLIANCE
Met wood Joist Reinforcers comply with the Codes listed in Section 1.1, for the properties stated in Section 1.2 and uses
stated in Section 1.3, when installed as described in this report, including the Conditions of Use stated in Section 6.
DESCRIPTION
- Issue Date: 10-11-2018
- Revision Date: 09-30-2021
- Renewal Date: 10-31-2022
2810HR Conventional Wood Joist Reinforcers consist of 2 cold-formed steel components fabricated from 14 gauge, galvanized (G90) sheet steel with yield strength of 50 ksi.
Subject to the conditions specified within this report, use of the Met wood Joist Reinforcer allows a maximum 6 inch diameter hole to be placed in any location along the length of a nominal 2×10 wood joist except within 12 inches of a support.
PERFORMANCE CHARACTERISTICS
Conventional 2×10 solid sawn lumber installed with a 6 inch diameter hole reinforced with a 2810HR joist reinforcer has equivalent design strength and stiffness to the same framing member with a code permitted hole size of 3 inches, unreinforced. See Section 5.0 for Installation and Section 6.0 for Conditions of Use.
INSTALLATION
Met wood Joist Reinforcers must be installed in accordance with the manufacturer’s published installation instructions, the applicable Code, and this Research Report. A copy of the manufacturer’s instructions must be available on the jobsite during installation
Met wood 2810HR Joist Reinforcer is installed with 30 SFS lntec #12-8 XG (0.133″ shank dia.), 1-1/2″ long, pancake head, carbon steel wood screws in the designated predrilled holes. See Figure 2 for fastening pattern.
Met wood Joist Reinforcers may be installed at any location along the span of the wood joist, with the holes located no less than 12″ of the closest support or edge.
CONDITIONS OF USE
- Installation must comply with this Research Report, the manufacturer’s published installation instructions, and the applicable Code. In the event of a conflict, this report governs.
- Holes in the joists, where the Met wood 2810HR Joist Reinforcer is installed, shall be limited to a maximum size of 6″ in diameter located at the center of the joist height. Holes shall not be located within 12 inches from supports to the center of the hole.
- The Met wood Joist Reinforcers shall be limited to use with nominal 2×10 solid sawn Southern Pine (G=0.50), Spruce-Pine-Fir (G=0.42) or, other graded wood species with a specific gravity (G) no less than 0.42.
- maximum of one Met wood Joist Reinforcer shall be used in a single joist.
- Installation of the Met wood Joist Reinforcer is limited to dry conditions, where the moisture content of the lumber is 19% or less.
- Use with preservative treated lumber is outside the scope of this report.
- The Met wood Joist Reinforcers are manufactured under a quality control program with inspections by Intertek Testing Services NA, Inc.
SUPPORTING EVIDENCE
- Reports of tests in accordance with ASTM D198-15, Standard Test Methods of Static Tests of Lumber in Structural Sizes.
- Engineering Analysis of the fastening demonstrating compliance with the National Design Specification for Wood Construction and Supplement, American Forest & Paper Association, ANSI/AF&PA NDS-2018 [2015], signed and sealed by a professional engineer.
- Documentation of an Intertek approved quality control system for the manufacturing of products recognized in this report.
IDENTIFICATION
The Met wood Joist Reinforcers produced in accordance with this report shall be identified by the following information:
- An imprint on the bracket identifying the name and/or trademark of manufacturer on the product, and text “Intertek CCRR-0279”.
- Packaging with a label with the lntertek Compliance Research Report mark and number (CCRR-0279).
OTHER CODES
This section is not applicable.
CODE COMPLIANCE RESEARCH REPORT USE
- Approval of building products and/or materials can only be granted by a building official having legal authority in the specific jurisdiction where approval is sought.
- Code Compliance Research Reports shall not be used in any manner that implies an endorsement of the product by Intertek.
- Reference to the https://bpdirectory.intertek.com is recommenced to ascertain the current version and status of this report.
This Code Compliance Research Report (“Report” ) is for the exclusive use of Intertek’s Client and is provided pursuant to the agreement between lntertek and its Client. lnterte k1s repo usability and liability a re limited to th9 terms and conditions of the agreement. Intertek assumes no liability to any party, other than to the Client in accordance with the agreement, for any loss, expense or damage occasioned by the use of this Report. Only the Client is authorized to permit copying or distribution of this Report and then only in its entirety, and the Client shall not use the Report in a misleading manner. Client further agrees and
understands that reliance upon the Report is limited to the representations made therein. The Report is not an endorsement or recommendation for use of the subject and/or product described herein. This Report is not the lntertek Listing Report covering the subject product and utilized for lntertek Certification and this Report does not represent authorization for the use of any lntertek certification marks. Any use of the lntertek name or one of its marks for the sale or advertisement of the tested material, product or service must first be approved in writing by lntertek.



















