H1803 Floor Mount Door Stop
Instructions
H1803 Floor Mount Door Stop

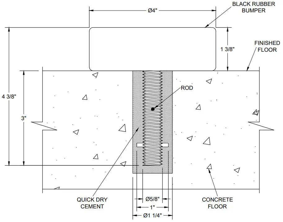
Installing Floor Stop in Concrete Floor
- Determine location of floor stop in floor.
NOTE: WHEN POSSIBLE INSTALL WELL OUT OF FOOT TRAFFIC - Drill 1-1/4” wide hole in concrete floor per the rod depth provided.
- Once drilled, clean out any dust or debris and fill the drilled hole with Wet Quick-Dry Cement approximately 60% full.
- Push floor stop into wet cement all the way down, removing any excess cement that has pushed up from the hole. Verify the floor stop is centered and vertical in the cement.
- Let Dry completely before use. Cement drying time will vary on quick-dry cement instructions.
MANUFACTURING INC.
www.abhmfg.com
E-mail: [email protected]
Architectural Builders Hardware Mfg., Inc.
1222 Ardmore Ave., Itasca,
IL 60143 630.875.9900;
FAX 800.9FAXABH (932.9224)
© 2021 ABH Mfg., Inc
printed in USA
H1803-00 DWG
















