concept IDV1460 Built-In Induction Plate

Thank you for purchasing a Concept product. We wish you much joy with your new appliance every day you use it. Please read the instruction manual carefully before initial use. To refer to this manual any time you need to, we recommend you to keep it in a safe place. And please pass it to any future owner of the appliance.
TECHNICAL SPECIFICATIONS
| TECHNICAL SPECIFICATIONS | |
| Voltage | 220–240 V ~ 50 – 60 Hz |
| Max. input power | 7 200 W |
| Left front cooking zone diameter and input | ø 180 mm, 1 800/2 200 W |
| Left rear cooking zone diameter and input | ø 160 mm, 1 200/1 500 W |
| Right rear cooking zone diameter and input | ø 180 mm, 1 800/2 200 W |
| Right front cooking zone diameter and input | ø 160 mm, 1 200/1 500 W |
| External dimensions (W x D x H) | 590 x 520 x 62 mm |
| Dimensions for installation (W x D x H) | 560 x 490 x 50 mm |
| Weight | 7,8 kg |
The manufacturer reserves the right to make any technical changes, printing errors and differences in the illustration without prior notice.
IMPORTANT SAFETY INFORMATION
Delivery
- Check the package and unit immediately after the delivery for any damage that may have occurred during shipping.
- CAUTION! Some corners and edges of this appliance that will be hidden after installation can be sharp! Take care to avoid injury!
- If the unit is damaged, do not operate it. Contact the supplier as soon as possible.
- Remove all the covering and marketing materials from the appliance before the first use.
- Keep all packaging away from children and dispose of it appropriately.
- This appliance must be installed in accordance with the regulations in force and should only be used in a well-ventilated area. Read the manuals before installing and using the appliance.
Installation
- The appliance is intended for assembly into correct built-in units and workspaces that align to the standards.
- The sealant on the edges of the appliance protects the cut surfaces of the worktop against moisture.
- Use the unit only as described in this instruction manual.
- The appliance has to be disconnected from the power supply during installation.
- Make sure that the parameters on the rating plate are compatible with the electrical ratings of the main power supply. Use only correct electricity mains cable that is earthed.
- This appliance can be used in households and similar areas such as:
- Kitchen areas in shops, offices and other workplaces.
- Appliances used in agriculture.
- Appliances used by guests in hotels and other areas in a hotel environment.
- Appliances used in a Bed and Breakfast environment.
- Make sure the mains cables of other electrical appliances do not touch the hot cooking zones. Otherwise both the insulation of the cables and the hob may be damaged.
- Never touch hot cooking zones. Risk of burns!
- The indicator of residual heat “H” shows that the cooking zones are still hot. Keep children away from the appliance. Risk of serious burns!
- Do not touch the hot surfaces when using the appliance or shortly after.
- Do not operate the appliance with wet or damp hands.
- Do not operate the appliance when it has contact with water.
- If there is a drawer under the appliance, do not keep flammable or inflammable objects, aluminium foil or sprays in it. Risk of fire or explosion!
- Use the appliance out of reach of children and do not allow the children and unauthorised individuals to operate the appliance.
- Do not let children play with the appliance.
- Care should be taken when using the appliance near children.
- Do not use the appliance as a toy.
- This appliance can be used by children aged from 8 years and above and persons with reduced physical, sensory or mental capabilities or lack of experience and knowledge if they have been given supervision or instruction concerning the use of the appliance in a safe way and understand the hazards involved.
- In case of any failure turn off the appliance and disconnect it from the mains outlet or switch off the circuit breaker from the power supply.
- Do not immerse the mains cable in water or any other liquid.
- Check the appliance and the mains cable for damage regularly.
- Never switch on a damaged appliance.
- Make sure that all controls are in the OFF position when the appliance is not in use.
- Do not use cookware with bulging or irregular bottoms or with a smaller diameter than recommended. Otherwise the cooking effectiveness could be reduced.
- If there is water between the cookware bottom and the cooking zone, vapour pressure may arise. The vapour pressure could make the cookware jump up. CAUTION! Risk of injury!
- Make sure that the cooking zones and cookware bottom are dry.
- Do not use cookware with cracked enamel. High temperature occurs in the point of enamel damage, which heats the corresponding spot on the hob. Risk of damage to the hob!
- Do not put cookware on the control panel or the frame or edge of the hob. Risk of damage to the hob!
- Never use plastic or aluminium foil cookware on the appliance.
- Do not lay flammable things on the hob. Risk of fire!
- Do not lay any metal objects on the induction hob. If the appliance has been switched on accidentally, these objects could heat up very quickly and cause burns!
- Do not use the appliance as a work surface or as a storage surface!
- Keep the appliance clean at all times. Food remnants could ignite during operation and cause fire!
- Food such as soups, sauces or beverages may heat up and overflow very quickly during cooking. Proceed carefully, use the appropriate settings and stir the food as often as necessary.
- While deep frying or frying food observe this it at all times. In the case of oil overheating, there is a risk of fire!
- Never heat up grease or oil unattended. Overheated oil or grease may ignite rapidly. Risk of fire!
- Never try to extinguish a fire with water. Immediately cover the flame in the cookware with a lid or a plate. Switch off the appliance and let the cookware cool down.
- Use manufacturer-recommended accessories only.
- Do not use accessories which have a damaged surface, are worn or have other defects.
- Do not use any corrosive cleaning agent for cleaning. With regular maintenance and cleaning you extend the lifetime of the appliance.
- Children aged under 8 years shall not carry out cleaning and user maintenance of the appliance without supervision.
WARNING!
- This appliance complies with the directive of safety and electromagnetic compatibility; nevertheless, individuals with an implanted pacemaker should keep away from the appliance. In some other devices, such as hearing aids, etc., malfunction may occur.
- If the unit is switched on, do not bring magnet sensitive things (e.g. credit cards, USB, hard discs, etc.) near it.
Possible malfunctions
- Only an authorised service technician can install, connect or repair this appliance.
- Disconnect the appliance from the mains supply before maintenance or repair. Turn off the relevant circuit breaker.
- If the mains cable is damaged, contact an authorized service centre.
Damages from failure to follow the manufacturer’s instructions are not covered by the warranty.
PRODUCT DESCRIPTION
- Left rear cooking zone (ø 160 mm)
- Left front cooking zone (ø 180 mm)
- Right rear cooking zone (ø 180 mm)
- Right front cooking zone (ø 160 mm)
- Ceramic glass hob
- Control panel
CONTROL PANEL LAYOUT
- Symbol for activation/deactivation of the child lock
- Heat setting button
- Timer setting button
- Cooking zone designation symbol
- ON/OFF button
- POWERBOOST function button
- Pause function key
EXAMPLES OF COOKING APPLICATION
What does cooking with an induction hob mean?
Cooking on an induction hob is based on a completely different principle than the usual ways of heating. The heat is created directly in the cookware, whilst the cooking zone remains cold. This method of heating has many advantages in comparison with others:
- Time saving during cooking and baking
The cookware is heated directly, not the ceramic glass hob. There are no big heat losses so the effectiveness is higher than other heating methods. - Energy saving
It is established that cooking on an induction hob consumes less electric power than other cooking methods. - Controlled supply of heat and more safety
The cooking zone transfers heat or interrupts its supply immediately after setting the power. As soon as you take the cookware off the cooking zone, heat is interrupted without the need of switching off the cooking zone. After cooking, only residual heat coming from the cookware remains on the cooking zone. Nevertheless, we do not recommend leaving anything on the hob without attendance.
Note:
As to prevent unwanted heating up, e.g. in case of laying metal instruments on the hob, the system activates only if the bottom of the utensil is of a specific dimension or bigger.
COOKING TIPS
The power level settings described below are just examples. The correct setting of power levels depends on several factors, including the cookware used and the amount of food you cook. Experiment with the induction hob, and gradually determine which power level settings are most suitable for you.
Some examples of power level settings:
- a) Level 1–2 can be used for:
- Keeping liquids simmering,
- Moderate and slow heating without the risk of burning,
- Melting butter or chocolate, etc.
- Defrosting,
- Boiling a small quantity of liquid.
- b) Level 3–4 can be used for:
- Intensive boiling,
- Keeping a larger quantity of liquid boiling,
- Cooking rice,
- Stewing.
- c) Level 5–6 can be used for:
- Pancakes.
- d) Level 7–8 can be used for:
- Cooking pasta.
- e) Level 9 can be used for:
- Cooking food requiring fast heating and high temperature (beef steaks, schnitzels, fried potatoes, etc.),
- Boiling water or soup,
- Heating food before switching over to a lower level.
ENERGY SAVING TIPS
Cooking on an induction hob is based on the generation of heat utilising the magnetic properties of the cookware. That is why the cookware material must contain iron. Check this by looking for a symbol for induction cooking on the bottom of the cookware (Fig. 1)or by using a magnet, whether the cookware is magnetic (Fig. 2).
If you do not have the possibility to check the bottom of the cookware with a magnet:
- Put some water into the cookware you want to check.
- If the “U” symbol is not displayed on the control panel, and the water in the cookware is simmering, the cookware is of suitable material for induction cooking.
The following cookware material is unsuitable for an induction hob:
- pure stainless steel,
- aluminium or copper,
- without a magnetic substrate,
- glass, wood, stone,
- porcelain, ceramics, etc.
- Do not use cookware with bulging or irregular bottoms (Fig. 3) or otherwise the cooking effectiveness could be reduced and may result in extension of the cooking time.

- For each cooking zone, use the correct cookware size. The diameter of the cookware bottom should correspond to the size of the cooking zone (Fig. 4).

- Use small cookware for small amount of food. A big and only partially filled up cookware requires a lot of energy.
- Always cover the cookware with a suitable lid. When cooking without a lid, you consume much more energy.
- Always cook food with a small amount of water or fat. You save energy. This way vitamins and minerals will be preserved when cooking vegetables.
- At the beginning of the cooking, set the cooking zone to the highest power level and reduce the cooking zone power level after it is heated up.
Examples of possible damage
- Coarse bottoms of cookware could scratch the ceramic glass plate. Check the cookware bottom regularly. Cookware with coarse bottom can cause scratches of the hob. Always lift these objects up when you have to move them on the cooking surface (Fig. 5), To protect the hob from being scratched.

- Salt, sugar and sand grains (e.g. from cleaning vegetables) can scratch the hob. Do not use the appliance as a work surface or as a storage surface!
- Sugar, as well as food with high sugar content, damages the hob when in contact with it. Immediately remove the overcooked food of this kind using a glass scraper.
CAUTION! The ceramic glass scraper is sharp and can cause injuries! - The following damages do not negatively affect the function or performance of the hob.
Stains
Burnt remains of sugar or food with high sugar content.
Scratches
Scratches caused by grains of salt, sugar or sand or by the coarse cookware bottom.
Colouring
Metallic-gloss colouring caused by the use of unsuitable cleaning agents or abrasions from the cookware bottom.
Wear of the decoration
Wear caused by the use of unsuitable cleaning agents.
- This damage has been caused by inappropriate maintenance of the hob and hence is not subject to warranty. These are not technical problems with the appliance.
OPERATING INSTRUCTIONS
- Areas designed for cooking only – electric cooking zones – are indicated on the hob. The diameters of the cooking zones are derived from the usual dimensions of cookware.
- Only the surface inside the indicated diameter is heated; other surfaces remain relatively cold and can be used as put aside areas.
- The temperature sensor prevents the cooking zone under the ceramic glass plate from overheating.
- The light up “H” symbol on the indicator position of the input power levels signals increased temperature of the cooking zone after being switched off (residual heat). The symbol will go off as soon as the cooking zone has cooled down to such a temperature that there is no risk of burning.
- The inputs of the cooking zones can be regulated within the range of 9 levels, which can be set by pressing the button with respective indicators on the control panel. An acoustic signal sounds each time the button is pressed. The response time for pressing a symbol is 1 second. For this period, it is necessary to hold your finger on the symbol.
Note:
- The touch control is activated by placing a finger on the required symbol on the ceramic glass hob.
- Use the entire fingertip, not just the tip, to operate the touch buttons (Fig. 6).

- Keep the control panel clean and dry. Even a small amount of water on the control panel can make it more difficult to operate the buttons. Do not place anything on the control panel of the hob.
- The sensors do not respond to matte and dark colours (do not use black gloves).
- Make sure not to switch on the appliance accidentally. Risk of serious burns!
Before first use
Prior to first operation of the appliance, you should wipe it with a wet cloth.
Switching on the hob
Touch the ON/OFF symbol (5) for 1 second to activate the hob.
Switching on a cooking zone
- Press and hold the on / off button (5) for 1 second to switch on the hob. After turning on one beep will sound and the display will show “-” or “-”, indicating that the board is in standby mode.
- Press to select the cooking zone you want to use. The indicator next to the button will flash. Then set required power level by repeatedly pressing the symbol “-” (2) or “+” (3) for the selected cooking zone to the value 1 to 9.
Note:
- You can change the desired cooking zone performance at any time during cooking.
- If you do not set any required power level within 1 minute of switching on the induction hob, it will automatically switch off.
- In case the “U” symbol is light up on the control panel (6), it indicates that the cookware’s bottom diameter is too small or it is made of an unsuitable material for induction cooking. Check the cookware bottom, if it is suitable for induction cooking.
- Use a smaller cooking zone or a cookware with a larger diameter of the bottom for cooking, or use cookware that is suitable for induction cooking.
Switching OFF the cooking zone
- Press the “-” symbol on the control panel (6) repeatedly to reduce the power to “0” and switch off the hob.
- By pressing the ON/OFF button (5) you can turn off the hob.
Note:
- After switching off the hob the “H” symbol can be displayed, which indicates that the used cooking zone is still hot and there is a risk of serious burns.
- Symbol “H” disappears, when the used cooking zone cools down to a safe temperature (that is not too hot to touch).
- If the “H” symbol is light up on the control panel, it is possible to use the residual heat e.g. for heating up another cookware.
Switching OFF the hob
- By pressing the ON/OFF button (5) you can turn off the induction hob. All the settings will be reset.
- After switching off the hob the “H”, symbol can be displayed, which indicates that some of the used cooking zones are still hot and there is a risk of serious burns. Never touch these cooking zones!
Note:
- If all the cooking zones will be switched off and within 1 minute the control panel will not be touched the induction hob will switch off automatically.
- For safety reasons, the automatic switch off (cooking time) on individual cooking zones is limited to 8 hours (power level 1–3), 4 hours (power level 4–6) or 2 hours (power level 7–9).
- The induction hob deactivates automatically even when any cooking zone does not detect any cookware after 2 minutes.
ADVANCED FEATURES
POWERBOOST function
- Touch the ON/OFF symbol (5) for 3 seconds to activate the hob.
- By pressing the “+” or “-” (2) sign repeatedly on the control panel you can set the desired power level of the selected cooking zone.
- By pressing the button (6) you activate the POWERBOOST function and the “P.” symbol will be displayed on the control panel, which signals that the selected cooking zone is set to maximum power.
- To cancel the POWERBOOST function, press the button (6) or press the button “-”. The cooking zone will be set to the power level it was set before activating the POWERBOOST function.
Note:
- The POWERBOOST function can be used at any cooking zone.
- If there is no change in the selected cooking zone within 5 minutes of activating the POWERBOOST function, the cooking zone will be set to the power level at which it was set before activating the POWERBOOST function.
- In case the power level of the selected cooking zone was set to “0” before activating the POWERBOOST function, the power level of the cooking zone will be set to “9” within 5 minutes of no activity.
Pause function
Thanks to the Pause function, you can pause cooking without having to switch off the entire hob.
- Press the Pause button (7), all lights will show “11”.
- To cancel this function, press the Pause button (7) again.
Note:
When the board is in pause mode, control of all buttons is disabled, except for the On / Off button (5). If you do not cancel the Pause mode within 10 minutes, the entire board will turn off automatically.
Child lock function
This function prevents unwanted operation of the hob.
- For locking the control panel press the symbol for activation/deactivation of the child lock (3) until the acoustic sound goes off.
- The “Lo” (Lock) symbol will be displayed on the control panel, which symbolises that the control panel is locked. Thus, the control panel of the hob is locked except for the ON/OFF symbol (5), which is deactivated.
- To unlock the control panel, press and hold the child lock activation / deactivation symbol (3) for 3 seconds.
- The “Lo” symbol disappears and the control panel is active again.
Note:
- If the induction hob is switched off while the child lock function is activated, the control panel lock is active even after the induction hob has been switched off. In this case the child lock is activated when the induction hob is switched on and the “Lo” symbol is displayed on the control panel.
- For unlocking the control panel press and hold the symbol for activation/deactivation of the child lock (3) until the acoustic sound goes off. The “Lo” symbol disappears and the control panel is active again.
Setting the cooking time (timer function)
This function can be set only when the cooking zone has not been selected.
- Press the timer setting button (3). The timer will show “10” and “0” will flashes.
- Use the “-” and “+” buttons to set the desired time on the timer display in one-minute steps. To set the time in ten minute push again timer setting button (3) and then will flash desired time on the timer display in ten-minutes steps. Use the “-” and “+” buttons to set the required tens of minutes.
- To cancel the set cooking time, set the value on the timer “00” with the “-” button. “-” appears on the display.
- After the set cooking time has elapsed, the “- -” symbol appears on the display and acoustic sounds will be heard for 30 seconds.
Note:
The minute minder function only works if the hob is in use – ie. it is not necessary to select a specific cooking zone for the setting, but it is necessary to cook on some of the cooking zones.
Otherwise, the board will turn off automatically after 1 minute, so the beep will not sound at the minute. This function is set on the boards for better energy efficiency.
Delayed shut down function of one cooking zone
The delayed shut down function can be used for all the cooking zones of the induction hob. For each cooking zone, different delay times can be set.
- Press the cooking zone selection button (4) for which you want to use the delayed shut down function.
- Press the timer button (3). The display shows the “10” above the buttons and the number „0“ starts flashing starts flashing.
- Use the “-” and “+” buttons to set the desired time on the timer display in one-minute steps. To set the time in ten minute push again timer setting button (6) and then will flash desired time on the timer display in ten-minutes steps. Use the “-” and “+” (2) buttons to set the required tens of minutes.
- After the delayed shut down time is set dot in the lower right corner will flash in addition to the selected power level of the selected cooking zone.
- To cancel the set cooking time, set the value on the timer “00” with the “-” button. The “-” symbol appears on the display.
- After the set delayed shut down time has elapsed, the “- -” symbol appears on the display and the selected cooking zone, for which the delayed shut down was set, will shut down automatically.
Delayed shut down function for multiple cooking zones
To set the delayed shut down for multiple cooking zones, proceed as in setting the delayed shut down of one cooking zone.
- Press the cooking zone selection button (4) for which you want to use the delayed shut down function.
- Press the timer button (3). The display shows the “10” above the buttons and the number „0“ starts flashing starts flashing.
- Use the “-” and “+” buttons to set the desired time on the timer display in one-minute steps. To set the time in ten minute push again timer setting button (6) and then will flash desired time on the timer display in ten-minutes steps. Use the “-” and “+” (2) buttons to set the required tens of minutes.
- After the delayed shut down time is set dot in the lower right corner will flash in addition to the selected power level of the selected cooking zone.
- To cancel the set cooking time, set the value on the timer “00” with the “-” button. The “-” symbol appears on the display.
- After the set delayed shut down time has elapsed, the “- -” symbol appears on the display and the selected cooking zone, for which the delayed shut down was set, will shut down automatically.
- For the respective cooking zone for which the next delay shut down time is set, a dot will flash in the lower right corner next to the set power level.
- After the set delayed shut down time has elapsed, the “- -” symbol appears on the display and the selected cooking zone, for which the delayed shut down was set, will shut down automatically.
Note:
- If the delayed shut down is only set for one cooking zone, only the cooking zone for which the delayed shut down has been set is switched off after the set delay time has elapsed. Other cooking zones will remain on if no delayed shut down is set for them.
- Delayed shut down can be set for a maximum of 99 minutes.
CARE AND CLEANING
The hob itself does not warm up, so no food remains should get burnt on it. Therefore, you do not have to wait until it cools down to clean the hob.
Do not use a steam cleaner or high-pressure cleaner to clean the appliance. Risk of damage to the hob!
- Clean the hob with a protective and preservation agent specially designed for ceramic glass surfaces.
- For removal of food remains and other dirt, apply dirt repellent to the hob, which will facilitate cleaning of the hob surface.
- Use only agents and repellents specially designed for ceramic glass surfaces.
- Never use coarse sponges, abrasive agents or aggressive cleaners (e.g. spray for cleaning ovens) or stain removers.
- Keep the control panel clean! Make sure the panel is always clean and dry.
- Food and water residues negatively affect the operation of the control panel; therefore it may not be fully functional.
- Clean the hob after each cooking session. It will prevent the remains of food from burning during the next cooking session.
- For cleaning the lukewarm hob use a cleaning agent and a paper towel. Then wipe the hob with a damp cloth and wipe it dry using a soft cloth.
- If the hob is cleaned while hot, stains could appear on it.
- Never leave residues of the cleaning agent on the hob; it could stain the glass surface.
- Metallic-gloss colouring appears after the use of unsuitable cleaners or abrasion of the cookware bottom.
- Its removal is very difficult. Use cleaning agents specially designed for ceramic glass surfaces.
- For the removal of food remains and a layer of grease use a special scraper for the glass.
- Clean the hob by placing the scraper at an acute angle and move the blade on the surface. Never use the handle for cleaning the glass surface. Risk of scratches!
- WARNING! The glass scraper is very sharp! Risk of injury! If the edge is damaged, replace it immediately.
- After cleaning, secure the scraper again and keep it out of the reach of children.
INSTALLATION INSTRUCTIONS
- The warranty does not cover damages caused by incorrect installation.
- The responsibility for installing the appliance lies with the buyer, not the manufacturer.
- The manufacturer is not responsible for any injuries or damages that are the result of incorrect installation.
- To ensure the correct function of the appliance, place it in a suitable furniture.
- The appliance should be assembled into correct built-in units and work surfaces that align to the standards and have dimensions shown in Fig. 7.
- The kitchen furniture must be made of sufficiently heat-resistant material, at least 120 °C. The materials and adhesives used must be resistant to heat from the appliance as according to the CSN EN 60335-2-6 standard. Materials and adhesives that do not meet the stated standard may deform or peel-off.
Follow the following instruction during installation:
- Remove all the covering and marketing materials from the appliance before the first use.
- The required dimensions of the built-in space in the worktop made of heat-resistant material of a minimum thickness of 38–40 mm are on Fig. 7.
- Leave min. 50 mm space for the adjacent cabinets on the sides. Leave at least 50 mm free space behind the hob.
- We recommend installing a cook hood above the hob. The cooking hood should be at least 600 mm above the hob – according to the type of hood.
- A separate cabinet without a cooking hood should be at least 760 mm above the hob.
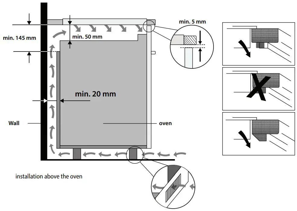
- For sufficient air circulation the appliance needs to be installed as shown in Fig. 8 and the cabinet must be designed so that the air can flow at the bottom – we recommend placing a ventilation grille in the lower plinth. Make sure that the ventilation space of 20 mm, between the drawer, the rear wall and 50 mm between the drawer and the hob, is free and under the worktop there must be a ventilation gap of min. 5mm, ideally if the design of the cabinet allows it, even more (Fig. 8).
- Make sure that the ventilation space of 50 mm, between the hob and the top of the below unit, is free.
- If the appliance is installed above drawers make sure that the space, between the bottom of the appliance and the upper drawer, is 50 mm.
- Position the appliance onto the edge of the worktop and pass the mains cable through the opening so that the plug or terminals remain accessible after installation.
- Push the appliance carefully into place. Make sure not to cause damage to the mains plug or to the mains cable.
- The bottom of the hob base is fitted with a sealant to prevent it from moisture and leakage of liquids. After installation the space between the edge of the hob and the worktops should be min. 3 mm (Fig. 9).
- Secure the hob in the required position from the bottom to the worktop with the supplied retaining clips (Fig. 10).
- Connect the supply cable to the terminal box and then turn on the appropriate circuit breaker on.




Removal
To uninstall the unit, it is important to proceed correctly:
- First, switch off the circuit breaker and unplug the mains cable from the socket.
- Remove the retaining clips.
- Take out the hob and at the same time pull out the mains cable carefully.
Connecting to the mains power
- Only a qualified person can install this appliance!
- Make sure that the parameters on the rating plate are compatible with the electrical ratings of the main power supply.
- Make sure that the parameters on the rating plate are compatible with the mains voltage and the current protection. Otherwise the installed electric circuit could be overloaded, especially in the case of single-phase connection (230 V).
- If the hob is connected to the mains power in a single phase (see Connection of the terminal box of the appliance), all cooking zones cannot be used for maximum performance. The hob automatically reduces the power consumption of individual cooking zones to avoid overloading of the circuit breaker.
Connecting to the mains power
- Only a qualified person can install this appliance!
- Make sure that the parameters on the rating plate are compatible with the electrical ratings of the main power supply.
- Make sure that the parameters on the rating plate are compatible with the mains voltage and the current protection. Otherwise the installed electric circuit could be overloaded, especially in the case of single-phase connection (230 V).
- If the hob is connected to the mains power in a single phase (see Connection of the terminal box of the appliance), all cooking zones cannot be used for maximum performance. The hob automatically reduces the power consumption of individual cooking zones to avoid overloading of the circuit breaker.
We recommend using a self-contained electrical circuit to connect to the mains. - Use solely electric power distribution with PE protective conductor.
- Do not use multi-plug adapters, connectors and extension cables. Risk of fire due to overheating!
- Make sure that there is access to the mains plug or the circuit breaker after the installation.
- The electrical safety of the appliance can only be guaranteed if the protective terminal of the unit is connected to the protective conductor of the mains.
- The manufacturer is not responsible for any injuries or damages that are the result of incorrect or missing protective installation.
- Make sure the mains cable or plug does not touch the hot appliance or hot cookware, to prevent it from becoming deformed and excessively bent.
- In the event of disconnecting the hob from the mains power, all set parameters will be reset and the hob control panel will be locked.
Connection of the terminal box of the appliance
- The hob is already supplied with a mains cable. In case it is necessary to replace the mains cable due to damage, Fig. 11 or Fig. 12, shows the wiring of the terminal box.
- The mains cable must be replaced with the same type of cable with the corresponding wire cross section.
- After connecting the new mains cable to the terminal box, secure the cable from being pulled out from the terminal box.
- Follow the same procedure as described above when installing the appliance into the worktop cut-out and connecting it to the mains power.
TROUBLESHOOTING
| Problem | Possible cause | Remedy |
| When the hob is switched on the household wiring protection reacts. | The current load is too high for household wiring. | Check that the input of all switched-on units does not exceed the maximum load of the household wiring. Make sure that the parameters on the rating plate are compatible with the mains voltage and the current protection. |
| After pressing the ON/OFF button of the hob, the hob turns on, but the display for each cooking zone does not work | Power electronics malfunction | Replacement of power electronics required. Contact an authorized service centre. |
| Control panel electronics malfunction | Replacement of control panel electronics required. Contact an authorized service centre. | |
|
After setting the power level of the cooking zone, the cooking zone does not work | Overheating of the cooking zone | The temperature of the cooking zone is too high. Check that the cooling fan located at the bottom of the hob functions well. If the fan is working, contact an authorised service centre. |
| Cooling fan malfunction | Cooling fan replacement required. Contact an authorized service centre. | |
| Power electronics malfunction | Replacement of power electronics required. Contact an authorized service centre. | |
| The cooking zone is hot but the control panel does not work | Control panel or power electronics malfunction | Press the ON/OFF button on the hob again and re-set the cooking zones. |
| The hob switches off during cooking | The ON/OFF button has been pressed accidentally | Press the ON/OFF button on the hob again and re-set the cooking zones. |
|
After the cookware is placed on the cooking zone, the „U“ symbol is displayed (and the cooking zone does not heat up). | The cookware used is not suitable for induction cooking | Check that the cookware used is suitable for induction cooking – by placing a magnet to the cookware bottom. |
| The diameter of the cookware bottom is smaller than the cooking zone | Check that the cookware bottom is not smaller than the cooking zone. | |
|
Overheating of the cookware | Allow the cookware to cool down. Then place it on the cooking zone and continue cooking. If the “U” symbol is still on the display of the cooking zone even after switching the cooking zone on and off again, turn off the hob completely, wait for 20 seconds and turn on the hob again. | |
| Main electronics malfunction | Main electronics replacement required. Contact an authorized service centre. | |
| Cracks or tears in the ceramic glass hob | Cookware has been dropped on the hob, which damaged the ceramic glass hob. | Disconnect the appliance immediately from the power supply by pressing the ON/OFF button or the appropriate circuit breaker. Contact an authorized service centre. |
Operation sounds of the appliance
The induction heating technology is based on specific parameters of metal materials, when under the influence of high frequency waves. Under special circumstances these vibrations can manifest themselves by weak acoustic sounds, which do not signal any fault. These include:
| Deep hum such as at a transformer | This sound accompanies cooking at high power level. It is caused by the big amount of energy which is transferred from the cooking zone to the cookware. This sound will disappear or weaken as soon as the cooking zone is switched to lower level. |
| Beeping | This sound usually appears in case of an empty cookware. It will disappear when you pour water or put food in the cookware. |
| High beeping sounds | These sounds appear mainly with cookware consisting of several layers of various materials, when they are in operation at the maximum heating power. This effect does not influence the result of cooking. The beeping disappears or weakens as soon as the power is reduced. |
| Cracking | This sound appears with cookware consisting of several layers of various materials. It is caused by vibrations on the connecting areas of respective layers. The sound depends on the cookware. It may change depending on the quantity and type of food being cooked in the cookware. |
| Sound of the fan | For good operation of the electronics it is necessary that it works at a permanently controlled temperature. That is why the hob is equipped with a fan which can be set to various power levels according to the measured temperature. The fan may work even after the hob has been switched off, if the measured temperature is still too high. |
ERROR MESSAGE
| Code | Problem description | Possible cause |
| E1 | Signal lost (PCB failure) | Please contact after sales service. |
| E2/E3 | Abnormal high/Low input voltage | Stop cooking and wait until input voltage back to normal. If not please contact service center. |
| E4/E5/E6 | Thermistor failure. | Please contact service center to repair. |
| E7 | Abnormal high temperature (dry burning) | Cut off power, wait for 30min and switch on. |
| If still not working, please contact service. | ||
| E8/E9 | Failure of IGBT sensor | Please contact service center to repair. |
| E0 | IGBT Overheat | Check if the fan is still working. If not please contact service center to repair. |
| EE | Display PCB failure. | Please contact service center. |
ENVIRONMENTAL CONCERNS
- Packaging materials and old appliances should be recycled.
- Packaging materials may be disposed of as sorted waste.
- Dispose of the plastic bags made of polyethylene (PE) as sorted waste.
Recycling of the appliance at the end of its lifespan:
This appliance conforms the European Union Directive 2012/19/EU on Waste Electrical and Electronic Equipment (WEEE Directive). The symbol on the product or on its packaging indicates that this product may not be treated as household waste. Instead it should be taken to the appropriate collection point for the recycling of electrical and electronic equipment. By ensuring this product is disposed of correctly, you will help prevent potential negative consequences for the environment and human health, which could otherwise be caused by inappropriate waste handling of this product. The disposal of such material must be performed in accordance to the regulations of waste disposal. For more detailed information about recycling of this product, please contact your local council, your household waste disposal service or the shop where you purchased the product.
Werners VT Ltd.
Piedrujas street 5a, Riga, Latvia
Tel. +371 67021021
EMAIL: [email protected], www.verners.lv





























