Electrolux ECT9520G 90cm Chimney Extractor Hood User Manual
WE’RE THINKING OF YOU
Thank you for purchasing an Electrolux appliance. You’ve chosen a product that brings with it decades of professional experience and innovation. Ingenious and stylish, it has been designed with you in mind. So whenever you use it, you can be safe in the knowledge that you’ll get great results every time. Welcome to Electrolux.
BEFORE USING YOUR APPLIANCE
Before you use the rangehood, we recommend that you read through the whole user manual which provides the description of the rangehood and its functions. To avoid the risks that are always present when you use an electrical appliance, it is important that the rangehood is installed correctly and that you read the safety instructions carefully to avoid misuse and hazards.
For future reference, please store this booklet in a safe place.
CONDITIONS OF USE
This appliance is intended to be used in household and similar applications such as
- Staff kitchen areas in shops, offices and other working environments • Farm houses.
- By clients in hotels, motels and other residential type environments
- Bed and breakfast type environments
BEFORE YOU CALL
Please ensure you read the instruction manual fully before you call for service, or a full service fee could be applicable.
RECORD MODEL AND SERIAL NUMBER HERE:
Model: ________________________
Serial NO: ________________________
LEGEND
WARNING!
This symbol indicates information concerning your personal safety
CAUTIONS!
This symbol indicates information on how to avoid damaging the rangehood.
IMPORTANT!
This symbol indicates tips and information about use of the rangehood.
ENVIRONMENT!
This symbol indicates tips and information about economical and ecological use of the rangehood.
RoHS Compliant.
If at any time in future you need to dispose of this product please do Not dispose of this product with household waste, please send this product to collecting points where available
This product is RoHS compliant.
SAFETY INFORMATION
This manual explains the proper use of your new Electrolux canopy rangehood. Please read this manual carefully before using the product. This manual should be kept in a safe place for handy reference.
This rangehood is a domestic appliance which has been manufactured and tested to comply with International Standard IEC 60335.2.31.
Read the following carefully to avoid damage or injury.
This symbol indicates never to do this.
This symbol indicates always do this
WARNING!
Follow these instructions carefully to avoid an electric shock or fire.
Young children should be supervised to ensure they do not play with the rangehood.
This appliance is not intended for use by persons (including children) with reduced physical, sensory or mental capabilities, or lack of experience and knowledge, unless they have been given supervision or instruction concerning the use of the appliance bya person responsible for their safety.
Ensure the rangehood is switched off before carrying out maintenance, to avoid any possibility of electric shock.
Never carry out flambe cooking under the rangehood.
This rangehood is not recommended for barbecues.
This rangehood cannot be installed for external use.
Grease filters must be removed every four weeks (maximum) for cleaning to reduce the risk of fire.
The exhaust from the rangehood must not be discharged into any heating flue, which may carry combustion products from other sources.(Fig.1)
The exhaust air must not be discharged into a wall cavity, unless the cavity if designed for the purpose.
There must be adequate ventilation of the room when the range hood is used at the same time as appliances burning gas or other fuels.
There must be adequate ventilation of the room when the rangehood is used at the same time as appliances burning gas or other fuels.
Always cover lit gas burners with pots or pans when rangehood is in use.
Always switch off gas burners before you remove pots or pans.
Do not leave lit gas burners exposed due to the risk of fire. (Fig.2)
Electrical connection
Check that the mains voltage matches with the voltage on the data plate inside the rangehood. Check that the installation complies with standards of local building, gas and electrical authorities. Before connecting to the mains supply ensure that the mains voltage corresponds to the voltage on the rating plate inside the rangehood.lf the supply cord is damaged, it must be replaced by the manufacturer or its service agent or similarly qualified person in order to avoid a hazard.
Safety warnings For the installer
When installing the rangehood, make sure you adhere to the minimum and maximum distances from the rangehood base to the hob surface.
Exhaust flue installation: The following rules must be strictly followed to obtain optimal air extraction.
- Keep exhaust flue short and straight
- Do not reduce the size or restrict exhaust flue.
- Keep bends in the exhaust flue to a minimum.
- When using flexible flue always install duct with helix pulled taut to minimise pressure loss.
- Failure to observe these basic instructions will drastically reduce the performance and increase the noise levels of the range hood.
Exhaust air must not be discharged into a wall cavity, unless the cavity is designed for the purpose. The exhaust from the cooker hood must not be discharged into any heating flue, which may carry combustion products from other sources.
NOTE: Some installations may require the telescopic exhaust cover to be cut to length. Cut with sharp tin snips or a fine-tooth hack saw blade, taking are not to distort or dent the exhaust cover.
Product Description

Components
Ref | Qty | Product Components |
| 1 | 1 pc | Hood body, complete with: controls, lights, blower |
| 2 | 1 set | Flue Cover sections |
| 2.1 | 1 pc | Inner Flue Cover |
| 2.2 | 1 pc | Outer Flue Cover |
| 3 | 1 pc | Aluminum Exhaust Transition Duct |
| 4 | 2pcs | Charcoal filter (optional) |
| 5 | 1 pc | Flue Cover Mounting Bracket |
| 6 | 1s et | Damper (flaps) |
| 7 | 1/2/3 pcs | Aluminium mesh filter (1 Pc for ECT9520G & ECT652OG 2 pcs for ECT6740S 3 pcs for ECT9740S &ECT9623X) |
| 8. a | 8pcs | Mounting Screws (ST4.8 X 40 MM) |
| 8. b | 2pcs | Flue cover Mounting Bracket Screws ( M 4 X 6 MM) |
| 8. c | 4pcs | Recirculating T-pieces screws |
| 9 | 8 pc s | Drywall Anchors |
| 10 | 2pcs | Duct Fixing tape |
| 11 | 1 set | Recirculating T-pieces (As accessory for ECT9623X) |
| 12 | 2pcs | T-pieces sponge (As accessory for ECT9623X) |
| 13 | 1 pc | Sponge strip |
| 14 | 1 pc | Instruction manual |
Dimensions


RANGEHOOD INSATLLATION
WARNING!
Refer to “Safety information” chapter
BEFORE INSTALLATION
Before the installation of the appliance, record the information below from the rating plate. The rating plate is on the bottom of the appliance casing.
Model: __________________
PNC: __________________
Serial number: __________________
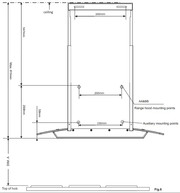
- Using a spirit level mark a vertical centre line on the wall where the cooker hood is to be positioned, and a horizontal line at the cooker hood base position (refer diagram below).
NOTE. The height of the underside of the hood body must be a minimum of 650mm * to a maximum height of 800mm
* If the instructions of the hob specify a greater distance than the minimum above, then that shall be the minimum height for installation. - Mark the location for flue cover wall mounting brackets and cooker hood mounting points above the hood base as the reference point (Fig.6).

Cooktop type
DIM.A
minimum
* maximum Gas 650mm 800mm
Electric
650mm 800mm
WARNING!
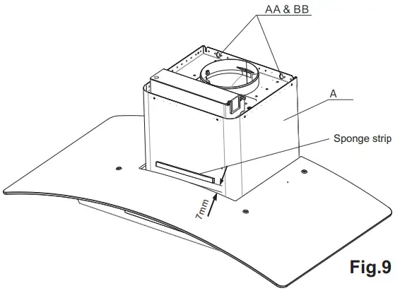
Failure to install the screws or fixing device in accordance with these instructions may result in electrical hazards. - Install the flue cover mounting bracket with screws to the wall as marked (Fig.7). Please mounted recirculating T pieces together with flue cover bracket if recirculating mode is used,(Fig.12)

- Using a 9mm drill bit, enlarge the pilot holes and insert the plastic wall anchors (BB) into the wall along the line as reference point. Insert screws and leave a 5mm (Fig.8) gap between the wall and the back of the screw head to slide the range hood into place. Ensure the screws and anchors (AA and BB) are parallel with the horizontal line.

- Hook the hood body(A) onto the screws( AA and BB) mounted onto the wall and securely tighten the screws( AA and BB) to secure the hood body(A) on the wall. Peel off the backing and stick sponge strip to the front side of the fan housing as shown (Fig.9)

- Install two additional hood body mounting screws (AA) into the auxiliary mounting holes to secure the hood body (A) in place.

Depending on the preferred installation/ducting mode follow step 7a or 7b below. - a. Recirculating mode (Fig.12)
According to the flue cover dimension, Fix the T-piece by 4 screws supplied. adhesive two sponge to the outlet of T-piece as shown (Fig.12).
Using the centre line, secure the recirculating T-piece and Chimney mounting bracket to the wall. Install flexible pipe between T-piece and flue transition duct. Use fixing ring to secure flexible pipe to T-Piece and transition duct (Fig.14).
NOTE: When installed in recirculating mode, it is recommended to use a carbon filter to prevent odours being emitted back into the room.- b. Ducted mode (Fig.13)
Fit the flexible flue to the duct transition (Fig.13) . Use fixing tape to secure flexible pipe to the duct transition.
NOTE: For ducted mode, we recommend extanding flue pipe through the roof to external” roof cap” to vent exhaust externally. We do not recommend venting into ceiling cavity.
- b. Ducted mode (Fig.13)
- Electrical connection
- Electrical wring must be done by a qualified person(s) in accordance with all applicable codes and standards. Turn off electrical power at service entrance before wiring.
- If the power cord is damaged, it must be replaced by manufacturer, its agent or similarly qualified persons in order to avoid hazard.
- Do not use the plug and an extension cord other than the ones initially supplied with the hoods.
- The earthing of this hood is compulsory. Do not remove the ground prong of the plug.
- Installation of telescopic flue covers
Separate the flue covers section. Carefully reassemble the upper and lower flue covers sections by sliding the inner into the outer flue cover. Carefully lower the assembled upper and lower flue covers onto the top of cooker hood body. Fix upper flue cover to the mounting bracket with screws supplied. Ensure that the upper section is extended (Fig.15) .
NOTE: Carefully remove the plastic protective coating, if present, from the flue covers. Pay particular attention when removing protective plastic coating from decals.
Your Electrolux rangehood is now ready to use.
USING THE RANGEHOOD

Standby mode
When connecting the rangehood to the power supply for the first time or after power is returned after power outage all symbols on the control panel will light up and a “beep” will sound once. Following this, the control panel goes to standby mode and the rangehood will be ready for use.
Turning on hood
When the rangehood is in standby mode, user can either press the
or
button to turn on the fan or light individually. The default factory level is 2, following that, the rangehood remembers the last used setting and will start at that level when the user presses the fan.
Fan — select speed to suit cooking conditions
Fan on/off )- 1 (
) light frying/boiling. - 2 (
) frying/work cooking/heavy boiling. - 3 (
) grilling, intensive frying and work cooking
Light
MAINTENANCE AND CLEANING
CAUTION!
- Before maintenance or cleaning is carried out, the rangehood should be disconnected from the main power supply. Ensure that the rangehood is switched off at the wall socket and the plug removed if fitted.
- External surface are susceptible to scratches and abrasions, so please follow the cleaning instructions to ensure the best possible result is achieved without damage.
- These instructions must be followed to avoid a fire risk.
Stainless steel surface
Clean stainless steel surface using non-abrasive cleaning products that specifically for use on stainless steel. To ensure best results also use an even pressure and follow the grain of the stainless steel. Use of a soft cloth reduces the risk of scratching. If the cloth is wet ensure that a dry soft cloth is used to wipe down the surface again reducing the risk of any surface rust appearing.
Control panel surface
The control panel can be cleaned using warm soapy water. Ensure the cloth is well wrung before cleaning. Use a dry soft cloth to remove any excess moisture left after cleaning.
Removing the metal grease filters
Push the grease filter towards the left side of the unit and then pull it down.
Hand washing
The mesh filters can be cleaned by hand in warm soapy water. Soak in warm water and some washing up liquid. For stubborn grease stains use a soft nylon brush to help remove these stains. After cleaning ensure that the filters are completely dry before refitting.
Dishwasher
Place grease filters in the dishwasher. Select the most powerful washing grogram and highest temperature, at least 65. Refit the grease filters when they are dry. When washing the metal grease filter in the dishwasher a slight discolouration of the filter can be occur, this does not have any impact on its performance.
Changing the lamps
Lamps are long life LED lamps and should not require service. If there is an issue with lamp please contact the Service Center, Service contact details.
Charcoal filter
- The charcoal filter should only be used if you want to use the cooker hood in the recirculating mode.
- This filter cannot be cleaned or re-used end as general rule, the activated charcoal filter should be changed one every 3 months.
To fit the filter, lock it until stop click is heard Pulling out each latch, tilt the filter down and remove.
- Always specify the cooker hood model code number and serial number when ordering replacement filters. This information is shown on the registration plate located on the inside of this unit.
- Replacement charcoal filters can be ordered from your local Spare Parts centre, contact details.
TroubleShooting
Problem | Remedy |
| The cooker hood will not start | Check that the hood is connected to an electrical supply Check that a fan speed has been selected |
| The Rangehood is not working | Check that the fan speed is set high enough for the task The grease filters are clean The kitchen is adequately vented to allow the entry of fresh air If set up for recirculation, check that the charcoal filter is still effective If set up for extraction, check that the duct and outlets are not blocked. Do not operate cooktop without pots/pans Do not flambe under cooktop |
| The rangehood has switched off during operation | The safety cut-out device has been tripped-turn off the hob and wait for the device to reset (except ECT9623X). instructions the motor will cut out frequently which will damage the hood. |
If you have completed all the above checks and are still experiencing difficulty, please contact your local Electrolux Service Centre.
Note: This product is fitted with a safety cutout device.
- If the rangehood is installed too close to the cooker top, flambe cooking, operating the cooktop without cooking utensils and blocked filters may activate the safety cutout device. If the hood stops during operation, correct the faults and allow time for the safety cutout device to reset. Then the rangehood will function correctly.
- Do not operate cooktop without pots/pans
- Do not flambe under cooktop
CONSUMER CARE CENTER
Thailand
Consumer Care Tel: (+66 2) 725 9000
Electrolux Thailand Co., Ltd.
Electrolux Building 14th Floor
1910 New Phetchaburi Road,
Bangkapi, Huai Khwang, Bangkok 10310
Office Tel: (+66 2) 7259100
Office Fax: (+66 2) 7259299
Email: [email protected]
Singapore
Consumer Care Center Tel: (+65) 6727 3699
Electrolux S.E.A. Pte Ltd.
351 Braddell Road #01-04,
351 On Braddell
Singapore 579713
Email: [email protected]
Indonesia
Hotline service: 08041119999
PT. Electrolux Indonesia
Electrolux Building
JI.Abdul Muis No.34, Petojo Selatan,
Gambir Jakarta Pusat 10160
Email: [email protected]
SMS & WA : 0812.8088.8863
Philippines
Consumer Care Center Toll Free:
1-800-10-845-CARE(2273)
Consumer Care Hotline:(+63 2)845-CARE(2273)
Electrolux Philippines,Inc.
Unit B 12F Cyber Sigma Bldg, Lawton Avenue,
McKinley West,Taguig, Philippines 1634
Trunkline:+63 2 737-4757
Website: www.electrolux.com.ph
Email: [email protected]
Vietnam
Consumer Care Center Toll Free 1800-58-88-99
Tel: (+84 28) 39105465
Electrolux Vietnam Ltd. Unit 1 &2, 1OF Sofic Tower, #10 Mai Chi Tho Street, Thu Thiem Ward, Thu Duc City, Ho Chi Minh City, Vietnam
HONG KONG
SERVICE HOTLINE: (+852) 3193 9888
DCH ELECTRICAL APPLIANCES
SERVICE CENTRE
4/F, DCH BUILDING, 20 KAI CHEUNG ROAD,
KOWLOON BAY, HONG KONG
EMAIL: [email protected]
WEBSITE: www.electrolux.com.hk
Malaysia
Consumer Care Center Tel: 1300-88-11-22
Electrolux Home Appliances Sdn. Bhd.
Corporate Office Address: Unit T2-7, 7th Floor,
Tower 2, PJ33, No. 3, Jalan Semangat, Seksyen 13,46200
Petaling Jaya, Selangor.
Office Tel : (+60 3) 7843 5999
Office Fax : (+60 3) 7955 5511
Consumer Care Center Address: Lot C6, No. 28, Jalan 15/22, Taman Perindustrian Tiong Nam, 40200 Shah Alam, Selangor
Consumer Care Center Fax : (+60 3) 5524 2521
Email: [email protected]
www.electrolux.com
The Thoughtful Design Innovator.
Do you remember the last time you opened a gift that made you say, “Oh! How did you know? That’s exactly what I wanted!” That’s the kind of feeling that we at Electrolux seek to evoke in everyone who chooses or uses one of our products. We devote time, knowledge, and a great deal of thought to anticipating and creating the kind of appliances that our customers really need and want.
This kind of thoughtful care means innovating with insight. Not design for design’s sake, but design for the user’s sake. For us, thoughtful design means making appliances easier to use and tasks more enjoyable to perform, freeing our customers to experience the ultimate 21st century luxury: ease of mind. Our aim is to make this ease of mind more available to more people in more parts of their everyday lives, all over the world.
This kind of thoughtful care means innovating with insight. Not design for design’s sake, but design for the user’s sake. For us, thoughtful design means making appliances easier to use and tasks more enjoyable to perform, freeing our customers to experience the ultimate 21st century luxury: ease of mind. Our aim is to make this ease of mind more available to more people in more parts of their everyday lives, all over the world.
The “Thinking of you” promise from Electrolux goes beyond meeting the needs of today’s consumers. It also means we’re committed to making appliances safe for the environment now and for future generations.
Electrolux. Thinking of you.
Share more of our thinking at www.electrolux.com





























