NOTIFIER 411UDAC Circuit Board and Transformer Installation Guide
Installation Drawing
The 411UDAC cabinet may be either semi-flush or surface mounted. The door is removable during the installation period by opening and lifting off the hinges. The cabinet mounts using two key slots and two additional 0.25″ diameter holes located in the backbox. The keyslots are located at the top of the backbox and the two securing holes at the bottom.
Carefully unpack the system and check for shipping damage. Mount the cabinet in a clean, dry, vibration-free area where extreme temperatures are not encountered. The area should be readily accessible with sufficient room to easily install and maintain the panel. Locate the top of the cabinet approximately five feet above the floor with the hinge mounting on the left. Determine the number of conductors required for the devices to be installed. Sufficient knockouts are provided for wiring convenience. Select the appropriate knockout(s) and pull the required conductors into the box. Note that there are no knockouts on the left (hinged) side of the cabinet. All wiring should be in accordance with the National and/or Local codes for fire alarm systems.
Backbox Mounting
- Open the door and lift the door off the pin hinges
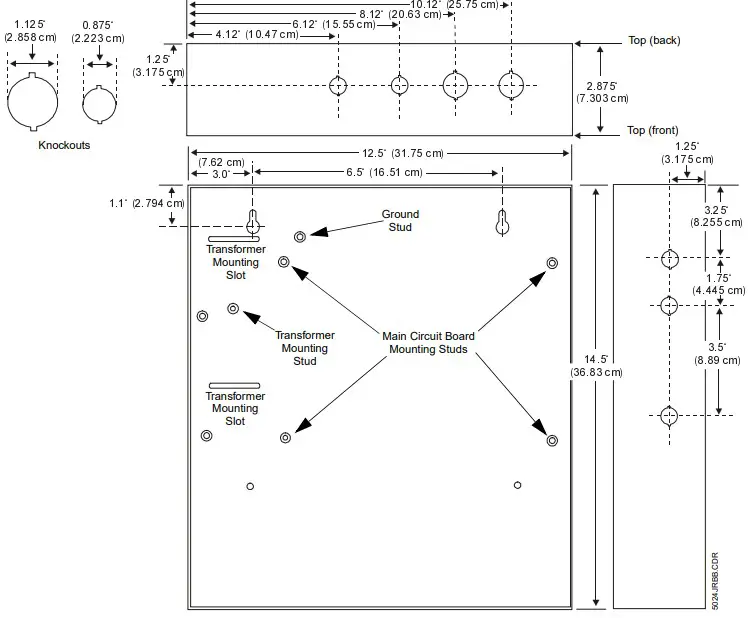
- Mark and predrill holes for the top two keyhole mounting bolts using the dimensions shown in Figure 2
- Install two upper fasteners in the wall with the screw heads protruding
- Using the upper ‘keyholes’, temporarily mount the backbox over the two screws
- Mark the lower two holes, remove the backbox from the wall and drill the lower two holes in the wall
- Before mounting the backbox to the wall, install the supplied transformer in the backbox by sliding the bottom transformer flange into the lower transformer mounting slot. Position the hole in the top transformer flange over the transformer mounting stud. Refer to Figure 1 for the location of the slot and stud
- Secure the transformer with the supplied nut and attached washer
- Mount the backbox to the keyhole mounting bolts, install and tighten the remaining fasteners
Figure 1: Transformer Mounting
Main Circuit Board Mounting
- When the location is clean and free of construction dust or other potential contaminants, install the main PC board by installing the four supplied standoffs on the four main circuit board mounting studs located in the backbox. Refer to Figure 2
- Position the main circuit board’s four corner mounting holes over the four standoffs just installed. Be certain to observe the proper ESD (Electro Static Discharge) precautions to prevent damage to the static sensitive circuits. This includes, but is not limited to, use of a wrist strap
- Secure the main circuit board to the standoffs with the four supplied screws and attached washers
- Plug the transformer connector into the main circuit board connector J4. The connector is keyed and can only be plugged-in one way.
- When wiring is completed, install the door on the backbox pin hinges and the window bezel in the door


Figure 2: Cabinet Dimensions and Knockout Locations

















