PRISM HARDSCAPES PH-422 Porto 68 Concrete Gas Fire Pit

SECTION 1: SAFETY & WARNINGS
WARNING
Do not store or use gasoline, or other flammable vapors and liquids, in the vicinity of this or any other appliance.
WARNING
FOR OUTDOOR USE ONLY
WARNING
POTENTIAL CARBON MONOXIDE HAZARD
This appliance can produce carbon monoxide which has no odor. Using it in an enclosed space can kill you. Never use this appliance in an enclosed space such as a camper, tent, car, or home.
Improper installation, adjustment, alteration, service or maintenance can cause injury or property damage. Read all installation, operating and maintenance instructions thoroughly before installing or servicing the equipment.
WARNING
Failure to follow instructions may result in a fire, or explosion, causing property damage, personal injury or loss of life. Refer to local professionals that are fully licensed properly to install gas appliances. Make sure your installer follows all local codes. Service appliance annually by a professional technician certified in the United States by National Fireplace Institute (NFI). Replacement burners should be replaced by service professionals using original parts using manufactures guidelines. Failure to follow these guidelines may result in personal injury or property damage. Verification of fuel can be done by looking at the label on back side of the burner. Never use any alternative fuel sources.
CAUTION
Do not use any solid fuels in this gas-burning appliance. Your fire feature may not be used for cooking. Do not place any unopened containers in fire feature. Heating up of such containers will cause pressure to build up and burst causing personal injury or property damage. Never use fire feature in windy conditions. Follow clearances in the installation guidelines or refer to local building codes and place according to the guidelines of the local jurisdiction. Never let loose-fitting garments touch hot surfaces or open flames when fire feature is in use. Garment may ignite causing personal injury.
GAS SAFETY
If the burner goes out turn gas to off position and let several minutes go by. Once gas has dissipated lite following manufactures recommendations. Propane must always have a regulator. Do no operate if the regulator has been removed.
BURN HAZARD
Never leave children new fire features without supervision. This appliance may reach high temperatures which will cause burns. Never leave fire feature unattended when not in use. When using appliance never touch the rock or glass used in the appliance. These areas get very hot and will cause injury. Do not reach over the fire feature when in use. Do not stand on any pat of this appliance. Never allow children to sit on or near appliances this could cause personal injury.
SAFETY
Inspections of this appliance should be done prior to installation and on an annual basis by a certified technician. Frequent cleaning may be required depending on level of usage. It’s important that the airflow inside the unit not be obstructed. It is the installer’s responsibility to review all safe operating and safety procedures with the end user. All manuals and product information sheet much be left with end user.
SECTION 2: WARRANTY
Prism Hardscapes LLC offers a 2-year limited warranty against manufactured defects. Prism Hardscapes will replace product which has proven to be defective in workmanship and material. The buyer must provide proof of purchase date by the end user of product. Prism Hardscapes must have the opportunity to verify the alleged defect this may include a site visit to inspect product. If unit is confirmed defective and cannot be repaired Prism Hardscapes will replace unit FOB PRISM HARDSCAPES facility. Buyer will be responsible for arranging shipping associated with replacement. All labor associated with installation will be responsibility of end user. Prism Hardscapes will not be responsible for any defects which result for misuse, alteration or abuse. The use of wood or any other fuel other than specified fuel of this unit will void all warranties. Prism Hardscapes is not responsible for any damage or injury that arise from misuse of product.
SECTION 3: DIMENSIONS & DIAGRAMS

SPECIFICATIONS

SECTION 4: PARTS LIST
PARTS LIST

TOOLS REQUIRED
- Gloves
- Screw Gun with #2 phillips head tip to remove packaging.
- Box cutter to cut bands & miscellaneous plastic,
- Crescent wrench to attach gas line.
PORTOS SERIES ASSEMBLY DIAGRAM 
SECTION 5: GAS REQUIREMENTS
Read this section before installation. It explains what you need to know about liquid propane & natural gas prior to setting up your fire feature.
LIQUID PROPANE
Your fire feature is not provided with a propane tank. You will need to provide one. Use the following specifications for purchasing your propane tank.
SPECIFICATIONS
The 2-lb. propane gas supply cylinder is constructed and marked in accordance with the specifications for propane gas cylinders as required by the U.S. Department of Transportation (DOT}.
MANIFOLD PRESSURE
For plumbed-in liquid propane installation, use a regulator.
SUPPLY PRESSURE
The maximum line pressure for plumbed-in propane is 14″ W.C.
psi (3.5 kPa}. The minimum line pressure for propane is 11″ W.C.
- Minimum – 8.0″W.C.
- Normal – 11.0″ w.c.
- Maximum – 14.0″ W.C. (1/2psi}
PRESSURE REGULATOR
The unit must be used with the supplies gas pressure regulator and hose assembly. The regulator will control and maintain uniform gas pressure in the manifold. The burner orifice has been sized for the gas pressure delivered by the regulator. Replacement pressure regulator and hose assemblies must be those specified in the instructions.
CYLINDER SPECIFICATION
Any propane gas supply cylinder used with this fire feature must be approximately 12″ in diameter and 18″ high. The maximum fuel capacity is 15 lbs. of propane or 3.5 gallons. Full cylinder weight should be approximately 30 lbs. Always use the cylinder dust cap on the cylinder valve outlet during transport and when the cylinder in not connected to the fire feature. The 15-lb. propane gas cylinder used must include a collar to protect the cylinder valve.
FILLER VALVE
If you do not have an updated filler valve on your existing propane tank, you will need to purchase one at your local hardware store, otherwise you will not be able to refill the propane tank at the refill station.
TRANSPORTING GAS CYLINDER
Only one cylinder should be transported at a time. Be sure that the cylinder is secure and transported in an upright position with the control valve turned off.
NATURAL GAS
Ensure that the service supplying the fire feature is fitted with a positioned shut off valve that is easily accessible.
REQUIREMENTS
Always check the rating plate to make sure the gas supply you are connecting is the gas type for the manufactured fire feature. The installation of this appliance must conform with local codes or, in the absence of local codes, to the National Fuel Gas Code, ANSI 2223.1, NFPA 54; National Fuel Gas Code; Natural Gas and Propane Installation Code, CSA 8149.1; or Propane Storage and Handling Code, CSA 8146.2 as applicable. Natural gas connection must be performed by a licensed contractor or local gas company representative.
SUPPLY PRESSURE
- Minimum -3.5″W.C.
- Normal -7.0″W.C.
- Maximum – 14.0″ W.C. (1/2psi}
PRESSURE TESTING
If the fire feature is installed with a fixed fuel piping system and equipped with an appliance gas pressure regulator, the fire feature and its individual shut-off valve must be disconnected from the gas supply piping system during any pressure testing of the system at test pressure in excess of 1/2psi (3.5 kPa}.
The fire feature must be isolated from the gas supply piping system by closing its individual manual shut off valve during any pressure testing of the gas supply piping system at test pressures equal to or less than 1/2psi (3.5 kPa}.
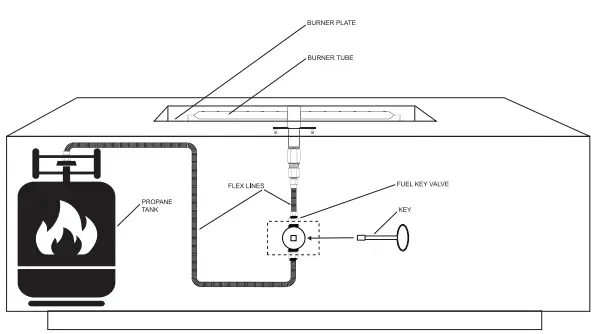
SECTION 6: SETUP & INSTALLATION
- Carefully place the fire bowl in the final designated area.
- Your fire bowl will arrive with the burner and burner plate set in you unit. You will need to lift up the plate to access the gas inlet.
Natural Gas Installation- The gas line between the burner and the gas valve located on the side of the fire bowl has already been connected at the factory.
- You will then connect the flex line hose from the plumbed gas line to open gas valve.
Liquid Propane Installation - The gas line between the burner and the gas valve located on the side of the fire bowl has already been connected at the factory.
- You will then connect the propane hose from the gas valve to the propane tank.
- After securing all gas connections by a licensed plumber or contractor place burner pan in final locations on top of concrete ring that sits in the fire bowl.
- Test burner unit before adding stone or glass in unit.
- After you’ve completed all the plumbing installation, you can fill the fire bowl with the decorative material provided. You can place the decorative material on the burner, but not higher than 1″ thick. Excessive filler material me impede gas flow and cause gas build-up and potentially cause an explosion.
SECTION 7: OPERATION OF FIRE TABLE
- Using key provided turn outside valve half a turn to start the flow of gas.
- Using a fireplace starter (not provided) ignite flame in bowl.
- To extinguish flame turn valve to off position until flame is out.
- Secure key in a safe place away from children.
* Fresh air must be able to pass through installed vents to safeguard against residual gas accumulation. Failure to allow proper ventilation may cause fire or explosion. The vents must never be allowed to be obstructed. Maintain a½” clearance from the bottom of the fire bowl to the surface .
.AWARNING
- Never alter the design of the fire unit.
- Never leave fire pit unattended by an adult that is familiar with emergency shut-down.
- Flammable materials should not be placed on or near the fire pit.
- Children should be supervised when they are in the vicinity of the fire pit.
- Inspect the fuel supply connection (including all quick disconnect hoses) before use a replace hose if there is evidence of abrasion or wear.
- The proper hose and regulator must be used. Do not alter or change.
- Turn off fuel supply when not in use.
SECTION 8: TROUBLESHOOTING
WILL NOT LIGHT Possible Causes
- Air in gas line
FIX - If new install, may take several attempts to purge air
- Debris in gas line
FIX - Confirm gas line is clear (insulation, dirt, plastic, excessive pipe sealer, etc.)
- Improper gas pressure
FIX - Confirm proper gas pressure
WILL NOT STAY LIT
Possible Causes
NOISE - Improper gas pressure
FIX - Confirm gas pressure
- Improperly applied media
FIX - Review operation of fire feature in reference to decorative filler placement
Possible Causes - Passage of air/gas across irregular surfaces
FIX - Remove any tight bends or kinks in gas supply line
- Excessive gas pressure on natural gas units
FIX - Check or reset gas regulator pressure
*Note: The movement and combustion of gas will create low, unavoidable levels of noise.
UNIT IS SMOKING
Possible Causes - Poor fuel quality
FIX - Contact local natural gas company
- Excessive flame impingement or blockage
FIX - Separate the media to allow more flame passage
- Improper fuel and/or air mixture
FIX - Remove any foreign items from the flame pattern and check for proper orifice sizing
BURNER FLAME IS TOO LOW OR HIGH
Possible Causes - Incorrect gas supply or pressure
FIX - Check for proper gas supply pressure
- Blocked burner orifice or burner ports
FIX - Free burner orifice and burner ports of any debris or blockage
- Improper burner orifice size
FIX - Verify proper burner orifice sizing
UNIT PRODUCES UNWANTED ODORS
Possible Causes - Gas leak, see Warning section
FIX - Check for and seal all gas leaks
HOW TO SAFELY MOVE YOUR FIRE TABLE

- NEVER attempt to move your new Fire Feature by yourself.
- Wrap furniture blankets around the entire body of the unit to protect it against external and internal damage, and tape the blankets in place with quality tape.
- Place a piece of plywood between the piano/carpet dolly and the fire unit for increased stability of the unit.
- Use a piano/carpet dolly to navigate the unit to its final position.
- DO NOT use a wheelbarrow, or any other type of unbalanced equipment.
RECEIVING CHECKLIST
Receiving via LTL carrier:
- Inspect create or pallet for damage
- Cross reference PO or BOL numbers that they are as ordered
- Open top of create and inspect the Fire Feature for damage
* If damaged please notify carrier immediately and sign “damaged” or “do not receive”
* If damaged please notify Prism Hardscapes office immediately via email.
Receiving via Vendor delivery: - Inspect create or pallet for damage
- Cross reference PO or BOL numbers that they are as ordered
- Open top of create and inspect the Fire Feature for damage
* If damaged please notify carrier immediately and sign damaged to not receive
* If damaged please notify Prism Hardscapes driver immediately & note on BOL - Please note PH is only responsible for curbside delivery.
- Please note once the order is unloaded curbside we accept no responsible for
backyard placement. Unloading constitutes acceptance of order. - Please review the “load in” portion of our instruction manual for correct loading and handling of your Prism Hardscapes Fire Feature.
We create visionary designs coupled with handcrafted processes.
Prism Hardscapes is dependable, personalized products & services that capture your outdoor living area ideas down to the last detail.
Before you break ground on a new project, you first need to consider your design preferences. That means learning how to select the perfect colors, shapes and patterns to create an outdoor living space that not only fit your yard, but your lifestyle and vision. Let Prism Hardscapes help get you there. www.prismhardscapes.com • Phone: (951) 600-1123 • Fax: (951) 600-1109

















