REDI-EXIT Foldaway Fire Escape Ladder

- Redi-Exit Fire Escape Ladder is a quick release, ever-ready, foldaway secured fire escape ladder which enables safe and speedy evacuation from upper floors in the case of fire or emergency.
- Redi-Exit Fire Escape Ladder is fully encased in an engineered housing fixed to the outer wall (like a downspout) and is visible only when activated for use by withdrawal of the quick release pin at the upper end (escape point).
- Redi-Exit Fire Escape Ladder comes in one, conveniently sized, easy to handle carton containing upper, middle and base components and assembly fixings. Extension units and additional mid-sections are available if required for connecting further ladder units to give additional overall height if required.
- Redi-Exit Fire Escape Ladder is mounted vertically on an outside wall, with the upper end adjacent to a window, balcony or similar escape point.
- When the quick release pin is withdrawn the ladder automatically folds out from the escape point and down to the ground.
- Redi-Exit Fire Escape Ladder is constructed of the highest quality aluminum and all other parts including fixings/anchors.
Contents
- Redi-Exit Fire Escape Ladder:
- 1 each upper, middle and base ladders
- 1x top cap
- 6x wall brackets
- 4x connecting plates
- 1x quick release pin
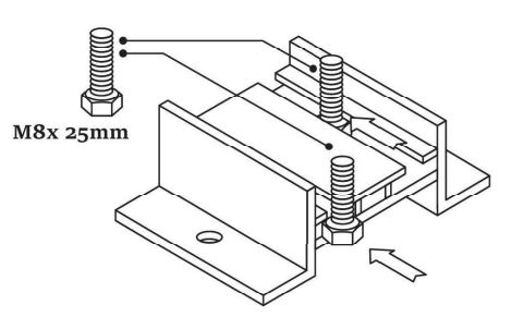
- 12x M8x25 mm screws
- 12x M8 locking nuts
- 16x M5X16 mm hexagonal screws
Tools for installation
- Marking pen
- Level
- 8 mm, 10 mm and 13 mm spanner or socket set
- Masonry drill with 6 mm masonry bits
- Plumb line
Assembly and installation
- Lay the ladder out on an even floor.
- Check that the screws on the rungs are correctly tightened (not completely tight because of the release mechanism).
- Commence connecting with the connectors, using M5 screws. All the screws should face in towards the wall, and it is important that the ladder is laying flat and straight when this is being done.
- When all the connectors are fastened, lay the ladder (still folded closed) face up.
- Put the M8 screws into the wall mountings and tighten the locking nuts by hand.
- Place the wall mountings under the ladder and tighten them completely parallel with the ladder.
Check these key points!
- Check that the ladder folds smoothly in and out before installation.
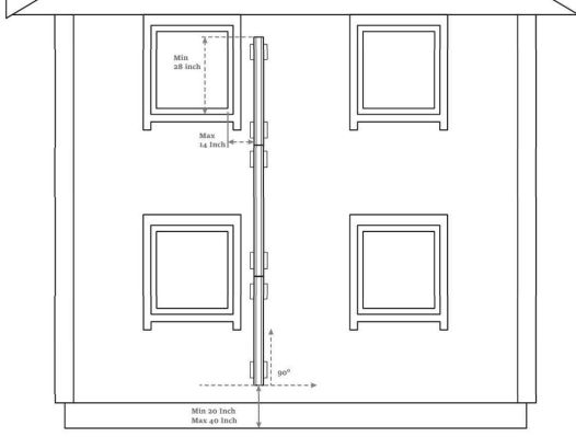
- The upper end of the ladder is to be positioned at least 28 in above the escape windowsill, and the lower end must have a clearance above ground level of at least 20 in and maximum 40 in.
- The horizontal distance from the window/escape point should not exceed 14 in.
- Hold the ladder up against the wall to mark off the screw holes for the upper wall mountings.
Recommended installation fasteners:
- Wooden walls: 8 mm fully threaded self-boring screw
- Brick/Concrete walls: 8 mm masonry expansion bolts (included)
- Leca or other aggregate blocks: 6 mm Leca plugs and anchor bolts.
- When installing on wooden walls, the holes should be pre-drilled with a 6 mm drill to avoid splitting. For wooden walls, always screw fixings into solid timber studwork, framework or joists.
Installation of the ladder:
- Start by fixing one screw/masonry fastener at the top and then bring the ladder into true vertical, using a level, and screw in the two bottom fasteners.
- Complete installation by inserting and tightening the remaining fasteners into the wall substrate.
- Place the quick release at the top of the ladder but where it can be reached by people of all ages from the selected escape point (window, balcony or similar).
To release Redi-Exit Fire Escape Ladder from different escape levels:
- The escape ladder and extension unit(s) are first properly assembled and mounted on the wall.
- Ensure that the extension unit in question is properly positioned adjacent to the escape route (window or balcony).
- If necessary additional extension units can be connected together.
- With the ladder assembly positioned and firmly attached to the wall, loosen the 2 of the screws which join the ladder and extension unit on the outer ladder upright.
- With these 2 screws loosened or removed, the ladder can be released from that level.
- Uneven walls: Minor structural variations from true vertical can be dealt with by using bushes on the wall anchors. In the case of variations of a
- steel compensating plate and fasteners are available from your local supplier.
Maintenance
- An annual inspection should include a test of the ladder’s functions, and also an inspection to ensure the firmness of the wall fasteners/anchor.
Contents
Assembly
Step1 Lay the ladder out on an even floor
Step2 connecting Plates
Step3 Wall Brackets
Step4 wall brackets
Step5 Installation





















