INSTALLATION MANUAL
![]()
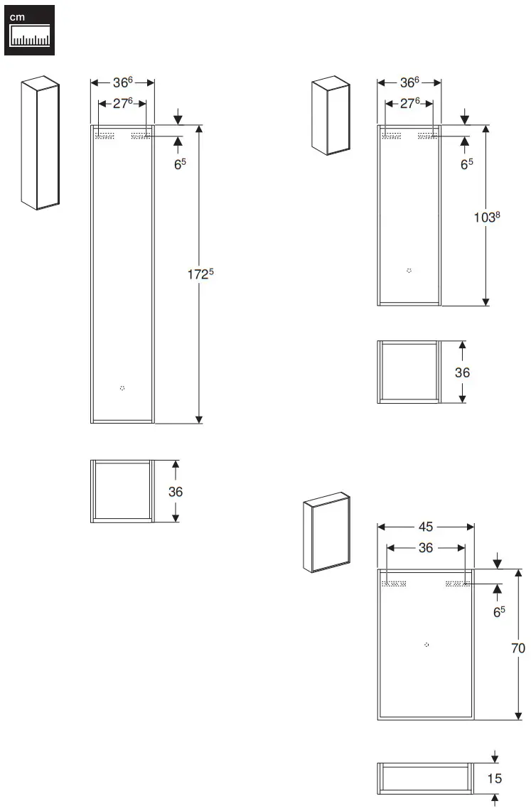
Tall cabinet Sense Art 725x366mm
WARNING
Incorrect installation
If the product falls, it can cause serious injuries.
▶ Before installation, check the bearing capacity of the wall.
▶ Before installation, check whether the fastening material supplied is suitable for the wall type. Use a different type of fastening material if necessary.
![]() | ![]() |
![]() | ![]() |
![]() | ![]() |
![]() | ![]() |
![]() | ![]() |
![]() |
971.033.00.0(00)
Geberit International AG
Schachenstrasse 77, CH-8645 Jona
[email protected]
www.geberit.com
9385847051 © 03-2022





























