robern CRAFT Series Thin Framed 20 Inch x 30 Inch Metal Cabinet Instruction Manual
GENERAL INFORMATION
This instruction manual contains information on how to recess mount the Craft Series cabinet. This series comes in different sizes and door styles. Refer to the specification sheet matching the model number for dimensions.
Read the specific instruction for how your cabinet will be mounted. The cabinet can be surface mounted* or recess mounted.
Save these instructions for future use and reference. An improper installation voids the warranty. Installed cabinets cannot be returned.
If you experience any problems with your cabinet, contact your dealer or Robern directly.
Limited Warranty — One Year Term
For surface mounting and accessory installation instructions.
SAFETY
IMPORTANT SAFETY INSTRUCTIONS
DANGER: Read all instructions before using this cabinet.
CAUTION: Maximum shelf load 34lbs/15.4kg
When using an electrical furnishing, basic precautions should always be followed, including the following:
- WARNING: To reduce the risk of burns, fire, electric shock, or injury to persons:
- Use this furnishing only for its intended use as described in these instructions.
- Do not use attachments not recommended by the manufacturer.
- Never drop or insert any object into any opening.
- Do not use outdoors.
WARNING: Risk of electric shock. Connect this furnishing to a properly grounded circuit only. See Grounding instructions.
GROUNDING INSTRUCTIONS
This product must be connected to a grounded metal, permanent wiring system, or an equipment-grounding conductor must be run with the circuit conductors and connected to the equipment-grounding terminal or lead on the product.
WARNING: Electrical option cabinet must be wired to a Class A 20 Amp GFCI (Ground Fault Circuit Interrupter) protected circuit when used in bathrooms and all other locations required by the National Electric Code.
SAVE THESE INSTRUCTIONS
TOOLS NEEDED

PARTS
- (1) Craft Series Cabinet
(Doors vary by model)
- (3-4) Glass Shelves

- [211-1329]
(2) Robern Logo Coverplates
- [216-1201] Hardware Bag

- [216-1208] Hardware Bag

ACCESSORIES
Scan the available QR codes to learn more about these accessories at Robern.com
Surface Mount Kit
P2SMKITXXD4P
XX (Heights available): 30 & 40
Portray Electric Upgrade
P2ELECTRIC
For Electric Upgrade Instructions:
IQ Digital Lock Box
CB-DLB-XX
XX (Widths available): 20 & 24
For Digital Lock Box Instructions:
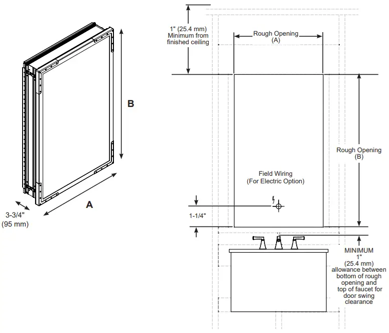
DIMENSIONS
Determine overall cabinet dimensions. If recessing cabinet, determine rough-in dimensions. See chart for specific model dimensions.
Rough Opening (RO) for recessed installation in chart below
Number in the column headings below reference the cabinet dimensions from the model number, width and height (WWHH)
| Industrial / Thin Frame | Round Corner | |||
| 2030 | 2440 | 2034 | 2444 | |
| A | 19-1/4″ (489 mm) | 23-1/4″ (591 mm) | 19-1/4″ (489 mm) | 23-1/4″ (591 mm) |
| B | 30″ (762 mm) | 39-3/8″ (1001 mm) | 34-1/4″ (870 mm) | 43-5/8″ (1108 mm) |
| RO (A) | 18-1/2″ (470 mm) | 22-1/2″ (572 mm) | 18-1/2″ (470 mm) | 22-1/2″ (572 mm) |
| RO (B) | 29-1/4″ (743 mm) | 38-5/8″ (982 mm) | 29-1/4″ (743 mm) | 38-5/8″ (982 mm) |
RECESS MOUNTING
These instructions are for recess mounting your cabinet. For a surface mount installation, refer to the instructions included with the surface mount kit (sold separately, see page 4). Before beginning installation, remove and set the door aside in a safe place.
NOTES: Ensure that the cabinet is mounted so that the door has at least 1″ (25mm) clearance from the top of the faucet and at least 1″ (25mm) clearance from the ceiling.
- Remove door from cabinet by taking the hinges off of the mounting plates.

- Place cabinet in rough-in and check for square, plumb, and level.

Note: Pull electrical wire through the lower electrical hole in cabinet. - Install a #10 X 2” screw [SS674] through top mounting hole in cabinet side and screw into wall stud as shown.

Note: Do not over-tighten screws or cabinet box may deform. - Once cabinet is installed square, plumb, and level, install #10 X 2” screws into wall studs through the three remaining mounting holes.

Note: Do not over tighten screws.
FINAL ASSEMBLY
- Align door and reattach hinges to mounting plates until audible click is heard. Ensure all hinges are fully seated before attempting to adjust door.

- 2A. For small or light doors, the slow close feature can be deactivated on one of the hinges.

- 2B. Door must be closed once for the deactivation to be complete. To reactivate, move switch back to original position.

NOTE: The door hinges have a three-way adjustment feature. These adjustments can be made using a #2 Phillips Head screwdriver. Hinge will need to be partially extended to reach the height adjustment screw. - 3A. Side adjustment – Rotate front screw to increase or decrease door overlay.
3B. Depth adjustment – Rotate rear spiral tech cam screw to adjust door gap.
3C. Height adjustment – Rotate cam screw on mounting plate to adjust door.
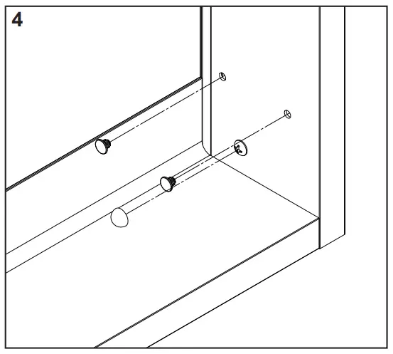
- Press the Shelf Hole Plugs [SS143] into the unused holes inside the cabinet. Place the Screw Head Caps [SS672] over any exposed screw heads.

- Install Robern Logo Coverplate [211-1329] into unused electrical access hole.

- Insert clear right-hand [211-1376] and left-hand [211-1377] shelf clips into the holes in the back channel on the sides of the cabinet.

- Push the back of the shelf into both the left and right shelf clips (A). Snap the shelf down into the shelf clips (B).

USE AND MAINTENANCE
CAUTION: Maximum shelf load 34 LBS
The cabinet door is constructed of mirrored glass, steel, and aluminum. The cabinet interior is constructed of mirrored glass and aluminum. Use only a damp cloth to clean. Ammonia or vinegar-based cleaners can damage mirrors.
A 50/50 solution of water and isopropyl alcohol is recommended for cleaning the mirrors. A mild detergent may be used on the surfaces.
When cleaning, spray the cloth, not the cabinet, mirror, or surround surfaces. Do not use abrasive cleansers on any part of the light fixture.
NOTE: Do not store items in the cabinet area directly behind the hinge as damage may occur to cabinet or items.
WARRANTY
Limited Warranty One Year Term
ROBERN warrants to the original purchaser that, it will, at its election repair, replace, or make appropriate adjustment to products made by this company shown to have significant defects in material or workmanship which are reported to ROBERN in writing within one (1) year from the date of delivery. ROBERN is not responsible for installation costs. The warranty is void in the event the product is damaged in transit, or if damage or failure is caused by abuse, misuse, abnormal usage, faulty installation, damage in an accident, improper maintenance, or any repairs other than those authorized by ROBERN. At the expiration of the one year warranty period, ROBERN shall be under no further obligation under any warranty, expressed or implied, including the implied warranty of merchantability. ROBERN shall not be liable for any consequential damages arising out of or in connection with the use or performance of its products. Some states do not allow limitations on how long an implied warranty lasts or do not allow the exclusion or limitation of incidental or consequential damages, so the above limitation or exclusion may not apply to you. Any liability against ROBERN under any implied warranty, including the warranty of merchantability, is expressly limited to the terms of this warranty. Permission to return any merchandise under this warranty must be authorized by ROBERN and returned prepaid by the purchaser. Claims under this
warranty should be sent directly to your dealer.
©2022 ROBERN, INC.
ALL RIGHTS RESERVEG


































