INSTALLATION MANUAL
SPECIAL WARNING
INSTALLATION AND SERVICE MUST BE PERFORMED BY A QUALIFIED INSTALLER.
IMPORTANT: SAVE this installation manual FOR LOCAL ELECTRICAL INSPECTOR’S USE.
READ AND SAVE THESE INSTRUCTIONS FOR FUTURE REFERENCE.
CLEARANCES AND DIMENSIONS
For SAFETY CONSIDERATIONS do not install drawer in any combustible cabinetry, which is not in accord with the stated clearances and dimensions on pages 2 – 5. See Figure 1 (for 24″) or Figures 4 and 5 (for 30″).
UNPACKING YOUR MICROWAVE DRAWER

- Remove all packing materials from inside the Microwave Drawer. DO NOT REMOVE THE WAVEGUIDE COVER, which is located on the top of the Microwave Drawer.
- Remove the feature sticker, if there is one. Check the drawer for any damage, such as misaligned or bent drawer, damaged drawer seals and sealing surfaces, broken or loose Microwave Drawer guides and dents inside the cavity or on the front side of the drawer. If there is any damage, do not operate the Microwave Drawer and contact your dealer or a SHARP AUTHORIZED SERVICER.
IMPORTANT NOTES TO THE INSTALLER
- Read all of the Installation Manual before installing the Microwave Drawer.
- Remove all packing material before connecting the electrical supply.
- Observe all governing codes and ordinances.
- Be sure to leave these instructions with the consumer.
IMPORTANT NOTES TO THE CONSUMER
Keep this manual with your Operation Manual for future reference.
- As when using any microwave oven generating heat, there are certain safety precautions you should follow. These are listed in the Operation Manual. Read all and follow carefully.
- Be sure your Microwave Drawer is installed and grounded properly by a qualified installer or service technician.
IMPORTANT SAFETY INSTRUCTIONS
![]()
If the information in this manual is not followed exactly, a fire or electrical shock may result that could cause property damage, personal injury or death.
![]()
To reduce the risk of tipping, the Microwave Drawer must be secured by a properly installed Anti-Tip block.
- This Microwave Drawer must be electrically grounded in accordance with local codes.
- Make sure the wall coverings and the cabinets around the Microwave Drawer can withstand the heat generated by the Microwave Drawer.
![]()
Never leave children alone or unattended in the area where a Microwave Drawer is in use. Never leave the drawer open when the microwave is unattended.
![]()
Stepping, leaning or sitting on the drawer may result in serious injuries and can also cause damage to the Microwave Drawer.
- Do not use the Microwave Drawer as a storage space. This creates a potentially hazardous situation.
- Check that the time-of-day is in the display. If not, touch STOP/CLEAR to prevent unintended use.
CLEARANCES AND DIMENSIONS
- Dimensions that are shown in Figure 1 (for 24″) or Figures 4 and 5 (for 30″) must be used. Given dimensions provide minimum clearance. Locate electrical outlet in the shaded area in the upper left-hand corner of the cutout. See Figure 9.
- Contact surface must be solid and level. Pay special attention to the floor on which the Microwave Drawer will sit. The floor of the opening should be constructed of plywood strong enough to support the weight of the oven (about 100 pounds).
- Check location where the Microwave Drawer will be installed for proper electrical supply.
- Your oven can be built into a cabinet or wall by itself or under a gas or electric wall oven.
- Be sure that the clearance of the floor between the wall oven and the microwave drawer is a minimum of 2-inches. • The microwave interior will easily accommodate a 9″ x 13″ oblong dish or a bag of microwave popcorn.
- The oven can also be mounted flush. Please see instructions for flush mounting included with the Flush Mount Deflector vent.
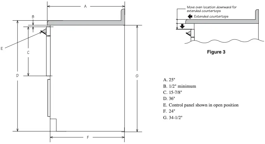
24″ MICROWAVE DRAWER MEASUREMENTS

A. 6″
B. Suggested electrical outlet location*
C. Anti-Tip block
D. 5″
E. 3-1/2″
F. 4″
G. 22-1/8″ opening
H. 14-13/16″ to bottom of Anti-Tip block
I. Allow 7/8″ overlap
J. 23-1/2″ minimum depth
K. Allow 3/16″ overlap
L. 36″ countertop height
M. Allow 7/16″ minimum space
N. Floor must support 100 lb
O. 24″ cabinet minimum
P. 15-9/16″ opening
Q. Allow 1/8″ overlap

A. 21-5/8″
B. 4-11/16″
C. 1-3/4″
D. 21-7/8″
E. 23-7/8″
F. 15-7/8″
G. 14-19/32″
H. 1-9/64″ door thickness
I. 15″ auto drawer opening
J. 4″
Figures 1 and 2 contain many Microwave Drawer measurements for reference when planning the drawer’s location.
This Microwave Drawer can be installed below any electric or gas wall oven.
* Can also be installed using an electrical outlet in an adjacent cabinet within the area where the provided electrical cord can reach. Power cord access hole in cabinet should be a minimum 1 1/2″ diameter hole and deburred of all sharp edges.
![]()
Always allow sufficient power cord length to the electrical outlet to prevent tension.
Always check electrical codes for requirements.
This drawing represents a typical standard cabinet. If installed in custom cabinets with extended counter tops, take into account visibility and access to controls. See Figure 3.

30″ MICROWAVE DRAWER MEASUREMENTS
Figures 4, 5 and 6 contain many Microwave Drawer measurements for reference when planning the drawer’s location.
This Microwave Drawer can be installed below any electric or gas wall oven.

* Can also be installed using an electrical outlet in an adjacent cabinet within the area where the provided electrical cord can reach. Power cord access hole in cabinet should be a minimum 1 1/2″ diameter hole and deburred of all sharp edges.
![]()
Always allow sufficient power cord length to the electrical outlet to prevent tension.
Always check electrical codes for requirements.


This drawing represents a typical standard cabinet. If installed in custom cabinets with extended counter tops, take into account visibility and access to controls. See Figure 7.

ANTI-TIP BLOCK
NORMAL INSTALLATION STEPS
ANTI-TIP BLOCK INSTALLATION INSTRUCTIONS

To reduce the risk of tipping of the drawer, the Anti-Tip block must be properly installed located 14 13/16-inches above the floor on which the Microwave Drawer will sit. The 6-inch Anti-Tip block must be provided by the installer. See Figures 1, 4 and 5. The Anti-Tip block prevents serious injury that might result from spilled hot liquids.
If the Microwave Drawer is ever moved to a different location, the Anti-Tip block must also be moved and installed. When installed to the wall, make sure that the screws completely penetrate the dry wall and are secured in wood or metal so that the block is totally stable. When fastening, be sure that the screws do not penetrate electrical wiring or plumbing.
ELECTRICAL OUTLET

The electrical requirements are a 120 volt 60 Hz, AC only, 15 amp. or more protected electrical supply. It is recommended that a separate circuit serving only this appliance be provided.
The drawer is equipped with a 3-prong grounding plug. It must be plugged into a wall receptacle that is properly installed and grounded. Should you only have a 2-prong outlet, have a qualified electrician install a correct wall receptacle.
Note: If you have any questions about the grounding or electrical instructions, consult a qualified electrician or service person.
* Can also be installed using an electrical outlet in an adjacent cabinet within the area where the provided electrical cord can reach.
Always check electrical codes for requirements.
GROUNDING INSTRUCTIONS

This appliance must be grounded. The Microwave Drawer is equipped with a cord having a grounding wire with a grounding plug. It must be plugged into a wall receptacle that is properly installed and grounded in accordance with the National Electrical Code and local codes and ordinances. In the event of an electrical short circuit, grounding reduces risk of electric shock by providing an escape wire for the electric current.
![]()
– Improper use of the grounding plug can result in a risk of electric shock. Do not use an extension cord. If the power supply cord is too short, have a qualified electrician or serviceman install an outlet near the appliance.
DRAWER INSTALLATION

- Place the drawer adjacent to the wall or cabinet opening. Plug the power supply cord into the electrical outlet.
- Carefully guide the drawer into the prepared opening. Avoid pinching the cord between the oven and the wall.
- Slide the drawer all the way until the mounting flange is flush with the face of the cabinet. See Figure 10A.
- Open the drawer. Using the 4 holes on the drawer as a template, pre drill the cabinet using a 1/16″ bit. See Figure 10A.
- Secure the drawer with the 4 screws supplied. See Figure 10B.
MODEL AND SERIAL NUMBER LOCATION
The name plate includes model and serial number. Open the Microwave Drawer fully. The label is beyond the back wall of the microwave cavity facing up from the flat surface.
CARE, CLEANING AND MAINTENANCE
Refer to the Operation Manual for cleaning instructions.
BEFORE YOU CALL FOR SERVICE
Read the BEFORE YOU CALL and operating instruction sections in your Operation Manual. It may save you time and expense. The list includes common occurrences that are not the result of defective workmanship or materials in this range. Refer to the warranty in your Operation Manual for Sharp’s toll-free service number and address. Please call or write if you have inquiries about your microwave product and/or need to order parts.
Sharp Microwave Drawer SMD2470AS / SMD2470AH / SMD3070AS User Mnual – Optimized PDF
Sharp Microwave Drawer SMD2470AS / SMD2470AH / SMD3070AS User Mnual – Original PDF
![Sharp Microwave Drawer [smd2480cs] User Manual Sharp Microwave Drawer [smd2480cs] User Manual](https://static-data1.manualsee.com/1/img/365/18082/2020/12/Sharp-Microwave-Drawer-SMD2480CS.png)


















