PKM EB-GK-2TCG Cooking Hot Plate Instruction Manual

Safety information
READ THE SAFETY INFORMATION AND SAFETY INSTRUCTIONS CAREFULLY BEFORE YOU OPERATE THE APPLIANCE FOR THE FIRST TIME.
All information included in those pages serve for the protection of the operator. If you ignore the safety information and safety instructions, you will endanger your health and life.
- Store this manual in a safe place so you can use it whenever it is needed. Strictly observe the instructions to avoid damage to persons and property.
- Check the technical periphery of the appliance! Do all wires and connections to the appliance work properly? Or are they time worn and do not match the Techni Cal requirements of the appliance? A check up of existing and newly made connections must be done by an authorized professional. All connections and energy leading components (incl. wires inside a wall) must be checked by a qualified professional. All mode fictions to the electrical mains to enable the installation of the appliance must be performed by a qualified professional.
- The appliance is intended for private use only.
- The appliance is intended for cooking in a private household only.
- The appliance can be used with 230 V AC in RVs/caravans when built-in according to all TÜV-regulations. The appliance is intended for indoor-use only. The appliance is not intended to be operated for commercial purposes and in public transport.
- Operate the appliance in accordance with its intended use only. Do not allow anybody who is not familiar with this instruction manual to operate the appliance.
- This appliance may be operated by children aged from 8 years and above as well as by persons with reduced physical, sensory and mental capabilities or lack of experience and knowledge if they are supervised or have been instructed concerning the safe use of the appliance and do comprehend the hazards involved. Children must not play with the appliance. Cleaning and user-maintenance must not be carried out by children unless they are supervised.
MAKE SURE THAT THIS MANUAL IS AVAILABLE TO ANYONE USING THE APPLIANCE AND MAKE SURE THAT IT HAS BEEN READ AND UNDERSTOOD PRIOR TO USING THE APPLIANCE.
Signal words
- DANGER! indicates a hazardous situation which, if ignored, will result in death or serious injury.
- CAUTION! indicates a hazardous situation which, if not avoided, may result in minor or moderate injury.
- WARNING! indicates a hazardous situation which, if ignored, could result in death or serious injury.
- NOTICE! indicates possible damage to the appliance.
Safety instructions
DANGER!
To reduce the risk of electrocution:
- Non-compliance of the orders of this instruction manual will endanger the life and health of the operator and / or can result in damages to the appliance.
- The appliance must be connected to the mains by a qualified professional, who is familiar with and adheres to the local requirements and supplementary regulations of your energy supplier.
- All electrical work must be carried out by a qualified professional. Do not modify the energy supply. The connection must be carried out in accordance with the current local and legal regulations
- Do not connect the appliance to the mains if the appliance itself or the power cord or the plug are visibly damaged.
- Never try to repair the appliance yourself. Repairs carried out by unauthorized persons can cause serious damage. If the appliance does not operate properly, please contact the shop you purchased the appliance at. Original spare parts should be used only.
- When the power cord is damaged, it must be replaced by the manufacturer or an authorized aftersales service or a qualified professional only.
- Never touch the power plug, the power switch or other electrical components with wet or damp hands. RISK OF ELECTRIC SHOCK!
WARNING!
To reduce the risk of burns, electrocution, fire or injury to persons:
- Operate the appliance with 220 ~ 240 V AC / 50 Hz only.
- Disconnect the appliance from the mains before you clean or maintain it.
- The technical data of your energy supply must meet the data on the rating label. The main current circuit must be equipped with a safety shut-down device.
- The appliance must always be grounded and protected corresponding to the requirements of your local energy supplier. The main current circuit must be equipped with a safety shut-down device.
- All modifications to the electrical mains to enable the installation of the appliance must be performed by a qualified professional.
- In case of an event caused by a technical malfunction, disconnect the appliance from the mains. Report the malfunction to your service centre so it can be repaired.
- If any cracks occur on the glass-ceramic , switch off the appliance and disconnect it from the mains. RISK OF ELECTRICAL SHOCK!
- Do not use adapters, multiple sockets and extension cords for connecting the appliance to the mains.
- Do not carry out any modifications to your appliance.
- Do not repair the appliance yourself. Repairs carried out by unauthorized persons can cause serious damage. Always contact the nearest service centre. Only original spare-parts should be used for repairs.
- The room the appliance is installed in must be dry and well-ventilated. When the appliance is installed, an easy access to all control elements is required.
- The veneering of cabinets has to be fixed with a heat-resistant glue, that is able to withstand a temperature of 100 0C.
- Adjacent furniture or housing and all materials used for installation must be able to resist a temperature of min. 85 0C above the ambient temperature of the room the appliance is installed in during operation.
- Do not install the appliance in rooms or at areas which contain flammable substances as petrol, gas or paint. This warning also refers to the vapour these substances release.
- Cooker-hoods should be installed according to their manufacturers’ instructions.
- The safety distance between the hob and a wall/cupboard above should be at least 450 mm.
- The safety distance between the hob and an extractor hood above should be at least 650 mm.
- Unattended cooking with fat or oil can be dangerous and may result in fire. NEVER try to extinguish a fire with water, but switch off the appliance and then cover flame e.g. with a lid or a fire blanket.
- Do not install the appliance near to curtains or upholstered furniture. RISK OF FIRE!
- Do not store any objects on the hob. RISK OF FIRE!
- Household equipment and connection leads must not touch the hob as the insulation material is usually not heat-resistant.
- Never use a steam cleaner to clean the appliance. The steam will cause serious damage to the electric components of the appliance. RISK OF ELECTRICAL SHOCK!
- Never touch the cooking zones while the residual heat indicator is still on. RISK OF BURNS!
- After use, always switch off the cooking zones as described in this manual(i.e. by using the touch controls). Do not rely on the auto-detection feature to switch off the cooking zones when you remove the cookware.
- The appliance is not allowed to be operated with an external timer or a separate remote-control-system.
- The accessible parts of the appliance become hot during operation, so keep children away from the operating appliance. Touching the appliance while it is operating can cause serious burns.
- Children must not play with the appliance.
- Always supervise children when they are near the appliance.
- This appliance may be operated by children aged from 8 years and above as well as by persons with reduced physical, sensory and mental capabilities or lack of experience and knowledge if they are supervised or have been instructed concerning the safe use of the appliance and do comprehend the hazards involved. Children must not play with the appliance. Cleaning and user-maintenance must not be carried out by children unless they are supervised.
- Only allow children to use the appliance without supervision, when adequate instructions have been given before so that the child is able to use the appliance in a safe way and understands the risks of improper use.
- While unpacking, the packaging materials (polythene bags, polystyrene pieces, etc.) should be kept away from children and pets. RISK OF INJURY! CHOKING HAZARD!
- Only use hob guards designed by the manufacturer of the cooking appliance or indicated by the manufacturer of the appliance in the instructions for use as suitable or hob guards incorporated in the appliance. The use of inappropriate guards can cause accidents.
CAUTION!
- Do not use any aggressive, abrasive and acrid detergents or sharp-edged items to clean the appliance. Otherwise you may scratch the surface and damage the glass.
- Do not switch on the hob before you have put a cookware on it.
- The hob should be clean at every time. Soiled cooking zones do not transfer the heat correctly.
- Protect the hob against corrosion.
- Switch off soiled cooking zones.
- Switch off the complete hob if any damage or malfunction occurs.
- Do not leave pans with prepared dishes based on fats and oils unattended on a operating cooking zone; hot fat can spontaneously catch fire.
- The blades of scrapers for cleaning an induction hob are very sharp. Do not cut yourself, especially when you have removed the safety cover of the scraper.
- Metal-made items such as knives, forks, spoons and pan lids should not be put on the appliance, because they may become hot.
- This appliance complies with the current European safety legislation. We do wish to emphasize that this compliance does not negate the fact that the surfaces of the appliance will become hot while operating and will retain and emit heat even if it has stopped operating.
NOTICE!
- When you move the appliance, hold it at its base and lift it carefully. Keep the appliance in an upright position.
- The appliance must be transported and installed by at least two persons.
- When you unpack the appliance, you should take note of the position of its components in case you have to repack and transport it at a later point of time.
- Do not put any heavy items on the hob.
- Only use cookware which is suitable to be used on ceramic glass; otherwise you will damage the appliance.
- Do not operate the appliance unless all components are installed properly.
- The air vents of the appliance or its built-in structure (if the appliance is suitable for being built-in) must be completely open, unblocked and free of any kind of dirt.
- The rating plate must not be removed or made illegible, otherwise all terms of the warranty become invalid!
SAVE THESE INSTRUCTIONS.
- The manufacturer and distributor are not responsible for any damage or injury in the event of failure to comply with these instructions.
Installation
- DANGER! The appliance must be connected to the mains by a qualified professional, who is familiar with and adheres to the local requirements and supplementary regulations of your electricity supplier. Do not carry out the installation yourself. RISK OF ELECTRIC SHOCK!
- DANGER! All electrical work must be carried out by a qualified professional. Do not modify the energy supply. The connection must be carried out in accordance with the current local and legal regulations. RISK OF ELECTRIC SHOCK!
- WARNING! The safety distance between the hob and a wall cupboard above should be at least 450 mm.
- WARNING! The safety distance between the hob and an extractor hood above should be at least 650 mm.
- CAUTION! Do not install the appliance above cooling equipment, dish washers or laundry dryers.
- CAUTION! Do not install the appliance above cooling equipment, dish washers or laundry dryers.
- CAUTION! The wall and the reach of the heat radiation above the worktop must be made of heat-resistant materials.
- CAUTION! To avoid any damage, the sandwich layer and adhesive must resist heat.
Unpacking and positioning
- Unpack the appliance carefully. Dispose of the packaging as described in chapter WASTE MANAGEMENT.
- The appliance may be equipped with the transport-protection. Be very careful and do not use any aggressive or abrasive detergents to remove residuals of the transport-protection.
- Check that the appliance and the power cord are not damaged.
- Connect the appliance to a dedicated socket only.
- Do not install the appliance in a place where it may come in contact with water or rain; otherwise the insulation of the electrical system will be damaged.
- Connect the appliance to the mains properly.
Pre-installation requirements
- The worktop must be rectangular and plane and made of heat-resisting material. Structural elements should not interfere with the installation area.
- The installation must meet the safety requirements as well as the legal rules and regulations.
- The wall sat the hob should be covered with heat-resistant material, e.g. ceramic tiles.
- The power cable must not come into contact with cabinet doors or drawers.
- The appliance must be supplied with an adequate flow of fresh air from outside the cabinet to the base of the hob.
- If the hob is installed above an oven, the oven must be equipped with a cooling system.
- Install a thermal protection below the bottom of the appliance when installing it above a drawer or a cupboard.
- The circuit breaker must be easily accessible.
Selection of installation equipment / Dimensions
Cut out the installation hole as described on the drawing below. For installation and use, a minimum of 50 mm space shall be preserved around the hole. The thickness of the work top should be at least 30 mm. Choose heat-resistant materials for the work top only to avoid any deformation caused by the heat-radiation of the appliance.
- WARNING! The safety distance between the hob and a wall cupboard above should be at least 450 mm.
- WARNING! The safety distance between the hob and an extractor hood above should be at least 650 mm.
DIMENSIONS OF THE HOB

A = DEPTH / B = WIDTH / C = HEIGHT
| A | B | C |
| 520 mm | 290 mm | 50 mm |
DIMENSIONS OF THE INSTALLATION OPENING

A 1= DEPTH / B 1 = WIDTH
| A 1 | B 1 |
| 490 mm | 270 mm |
MINIMUM CLEAR SPACE REQUIRED AROUND THE INSTALLATION OPENING

| D | E |
| min. 50 mm | min. 50 mm |
Installation of the hob
DANGER! The hob must be installed by a qualified professional only. Do not carry out the installation yourself. RISK OF ELECTRIC SHOCK!
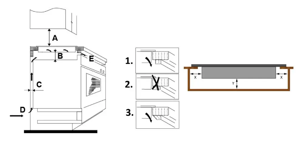
The safety distance between the hob and a wall cupboard above should be at least 450 mm. The safety distance between the hob and an extractor hood above should be at least 650 mm. Do not install the appliance above cooling equipment, dish washers or laundry dryers. When installing the appliance ensure optimal heat radiation to maintain the operating safety. The wall and the reach of the heat radiation above the worktop must be made of heat-resistant materials. To avoid any damage, the sandwich layer and adhesive must resist heat.
- The hob must be ventilated properly. The air inlet (D) and outlet (E) must never be blocked or covered (s. fig. below). Always keep the appliance in proper condition.
MINIMUM DISTANCES REQUIRED FOR PROPER VENTILATION:

C = VENTILATION SLOT / E = AIR OUTLET
| A | B | C | D | E |
| WALL CUPBOARD Ø min. 450 mm Extractor hood Ø min. 650 mm | min. 50 mm | min. 20 mm | Air inlet | min. 5 mm |
- The top closing edge of the cabinet (1) must not be flush with the installation opening (2). Install the closing edge in offset positioning (1) or bevel the closing edge (3).
| X | Ø min. 150 mm |
| Y | Ø min. 20 mm |
INSTALLATION OF THE HOB

- Before installing the hob to the worktop, the adhesive seal has to be fixed on the bottom edge of the hob properly. The seal has to be fixed properly. The outer side of the seal must match the bottom outer edge of the hob (s. fig. below). The seal must be fitted tightly on the bottom edge of the hob (no overlaps, no gaps etc.) to prevent liquids etc. from entering the installation opening subsequently.
1 Seal 2 Hob 3 Worktop 4 Outer edge of the hob 5 Outer side of the seal 6 Bottom of the hob - Insert the hob into the installation opening and push it downward carefully until the hob is in firm contact to the worktop.
- Fix the hob at the bottom of the worktop using the fixing brackets (s. below).
MOUNTING OF THE FIXING BRACKETS
- Mount the fixing brackets at the bottom of the hob using the appropriate screws.
- Screw one end of the fixing brackets into the predrilled holes at the bottom of the hob (as shown below in fig 1 or 2).

| A | Screw |
| B | Fixing bracket |
| C | Screw hole |
| D | Bottom of the Hob |
- Mount the other end of the fixing brackets at the bottom of the worktop using the appropriate screws to fix the hob tightly and safely.
Electrical connection
- DANGER! The appliance must be connected to the mains by a qualified professional, who is familiar with and adheres to the local requirements and supplementary regulations of your electricity supplier. Do not carry out the installation yourself. RISK OF ELECTRIC SHOCK!
- DANGER! All electrical work must be carried out by a qualified professional. Do not modify the energy supply. The connection must be carried out in accordance with the current local and legal regulations. RISK OF ELECTRIC SHOCK!
- DANGER! Do not carry out the installation yourself. RISK OF ELECTRIC SHOCK!
INSTRUCTIONS FOR THE INSTALLER (QUALIFIED PROFESSIONAL)
- The appliance is equipped with a Schake safety plug. Only use a Schake safety plug and a properly-grounded safety socket for connecting the appliance to the mains.
- Your household power supply must meet the power consumption of the appliance.
- The voltage must meet the values on the nameplate.
- The power cord must withstand the values on the nameplate.
- When connecting do not use adapters, reducers and branching devices as they cause overheating. RISK OF FIRE!
- The power cord must not touch hot areas and its temperature must not exceed 75 0C.
- When the socket is not accessible for the user or a fixed electrical connection of the appliance is required, an all-pole disconnecting device must be incorporated during installation. Disconnecting devices are switches with a contact opening distance of at least 3 mm. These include LS-switches, fuses and protectors (EN 30335). Read the information on the nameplate and the connection diagram before connecting the appliance to the mains. The electricity supply must be performed via a 16A automatic cut-out. If in doubt, always contact the local building authorities and consult the relevant legal provisions.
- Do not bend or compress the power cord.
- Check the power cord regularly. The power cord must be replaced by a qualified professional only!
Operation
- Read the complete instruction manual before you operate the appliance for the first time. Strictly observe the safety guidelines!
- Remove the complete protective film !
HOB

| 1 | GLASS CERAMIC PLATE |
| 2 | COOKING ZONE / Ø 190 mm / max. 1700 W |
| 3 | COOKING ZONE / Ø 155 mm / max. 1200 W |
| 4 | CONTROL PANEL (s. below) |

CONTROL PANEL
| 5 | Sensor buttons for the SELECTION OF THE COOKING ZONES |
| 6 | TIMER |
| 7 | Sensor button: ON / OFF |
| 8 | SENSOR BUTTON: – Ø For the selection of the POWER LEVELS of the cooking zones (1 – 9) Ø For the setting of the TIMER |
| 9 | SENSOR BUTTON: + Ø For the selection of the POWER LEVELS of the cooking zones (1 – 9) Ø For the setting of the TIMER |
| 10 | KEY LOCK / CHILD PROTECTION |
Use of the touch control
- The sensor keys respond to touches so you do not need to press them.
- Touch the sensors with the bottom side of your top phalanx but not with your fingertip (see figure below).
- You will hear a beep4 after each effective input.
- Always keep the touch control clean and dry. Cooking utensils and cloths should not cover the touch control. A thin water film may already complicate operating the sensors.

Before initial use
- Clean the glass-ceramic (look at chap. CLEANING AND MAINTENANCE).
Suitable cookware
- Use glass-ceramic suitable cookware only.


- The base of cookware must have a minimum diameter relevant to the diameter of the cooking zone you use the cookware on. Do not use cookware with rough edges or a curved base. The base of your cookware should be flat, contact the glass ceramic completely and have the same diameter as the relevant cooking zone. Always center the cookware on the cooking zone.

- Always lift your cookware, when you want to move it on the glass ceramic. Do not push cookware as you may scratch the glass ceramic.

How to start cooking
WARNING! Never touch the cooking zones while the residual heat indicator is still on. RISK OF BURNS!
When the power is on, an acoustic signal sounds once; all indicators show . Now the appliance has entered the stand-by mode.
- Touch the ON / OFF sensor

- The display indicates

- Place a proper cookware on the DESIRED COOKING ZONE. Always keep the bottom of the cookware as well as the cooking zone clean and dry.

- Select the desired cooking zone by touching the SELECTION OF COOKING ZONE sensor. The indicator flashes for 5 seconds.

- Set the power level using the + and – sensor.
- Each cooking zone is equipped with 9 power levels (1 – 9)

- Each cooking zone is equipped with 9 power levels (1 – 9)
- When you do not set a power level within 1 minute, the appliance will switch off automatically. You have to start at step 1 again.
- While cooking, the power level can be changed at any time.
How to stop cooking
- Touch the SELECTION OF COOKING ZONE-sensor of the cooking zone you want to switch off.

- Switch off the RELEVANT COOKING ZONE by setting the -sensor to 0.

- Check that the indicator displays 0 and then H.

- Switch off the appliance with the ON / OFF sensor.

- Beware of the hot surfaces of the cooking zones! An H indicates which cooking zones are still hot. The H disappears as soon as the relevant cooking zone has cooled down.

- You can use the residual heat for saving energy when starting a new cooking procedure on a cooking zone which is still warm / hot.
Key lock / Child protection
- You can lock the sensors to protect them from unintentional operation or operation by children.
LOCKING OF THE SENSORS
- Touch the KEY LOCK / CHILD PROTECTION.

- The Display will show LO.

- All sensors except ON / OFF are deactivated.
UNLOCKING OF THE SENSORS:
- Check that the appliance is switched on.

- Touch and hold the KEY LOCK / CHILD PROTECTION for 3 seconds

- .
- The LO in the Display goes off.
- All sensor buttons are released again.
- Now you can proceed operation as normal.
NOTICE! When the sensors have been locked, all sensors except ON/OFF are deactivated. You can switch off the appliance with the ON/OFF sensor in case of emergency, but you should unlock the sensors afterwards.
3.8 Timer
The timer switches off the relevant cooking zones as soon as the set time has elapsed.
- The max. selectable period of time is 99 minutes.
- When the selected period of time exceeds 99 minutes, the timer will be set back to 0.
AUTOMATIC SWITCH-OFF FUNCTION OF ONE COOKING ZONE
- Touch the SELECTION OF COOKING ZONE-sensor you want to control via the timer.

- Touch the sensor button of the TIMER.

- The INDICATOR OF THE TIMER will show in the timer display 00 and single digit 0 flashes.

- Set he desired minutes using the + and – sensor.
- Touch + or – once to increase / decrease the value by 1 minute.

- Touch + or – once to increase / decrease the value by 1 minute.
- Touch the sensor button of the TIMER again, then the number to represent tens digit will flash.

- Set he desired dozens of minutes using the + and – sensor.
- Touch + or – once to increase / decrease the value by 1 minute.

- Touch + or – once to increase / decrease the value by 1 minute.
- When you have finished the setting, the count-down of the set time starts. The display indicates the remaining time.

- To indicate which cooking zone (upper / lower cooking zone) has been enabled a red dot next to the INDICATOR OF THE TIMER goes on.

- When the set time has elapsed, the relevant cooking zone is switched off automatically.

WARNING! Other cooking zones will keep operating if they have been turned on previously.
DEACTIVATING OF THE TIMER FUNCTION:
- Touch the – SENSOR to set the remaining time back to 0.

- The TIMER FUNCTION is deactivated when the display indicates -00-.
Residual heat warning
If the appliance has been operated for a while, the cooking zones will emit residual heat even after operation. In such a case the letter “H” is indicated.
Automatic switch-off
The automatic switch-off represents a safety component of your appliance. The automatic switch-off is activated, when you forgot to switch off a cooking zone after operation. The default times are described on the schedule below.
The default times are described on the schedule below:
| POWER LEVEL | AUTO SWITCH–OFF (HOURS) |
| 1 | 8 |
| 2 | 8 |
| 3 | 8 |
| 4 | 4 |
| 5 | 4 |
| 6 | 4 |
| 7 | 2 |
| 8 | 2 |
| 9 | 2 |
Cooking guidelines
- WARNING! Be very careful when frying, because oil and fat heat up very fast especially when operating a high power level. Extremely hot oil and fat inflame spontaneously and represent a serious fire risk.
- WARNING! NEVER try to extinguish a fire with water, but switch off the appliance and then cover flame e.g. with a lid or a fire blanket.
Cooking tips
- Decrease the power level as soon as the desired cooking temperature is reached.
- Use pot-lids to shorten cooking times and save energy.
- Minimize the amount of cooking liquids or fat / oil to shorten cooking times.
- Select a high power level, when you start cooking. Reduce the power level, when your food has been heated up.
SIMMERING / COOKING OF RICE
- Simmering is cooking with a temperature of approx. 85 0C. At this temperature small bubbles ascend to the surface of the cooking liquid. Simmering is a perfect way to cook delicious soups and stews as the flavors of the food unfold completely without being over-heated. You should also cook egg-based sauces and sauces thickened with flour in this way.
- Some cooking procedures, including the cooking of rice with the absorption-method (= the water is consumed completely), require a setting above the lowest power level, so the food is cooked within the recommended cooking time.
STEAKS
- Take the meat out of the fridge and let it rest at room temperature for approx. 20 minutes.
- Heat up a pan with a heavy base.
- Rub both sides of the steak with oil. Drizzle a small amount of oil into the hot pan and place the steak into the pan.
- Turn the meat just once while cooking. The exact cooking time depends from the size of your steak and your individual preferences (medium, medium rare etc.). So the cooking time of each side may vary from 2 to 8 minutes. Press the steak to check the cooking result – a firm steak is well done.
- Leave the steak on a warm plate for a few minutes; so it will become tender.
ASIAN-STYLE COOKING
- Choose a wok with a flat base or a big pan.
- Prepare all ingredients and the cooking utensils you need. Asian-style cooking should work fast. If you want to cook a big amount of food, you should divide the food into several portions.
- Preheat the wok / pan briefly and add two tablespoons of oil.
- Cook the meat first. Put it aside and keep it warm.
- Now cook the vegetable. When the vegetable is hot but still crisp, reduce the power level. Add the meat and, if desired, a sauce.
- Sauté the complete food carefully so all components are hot.
- Serve immediately.
Power levels
| POWER LEVEL: | SUITABILITY (EXAMPLES): |
| Level 1 – 2 |
|
| Level 3 – 4 |
|
| Level 5 – 6 |
|
| Level 7 – 8 |
|
| Level 9 |
|
Saving of energy
- Use proper cookware for cooking.
- Cookware with thick, flat bases can save up to1/3 of electric energy. Remember to cover your cookware if possible; otherwise you will use four times as much energy!
- Match the size of the cookware to the surface of the heating plate. A cookware should never be smaller than a heating plate.
- Ensure that the heating plates and the cookware are clean.
- Soils prevent heat-transfer. Repeatedly burnt-on spillages can often be removed by products, which will damage the environment, only.
- Do not uncover the cookware too often (a watched pot-content will never boil!).
- You can use the residual heat for saving energy when starting a new cooking procedure on a cooking zone which is still warm / hot.
Cleaning and maintenance
WARNING! Switch off the appliance and let it cool down before cleaning. Disconnect the appliance from the mains before maintenance (fuse box of your household power supply)!
WARNING! Do not use a steam cleaner. Risk of electric shock! The steam can damage the electric components of the appliance.
DETERGENTS:
- Do not use any abrasive detergents !
- Do not use any organic detergents ! 5
- Do not use essential oils !
- Never use solvents !
CLEANING OF THE HOB:
- Clean the hob after use.
- Clean the glass-ceramic with a commercially available detergent for glass-ceramic. Use a special sponge and warm water.
- Remove residuals on the glass-ceramic with a soft cloth.
- Do not scrub the glass-ceramic.
- Remove residuals with a silicon-made scraper, which is suitable for glass-ceramic. Such scrapers are commercial available.
Detergents such as vinegar, citric acid etc. 62
| KIND OF CONTAMINATION | |
| STRATEGY | SAFETY GUIDELINES |
| DAILY CONTAMINATION OF THE GLASS CERAMIC (FINGERPRINTS, STAINS CAUSED BY FOOD, NON-SUGARY SPILLAGES). | |
| 1. Disconnect the appliance from the mains (fuse-box). 2. Use a suitable detergent for glass ceramic while the glass ceramic is still warm – but not hot! 3. Clean with a soft cloth / kitchen paper and water, then dry carefully. 4. Connect the appliance to the mains again. | Ø While the appliance is disconnected from the mains the residual heat indicator does not work, so the cooking zones may be still hot. Be very careful. Ø Scourers, nylon-scourers and abrasive detergents can scratch the glass ceramic. Read the product information of these detergents, so you know if they are suitable to clean glass ceramic. Ø Do not leave any residuals of a detergent on the glass ceramic as it can turn stained permanently. |
| OVERCOOKED OR MELTED FOOD AND STAINS CAUSED BY HEATED SUGAR– CONTAINING FOOD ON THE GLASS CERAMIC. | |
| v Remove such a contamination immediately with a suitable glass ceramic scraper. Beware of cooking zones which are still hot!
1. Disconnect the appliance from the mains (fuse-box). 2. Hold the scraper in a 300-angle and scrape off the contamination to a cold area. 3. Clean the contaminated area with a dish towel / kitchen paper. 4. Proceed as described in steps 2 – 4 in the previous section. | Ø Remove such contaminations as soon as possible. When they cool down on the glass ceramic, they are difficult to remove and may damage the glass ceramic permanently. Ø Be very careful when using the scraper so that you do not cut yourself (especially, when you have removed the safety cover). |
| CONTAMINATION OF THE CONTROL PANEL. | |
| 1. Disconnect the appliance from the mains (fuse-box). 2. Take away the contamination. 3. Wipe the sensors with a damp sponge or cloth. 4. Dry the sensors with kitchen paper. 5. Connect the appliance to the mains again. | The appliance may beep and automatically turn off. The sensors may not work properly when they are wet. Dry the control panel carefully before you put it into operation again. |
Trouble shooting
EMERGENCY MEASURES:
- Switch off the entire appliance.
- Disconnect the appliance from the mains (fuse box of your household power supply).
- Contact the shop you purchased the appliance at.
- Check the schedule below before you contact the shop you purchased the appliance at.
| ERROR | |
| CAUSES | MEASURES |
| THE APPLIANCE CANNOT BE SWITCHED ON. | |
|
|
| THE SENSORS DO NOT RESPOND. | |
|
|
| THE SENSORS ARE DIFFICULT TO OPERATE. | |
|
|
| THE GLASS CERAMIC IS SCRATCHED. | |
|
|
| SOME COOKWARE MAKE CRACKING OR CLICKING NOISE. | |
|
|
| THE APPLIANCE MAKES HUMMING NOISE WHEN USED ON A HIGH HEAT SETTING. | |
|
after decreasing the heat setting. |
| NOISE CAUSED BY THE FAN INSIDE THE APPLIANCE. | |
have switched the appliance off. |
|
| COOKWARE DOES NOT BECOME HOT AND THE RELEVANT SYMBOL IS DISPLAYED. | |
cooking zone. |
cooking zone. |
| THE APPLIANCE OR A COOKING ZONE HAS BEEN SWITCHED OFF AUTOMATICALLY AND UNEXPECTEDLY, AN ACOUSTIC SIGNAL SOUNDS AND AN ERROR CODE IS DISPLAYED6 (TYPICALLY ALTERNATING WITH ONE OR TWO DIGITS ON THE TIMER-DISPLAY). | |
|
purchased the appliance at |
If the appliance shows a malfunction not noted on the schedule above or if you have checked all items on the above schedule but the problem still exists, please contact the shop you purchased the appliance at.
Error Code
If an abnormality comes up, the hob will enter the protective state automatically and display corresponding protective codes.
| Problem | Possible causes | What to do |
| E0 & repeated beep sound warning. | Overheating protection: the hob is overheated. | Stop cooking till the internal temperature back to normal. Please contact after sales service to check the hob if there is PCB failure. |
| E1 | Open circuit failure of thermocouple | Please contact after sales service. |
Technical data
| Model | Glass ceramic Hob |
| Control panel | Touch Control |
| Material | Glass ceramic |
| Cooking zones | 2 |
| Power of cooking zones front / rear | 1*1200 W / 1*1700 W |
| Diameter of cooking zones front / rear | 165 mm / 200 mm |
| Maximum power | 2900 W |
| Voltage | 220 – 240 V AC |
| Frequency | 50 Hz |
| Residual heat indicator | ü |
| Power levels | 9 per cooking zone |
| Power cable | 120 cm |
| Timer / adjustable time | ü / up to 99 minutes |
| Dim. installation opening B*T in cm | 27.00*49.00 |
| Installation depth in cm | 4.50 |
| Dim. installation H*B*T in cm | 5.00*29.00*52.00 |
| Weight net / gross in kg | 4.20 / 4.60 |
- Technical modifications reserved.
Waste management
- While unpacking, the packaging materials (polythene bags, polystyrene pieces, etc.) should be kept away from children and pets. CHOKING HAZARD!
- Old and unused appliances must be send for disposal to the responsible recycling centre. Never expose to open flames.
- Before you dispose of an old appliance, render it inoperative. Unplug the appliance and cut off the entire power cord. Dispose of the power cord and the plug immediately.
- Dispose of any paper and cardboard into the corresponding containers.
- Dispose of any plastics into the corresponding containers.
- If suitable containers are not available at your residential area, dispose of these materials at a suitable municipal collection point for waste-recycling.
- Receive more detailed information from your retailer or your municipal facilities.
- Materials marked with this symbol are recyclable.
- Please contact your local authorities to receive further information.
Guarantee conditions
for large electric appliances, PKM GmbH & Co. KG, Newer Wall 2, 47441 Moers.
This appliance includes a 24-month guarantee for the consumer given by the manufacturer, dated from the day of purchase, referring to its flawless material-components and its faultless fabrication. The consumer is accredited with both the dues of the guarantee given by the manufacturer and the vendor’s guarantees. These are not restricted to the manufacturer’s guarantee. Any guarantee claim has to be made immediately after the detection and within 24 months after the delivery to the first ultimate vendee. The guarantee claim has to be verified by the vendee by submitting a proof of purchase including the date of purchase and/or the date of delivery. The guarantee does not establish any entitlement to withdraw from the purchase contract or for a price reduction. Replaced components or exchanged appliances demise to us as our property.
The guarantee claim does not cover:
- fragile components as plastic, glass or bulbs;
- minor modifications of the PKM-products concerning their authorized condition if they do not influence the utility value of the product;
- damage caused by handling errors or false operation;
- damage caused by aggressive environmental conditions, chemicals, detergents;
- damage caused by non-professional installation and haulage;
- damage caused by non common household use;
- damages which have been caused outside the appliance by a PKM-product unless a liability is forced by legal regulations.
The validity of the guarantee will be terminated if:
- the prescriptions of the installation and operation of the appliance are not observed.
- the appliance is repaired by a non-professional.
- the appliance is damaged by the vendor, the installer or a third party.
- the installation or the start-up is performed inappropriately.
- the maintenance is inadequately or incorrectly performed.
- the appliance is not used for its intended purpose.
- the appliance is damaged by force majeure or natural disasters, including, but with not being limited to fires or explosions.
The guarantee claims neither extend the guarantee period nor initiate a new guarantee period. The geographical scope of the guarantee is limited with respect to appliances, which are purchased and used in Germany, Austria, Belgium, Luxembourg and the Netherlands.
SERVICE INFORMATION
Please contact the shop you purchased the appliance at.
| Änderungen vorbehalten | Subject to alterations |
| STAND | UPDATED |
| 12.05.2022 | 05/12/2022 |
© PKM GmbH & Co. KG, Newer Wall 2, 47441 Moers










































