GN163241DXBRN Refrigerator
User Manual
GN163241DXBRN Refrigerator

58 6603 0000/AD
Dear Customer,
Please read this manual before using the product.
Thank you for choosing this product. We would like you to achieve the optimal efficiency from this high quality product which has been manufactured with state of the art technology. To do this, carefully read this manual and any other documentation provided before using the product and keep it as a reference.
Heed all information and warnings in the user manual. This way, you will protect yourself and your product against the dangers that may occur.
Keep the user manual. Include this guide with the unit if you hand it over to someone else.
The following symbols are used in the user guide:
Hazard that may result in death or injury.
NOTICE A hazard that may cause material damage to the product or its surroundings
Important information or useful tips on operation.
Read the user manual.
INFORMATION
![]() | The model information as stored in the product data base can be reached by entering following website and searching for your model identifier (*) found on energy label. https://eprel.ec.europa.eu/ |
Safety Instructions
- This section includes the safety instructions necessary to prevent the risk of personal injury or material damage.
- Our company shall not be held responsible for damages that may occur if these instructions are not observed.
Installation and repair operations shall always be performed by Authorized Service.
Always use genuine spare parts and accessories.
Original spare parts will be provided for 10 years, following the product purchasing date.
Do not repair or replace any part of the product unless specified expressly in the user manual.
Do not perform any modifications on the product.
1.1 Purpose of usage
This product is not intended for commercial use and it shall not be used out of its intended purpose.
This product is intended for operating interiors, such as households or similar.
For example;
- In the staff kitchens of the stores, offices and other working environments,
- In farm houses,
- In the units of hotels, motels or other resting facilities that are used by the customers,
- In hostels, or similar environments,
- In catering services and similar non-retail applications.
This product shall not be used in open or enclosed external environments such as vessels, balconies or terraces. Exposing the product to rain, snow, sunlight and wind may cause risk of fire.
1.2 Safety of children, vulnerable persons and pets
- This product may be used by children aged 8 years and older and persons with underdeveloped physical, sensory or mental capabilities or lack of experience and knowledge if they have been given supervision or instruction concerning use of the appliance in a the product safe way and the hazards involved.
- Children between 3 and 8 years are allowed to put and take out food to/ from the cooler product.
- Electrical products are dangerous for children and pets.
- Children and pets must not play with, climb on, or enter the product. Cleaning and user maintenance should not be performed by children unless there is someone overseeing them.
- Keep the packaging materials away from children. Risk of injury and suffocation.
- Before disposing of old products that shall not be used any more:
1. Unplug the power cord from the mains socket.
2. Cut the power cord and remove it from the appliance together with the plug.
3. Do not remove the racks and drawers from the product to prevent children from getting inside the appliance.
4. Remove the doors.
5. Store the product so that it shall not be tipped over6. Do not allow children to play with the scrapped product. - Do not dispose of the product by throwing it into fire. Risk of explosion.
- If there is a lock available in the product’s doorkeep the key out of children’s reach.
1.3 Electrical safety
- The product shall not be plugged into the outlet during installation, maintenance, cleaning, repair, and transportation operations.
- If the power the cord is damaged, it shall be replaced by authorized service only to avoid any risk that may occur.
- Do not tuck the power cord under the product or to the rear of the product. Do not put heavy items on the power cord. The power cord should not be bent, crushed, and come into contact with any heat source.
- Do not use an extension cord, multiplug or adaptor to operate your product.
- Portable multi sockets or portable power supplies may overheat and cause fire. Thus, do not have a multiplug behind or in the vicinity of the product.
- The plug shall be easily accessible. If this is not possible, a mechanism that meets the electrical legislation and that disconnects all terminals from the mains (fuse, switch, main switch, etc.) shall be available on the electrical installation.
- Do not touch the plug with wet hands.
- When unplugging the appliance, don’t hold the power cord, but the plug.
1.4 Handling Safety
- This product is heavy, do not handle it by yourself.
- Do not hold the product from its door while handling the product.
- Be careful not to damage the cooling system and the pipes while handling the product. Do not operate the product if the pipes are damaged, and contact an authorized service.
1.5 Installation Safety
- Contact the Authorized Service for the product’s installation. To prepare the product for installation, see the information in the user guide and make sure the electric and water utilities are as required. If the installation is not suitable, call a qualified electrician and plumber to have them make the necessary arrangements. Otherwise, electric shock, fire, issues with the product or injuries may occur.
- Check for any damage on the product before installing it. Do not have the product installed if it is damaged.
- Place the product on a level and hard surface and balance with the adjustable legs. Otherwise, the refrigerator may tip over and cause injuries.
- The product shall be installed in a dry and ventilated environment. Do not keep carpets, rugs or similar floor covers under the product. This may cause risk of fire as a result of inadequate ventilation!
- Do not block or cover ventilation holes. Otherwise, power consumption may be increased and damage to your product may occur.
- Do not connect the product to supply systems such as solar power supplies. Otherwise, damage to your product may occur as a result of the abrupt voltage fluctuations!
- The more refrigerant a refrigerator contains, the bigger its installation room shall be. In very small rooms, a flammable gas-air mixture may occur in case of a gas leak in the cooling system. At least 1 m3 of volume is required for each 8 grams of refrigerant. The amount of the refrigerant available in your product is specified in the Type Label.
- The installation place of the product shall not be exposed to direct sunlight and it shall not be in the vicinity of a heat source such as stoves, radiators, etc.
If you cannot prevent installation of the product in the vicinity of a heat source, you shall use a suitable insulation plate and the minimum distance to the heat source shall be as specified below.
– At least 30 cm away from heat sources such as stoves, heating units and heaters, etc.,
– And at least 5 cm away from electric ovens.
- Your product has the protection class of I. Plug the product in a grounded socket that conforms with the Voltage, Current and Frequency values specified in the type label. The socket outlet shall be equipped with a fuse with a rating of 10 A – 16 A. Our company shall not be responsible for the damages that shall be incurred as a result of operating the product without ensuring ground and electrical connections made as per local or national regulations.
- The product’s power cable must be unplugged during installation. Otherwise, risk of electric shock and injury may occur!
- Do not plug the product to loose, broken, dirty, greasy sockets or sockets that has come out their seats or sockets with a risk of water contact.
- Place the power cord and hoses (if available) of the product so that they shall not cause a risk of tripping over. Penetration of humidity to live parts or to the power cord may cause short circuit. Thus, do not use the product in humid environments or in areas where water may splash (e.g. garage, laundry room, etc.) If the refrigerator is wet by water, unplug it and contact an authorized service.
- Do not connect your refrigerator to power saving devices. These systems are harmful for the product.
1.6 Operational safety
- Do not use chemical solvents on the product. These materials contain an explosion risk.
- In case of a failure of the product, unplug it and do not operate until it is repaired by the authorized service. There is a risk of electric shock!
- Do not place a source of flame (e.g. candles, cigarettes, etc.) on the product or in the vicinity of it.
- Do not get on the product. Risk of falling and injury! Do not cause damage to the pipes of the cooling system using sharp and piercing tools. The refrigerant that sprays out in case of puncturing the gas pipes, pipe extensions or upper surface coatings may cause irritation of skin and injuries of the eyes.
- Do not place and operate electric appliances inside the refrigerators/deep freezer unless it is advised by the manufacturer.
- Do not jam any parts of your hands or your body to the moving parts inside the product. Be careful to prevent jamming of your fingers between the refrigerator and its door. Be careful while opening or closing the door if there are children around.
- Do not put ice cream, ice cubes or frozen food to your mouth as soon as you take them out of the freezer. Risk of frostbite!
- Do not touch the inner walls, metal parts of the freezer or food kept inside the refrigerator with wet hands. Risk of frostbite!
- Do not place soda cans or cans and bottles that contain fluids that may be frozen to the freezer compartment. Cans or bottles may explode. Risk of injury and material damage!
- Do not use or place materials sensitive against temperature such as flammable sprays, flammable objects, dry ice or other chemical agents in the vicinity of the refrigerator. Risk of fire and explosion!
- Do not store explosive materials such as aerosol cans with flammable materials inside the product.
- Do not place cans containing fluids over the product. Splashing of water on an electrical part may cause the risk of an electric shock or a fire.
- This product is not intended for storage and cooling of medicines, blood plasma, laboratory preparations or similar materials and products that are subject to the Medical Products Directive. If the product is used against its intended purpose, it may cause damage to or deterioration of the products kept inside.
- If your refrigerator is equipped with blue light, do not look at this light with optical devices. Do not stare directly at UV LED light for a long time. Ultraviolet rays may cause eye strain.
- Do not fill the product with more food than its capacity. Injuries or damages may occur if the contents of the refrigerator falls when the door is opened. Similar problems may occur when an object is placed over the product.
- Ensure that you have removed any ice or water that may have fallen to the floor to prevent injuries.
- Change the locations of the racks/ bottle racks on the door of your refrigerator while the racks are empty only. Danger of physical injury!
- Do not place objects that may fall/ tipped over on the product. These objects may fall while opening or closing the door and cause injuries and/or material damages.
- Do not hit or exert excessive pressure on glass surfaces. Broken glass may cause injuries and/or material damages.
- The cooling system in your product contains R600a refrigerant. The refrigerant type used in the product is specified in the the type label. This gas is flammable. Therefore, be careful not to damage the cooling system and the pipes while operating the product. In case of damage to the pipes;
– do not touch the product or the power cord,
– Keep the product away from potential sources of fire that may cause the product to catch fire.
– ventilation the area where the product is placed. Do not use a fan.
– Contact authorized service. - If the product is damaged and you observe gas leak, please stay away from the gas. Gas may cause frostbite if it contacts your skin.
1.7 Maintenance and cleaning safety
- Do not pull by the door handle if you shall move the product for cleaning purposes. Handle may cause injuries if it is pulled too hard.
- Do not clean the product by spraying or pouring water on the product and inside the product. Risk of electric shock and fire.
- Do not use sharp or abrasive tools to clean the product. Do not use materials such as household cleaning agents, detergents, gas, gasoline, alcohol, wax, etc.
- Use cleaning and maintenance agents that are not harmful for food only inside the product.
- Do not use steam or steamed cleaning materials for cleaning the product and thawing the ice inside it. Steam contacts the live areas in your refrigerator and causes short circuit or electric shock!
- Take care to keep water away from the electronic circuits or lighting of the product.
- Use a clean, dry cloth to wipe the dust or foreign material on the tips of the plugs. Do not use a wet or damp piece of cloth to clean the plug. Otherwise, risk of fire or electric shock may occur.
1.8HomeWhiz (May not be applicable for all models)
• Follow the safety warnings even if you are away from the product while operating the product via HomeWhiz app. Also, pay attention to the warnings in the app.
1.9 Lighting (May not be applicable for all models)
• Contact an authorized service when you shall replace the LED / bulb using for lighting.
Environmental instructions
2.1 Compliance with the WEEE Directive and Disposing of the Waste Product:
This product complies with EU WEEE Directive (2012/19/EU). This product bears a classification symbol for waste electrical and electronic equipment (WEEE).
This symbol indicates that this product shall not be disposed with other household wastes at the end of its service life. Used device must be returned to offical collection point for recycling of electrical and electronic devices. To find these collection systems please contact to your local authorities or retailer where the product was puchased. Each household performs important role in recovering and recycling of old appliance. Appropriate disposal of used appliance helps prevent potential negative consequences for the environment and human health.
2.2 Compliance with RoHS Directive
The product you have purchased complies with EU RoHS Directive (2011/65/EU). It does not contain harmful and prohibited materials specified in the Directive.
2.3 Package information
Packaging materials of the product are manufactured from recyclable materials in accordance with our National
Environment Regulations. Do not dispose of the packaging materials together with the domestic or other wastes. Take them to the packaging material collection points designated by the local authorities.
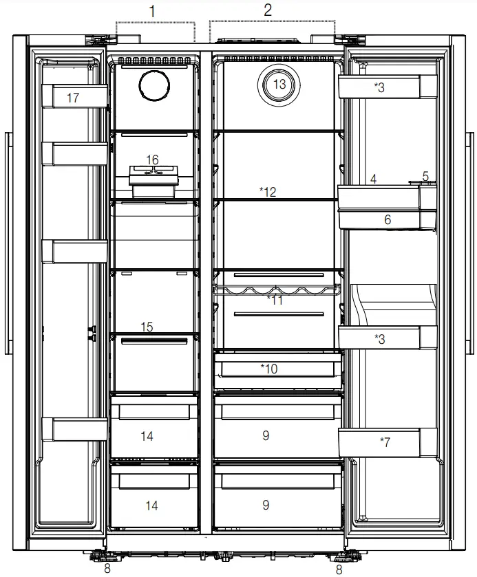
Your Refrigerator

| 1- Freezer compartment 2- Cooler compartment 3- Cooler compartment door shelves 4- Egg Holder 5. Water dispenser filling tank 6. Water dispenser reservoir 7- Bottle shelf 8- Adjustable stands 9- Crispers 10- The dairy (cold storage) bin | 11- Bottle shelf 12- Glass shelves 13- Fan 14- Frozen food storing compartments 15- Freezer compartment glass shelf 16- Icematic 17- Freezer compartment door shelves May not be available in all models |
*Optional: Figures in this user guide are schematic and may not be exactly match your product. If your product does not comprise the relevant parts, the information pertains to other models.
Installation
4.1 The right place for installation
Read the “Safety Instructions” section first!
Your product requires adequate air circulation to function efficiently. If the product will be placed in an alcove, remember to leave at least 5 cm clearance between the product and the ceiling, rear wall and the side walls.
If the product will be placed in an alcove, remember to leave at least 5 cm clearance between the product and the ceiling, rear wall and the side walls. Check if the rear wall clearance protection component is present at its location (if provided with the product). If the component is not available, or if it is lost or fallen, position the product so that at least 5 cm clearance shall be left between the rear surface of the product and the wall of the room. The clearance at the rear is important for efficient operation of the product.
WARNING: Do not use extension or multi sockets in power connection.
WARNING: The manufacturer assumes no responsibility for any damage caused by the work carried out by unauthorized persons.
WARNING: The product’s power cable must be unplugged during installation. Failure to do so may result in death or serious injuries!
WARNING: : If the door span is too narrow for the product to pass, remove the door and turn the product sideways; if this does not work, contact the authorized service.
- Place the product on a flat surface to avoid vibration.
- Place the product at least 30 cm away from the heater, stove and similar sources of heat and at least 5 cm away from electric ovens.
- Do not expose the product to direct sunlight or keep in damp environments.
- The product requires adequate air circulation to function efficiently. If the product will be placed in an alcove, remember to leave at least 5 cm distance between the product and the ceiling and the walls.
4.2 Attaching the plastic wedges
Use the plastic wedges in the provided with the product to provide sufficient space for air circulation between the product and the wall.
- To attach the wedges, remove the screws on the product and use the screws provided with the wedges.

- Attach 2 plastic wedges on the ventilation cover as shown in the figure.

In order to adjust the doors vertically,
- Loosen the fixing nut at the bottom
- Screw adjusting nut (CW/CCW) according to the position of the door
- Tighten the fixing nut for the final position
In order to adjust the doors horizontally,
- Loosen the fixing screw at the bottom
- Loosen the fixing bolt on the top
- Screw the adjusting bolt (CW/CCW) on the side according to the position of the door
- Tighten the fixing bolt on the top for the final position • Tighten the fixing screw at the bottom
4.3 Adjustment of the feet
If the product is not in balanced position, adjust the front adjustable stands by rotating right or left.
4.4 Electrical connection
WARNING: Do not use extension or multi sockets in power connection.
WARNING: Damaged power cable must be replaced by Authorized Service.
- Our firm will not assume responsibility for any damages due to usage without earthing and power connection in compliance with national regulations.
- The power cable plug must be easily accessible after installation.
Hot surface warning!
The side walls of your product are equipped with cooler pipes to enhance the cooling system. High pressure fluid may flow through these surfaces, and cause hot surfaces on the side walls. This is normal and it does not require servicing. Be careful when you contact these areas.
Preparation
Read the “Safety Instructions” section first!
5.1 What to do for energy saving
Connecting the product to electronic energy-saving systems is harmful, as it may damage the product.
- For a freestanding appliance; ‘this refrigerating appliance is not intended to be used as a built- in appliance’ ;
- Do not keep the refrigerator doors open for long periods.
- Do not place hot food or beverages into the refrigerator.
- Do not overfill the refrigerator; blocking the internal air flow will reduce cooling capacity.
- Depending on the product’s features; defrosting frozen foods in the cooler compartment will ensure energy saving and preserve food quality.
- Food shall be stored using the drawers in the cooler compartment in order to ensure energy saving and protect food in better conditions.
- Make sure the foods are not in contact with the cooler compartment temperature sensor described below.

- Since hot and humid air will not directly penetrate into your product when the doors are not opened, your product will optimize itself in conditions sufficient to protect your food. In this energy saving function, functions and components such as compressor, fan, heater, defrost, lighting, display and so on will operate according to the needs to consume minimum energy while maintaining the freshness of your foodstuff.
- In case of multiple options are present glass shelves must be placed so that the air outlets at the backwall are not blocked, prefably air outlets are remaining below the glass shelf. This combination may help impoving air distribution and energy efficiency.

5.2 First operation
Before using your refrigerator, make sure the necessary preparations are made in line with the instructions in “Safety and environment instructions” and “Installation” sections.
- Keep the product running without placing any food inside for 12 hours and do not open the door, unless absolutely necessary.
A sound will be heard when the compressor is engaged. It is normal to hear sound even when the compressor is inactive, due to the compressed liquids and gasses in the cooling system.
It is normal for the front edges of the refrigerator to be warm. These areas are designed to warm up in order to prevent condensation.
For some models, indicator panel turns off automatically 1 minutes after the door closes. It will be reactivated when the door is open or any button is pressed.
Operating the Product
Read the “Safety Instructions” section first!
- Do not use any mechanical tools or any other tools than the recommendations of the manufacturer to speed up the thawing operation.
- Do not use parts of your refrigerator such as the door or drawers as a support or a step. This may cause the product to trip over or its components to be damaged.
- The product shall be used for storing food only.
- Turn off the water valve if you will be away from home (e.g. at vacation) and you will not be using the Ice Maker or the water dispenser for a long period of time. Otherwise, water leaks may occur.
6.1 Turning off the product
- If you shall not be using the product for a long period;
– unplug it,
– remove the food to prevent odours,
– wait until the ice is thawed,
– clean the inside and wait until it is dried.
– leave the doors open to prevent damage to internal body plastics.
Read the “Safety Instructions” section first!
6.2 Indicator panel
Indicator panels may vary depending on the model of your product.
Audial and visual functions of the indicator panel will assist in using the refrigerator.
- Wireless Key
- Quick Freezing Key
- High temperature / error warning
- Energy Saving (Display Off) Indicator
- Freezing Compartment Temperature Setting Key
- Cooling Compartment OFF (Vacation) Function Key
- Cooling Compartment Temperature Setting Key
- Key for Resetting Wireless Connection Settings
- Odor Removal Module Key
*May not be available in all models
*Optional: Shown functions are optional, there may be differences of shape and location in functions found on your device’s display panel.
Using the product
- Wireless Key
This key is used to make a wireless connection with your product via HomeWhiz mobile app.
When the key is pressed for a long period (3 seconds), the wireless connection symbol on the display/screen flashes slowly (with intervals of 0.5 seconds). The home network is initialized on the product this way. After achieving wireless connection with the product, wireless connection symbol (
) illuminates continuously.
When the initial connection is established, you may activate/deactivate the connection with a short press on this key. The wireless connection symbol shall flash quickly (at 0.2 second intervals) until the connection is established. When the connection is active, the wireless network symbol shall light up continuously. If the connection cannot be established for a long period, check your connection settings and refer to the “Troubleshooting” section provided in the user manual.
HomeWhiz application shall be used for wireless connection. Installation steps are described on the application during installation.
You may access the application by reading the QR code available on the HomeWhiz label on the product. Application is offered through App Store for IOS devices, and through Play Store for Android devices.
Visit https://www.homewhiz.com/ for detailed information.’ - Quick Freezing Key
When the quick freeze key is pressed, the LED on the key is illuminated and the quick freeze function shall be activated. Freezing compartment temperature is set to -27 Celcius. Press the key again to cancel function. The quick freezing function shall be automatically cancelled after 24 hours. To freeze a large amount of fresh food, press the quick freeze key before placing the food in the freezer compartment. - High temperature / error warning
This indicator (
) shall be active when your refrigerator cannot perform adequate cooling or in case of any sensor error. “E” shall be displayed on the Freezing Compartment temperature indicator and figures such as 1,2,3… shall be displayed on the cooling compartment temperature indicator. These figures provide information to the authorized service on the error that has occurred.
Exclamation mark may be displayed when you load warm food to the freezing compartment or keep the door open for a long period of time. This is not a fault, this warning shall be removed when the food is cooled down or when any key is pressed. - Energy Saving (Display Off) Indicator
Energy saving function is enabled automatically and the energy saving symbol (
) is displayed when the door of the product is not opened or closed for some period of time. When the energy saving function is active, all symbols on the screen other than the energy saving symbol shall be turned off. When the energy-saving function is active, pressing any key or opening the door will deactivate the energy-saving function and the display signals will return to normal. The energy-saving function is a function activated ex-factory and cannot be cancelled. - Freezing Compartment Temperature Setting Key
Temperature setting is made for cooler compartment. Pressing this key will enable the freezer compartment temperature to be set at -18,-19,-20,-21,-22,-23,-24 Celcius. - Cooling Compartment OFF (Vacation) Function Key
Press the key for 3 seconds to activate the vacation function. Vacation mode is activated and the LED on the key is illuminated. “- -” shall be displayed on the Cooling Compartment temperature indicator and the cooling compartment does not actively perform cooling. You shall not keep your food in the cooling compartment when this function is activated. The other compartments continue to cool according to the set temperatures. Press the key for 3 seconds again to cancel this function. - Cooling Compartment Temperature Setting Key
Allows setting of temperature for cooler compartment.
Pressing this key will enable the cooling compartment temperature to be set at 8,7,6,5,4,3,2 and 1 Celcius. - Key for Resetting Wireless Connection Settings
To reset the wireless connection settings, press Quick freezing (
) and wireless connection (
) keys simultaneously for 3 seconds. All user information recorded previously are removed on a product where wireless connection settings are reset/restored to factory defaults. - Odor Removal Module Key
Press this key for 3 seconds to enable/disable odor removal feature. The LED on the key turns on when odor removal feature is enabled. When the feature is enabled, odor removal module works periodically.
6.3 Indicator panel
Indicator panels may vary depending on the model of your product.
Audial and visual functions of the indicator panel will assist in using the refrigerator.
| 1. High temperature / error warning 2. Wireless Key 3. Freezing Compartment Temperature Setting Key 4. Cooling Compartment Temperature Setting Key | 5. Cooling Compartment OFF (Vacation) Function Key 6. Key lock 7. Quick Freezing Key 8. Key for Resetting Wireless Connection Settings |
*May not be available in all models
*Optional: Shown functions are optional, there may be differences of shape and location in functions found on your device’s display panel.
Using the product
- High temperature / error warning
This indicator (
) shall be active when your refrigerator cannot perform adequate cooling or in case of any sensor error. “E” shall be displayed on the Freezing Compartment temperature indicator and figures such as 1,2,3… shall be displayed on the cooling compartment temperature indicator. These figures provide information to the authorized service on the error that has occurred.
Exclamation mark may be displayed when you load warm food to the freezing compartment or keep the door open for a long period of time. This is not a fault, this warning shall be removed when the food is cooled down or when any key is pressed. - Wireless Key
This key is used to make a wireless connection with your product via HomeWhiz mobile app. When the key is pressed for a long period (3 seconds), the wireless connection symbol on the display/screen flashes slowly (with intervals of 0.5 seconds). The home network is initialized on the product this way. After achieving wireless connection with the product, wireless connection symbol (
) illuminates
continuously.
When the initial connection is established, you may activate/deactivate the connection with a short press on this key. The wireless connection symbol shall flash quickly (at 0.2 second intervals) until the connection is established. When the connection is active, the wireless network symbol shall light up continuously. If the connection cannot be established for a long period, check your connection settings and refer to the “Troubleshooting” section provided in the user manual. HomeWhiz application shall be used for wireless connection. Installation steps are described on the application during installation.
You may access the application by reading the QR code available on the HomeWhiz label on the product. Application is offered through App Store for IOS devices, and through Play Store for Android devices. Visit https://www.homewhiz.com/ for detailed information. - Freezing Compartment Temperature Setting Key
Temperature setting is made for cooler compartment.
Pressing this key will enable the freezer compartment temperature to be set at -18,-19,-20,-21,-22,-23,- 24 Celcius. - Cooling Compartment Temperature Setting Key
Allows setting of temperature for cooler compartment.
Pressing this key will enable the cooling compartment temperature to be set at 8,7,6,5,4,3,2 and 1 Celcius. - Cooling Compartment OFF (Vacation) Function Key
Press the key for 3 seconds to activate the vacation function. Vacation mode is activated and vacation icon lights up “- -” shall be displayed on the Cooling Compartment temperature indicator and the cooling compartment does not actively perform cooling. You shall not keep your food in the cooling compartment when this function is activated. The other compartments continue to cool according to the set temperatures. Press the key for 3 seconds again to cancel this function.Vacation mode is activated and the holiday icon lights up. - Key lock
When the key lock key (
) is pressed for 3 seconds, the key lock is activated and key lock icon lights up. Press the key for 3 seconds again to cancel the key lock.
You may use the key lock feature when you want to prevent changes to the temperature setting of the refrigerator. - Quick Freezing Key
When the quick freeze key is pressed, quick freeze icon lights up and the quick freeze function shall be activated. Freezing compartment temperature is set to -27 Celcius. Press the key again to cancel function. The quick freezing function shall be automatically cancelled after 24 hours. To freeze a large amount of fresh food, press the quick freeze key before placing the food in the freezer compartment. - Key for Resetting Wireless Connection Settings
To reset the wireless connection settings, press Quick freezing (
) and wireless connection (
) keys simultaneously for 3 seconds. All user information recorded previously are removed on a product where wireless connection settings are reset/restored to factory defaults.
6.4 Deodoriser Module (FreshGuard)
* May not be available in all models
The deodoriser module quickly eliminates the bad smells in your refrigerator before they permeate the surfaces. Thanks to this module, which is placed on the ceiling of the fresh food compartment, the bad odours dissolve while the air is actively being passed on the odour filter, then the air that has been cleaned by the filter is re-emitted to the fresh food compartment. This way, the unwanted odours that may emerge during the storage of foods in the refrigerator are eliminated before they permeate the surfaces.
This is achieved thanks to the fan, LED and the odour filter integrated into the module. When you want to use the deodorizer module, please activate it from the indicator button.![]()
6.5 Humidity controlled crisper (EverFresh+)
*May not be available in all models
Thanks to the humidity controlled crisper, vegetables and fruits may be stored for a longer period at an environment with ideal humidity conditions. With the humidity setting system with 3 options in front of your crisper, you may control the humidity inside the compartment as per the food you store. We recommend you to store your food by selecting vegetable option when you store vegetables only, fruit option when you store fruit only and mixed option when you store mixed food. We recommend that the vegetables and fruits shall not be stored in bags to improve the storage period of the food and to better benefit from the humidity control system. Leaving them in plastic bags causes vegetables to rot in a short time. We recommend that cucumbers and broccolis, in particular, are not stored in closed bags. In situations where contact with other vegetables is not preferred, use packaging materials such as paper that has a certain level of porosity in terms of hygiene.
When placing the vegetables, place heavy and hard vegetables at the bottom and light and soft ones on the top, taking into account the specific weights of vegetables. Do not put fruits that have a high ethylene gas production such as pear, apricot, peach and particularly apple in the same crisper with other vegetables and fruits. The ethylene gas coming out of these fruits might cause other vegetables and fruits to mature faster and rot in a shorter period of time.
6.6 Blue Light/HarvestFresh
*May not be available in all models
For Blue light, Vegetables and fruit stored in crispers illuminated with blue light continue to perform photosynthesis and retain their levels of C vitamin thanks to the effect of the wavelength of the blue light.
For HarvestFresh,
Vegetables and fruit stored in crispers illuminated with HarvestFresh technology retain their vitamin levels (vitamins A and C) for a longer period thanks to the cycles of blue, green, red lights and dark that simulate the cycle of the day.
When the door of your refrigerator is opened dur- ing the dark period of the HarvestFresh technology, your refrigerator shall sense this automatically and illuminate the crisper with one of the blue, green or red lights respectively for your convenience. The dark period shall be continued when you close the door of your refrigerator so that it shall represent the night period of the day cycle.
6.7 Using the water fountain
*May not be available in all models
The first few glasses of water taken from the fountain will normally be warm.
If the water fountain is not used for a long time, dispose of the first few glasses of water to get clean water.
- Push the arm of the water fountain with your glass. It would be easier to push the arm with your hand if you are using a soft plastic glass.
- Release the arm after filling your glass with water as you desire.

The amount of water flow from the fountain depends on the pressure you apply on the arm. Release the pressure on the arm slightly as the water level in your glass/container is increased to prevent overflow. Water shall drip if you press the arm slightly; this is normal and it is not a malfunction.
6.8 Filling the water tank of the water fountain
Open the lid of the water tank as shown in the figure. Fill in pure and clean drinking water. Close the lid.
6.9 Cleaning the water tank
Remove the water filling reservoir inside the door shelf.
Detach by holding both sides of the door shelf.
Hold both sides of the water tank and remove at 45° angle.
Remove and clean the water tank lid.
Do not fill the water tank with fruit juice, fizzy beverages, alcoholic beverages or any other liquids incompatible for use in the water fountain. Using such liquids will cause malfunction and irreparable damage in the water fountain. Using the fountain in this way is not within the scope of warranty. Such certain chemicals and additives in the beverages / liquids may cause material damage to the water tank.
The water tank and water fountain components cannot be washed with dishwashers.
Components of the water tank and water dispenser should not be washed in dishwasher.
6.10 Dairy (cold storage) bin
*May not be available in all models
“The dairy (cold storage) bin ” provides lower temperature within the refrigerator compartment.
Use this bin to store delicatessen (salami, sausages, dairy products and etc. ) that requires lower storage temperature or meat, chicken or fish products for immediate consumption. Do not store fruits and vegetables inside this bin.
6.11 Crisper
The refrigerator’s vegetable bin is designed to keep crispers fresh by preserving humidity. For this purpose, the overall cold air circulation is intensified in the crisper bin. Keep fruits and vegetables in this compartment. Keep the green-leaved crispers and fruits separately to prolong their life.
6.12 Ionizer
*May not be available in all models
The ionizer system in the cooler compartment’s air duct serves to ionize the air. The negative ion emissions will eliminate bacteria and other molecules causing odour in the air.
6.13 Odour filter
*May not be available in all models
The odour filter in the cooler compartment’s air duct will prevent undesirable odour formation.
6.14 Icematic and ice storage box
*May not be available in all models
Fill the icematic with water and put in place. The ice will be ready after approximately two hours. Do not remove the icematic to take the ice. Turn the buttons on the ice chambers right-hand side by 90°; the ice will fall to the ice storage box below. You may then remove the ice storage box and serve the ice.
The ice storage box is intended for storing ice only. Do not fill with water. Doing so will cause it to break.
In products with automatic ice machine, you might hear a sound when pouring the ice. This sound is normal and is not a sign of failure.
6.15 Freezing fresh food
- To preserve food quality, the food items placed in the freezer compartment must be frozen as quickly as possible, use the rapid freezing for this.
- To freeze a large amount of fresh food, press the rapid freeze button 24 hours before placing the food in the freezer compartment.
- Freezing the food items when fresh will extend the storage time in the freezer compartment.
- Pack the food items in air-tight packs and seal tightly.
- Make sure the food items are packed before putting in the freezer. Use freezer holders, tinfoil and damp-proof paper, plastic bag or similar packaging materials instead of
traditional packaging paper. - Mark each food pack by writing the date on the package before freezing.This will allow you to determine the freshness of each pack every time the freezer is opened. Keep the earlier food items in the front to ensure they are used first.
- Frozen food items must be used immediately after defrosting and should not be frozen again.
- Do not free large quantities of food at once.
| Freezer Compartment Setting | Cooler Compartment Setting | Descriptions |
| -18°C | 4°C | This is the default, recommended setting. |
| -20,-22 or -24°C | 4°C | These settings are recommended for ambient temperatures exceeding 30°C. |
| Rapid Freeze | 4°C | Press Rapid Freeze function 24 hours before placing the food, the product will reset to previous settings when the process is completed. |
| -18°C or colder | 2°C | Use these settings if you believe the cooler compartment is not cold enough due to ambient temperature or frequently opening the door. |
6.16 Recommendations for storing frozen foods
The compartment must be set to at least -18°C.
- Place the food items in the freezer as quickly as possible to avoid defrosting.
- Before freezing, check the “Expiry Date” on the package to make sure it is not expired.
- Make sure the food’s packaging is not damaged.
6.17 Deep freezer details
As per the IEC 62552 standards, the freezer must have the capacity to freeze 4,5 kg of food items at -18°C or lower temperatures in 24 hours for each 100 litres of freezer compartment volume. Food items can only be preserved for extended periods at or below temperature of -18°C . You can keep the foods fresh for months (in deep freezer at or below temperatures of 18°C ).
The food items to be frozen must not contact the already-frozen food inside to avoid partial defrosting.
Boil the vegetables and filter the water to extend the frozen storage time. Place the food in air-tight packages after filtering and place in the freezer. Bananas, tomatoes, lettuce, celery, boiled eggs, potatoes and similar food items should not be frozen. Freezing these food items will simply reduce the nutritional value and food quality, as well as possible spoiling which is harmful to health.
6.18 Placing the food
| Freezer compartment shelves | Various frozen goods including meat, fish, ice cream, vegetables etc. |
| Cooler compartment shelves | Food items inside pots, capped plate and capped cases, eggs (in capped case) |
| Cooler compartment door shelves | Small and packed food or beverages |
| Vegetable bin | Fruits and vegetables |
| Fresh food compartment | Delicatessen (breakfast food, meat products to be consumed in short notice) |
6.19 Door open alert
*May not be available in all models
An audible alert will be heard if the product’s door remains open for 1,5 minute. The audible alert will stop when the door is closed or any button on the display (if available) is pressed.
6.20 Illumination lamp
Interior light uses a LED type lamp. Contact the authorized service for any problems with this lamp. Lamp(s) used in this appliance cannot be used for house lighting. Intended use of this lamp is to help the user place food into the refrigerator / freezer safely and comfortably.
Maintenance and cleaning
WARNING: Read the “Safety Instructions” section first!.
WARNING: Unplug the refrigerator before cleaning it.
- Do not use sharp or abrasive tools to clean the product. Do not use materials such as household cleaning agents, soap, detergents, gas, gasoline, alcohol, wax, etc.
- The dust shall be removed from the ventilation grill on the rear of the product at least once a year (without opening the cover). Cleaning shall be performed with a dry cloth.
- Take care to keep water away from the lamp’s cover and other electrical parts.
- Clean the door with a damp cloth. Remove all contents to remove the door and body racks. Remove the door racks by lifting them upwards. Clean and dry the shelves, then attach back in place by sliding from above.
- Do not use chlorinated water or cleaning products on the exterior surface and chrome- coated parts of the product. Chlorine will cause rust on such metallic surfaces.
- Do not use sharp and abrasive tools, soap, house cleaning materials, detergents, gas, gasoline, varnish and similar substances to prevent deformation of the plastic part and removal of prints on the part. Use warm water and a soft cloth for cleaning, and then dry it.
- On the products without a No-Frost feature, water droplets and icing up to a thickness of a finger may occur on the rear wall of the freezer compartment. Do not clean, and never apply oils or similar materials.
- Use a mildly dampened micro-fiber cloth to clean the external surface of the product. Sponges and other types of cleaning clothes may cause scratches.
- To clean all removable components during the cleaning of the interior surface of the product, wash these components with a mild solution consisting of soap, water and carbonate. Wash and dry thoroughly. Prevent contact of water with illumination components and the control panel.
CAUTION:
Do not use vinegar, rubbing alcohol or other alcohol based cleaning agents on any interior surface.
7.1 Stainless Steel External Surfaces
Use a non-abrasive stainless steel cleaning agent and apply it with a soft lint-free cloth. To polish, gently wipe the surface with a micro-fiber cloth dampened with water and use dry polishing chamois. Always follow the veins of the stainless steel.
7.2 Cleaning of the Products with Glass Doors
Remove the protective foil on the glasses. There is a coating on the surface of the glasses. This coating minimizes formation of stains and provides easy cleaning of the stains and dirts that have been formed. Glass that is not protected by coating may be exposed to permanent bonding of organic or inorganic, air and water-based contaminants such as limestone, mineral salts, unburned hydrocarbons, metal oxides and silicones, which cause staining and physical damage easily in a short period of time. Keeping the glasses clean becomes very difficult, if not impossible, despite the fact they are cleaned regularly. As a result, the transparency and appearance of the glass deteriorates. Hard and abrasive cleaning methods and agents further increase these defects and accelerate the process of deterioration.
For routine cleaning processes, *non-alkaline and non-corrosive water based cleaning products shall be used.
In order to have a longer service life of this coating, alkaline and corrosive substances shall not be used during cleaning.
A tempering process is applied to increase the resistance of these glasses against impacts and breakage.
As an additional safety precaution, a safety film has been applied to the rear surface of these glasses to prevent harm to the environment in case it breaks.
7.3 Preventing Odours
The product is manufactured free of any odorous materials. However, keeping the food in inappropriate sections and improper cleaning of internal surfaces may lead to odours. To avoid this, clean the inside with carbonated water every 15 days.
- Keep the foods in sealed holders.
Microorganisms may spread out of unsealed food items and cause malodour. - Do not keep expired and spoilt foods in the refrigerator.
Tea is one of the most effective odour removers. Place the pulp of the brewed tea in the product inside an open container and remove it after 12 hours at the latest.
If you keep the tea pulp inside the product for longer than 12 hours, it will collect the organisms that cause the odour so it can be the source of odour itself.
7.4 Protecting Plastic Surfaces
Oil spilled on plastic surfaces may damage the surface and must be cleaned immediately with warm water.
Troubleshooting
Check this list before contacting the service. Doing so will save you time and money. This list includes frequent complaints that are not related to faulty workmanship or materials. Certain features mentioned herein may not apply to your product.
The refrigerator is not working.
- The power plug is not fully settled. >>> Plug it in to settle completely into the socket.
- The fuse connected to the socket powering the product or the main fuse is blown. >>> Check the fuse.
Condensation on the side wall of the cooler compartment (MULTI ZONE, COOL, CONTROL and FLEXI ZONE).
- The door is opened too frequently >>> Take care not to open the product’s door too frequently.
- The environment is too humid. >>> Do not install the product in humid environments.
- Foods containing liquids are kept in unsealed holders. >>> Keep the foods containing liquids in sealed holders.
- The product’s door is left open. >>> Do not keep the product’s door open for long periods.
- The thermostat is set to a very cool
- temperature. >>> Set the thermostat to an appropriate temperature.
Compressor is not working.
- In case of sudden power failure or pulling the power plug off and putting back on, the gas pressure in the product’s cooling system is not balanced, which triggers the compressor thermic safeguard. The product will restart after approximately 6 minutes. If the product does not restart after this period, contact the service.
- Defrosting is active. >>> This is normal for a fully-automatic defrosting product. The defrosting is carried out periodically.
- The product is not plugged in. >>> Make sure the power cord is plugged in.
- The temperature setting is incorrect. >>> Select the appropriate temperature setting.
- The power is out. >>> The product will continue to operate normally once the power is restored.
The refrigerator’s operating noise is increasing while in use.
- The product’s operating performance may vary depending on the ambient temperature variations. This is normal and not a malfunction.
The refrigerator runs too often or for too long.
- The new product may be larger than the previous one. Larger products will run for longer periods.
- The room temperature may be high. >>> The product will normally run for long periods in higher room temperature.
- The product may have been recently plugged in or a new food item is placed inside. >>> The product will take longer to reach the set temperature when recently plugged in or a new food item is placed inside. This is normal.
- Large quantities of hot food may have been recently placed into the product. >>> Do not place hot food into the product.
- The doors were opened frequently or kept open for long periods. >>> The warm air moving inside will cause the product to run longer. Do not open the doors too frequently.
- The freezer or cooler door may be ajar. >>> Check that the doors are fully closed.
- The product may be set to temperature too low. >>> Set the temperature to a higher degree and wait for the product to reach the adjusted temperature.
- The cooler or freezer door washer may be dirty, worn out, broken or not properly settled. >>> Clean or replace the gasket. Damaged / torn door washer will cause the product to run for longer periods to preserve the current temperature.
The freezer temperature is very low, but the cooler temperature is adequate.
- The freezer compartment temperature is set to a very low degree. >>> Set the freezer compartment temperature to a higher degree and check again.
The cooler temperature is very low, but the freezer temperature is adequate.
- The cooler compartment temperature is set to a very low degree. >>> Set the freezer compartment temperature to a higher degree and check again.
The food items kept in cooler compartment drawers are frozen.
- The cooler compartment temperature is set to a very low degree. >>> Set the freezer compartment temperature to a higher degree and check again.
The temperature in the cooler or the freezer is too high.
- The cooler compartment temperature is set to a very high degree. >>> Temperature setting of the cooler compartment has an effect on the temperature in the freezer compartment. Wait until the temperature of relevant parts reach the sufficient level by changing the temperature of cooler or freezer compartments.
- The doors were opened frequently or kept open for long periods. >>> Do not open the doors too frequently.
- The door may be ajar. >>> Fully close the door.
- The product may have been recently plugged in or a new food item is placed inside. >>> This is normal. The product will take longer to reach the set temperature when recently plugged in or a new food item is placed inside.
- Large quantities of hot food may have been recently placed into the product. >>> Do not place hot food into the product.
Shaking or noise.
- The ground is not level or durable. >>> If the product is shaking when moved slowly, adjust the stands to balance the product. Also make sure the ground is sufficiently durable to bear the product.
- Any items placed on the product may cause noise. >>> Remove any items placed on the product.
The product is making noise of liquid flowing, spraying etc.
- The product’s operating principles involve liquid and gas flows. >>> This is normal and not a malfunction.
There is sound of wind blowing coming from the product.
- The product uses a fan for the cooling process. This is normal and not a malfunction.
There is condensation on the product’s internal walls.
- Hot or humid weather will increase icing and condensation. This is normal and not a malfunction.
- The doors were opened frequently or kept open for long periods. >>> Do not open the doors too frequently; if open, close the door.
- The door may be ajar. >>> Fully close the door.
There is condensation on the product’s exterior or between the doors.
- The ambient weather may be humid, this is quite normal in humid weather. >>> The condensation will dissipate when the humidity is reduced.
The interior smells bad.
- The product is not cleaned regularly. >>> Clean the interior regularly using sponge, warm water and carbonated water.
- Certain holders and packaging materials may cause odour. >>> Use holders and packaging materials without free of odour.
- The foods were placed in unsealed holders. >>> Keep the foods in sealed holders. Micro- organisms may spread out of unsealed food items and cause malodour.
- Remove any expired or spoilt foods from the product..
The door is not closing.
- Food packages may be blocking the door. >>> Relocate any items blocking the doors.
- The product is not standing in full upright position on the ground. >>> Adjust the stands to balance the product.
- The ground is not level or durable. >>> Make sure the ground is level and sufficiently durable to bear the product.
The crisper is jammed.
- The food items may be in contact with the upper section of the drawer. >>> Reorganize the food items in the drawer.
In case of a Hot Surface on the Product,
- High temperature may be observed between two doors, on the side panels and on the rear grill area while your product is operated. This is normal and it does not require servicing!
Fan continues to operate when the door is opened.
- Fan may continue to operate when the the freezer door is open.
WARNING: If the problem persists after following the instructions in this section, contact your vendor or an Authorized Service. Do not try to repair the product.
DISCLAIMER / WARNING
Some (simple) failures can be adequately handled by the end-user without any safety issue or unsafe use arising, provided that they are carried out within the limits and in accordance with the following instructions (see the “Self-Repair” section).
Therefore, unless otherwise authorized in the “Self-Repair” section below, repairs shall be addressed to registered professional repairers in order to avoid safety issues. A registered professional repairer is a professional repairer that has been granted access to the instructions and spare parts list of this product by the manufacturer according to the methods described in legislative acts pursuant to Directive 2009/125/EC.
However, only the service agent (i.e. authorized professional repairers) that you can reach through the phone number given in the user manual/ warranty card or through your authorized dealer may provide service under the guarantee terms. Therefore, please be advised that repairs by professional repairers (who are not authorized by Beko) shall void the guarantee.
Self-Repair
Self-repair can be done by the end-user with regard to the following spare parts: door handles,door hinges, trays, baskets and door gaskets (an updated list is also available in support.beko.com as of 1st March 2021).
Moreover, to ensure product safety and to prevent risk of serious injury, the mentioned self-repair shall be done following the instructions in the user manual for self-repair or which are available in support.beko.com. For your safety, unplug the product before attempting any self-repair.
Repair and repair attempts by end-users for parts not included in such list and/or not following the instructions in the user manuals for self-repair or which are available in support.beko.com, might give raise to safety issues not attributable to Beko, and will void the warranty of the product.
Therefore, it is highly recommended that end-users refrain from the attempt to carry out repairs falling outside the mentioned list of spare parts, contacting in such cases authorized professional repairers or registered professional repairers. On the contrary, such attempts by end-users may cause safety issues and damage the product and subsequently cause fire, flood, electrocution and serious personal injury to occur.
By way of example, but not limited to, the following repairs must be addressed to authorized professional repairers or registered professional repairers: compressor, cooling circuit, main board,inverter board, display board, etc.
The manufacturer/seller cannot be held liable in any case where end-users do not comply with the above.
The spare part availability of the refrigerator that you purchased is 10 years.
During this period, original spare parts will be available to operate the refrigerator properly The minimum duration of guarantee of the refrigerator that you purchased is 24 months.
This product is equipped with a lighting source of the “G” energy class.
The lighting source in this product shall only be replaced by professional repairers.




















