Generic V3 Remove Doors and Drawers
Instruction Manual
Hey qualified tradie!
Be a legend and please read installation instructions inside before installation
If the product is not installed in accordance with these instructions, your ADP warranty may be void and the homeowner may have a claim against you (the installer).
Hey home owner! Please read important care, maintenance and warranty info inside
PRIOR TO INSTALLATION CHECKLIST
This product must be installed by a qualified tradesperson and we would expect the installation to be undertaken in a tradesperson like manner and finished to a tradesperson standard. This product carries a full warranty against faulty workmanship and materials.
Please inspect thoroughly before installation to ensure that the product has not been damaged and is correct. No claims for damage or incorrect items will be recognised after installation.
IT IS THE RESPONSIBILITY OF THE INSTALLER TO MAKE ANY ADJUSTMENTS TO DOORS/DRAWERS AFTER INSTALLATION IF REQUIRED.
Please Note: If you cannot find the installation instructions for your ADP product in this booklet please go to www.adpaustralia.com.au/installation-warranty to find applicable instructions.
1. Check Products For Any Damages
Within 48 hours of receiving your goods, unpack your ADP product and check for any possible freight damages or incorrect items.
Please contact your place of purchase to report damages or missing parts.
No claims for damages will be recognised after installation.
Please note: fixing screws/bolts are not supplied for installation.

2. Positioning & Ventilation

Planning your bathroom furniture placement is critical.
Furniture must be at least 300mm away from any wet areas. Materials used in the construction of our furntiture units are moisture resistant, not water proof.
Do not expose furniture to shower spray.
It is important that your bathroom is adequatley ventilated to eliminate moisture build up.
High humidity will lead to permanent dampness and mould resulting in a deterioration of the materials in your bathroom.
Water damage is not covered under ADP Warranty.
3. Check for Support Beams
Wall hung furniture & basins require fixing to a support beam fitted between the studs to give a solid wall backing to attach the vanity to.

If necessary, fix additional support noggins at desired height for cabinet and basin fixing prior to sheeting the wall.
Ensure total width of support noggin exceeds vanity width.
4. Check for Plumb Walls & Level Floors
Ensure the wall is plumb and straight, ensure floor is level. If you fix the product to a non-plumb wall or floor the following could happen:
- Your door or drawers will not operate correctly.
- Door or drawers will not align.
- Basins will not sit level, which may cause water to pool or not drain properly.

If it is not possible to make the wall or floor plumb and straight you must pack the vanity out so that it does not follow the out of aligned wall.
Floor standing vanities must sit on a level floor or be packed so they sit level and true.
Please note if your vanity is fixed to a bowed wall, the fastening of the fixings will force your cabinet to twist and benchtop materials may crack due to increased stress on joins and materials.
5. Check Plumbing Positions Align with Product Interior Configurations.
Take note of clearances behind drawers when
considering water supply fittings inside cabinet.

Please note if your product has any electrical fittings please allow for this and talk to your electrician
IMPORTANT TIPS
ENSURE ALL TILES EXTEND BEHIND AND BENEATH THE BATHROOM FURNITURE.
ADP do not recommend tiling in furniture due to moisture and mould build up which can damage the material and void the warranty.
ALL AREAS WHERE CABINET/TOP MEETS WALL AND/OR FLOOR MUST BE SEALED USING A NEUTRAL CURE SILICONE.
All edges where vanity top meets cabinet, wall or surrounding furniture must be sealed with a continuous bead of silicone.
IT IS THE RESPONSIBILITY OF THE INSTALLER TO MAKE ANY ADJUSTMENTS TO DOORS/DRAWERS AFTER INSTALLATION IF REQUIRED.
There may have been some movement in transportation and installation which causes doors/drawers to become unaligned.
VANITY INSTALLATION
Which Vanity solution do you have?
STANDARD VANITY

AGAINST WALL OR BETWEEN WALLS

You will need to install a filler, wide filler or infill panel.
For further instructions visit www.adpaustralia.com.au Including metal frames, stone benches and petite with rail.
STANDARD VANITY INSTALLATION
1. LOCATION

After completing the Prior to Installation Checklist on page 2, mark the position of the top of the vanity. Don’t forget to factor in the top/basin thickness to get the correct height.
Note: Vanity must attach to a minimum of two support beams, mark these positions.
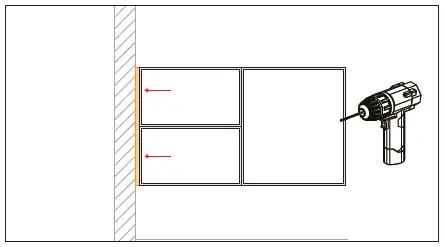
2. PREPARING THE CABINET

Remove doors and drawers. Measure correct plumbing loctions and drill holes for plumbing in the back panel and/or base of the cabinet with an appropriate sized hole saw. Pre-drill screw locations for fastening to wall as per ‘Step 4’.
3. LEVELING

Position the vanity over the pipes in the correct position and fix with a single screw in centre of vanity to hold in place.
Check the vanity is completely level.
Wall Hung vanities:
You may want use a level support/noggin to assist while leveling.
Floor Mount Vanities:
You may need to pack the vanity to ensure it is sitting level & square on
the floor. See page 8 for instructions to attach kickboard.
4. SECURING THE CABINET

Securely fasten the vanity to the wall through back of vanity with appropriate screws/bolts at TOP and BOTTOM of cabinet. Fix the cabinet through the top left and right hand brackets and evenly space apart the horizontal fixings at a maximum of 300mm apart. For the bottom start the fixing points no further than 100mm from each end of the cabinet and no higher than 50mm from the base panel.
Note: Where a stud or support beam cannot be located, use an appropriately sized hollow wall anchor. Vanity must attach to a minimum of two support beams. Ensure fixings clear all water/electrical services in wall.
5. REMOVE TRANSPORTATION BLOCKS

Once cabinet is secured to the wall carefully remove transportation blocks from the underside of the cabinet (we recommend using a chisel).
6. FIX TOP / BASIN

Using a non-acidic silicone, apply a continuous bead of silicone to the top four edges of the vanity and at the back where the top meets the wall. Position the top so it has equal overhang on each side, ensuring the top surface is level.
If using a seperate basin, position in place and fully seal the basin to the top /cabinet using a continuous bead of silicone.
Note: Seal any visible gaps between the cabinet and the top and basin with continuous bead of silicone.
7. SEALING

Apply non-acidic silicone to all edges where vanity top and cabinet meet the wall and floor.
Materials used in the construction of this unit are water resistant NOT water proof, so all areas need to be sealed to prevent water penetration.
Note: Gap sealant can be used in place of silicone where the unit meets tiled surfaces.
SEE PAGE 8 FOR FINISHING STEPS
AGAINST WALL OR BETWEEN WALLS VANITY INSTALLATION
1. MEASURE YOUR SPACE

For Against Wall installation – measure out distance you need from the wall to clear any collisions or for un-plumb walls.
For Between Walls installation – measure between wall A & B check that the cabinet length, depth & height is correct for the space.
2. GO TO PAGE 4
SEE STANDARD VANITY
INSTALLATION AND FOLLOW
STEPS 1 TO 5
Scan to watch a quick video with some handy tips on how to install a filler or infill panel
3. MEASURE YOUR FILLER/INFILL GAP

3a. Remove doors and/or drawers.
3b. Measure the gap between the cabinet and wall, measure the top and the bottom in case your wall is out of square. Repeat for both sides
if your cabinet is between walls.
4. MARK YOUR FILLER/INFILL PANEL

Your filler/infill panel is most likely 100mm x 16mm, so you may need to plane the filler panel down to fit/fill the gap or if your walls are not plumb.
Mark these measurements on the front edge of your filler/infill panel and use a straight edge to scribe a line down the whole filler.
5. PLANE DOWN THE PANEL

5a. Setup the filler, ensuring the part needed is face down.
5b. Using an electric planer, plane down the panel to the scribed line.
6. PRE-DRILL HOLES

Pre-drill holes through the end panel of your carcass at the top and bottom.
Repeat on both sides if your cabinet is going between walls.
7. SECURE THE FILLER/INFILL PANELS

7a. Place the panels into the gaps and set them either flush with the cabinet or door front.
7b. Secure panels by screwing into place through the pre-drilled holes.
SEE PAGE 8 FOR FINISHING STEPS
DETACHABLE KICKBOARD INSTALLATION

FITTING AN OVERFLOW

FITTING ABOVE COUNTER BASINS

MIRRORED SHAVING CABINET INSTALLATION

TALLBOY & ENSEMBLE INSTALLATION

EASY LINK BRACKET INSTALLATION

UNIVERSAL PLUG & WASTE INSTALLATION

DRAWER INSTALLATION & ALIGNMENT

PRESSED METAL DRAWERS


DELUXE LED CLEAR GLASS DRAWERS

BATTERY PACK INSTALLATION

HETTICH AVANTECH YOU DRAWERS

DOOR HINGE ALIGNMENT

DOOR HINGE INSTALLATION

Care & Maintenance Guide
Tips
- ADP products are produced from materials that are well suited to the bathroom, however it is important that your bathroom has sufficient ventilation to avoid excessive moisture. High humidity will lead to permanent dampness and mould, resulting in deterioration of the materials.
- Care must always be taken to dry any excessive moisture or water spillage.
Cabinets
- To maintain the finish on your cabinet use only a soft cloth and weak solution of non abrasive detergent.
- To remove scratches, marks, etc. on two pack polyurethane, rub gently with car cutting compound, car polish or household brass/silver cleaner.
- Goods used in construction are water/moisture-resistant, but not water-proof.
- All cabinets should be installed at least 300mm away from showers or bathtubs to avoid water damage.
Cast Marble & Acrylic
- To maintain the finish on your Cast Marble or Acrylic top use only a soft cloth and weak solution of non-abrasive detergent.
- To remove scratches, marks, etc. rub gently with car cutting compound, car polish or household brass/silver cleaner.
Ceramic Basins & Tops
- To maintain the finish on your ceramic top use only a soft cloth and weak solution of non abrasive detergent.
- Due to the glazed surface of ceramic tops, scratches cannot be repaired or removed.
- Due to ceramic being a handcrafted product that is fired at high temperatures, some visual distortion may occur. This is not a defect but can be seen to add to the beauty of the product.
Solid Surface, Cherry Pie, Friday Hybrid Quartz, Caesarstone
- Wipe clean with a soft damp cloth or sponge.
- For basic stains clean with mild detergents. For gloss and semi-gloss surfaces you can use a non abrasive polish or Brasso. For matte surface use a scourer pad or scotch bright to maintain the matte finish.
- Cherry Pie, Friday Hybrid Quartz™ and Caesarstone® benchtops have excellent heat and chemical resistant properties compared to other surfacing products, however to preserve the surface and protect against damage from heat, do not place hot items directly on the surface. Even though Cherry Pie, Friday™ and Caesarstone® can withstand high temperatures, prolonged periods or extreme heat can cause permanent damage.
Bamboo
- Use a soft dry microfiber cloth and mild detergent. Remove residual detergent with a damp cloth.
- All spills should be cleaned immediately. Dry the surface with a soft, clean dry cloth to remove all water and to reduce streaking.
- A non-abrasive household cleaner may be used.
Mirrors
FOR BEST RESULTS
Use a slightly moistened microfibre cloth to remove dry dirt or grime, then buff clean with dry microfibre cloth or use a soft dry cloth with a tight weave (which is more soft and non-abrasive). This will leave you with a clean, smear-free finish. By using alkaline (ammonia) or acid (vinegar) based products you not only risk damaging the silvered backing of the mirror, but also tend to leave behind streaks and smears.
DO NOT
Do Not use ammonia-based cleaning products such as glass cleaner. These may erode the mirror’s silver backing. Be sure to read the label of any such cleaning products before use.
PROTECTION AGAINST ‘BLACK-SPOTTING’
Alkaline, acid and moisture elements can cause the silvered backing of a mirror to darken, this is usually referred to as ‘black-spotting’. An easy way to protect your mirror against black-spotting is to regularly oil any exposed edges (i.e. polished or bevelled edges), using non-petrolium based oils (eg. sewing machine oil). This will act as a seal to protect against such elements. Always remember to keep your mirror dry and wipe off any water, moisture or steam.
If you cannot identify basin, top or cabinet material of your product, contact your merchant or see product information at
www.adpaustralia.com.au
Let’s talk bathroom ventilation
Good bathroom ventilation will save you thousands of dollars and keep your family healthy – mould can be a huge problem in bathrooms if they’re not properly ventilated.
We’ve broken down everything you need to know about ventilation with a handy guide.
Scan to watch a quick 3 minute video with our top bathroom care and maintenance tips to ensure you get years longer out of your bathroom products!

Why ventilation is so important
It’s crucial to have the best ventilation possible for your bathroom as moisture can be the root of all wet area products breaking down and failing, in particular your vanity and mirror. These products are usually water resistant not waterproof so it’s important moisture does not build up which will mean your products will last longer, saving you money!
Good ventilation is also key to achieve lower humidity in the room which will minimize bacteria growth and prevent mould and mildew. You’ll have less mildew on your grout, walls and ceilings, and fewer mould spores to threaten your respiratory health.
So why wouldn’t you keep your bathroom well ventilated!
Signs of poor ventilation
The earliest sign to look out for is black spotting on mirrors.
When the steam or humidity rises to the top of the room and ventilation is not sufficient, the mirror (which is normally positioned high up in the room) is the first thing to steam up. Over time, this causes damage to the mirror that appears as black spots or corrosion which cannot be reversed.
Other signs might include paint starting to flake on the ceiling, bubbling of paint coatings on fixtures, and furniture swelling.
Evidence of mould or mildew is also a good indicator that your ventilation is not adequate.
How to achieve good ventilation
The best sign that your ventilation is sufficient is that the mirror doesn’t steam up and the tiled walls aren’t wet.
The best way to achieve this is to have a good exhaust fan that is correctly sized for the space, to do this you need approximately 50 cfm per toilet and 50cfm per shower or bath. The fan should be installed to exhaust air into a duct that directs the air outdoors, not into your walls. Using the wall joists to guide exhaust air can result in moisture and mould problems in the walls.
Run the fan every time water is being used in the bathroom and run it for around 15 minutes after you shower.
If you have a bathroom window, opening that daily (even in the chilly winter months) in addition to using the exhaust fan will help to keep your bathroom fresh and mould-free.
We hope you enjoy your well ventilated, mould-free bathroom for many years to come!
A note about your vanity top or basin
I’m unique
Thank you for purchasing our product. We just wanted to let you know a few things about your new product.
Your vanity top or basin is a handcrafted product that has endured high temperatures during the manufacturing process, some size variation and visual distortion is to be expected. This is not a defect but can be seen to add to the aesthetics of the product.
Due to the nature of the manufacturing process, every item is unique. Please be assured that slight surface variances
and size tolerances are normal. We have a thorough quality control process that ensures the finished product meets quality guidelines and is as close to the nominal specifictaions as possible.
Here at ADP, we take pride in delivering quality products and are committed to a sustainable future.
Please take care
So you can enjoy your vanity top/basin for many years to come, care must be taken.
Some materials are more heat and scratch/chip resistant than others, to preserve the surface and protect against heat damage do not place hot items directly on the surface. Avoid dropping heavy or sharp objects on surfaces as scratching and chipping may occur.
Wipe, Rinse, Dry
Keep it simple for everyday cleaning.
Wipe gently with a warm and soapy damp cloth or sponge, using a mild detergent.
Rinse off with clean water.
Dry with a soft towel or microfiber cloth for an impeccable finish!
TROUBLESHOOTING

WARRANTY

Our products come with guarantees that cannot be excluded under the Australian Consumer Law. You are entitled to a replacement or refund for a major failure upon inspection by an authorised representative where a product is found to be defective in construction, material or assembly. You are also entitled to have the goods repaired or replaced if the goods fail to be of acceptable quality and the failure does not amount to a major failure, free of charge.
CONDITIONS
- Items must be installed by a licensed tradesperson.
- Failure is due to a fault in the manufacture of the product.
- Proof of purchase is provided.
- The installation of the product is in accordance with the instructions provided.
EXCLUSIONS
To the fullest extent permitted by law, the manufacturer excludes all liability for damage or injury to any person, damage to any property and any indirect consequential or other loss or damage. Manufacturer will not be liable for the cost of installation or removal of any unit and the warranty will be VOIDED if damage occurred during or after INSTALLATION or a damaged or incorrect unit has been installed. Door and drawer adjustment; Unsuitable or improper use; Incorrect installation or installation not in accordance with the instructions provided; Installation or part installation by the purchaser or any person other than a LICENSED tradesperson; Normal wear and tear; Inadequate or complete lack of maintenance; water damage; chemical, electrochemical or electrical influences; excessive heat damage or Harsh detergents or abrasive cleaners used on product finishes, are NOT considered a warranty issue.
CLAIM PROCEDURE
For all warranty queries customers are to contact the branch where the product was purchased. These details can be found on your purchase invoice.
SERVICE CALL OUT FEES & CHARGES
In the event of a call out for issues covered under the ADP manufacturer warranty, no call out fees will apply.
If ADP is called out and the cause of the issue falls within the warranty exclusions or the installation instructions have not been adhered to, the following charges will apply:
Call out fee: $198.00 initial cost, first 15 minutes included.
Service time onsite: $24.75 / billed in 15 minute increments.
Call out times: Business hours 9am – 5pm.
Note: Response time will depend on technician availability.
WARRANTY AGREEMENT – HOME OWNER TO KEEP

















