EnerSys PRO Series Fork Lift Battery Carrier

BATTERY BULL ELECTRIC LEVEL 3 BATTERY HANDLING EQUIPMENT
The BBE Series man-aboard Battery Bull Electric battery handling equipment offers new levels of performance, reliability and safety to support your high-volume and high-density battery change requirements. This product is available as a single level system, up to a 6-level system.
The BBE battery handling equipment is the industry’s first fully electric system with no hydraulics, which ensures maximum up-time and minimum maintenance.
Powerful, compact and energy efficient PLC controlled Variable Frequency Drives (VFD) are coupled with electric gear boxes to provide simultaneous power to both the lift and drive functions. The BBE battery handling equipment is one of the few options in high-volume fully electric transfer carts.
FEATURES AND BENEFITS
- Laser Height Alignment Indicator
- Visually displays the exact height of roller bed carriage for precision alignment when transferring batteries into racks or vehicles
- Operator Safety Gate Lock Out
- Safety Proximity Switch prevents vehicle operation unless the compartment gate is closed, and the E-Stop/Start Button is engagedHand Pallet Truck Integration
- Carriage Outboard Rollers
- Aids to bridge the gap between truck and battery changer
- Latched Thumb Switch on Joystick
- This new feature allows the operator to press and hold the magnet button to attach to the battery and when released the magnet is off
- Solid Steel Core Urethane Coated Roller Bed
- This ensures more traction to the bottom of the battery while transferring as well as long service life
- Dual bridge position monitoring sensors from “Sick Ltd.”
- Programmed and set up to extend the life of the bridge motors and clutches

- Programmed and set up to extend the life of the bridge motors and clutches
AVAILABLE OPTIONS
Options (at extra cost)
| Battery carriage/bed LED spot lamps | Allows additional light for battery changes |
| “Sick” laser pedestrian safety protection | Laser distance travel stops |
| Allen Bradley light tower | Activation status/travel alarm |
| Auto position system with PLC | Touch screen control |
| Auto level system | To align BBE with racks |
| Cameras & monitor | Allow viewing of the roller bed and/or front of the BBE battery handling equipment |

PRODUCT SPECIFICATIONS
| DESCRIPTION | BBE-2-30 | BBE-2-36 | BBE-2-42 | BBE-2-48 | |||||
| 1 | Drive sytem H.P./KW | 3 HP | 2.25 KW | 3 HP | 2.25 KW | 3 HP | 2.25 KW | 3 HP | 2.25 KW |
| 2 | Raise/lower H.P./KW | 2 x 5 HP | 2 x 3.75 KW | 2 x 5 HP | 2 x 3.75 KW | 2 x 5 HP | 2 x 3.75 KW | 2 x 5 HP | 2 x 3.75 KW |
| 3 | Raise/lower speed | 0-21 FPM | 0-6.4 MPM | 0-21 FPM | 0-6.4 MPM | 0-21 FPM | 0-6.4 MPM | 0-21 FPM | 0-6.4 MPM |
| 4 | Travel speed | 0-175 FPM | 0-53.3 MPM | 0-175 FPM | 0-53.3 MPM | 0-175 FPM | 0-53.3 MPM | 0-175 FPM | 0-53.3 MPM |
| 5 | Machine duty cycle (per year) | 5,500 Hrs. | 5,500 Hrs. | 5,500 Hrs. | 5,500 Hrs. | ||||
| 6-A | Input voltage/frequency /Max current drawn | 415 V / 50 Hz / 23 A | 415 V / 50 Hz / 23 A | 415 V / 50 Hz / 23 A | 415 V / 50 Hz / 23 A | ||||
| 6-B | Input voltage/frequency /Max current drawn | 460 V / 60 Hz / 20 A | 460 V / 60 Hz / 20 A | 460 V / 60 Hz / 20 A | 460 V / 60 Hz / 20 A | ||||
| 6-C | Input voltage/frequency /Max current down | 575 V / 60 Hz / 17 A | 575 V / 60 Hz / 17 A | 575 V / 60 Hz / 17 A | 575 V / 60 Hz / 17 A | ||||
| 7 | Control voltage | 110 VAC | 24 VDC | 110 VAC | 24 VDC | 110 VAC | 24 VDC | 110 VAC | 24 VDC |
| 8 | Draw bar pull magnet | 1800 lbs | 817 kg | 1800 lbs | 817 kg | 1800 lbs | 817 kg | 1800 lbs | 817 kg |
| 9 | Magnet break off point (1/4”, 3/16”, 1/8”) | 1800, 1200, 700 lbs | 1800, 1200, 700 lbs | 1800, 1200, 700 lbs | 1800, 1200, 700 lbs | ||||
| 10 | Power unit type | Electric | Electric | Electric | Electric | ||||
| 11 | Urethane wheel (DxW) | 8” x 4” | 203 x 102 mm | 8” x 4” | 203 x 102 mm | 8” x 4” | 203 x 102 mm | 8” x 4” | 203 x 102 mm |
| 12 | Capacity (fully loaded) | 10000 lbs | 4536 kgs | 10000 lbs | 4536 kgs | 10000 lbs | 4536 kgs | 10000 lbs | 4536 kgs |
| 13 | Service weight (empty) | 6900 lbs | 3130 kg | 6900 lbs | 3130 kg | 6900 lbs | 3130 kg | 6900 lbs | 3130 kg |
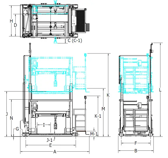
PRODUCT DIMENSONS
| MODEL NO. | BBE-2-30 | BBE-2-36 | BBE-2-42 | BBE-2-48 | |||||
| A | Overall length | 153” | 3886 mm | 165” | 4191 mm | 177” | 4496 mm | 189” | 4801 mm |
| B | Overall width (standard) | 78” | 1981 mm | 78” | 1981 mm | 78” | 1981 mm | 78” | 1981 mm |
| C | Max. magnet arm reach (standard arm) | 12.25” | 311 mm | 12.25” | 311 mm | 12.25” | 311 mm | 12.25” | 311 mm |
| C-1 | Max. magnet arm reach (extension arm) | Customized to suit | Customized to suit | Customized to suit | Customized to suit | ||||
| D | Bridge travel | 53.5” | 1359 mm | 53.5” | 1359 mm | 53.5” | 1359 mm | 53.5” | 1359 mm |
| E | Wheel base | 110.55” | 2807 mm | 122.5” | 3112 mm | 134.5” | 3416 mm | 146.5” | 3721 mm |
| F | Centerline of drive wheels | 64.75” | 1645 mm | 64.75” | 1645 mm | 64.75” | 1645 mm | 64.75” | 1645 mm |
| G | Ground clearance | 0.5” | 13 mm | 0.5” | 13 mm | 0.5” | 13 mm | 0.5” | 13 mm |
| Grade percent | 1% | 1% | 1% | 1% | 1% | 1% | 1% | 1% | |
| H | Battery compartment size length | 64” | 1626 mm | 64” | 1626 mm | 64” | 1626 mm | 64” | 1626 mm |
| I | Battery compartment overall width | 30” | 762 mm | 36” | 914 mm | 42” | 1067 mm | 48” | 1219 mm |
| Max. battery length | 60” | 1524 mm | 60” | 1524 mm | 60” | 1524 mm | 60” | 1524 mm | |
| Max. battery width | 24” | 610 mm | 30” | 762 mm | 36” | 914 mm | 42” | 1067 mm | |
| Max. battery height | 37” | 940 mm | 37” | 940 mm | 37” | 940 mm | 37” | 940 mm | |
| Min. battery length | 18” | 457 mm | 18” | 457 mm | 18” | 457 mm | 18” | 457 mm | |
| Min. battery width | 6” | 152 mm | 6” | 152 mm | 6” | 152 mm | 6” | 152 mm | |
| Min. battery height | 20” | 508 mm | 20” | 508 mm | 20” | 508 mm | 20” | 508 mm | |
| Min. over travel (front) | 94” | 2388 mm | 103” | 103” | 2616 mm | 112” | 2845 mm | 3073 mm | |
| Min. over travel (rear) | 114” | 2896 mm | 122” | 3099 mm | 132” | 3353 mm | 140” | 3556 mm | |
LEVEL HEIGHT DIMENSIONS
| MODEL NO. | SINGLE | DOUBLE | TRIPLE | ||||
| J | Carriage roller bed (raised) | 30” | 762 mm | 54” | 1372 mm | 100” | 2540 mm |
| J-1 | Carriage roller bed (lowered) | 5.5” | 140 mm | 5.5” | 140 mm | 5.5” | 140 mm |
| K | Overall height (raised) | 108” | 2743 mm | 139” | 3531 mm | 184” | 4674 mm |
| K-1 | Overall height (lowered) | 89” | 2261 mm | 89” | 2261 mm | 89” | 2261 mm |
| L | Overall height to top of tow arm | 134” | 3403 mm | 168” | 4267 mm | 208” | 5283 mm |
| M | Operator platform height (raised) | 36.5” | 927 mm | 62.5” | 1588 mm | 106.5” | 2705 mm |
| M-1 | Operator platform height (lowered) | 12.5” | 318 mm | 12.5” | 318 mm | 12.5” | 318 mm |
| N | Shipping height | 84” | 2134 mm | 84” | 2134 mm | 84” | 2134 mm |
| Upper guide* required (yes/no) | No | No | No | ||||
| Floor variance (+ or – in 10ft/3m) | 0.25” | 6 mm | 0.25” | 6 mm | 0.25” | 6 mm | |
MODEL/PART NUMBER BREAKDOWN
Example: BBE-2-36-TS-SG-XXX

BATTERY HANDLING EXPERTISE
Whatever the size of your battery fleet, PRO Series® battery handling solutions can help you streamline your battery changing operation with a safe, productive and cost-efficient system. From initial design, drawings and engineering through to complete installation and project management, PRO Series® battery handling solutions can support your operation with everything you’ll ever need for effective battery charging and changing. Let us plan your success.
PRO Series® battery handling solutions include a range of systems and equipment that comply with health and safety regulations. Using the latest CAD software, we will design a system that matches the needs of your business. With PROSeries® battery handling solutions, you’ll enjoy the highest degree of safety and ease of operation of any equipment available today – all backed by our skilled design and installation capabilities.
OUR EXCLUSIVE PARTNERSHIP WITH CARNEY BATTERY HANDLING LTD
Since 1984, Carney Battery Handling Ltd has globally provided EnerSys® with turn-key battery room solutions, sharing our mission to innovate, design, and create quality critical battery room solutions as dedicated partners.
Our dependable alliance allows us to provide dedicated support, delivering tailored engineering and design individualized for every customer.
With an emphasis on quality and safety, all our equipment is rigorously tested for real-world environments ensuring its readiness to meet the demands of any application.
WHEREVER YOU DO BUSINESS, ENERSYS® CAN SUPPORT YOU WITH MOTIVE POWER ENERGY. ABOUT ENERSYS®
EnerSys, the global leader in stored energy solutions for industrial applications, manufactures and distributes energy systems solutions and motive power batteries, specialty batteries, battery chargers, power equipment, battery accessories and outdoor equipment enclosure solutions to customers worldwide.
Energy Systems, which combine enclosures, power conversion, power distribution and energy storage, are used in the telecommunication, broadband and utility industries, uninterruptible power supplies, and numerous applications.
Motive Power batteries and chargers are utilized in electric forklift trucks and other industrial electric powered vehicles requiring stored energy solutions. Specialty batteries are used in aerospace and defense applications, large over-the-road trucks, premium automotive, medical and security systems applications.
EnerSys also provides aftermarket and customer support services to its customers in over 100 countries through its sales and manufacturing locations around the world. With the recent NorthStar acquisition, EnerSys has solidified its position as the market leader for premium Thin Plate Pure Lead batteries which are sold across all three lines of business.
More information regarding EnerSys can be found at www.enersys.com.
EnerSys Ltd (UK)
Oak Court, M60 Office Park, Wynne Avenue,
Swinton,
Manchester, M27 8FF
Please refer to the website address for details of your nearest EnerSys office: www.enersys.com
© 2022 EnerSys. All rights reserved. Trademarks and logos are the property of EnerSys and its affiliates unless otherwise noted. Subject to revisions without prior notice. E.&O.E.
EMEA-EN-PG-PRO-BBE3-0722
EnerSys EMEA Motive Power – WEnerSys EMEA Motive Power – Working in partnership with Carney Battery Handling Ltd.orking in partnership with Carney Battery Handling Ltd.
www.enersys.com



















